
| 賃料 | 予想金額:112,000〜132,000円程度 | 管理費 | 予想金額:8,000〜12,000円程度 |
| 礼金/敷金 | 非公開(アーカイブ) | 平米数 | 26.1㎡ |
| 初期費用概算(参考) | 目安:544,500〜644,500 円 | みなし賃料(月額・参考) | 131,844〜151,844 円 |
| 備考 | 本ページは過去募集のアーカイブです。表示の金額は周辺相場・過去募集を踏まえた参考レンジであり、実際の契約金額・条件ではありません。 | ||
※上記みなし賃料(月額)は仲介手数料割引・無料&キャッシュバックを加味した高級賃貸バイブル限定の金額です。一般的なみなし賃料とは異なります。
【建物ページ】ガーラ・ヒルズ赤坂の詳細・最新空室はこちら▶▶選ばれる理由
仲介手数料無料・キャンペーン情報(毎月15名様限定)
〇仲介手数料割引キャンペーン
ガーラ・ヒルズ赤坂 303の口コミ・レビュー
ガーラ・ヒルズ赤坂 303。こちらの美しい名前を持つ空間が、あなたの新しい生活の舞台を開いています。この303号室は、南西の陽光を優しく受け止める特別な場所。まるで太陽の光があなたを迎え入れるかのように、心地よい温もりに包まれるでしょう。専有面積26.1㎡のこの空間は、一見限られた広さに思えるかもしれません。しかし、そこには空間を最大限に生かす工夫が施され、まるで懐かしい友と再会した時のような心の…ガーラ・ヒルズ赤坂 303。こちらの美しい名前を持つ空間が、あなたの新しい生活の舞台を開いています。この303号室は、南西の陽光を優しく受け止める特別な場所。まるで太陽の光があなたを迎え入れるかのように、心地よい温もりに包まれるでしょう。専有面積26.1㎡のこの空間は、一見限られた広さに思えるかもしれません。しかし、そこには空間を最大限に生かす工夫が施され、まるで懐かしい友と再会した時のような心の温かさを感じさせるのです。
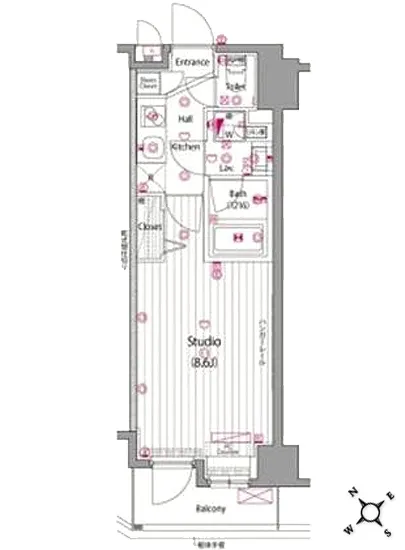
この物件の特徴の一つは、洋室8.6帖の広がりです。そこには、あなたの個性を引き立てるために設計された、清楚でありながらもエレガントな空間が広がっています。大きな窓から取り込む光は、まるで貴族の肖像画に描かれた窓のように、日々の生活を優雅に彩ります。朝、目覚めた瞬間に感じるのは、日の出と共に流れ込む柔らかな光。カーテンを開けるたびに、あなたの心に新たなエネルギーが宿ることでしょう。
さらに、ガーラ・ヒルズ赤坂 303には、生活の利便性を考慮した最新の設備が整っています。24時間管理されたセキュリティは、まるで親友のように、あなたを見守り続けます。オートロックやTVモニターホンは、安心感の象徴。外部からの侵入を一切許さず、あなたの心の平穏を守る守護者の役割を果たします。そして、宅配ボックスの存在は、まるで郵便屋さんがあなたのためだけに贈り物を届けるかのような特別感を与えてくれるでしょう。
周辺の赤坂は、歴史と文化が息づく地域です。東京メトロ千代田線の赤坂駅まで徒歩6分という立地は、まるで都会のオアシスにあなたを誘う道筋のよう。赤坂の街並みは、華やかなビルと隠れた名店が共存し、まるで映画のワンシーンを生きているかのような感覚に浸ります。ミュージアムやアートギャラリーに足を運ぶたび、文化が心に浸透し、あなただけのストーリーが深化していくことでしょう。
ガーラ・ヒルズ赤坂 303は、あなたを待っています。この空間での新たな生活は、まるで一篇の詩が紡がれていくかのように、日々の瞬間を大切にする楽しさを教えてくれます。柔らかな風に吹かれながら、一杯のコーヒーを手に、窓から流れる音楽のような街の喧騒を感じつつ、心地よい朝を迎える。そんな生活がここにはあります。
この物件はただの住まいではなく、あなたの人生を豊かにするための舞台です。ガーラ・ヒルズ赤坂 303で、新たな物語を始める準備はできていますか?あなたの未来が、この場所で花開くことを心より願っております。
この物件の特徴の一つは、洋室8.6帖の広がりです。そこには、あなたの個性を引き立てるために設計された、清楚でありながらもエレガントな空間が広がっています。大きな窓から取り込む光は、まるで貴族の肖像画に描かれた窓のように、日々の生活を優雅に彩ります。朝、目覚めた瞬間に感じるのは、日の出と共に流れ込む柔らかな光。カーテンを開けるたびに、あなたの心に新たなエネルギーが宿ることでしょう。
さらに、ガーラ・ヒルズ赤坂 303には、生活の利便性を考慮した最新の設備が整っています。24時間管理されたセキュリティは、まるで親友のように、あなたを見守り続けます。オートロックやTVモニターホンは、安心感の象徴。外部からの侵入を一切許さず、あなたの心の平穏を守る守護者の役割を果たします。そして、宅配ボックスの存在は、まるで郵便屋さんがあなたのためだけに贈り物を届けるかのような特別感を与えてくれるでしょう。
周辺の赤坂は、歴史と文化が息づく地域です。東京メトロ千代田線の赤坂駅まで徒歩6分という立地は、まるで都会のオアシスにあなたを誘う道筋のよう。赤坂の街並みは、華やかなビルと隠れた名店が共存し、まるで映画のワンシーンを生きているかのような感覚に浸ります。ミュージアムやアートギャラリーに足を運ぶたび、文化が心に浸透し、あなただけのストーリーが深化していくことでしょう。
ガーラ・ヒルズ赤坂 303は、あなたを待っています。この空間での新たな生活は、まるで一篇の詩が紡がれていくかのように、日々の瞬間を大切にする楽しさを教えてくれます。柔らかな風に吹かれながら、一杯のコーヒーを手に、窓から流れる音楽のような街の喧騒を感じつつ、心地よい朝を迎える。そんな生活がここにはあります。
この物件はただの住まいではなく、あなたの人生を豊かにするための舞台です。ガーラ・ヒルズ赤坂 303で、新たな物語を始める準備はできていますか?あなたの未来が、この場所で花開くことを心より願っております。
バイブルスコア
バイブルスコア: 31.9
平均的なスコアです。
※バイブルスコア詳細はこちら
バイブルスコアとは独自のAI機械学習技術を利用した物件評価システムで、物件のおすすめ度を示します。最高得点は100点で、スコアが高いほど、よりおすすめの物件と評価されています。
写真
契約条件
| 賃料 | 予想金額:112,000〜132,000円程度 | 管理費 | 予想金額:8,000〜12,000円程度 |
| 礼金 | 非公開(アーカイブ) | 敷金 | 非公開(アーカイブ) |
| フリーレント | なし | 平米数 | 26.1㎡ |
| 間取り | 1K | 大型収納 | |
| 契約期間 |
| 方角 | 南西 |
| 更新料 | 契約形態 | 普通賃貸借契約 | |
| 取引態様 | 媒介 | 内見状況 | 入居中 |
| 入居時期 | 入居中 | SOHO・事務所 | |
| ペット | 間取り内訳 | 洋室8.6帖 | |
| キャンペーン情報・備考 | 本情報は賃料改定交渉の資料作成、収益物件の利回り試算、周辺エリアや最寄り駅の坪単価分析、次回募集開始時期の予測などにご活用いただけます。 | ||
※「どの不動産に頼めばいいのか分からない」「信頼できる営業マンの話を聞きたい」「一番親切な会社と契約したい」とお悩みの方におすすめなのが「高級賃貸バイブル」です。
高級賃貸バイブルは業界10年以上の熟練スタッフ群がお客様ファーストで対応します。
下記ボタンから、まずは無料でご相談下さい。
※内覧をご希望の際には、どうぞ物件のエントランス前にてお待ち合わせくださいませ。ご内覧後は、同じ場所でお別れとさせていただきます。お客様のご都合に合わせたスムーズなご案内を心がけておりますので、ご質問等がございましたら何なりとお申し付けください。 物件概要
| 物件名 |
| 築年月 |
|
|---|---|---|---|
| 所在地 | |||
| 交通 | |||
| 総戸数 |
| 総階数 |
|
| 構造 |
| ||
地図
物件までの道のりは、「拡大地図を表示」をクリックしてナビ機能をご利用ください。
部屋設備















建物設備

24時間管理

TVモニターホン

エレベーター

オートロック

宅配ボックス

敷地内ゴミ置場

駐輪場
ガーラ・ヒルズ赤坂の現在募集中のお部屋
- No rooms found for this property.




















