
| 賃料 | 予想金額:179,000〜199,000円程度 | 管理費 | 予想金額:0〜2,000円程度 |
| 礼金/敷金 | 非公開(アーカイブ) | 平米数 | 46.54㎡ |
| 初期費用概算(参考) | 目安:1,081,000〜1,181,000 円 | みなし賃料(月額・参考) | 198,625〜218,625 円 |
| 備考 | 本ページは過去募集のアーカイブです。表示の金額は周辺相場・過去募集を踏まえた参考レンジであり、実際の契約金額・条件ではありません。 | ||
※上記みなし賃料(月額)は仲介手数料割引・無料&キャッシュバックを加味した高級賃貸バイブル限定の金額です。一般的なみなし賃料とは異なります。
【建物ページ】グランスイート南麻布の詳細・最新空室はこちら▶▶選ばれる理由
仲介手数料無料・キャンペーン情報(毎月15名様限定)
〇仲介手数料割引キャンペーン
グランスイート南麻布 402の口コミ・レビュー
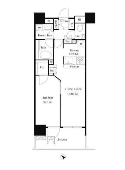
グランスイート南麻布 402は、まるで優雅な舞踏会に招かれたかのような、洗練された空間の中に存在します。東京の中心、港区南麻布に位置するこの美しい住まいは、南西の陽射しが心地よく差し込み、あなたの日常を優雅に彩ります。専有面積46.54㎡の中で、LDK12.8帖と洋室7帖が織りなす空間は、まるで一幅の絵画のように、絶妙なバランスと調和を感じさせます。
このグランスイート南麻布 402に足を踏み入…グランスイート南麻布 402は、まるで優雅な舞踏会に招かれたかのような、洗練された空間の中に存在します。東京の中心、港区南麻布に位置するこの美しい住まいは、南西の陽射しが心地よく差し込み、あなたの日常を優雅に彩ります。専有面積46.54㎡の中で、LDK12.8帖と洋室7帖が織りなす空間は、まるで一幅の絵画のように、絶妙なバランスと調和を感じさせます。
このグランスイート南麻布 402に足を踏み入れた瞬間、空気が変わるのを感じることでしょう。美しい仕上げや高級感溢れる設備が、あなたを包み込み、生活の舞台を整えてくれるのです。24時間管理の安心感は、まるで静かな守護者のように、あなたのプライバシーを守り、心地よい日々を支えてくれます。エレベーターでの上昇は、まるで空に向かう夢の旅路のようで、毎日が新しい冒険の始まりを告げてくれます。
オートロックに守られた空間は、優雅さと安全性の両方を兼ね備え、まさにこの高級賃貸物件の魅力を象徴しています。宅配ボックスは、生活の利便性を高め、仕事帰りに受け取った大切な荷物が、あなたの待つ邸宅で静かに佇む様子は、心の安らぎをもたらします。バイク置場と駐輪場も完備されており、街の風を感じながら自由に散策することができるのです。
そして、南麻布という土地は、歴史的な背景と文化的な豊かさを兼ね備えています。周囲には芸術的なギャラリーやセンスの良いカフェが点在し、あなたの日常はまるで映画のワンシーンのように、色鮮やかに映し出されます。毎朝、窓から差し込む光を浴びながら、コーヒーの豊かな香りに包まれ、ゆっくりと過ごすひとときは、他では味わえない特別な瞬間です。
グランスイート南麻布 402は、ただの住まいではなく、あなたの人生の舞台となる場所。友人たちが集まる温かなLDKは、会話が弾む場所であり、洋室はリラックスしたひとときを約束する、あなた専用のパーソナルスペースです。バルコニーから見える景色は、日々のストレスを忘れさせ、東京の喧騒から解放される瞬間をもたらします。
この物件に住むことは、ただの生活を超え、心の豊かさを追求する旅の始まりです。グランスイート南麻布 402での新しい暮らしが、あなたの人生にどれほどの美しさをもたらすか、考えるだけで胸が高鳴ります。あなたの物語が、ここから始まるのです。
このグランスイート南麻布 402に足を踏み入…グランスイート南麻布 402は、まるで優雅な舞踏会に招かれたかのような、洗練された空間の中に存在します。東京の中心、港区南麻布に位置するこの美しい住まいは、南西の陽射しが心地よく差し込み、あなたの日常を優雅に彩ります。専有面積46.54㎡の中で、LDK12.8帖と洋室7帖が織りなす空間は、まるで一幅の絵画のように、絶妙なバランスと調和を感じさせます。
このグランスイート南麻布 402に足を踏み入れた瞬間、空気が変わるのを感じることでしょう。美しい仕上げや高級感溢れる設備が、あなたを包み込み、生活の舞台を整えてくれるのです。24時間管理の安心感は、まるで静かな守護者のように、あなたのプライバシーを守り、心地よい日々を支えてくれます。エレベーターでの上昇は、まるで空に向かう夢の旅路のようで、毎日が新しい冒険の始まりを告げてくれます。
オートロックに守られた空間は、優雅さと安全性の両方を兼ね備え、まさにこの高級賃貸物件の魅力を象徴しています。宅配ボックスは、生活の利便性を高め、仕事帰りに受け取った大切な荷物が、あなたの待つ邸宅で静かに佇む様子は、心の安らぎをもたらします。バイク置場と駐輪場も完備されており、街の風を感じながら自由に散策することができるのです。
そして、南麻布という土地は、歴史的な背景と文化的な豊かさを兼ね備えています。周囲には芸術的なギャラリーやセンスの良いカフェが点在し、あなたの日常はまるで映画のワンシーンのように、色鮮やかに映し出されます。毎朝、窓から差し込む光を浴びながら、コーヒーの豊かな香りに包まれ、ゆっくりと過ごすひとときは、他では味わえない特別な瞬間です。
グランスイート南麻布 402は、ただの住まいではなく、あなたの人生の舞台となる場所。友人たちが集まる温かなLDKは、会話が弾む場所であり、洋室はリラックスしたひとときを約束する、あなた専用のパーソナルスペースです。バルコニーから見える景色は、日々のストレスを忘れさせ、東京の喧騒から解放される瞬間をもたらします。
この物件に住むことは、ただの生活を超え、心の豊かさを追求する旅の始まりです。グランスイート南麻布 402での新しい暮らしが、あなたの人生にどれほどの美しさをもたらすか、考えるだけで胸が高鳴ります。あなたの物語が、ここから始まるのです。
バイブルスコア
バイブルスコア: 56
条件のいい物件です、引っ越しが2か月以内の場合は仮申し込みを検討すべき物件です。
このお部屋は、現在ご入居中のため空室情報はございません。ただし、将来的に募集が開始される際、バイブルスコアにおいて非常に高い評価が期待されます。特にご興味をお持ちの方は、今のうちにブックマークやお気に入りに登録していただくと、募集開始のお知らせをすぐに受け取ることができます。是非ともご検討くださいませ。
※バイブルスコア詳細はこちら
バイブルスコアとは独自のAI機械学習技術を利用した物件評価システムで、物件のおすすめ度を示します。最高得点は100点で、スコアが高いほど、よりおすすめの物件と評価されています。
写真
契約条件
| 賃料 | 予想金額:179,000〜199,000円程度 | 管理費 | 予想金額:0〜2,000円程度 |
| 礼金 | 非公開(アーカイブ) | 敷金 | 非公開(アーカイブ) |
| フリーレント | なし | 平米数 | 46.54㎡ |
| 間取り | 1LDK | 大型収納 | WIC |
| 契約期間 |
| 方角 | 南西 |
| 更新料 | 契約形態 | 普通賃貸借契約 | |
| 取引態様 | 媒介 | 内見状況 | 入居中 |
| 入居時期 | 入居中 | SOHO・事務所 | |
| ペット | 間取り内訳 | LDK12.8 / 洋:7 | |
| キャンペーン情報・備考 | 本情報は賃料改定交渉の資料作成、収益物件の利回り試算、周辺エリアや最寄り駅の坪単価分析、次回募集開始時期の予測などにご活用いただけます。 | ||
※「どの不動産に頼めばいいのか分からない」「信頼できる営業マンの話を聞きたい」「一番親切な会社と契約したい」とお悩みの方におすすめなのが「高級賃貸バイブル」です。
高級賃貸バイブルは業界10年以上の熟練スタッフ群がお客様ファーストで対応します。
下記ボタンから、まずは無料でご相談下さい。
※内覧をご希望の際には、どうぞ物件のエントランス前にてお待ち合わせくださいませ。ご内覧後は、同じ場所でお別れとさせていただきます。お客様のご都合に合わせたスムーズなご案内を心がけておりますので、ご質問等がございましたら何なりとお申し付けください。 物件概要
| 物件名 |
| 築年月 |
|
|---|---|---|---|
| 所在地 | |||
| 交通 | |||
| 総戸数 |
| 総階数 |
|
| 構造 |
| ||
地図
物件までの道のりは、「拡大地図を表示」をクリックしてナビ機能をご利用ください。
部屋設備














建物設備

24時間管理

TVモニターホン

エレベーター

オートロック

バイク置場

宅配ボックス

敷地内ゴミ置場

駐車場平置き

駐車場機械式

駐輪場
グランスイート南麻布の現在募集中のお部屋
- No rooms found for this property.









