
| 賃料 | 予想金額:163,000〜183,000円程度 | 管理費 | 予想金額:8,000〜12,000円程度 |
| 礼金/敷金 | 非公開(アーカイブ) | 平米数 | 33.65㎡ |
| 初期費用概算(参考) | 目安:587,000〜687,000 円 | みなし賃料(月額・参考) | 182,667〜202,667 円 |
| 備考 | 本ページは過去募集のアーカイブです。表示の金額は周辺相場・過去募集を踏まえた参考レンジであり、実際の契約金額・条件ではありません。 | ||
※上記みなし賃料(月額)は仲介手数料割引・無料&キャッシュバックを加味した高級賃貸バイブル限定の金額です。一般的なみなし賃料とは異なります。
【建物ページ】ピアース銀座8丁目の詳細・最新空室はこちら▶▶選ばれる理由
仲介手数料無料・キャンペーン情報(毎月15名様限定)
〇引っ越しお祝い金20000円プレゼント(キャッシュバック)
〇仲介手数料無料キャンペーン
ピアース銀座8丁目 802の口コミ・レビュー
ピアース銀座8丁目 802、これはただの物件ではありません。まるで都会の宝石のように、輝く生活の舞台があなたを待っています。東京都中央区銀座8-18-12に位置するこの空間は、あなたの心を奪う風雅な世界へと導いてくれることでしょう。
この高級賃貸物件は、802号室という特別な階数にあり、あなたの人生の新たな章を物語るにふさわしい場所です。南西の光がふんだんに差し込むこのお部屋は、まるで自然のアー…ピアース銀座8丁目 802、これはただの物件ではありません。まるで都会の宝石のように、輝く生活の舞台があなたを待っています。東京都中央区銀座8-18-12に位置するこの空間は、あなたの心を奪う風雅な世界へと導いてくれることでしょう。
この高級賃貸物件は、802号室という特別な階数にあり、あなたの人生の新たな章を物語るにふさわしい場所です。南西の光がふんだんに差し込むこのお部屋は、まるで自然のアートが描かれたキャンバスのようです。天地をつなぐ窓からは、穏やかな時間が流れ込み、日々の喧騒から解放される安らぎを感じさせてくれます。
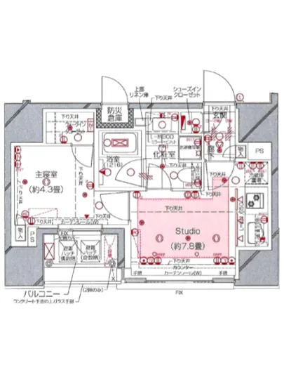
ピアース銀座8丁目 802には、33.65㎡の広さに包まれた贅沢が詰まっています。洋室4.3帖の空間は、シンプルでスタイリッシュなデザインが施され、あなたの感性を刺激します。そこで本を開き、ページをめくる音に耳を傾けながら、芳醇なコーヒーの香りが広がるひとときをお楽しみください。ダイニングキッチン7.8帖は、食材の声を聞きながら、あなたの手で美味しい料理を創造する喜びにあふれています。その瞬間、まるでシェフになったかのような気分を味わえることでしょう。
そして、ピアース銀座8丁目 802は、ただ美しいだけでなく、快適な生活を支えるために、TVモニターホンやエレベーター、オートロックなどの先進的な設備も兼ね備えています。宅配ボックスがあることで、あなたの生活はさらにスムーズになり、忙しい日常の中での小さな幸せを見つける手助けをしてくれます。さらに、敷地内のゴミ置場や駐輪場も完備されており、心地よい住環境が整っています。
周囲は、歴史と文化が息づく銀座エリア。あなたの生活に、品格と芸術を彩る数々のギャラリーやブティックが溢れています。夕暮れ時、銀座の街を散策しながら、歴史的な建物とモダンなファサードが交錯する風景を楽しむことができるのです。その瞬間、あなたはまるで映画の主人公のように、自身の人生を楽しむことができるでしょう。
周りの喧騒を忘れ、静寂なひとときを楽しみたくなれば、ピアース銀座8丁目 802の優雅な空間に戻りましょう。心地よい風が舞い込む室内で、好きな音楽を流し、柔らかなソファに身を委ねてみてください。穏やかなひとときが、あなたの心を癒やし、次の日へのエネルギーを与えてくれることでしょう。
ピアース銀座8丁目 802、その名は単なる住所を超え、あなた自身の物語の新たな出発点です。この場所で、あなたの理想のライフスタイルを築き上げることができるのです。贅沢な空間に身を置き、感性を磨き、時間が創り出す美しい瞬間を堪能してください。ここに住むことで、あなたは毎日を特別な映画のワンシーンとして感じることができるでしょう。ピアース銀座8丁目 802、新たな世界があなたを待っています。
この高級賃貸物件は、802号室という特別な階数にあり、あなたの人生の新たな章を物語るにふさわしい場所です。南西の光がふんだんに差し込むこのお部屋は、まるで自然のアー…ピアース銀座8丁目 802、これはただの物件ではありません。まるで都会の宝石のように、輝く生活の舞台があなたを待っています。東京都中央区銀座8-18-12に位置するこの空間は、あなたの心を奪う風雅な世界へと導いてくれることでしょう。
この高級賃貸物件は、802号室という特別な階数にあり、あなたの人生の新たな章を物語るにふさわしい場所です。南西の光がふんだんに差し込むこのお部屋は、まるで自然のアートが描かれたキャンバスのようです。天地をつなぐ窓からは、穏やかな時間が流れ込み、日々の喧騒から解放される安らぎを感じさせてくれます。
ピアース銀座8丁目 802には、33.65㎡の広さに包まれた贅沢が詰まっています。洋室4.3帖の空間は、シンプルでスタイリッシュなデザインが施され、あなたの感性を刺激します。そこで本を開き、ページをめくる音に耳を傾けながら、芳醇なコーヒーの香りが広がるひとときをお楽しみください。ダイニングキッチン7.8帖は、食材の声を聞きながら、あなたの手で美味しい料理を創造する喜びにあふれています。その瞬間、まるでシェフになったかのような気分を味わえることでしょう。
そして、ピアース銀座8丁目 802は、ただ美しいだけでなく、快適な生活を支えるために、TVモニターホンやエレベーター、オートロックなどの先進的な設備も兼ね備えています。宅配ボックスがあることで、あなたの生活はさらにスムーズになり、忙しい日常の中での小さな幸せを見つける手助けをしてくれます。さらに、敷地内のゴミ置場や駐輪場も完備されており、心地よい住環境が整っています。
周囲は、歴史と文化が息づく銀座エリア。あなたの生活に、品格と芸術を彩る数々のギャラリーやブティックが溢れています。夕暮れ時、銀座の街を散策しながら、歴史的な建物とモダンなファサードが交錯する風景を楽しむことができるのです。その瞬間、あなたはまるで映画の主人公のように、自身の人生を楽しむことができるでしょう。
周りの喧騒を忘れ、静寂なひとときを楽しみたくなれば、ピアース銀座8丁目 802の優雅な空間に戻りましょう。心地よい風が舞い込む室内で、好きな音楽を流し、柔らかなソファに身を委ねてみてください。穏やかなひとときが、あなたの心を癒やし、次の日へのエネルギーを与えてくれることでしょう。
ピアース銀座8丁目 802、その名は単なる住所を超え、あなた自身の物語の新たな出発点です。この場所で、あなたの理想のライフスタイルを築き上げることができるのです。贅沢な空間に身を置き、感性を磨き、時間が創り出す美しい瞬間を堪能してください。ここに住むことで、あなたは毎日を特別な映画のワンシーンとして感じることができるでしょう。ピアース銀座8丁目 802、新たな世界があなたを待っています。
バイブルスコア
バイブルスコア: 42.6
条件のいい物件です、引っ越しが2か月以内の場合は仮申し込みを検討すべき物件です。
※バイブルスコア詳細はこちら
バイブルスコアとは独自のAI機械学習技術を利用した物件評価システムで、物件のおすすめ度を示します。最高得点は100点で、スコアが高いほど、よりおすすめの物件と評価されています。
写真
契約条件
| 賃料 | 予想金額:163,000〜183,000円程度 | 管理費 | 予想金額:8,000〜12,000円程度 |
| 礼金 | 非公開(アーカイブ) | 敷金 | 非公開(アーカイブ) |
| フリーレント | なし | 平米数 | 33.65㎡ |
| 間取り | 1DK | 大型収納 | WIC+SIC |
| 契約期間 |
| 方角 | 南西 |
| 更新料 | 契約形態 | 普通賃貸借契約 | |
| 取引態様 | 媒介 | 内見状況 | 入居中 |
| 入居時期 | 入居中 | SOHO・事務所 | |
| ペット | ペット可 | 間取り内訳 | 洋:4.3 DK:7.8 |
| キャンペーン情報・備考 | 本情報は賃料改定交渉の資料作成、収益物件の利回り試算、周辺エリアや最寄り駅の坪単価分析、次回募集開始時期の予測などにご活用いただけます。 | ||
※「どの不動産に頼めばいいのか分からない」「信頼できる営業マンの話を聞きたい」「一番親切な会社と契約したい」とお悩みの方におすすめなのが「高級賃貸バイブル」です。
高級賃貸バイブルは業界10年以上の熟練スタッフ群がお客様ファーストで対応します。
下記ボタンから、まずは無料でご相談下さい。
※内覧をご希望の際には、どうぞ物件のエントランス前にてお待ち合わせくださいませ。ご内覧後は、同じ場所でお別れとさせていただきます。お客様のご都合に合わせたスムーズなご案内を心がけておりますので、ご質問等がございましたら何なりとお申し付けください。 物件概要
| 物件名 |
| 築年月 |
|
|---|---|---|---|
| 所在地 | |||
| 交通 | |||
| 総戸数 |
| 総階数 |
|
| 構造 |
| ||
地図
物件までの道のりは、「拡大地図を表示」をクリックしてナビ機能をご利用ください。
部屋設備















建物設備

TVモニターホン

エレベーター

オートロック

宅配ボックス

敷地内ゴミ置場

管理人

駐輪場
ピアース銀座8丁目の現在募集中のお部屋
- ピアース銀座8丁目 2階 44.55㎡ - 間取り: 1LDK+WIC+SIC - 賃料: 25万円




























