
| 賃料 | 予想金額:86,000〜106,000円程度 | 管理費 | 予想金額:8,500〜12,500円程度 |
| 礼金/敷金 | 非公開(アーカイブ) | 平米数 | 20.9㎡ |
| 初期費用概算(参考) | 目安:298,500〜398,500 円 | みなし賃料(月額・参考) | 102,250〜122,250 円 |
| 備考 | 本ページは過去募集のアーカイブです。表示の金額は周辺相場・過去募集を踏まえた参考レンジであり、実際の契約金額・条件ではありません。 | ||
※上記みなし賃料(月額)は仲介手数料割引・無料&キャッシュバックを加味した高級賃貸バイブル限定の金額です。一般的なみなし賃料とは異なります。
【建物ページ】レオンコンフォート池田山の詳細・最新空室はこちら▶▶選ばれる理由
仲介手数料無料・キャンペーン情報(毎月15名様限定)
〇仲介手数料割引キャンペーン
レオンコンフォート池田山 401の口コミ・レビュー
レオンコンフォート池田山 401。この壮麗な名を持つ住まいは、まるで隠れ家のようにあなたを迎え入れます。東京都品川区東五反田に位置し、401号室は西向きの窓から柔らかな夕陽を受け、日々の喧騒から解放されるひとときを提供します。ここには、20.9㎡という贅沢なスペースに、一人の生活を彩るための全てが整っています。
このお部屋は、まるで貴族の城郭の一室のように、あなたの暮らしを豊かにするために設計さ…レオンコンフォート池田山 401。この壮麗な名を持つ住まいは、まるで隠れ家のようにあなたを迎え入れます。東京都品川区東五反田に位置し、401号室は西向きの窓から柔らかな夕陽を受け、日々の喧騒から解放されるひとときを提供します。ここには、20.9㎡という贅沢なスペースに、一人の生活を彩るための全てが整っています。
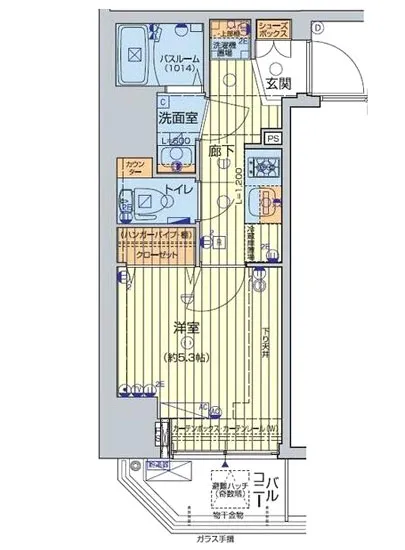
このお部屋は、まるで貴族の城郭の一室のように、あなたの暮らしを豊かにするために設計されています。洋室は5.3帖。ご自分の世界観を大切にしながら、模様替えやインテリアに心を奪われることでしょう。あなたが窓のそばに腰を下ろすと、外からの風がほんのりとした香りを運びます。街の喧騒が静寂に変わり、この特別な空間を一層際立たせます。
レオンコンフォート池田山 401は、ただの住まいではありません。ここには、温かい光が差し込む居心地の良いリビングがあり、やがて訪れる夕方には、周囲の景色が美しい絵画のように変わる瞬間を目撃できます。窓の外に広がる景色は、あなたの心を穏やかにさせ、自然といずれの時も深呼吸を促します。まるで映画のワンシーンのごとく、毎日の生活がドラマチックに演じられることでしょう。
周囲には、歴史を感じさせる品川の街並みや文化施設が点在し、あなたのアートな感性を揺さぶります。近くには都営地下鉄浅草線五反田駅があり、日常の便利さを享受しながらも、静かな隠れ家での生活を楽しむことができるのです。まるで、時代を超えた夢の中にいるかのような体験ができる一歩を踏み出せます。
エレベーターやオートロック、宅配ボックスといった現代的な設備が整い、あなたの生活をよりスムーズにするサポートを致します。これらの便利さは、身を寄せ合うように互いに寄り添い合い、あなたが心身を解放できる場所へと導いてくれるでしょう。さらに、管理人の存在は、安心感を与えてくれ、まるで大切な家族の一員のように寄り添ってくれます。
あなたがこのレオンコンフォート池田山 401に住むことは、単なる居住空間を持つことではなく、自分自身を再発見する旅の始まりです。五感を刺激する毎日が、あなたを新たな高みへと導いてくれることでしょう。心を豊かにするこの空間で、何を感じ、何を学ぶのか。あなたの新しい物語は、ここから始まるのです。さあ、あなたもこの物件で新たな日々を彩りませんか。
このお部屋は、まるで貴族の城郭の一室のように、あなたの暮らしを豊かにするために設計さ…レオンコンフォート池田山 401。この壮麗な名を持つ住まいは、まるで隠れ家のようにあなたを迎え入れます。東京都品川区東五反田に位置し、401号室は西向きの窓から柔らかな夕陽を受け、日々の喧騒から解放されるひとときを提供します。ここには、20.9㎡という贅沢なスペースに、一人の生活を彩るための全てが整っています。
このお部屋は、まるで貴族の城郭の一室のように、あなたの暮らしを豊かにするために設計されています。洋室は5.3帖。ご自分の世界観を大切にしながら、模様替えやインテリアに心を奪われることでしょう。あなたが窓のそばに腰を下ろすと、外からの風がほんのりとした香りを運びます。街の喧騒が静寂に変わり、この特別な空間を一層際立たせます。
レオンコンフォート池田山 401は、ただの住まいではありません。ここには、温かい光が差し込む居心地の良いリビングがあり、やがて訪れる夕方には、周囲の景色が美しい絵画のように変わる瞬間を目撃できます。窓の外に広がる景色は、あなたの心を穏やかにさせ、自然といずれの時も深呼吸を促します。まるで映画のワンシーンのごとく、毎日の生活がドラマチックに演じられることでしょう。
周囲には、歴史を感じさせる品川の街並みや文化施設が点在し、あなたのアートな感性を揺さぶります。近くには都営地下鉄浅草線五反田駅があり、日常の便利さを享受しながらも、静かな隠れ家での生活を楽しむことができるのです。まるで、時代を超えた夢の中にいるかのような体験ができる一歩を踏み出せます。
エレベーターやオートロック、宅配ボックスといった現代的な設備が整い、あなたの生活をよりスムーズにするサポートを致します。これらの便利さは、身を寄せ合うように互いに寄り添い合い、あなたが心身を解放できる場所へと導いてくれるでしょう。さらに、管理人の存在は、安心感を与えてくれ、まるで大切な家族の一員のように寄り添ってくれます。
あなたがこのレオンコンフォート池田山 401に住むことは、単なる居住空間を持つことではなく、自分自身を再発見する旅の始まりです。五感を刺激する毎日が、あなたを新たな高みへと導いてくれることでしょう。心を豊かにするこの空間で、何を感じ、何を学ぶのか。あなたの新しい物語は、ここから始まるのです。さあ、あなたもこの物件で新たな日々を彩りませんか。
バイブルスコア
バイブルスコア: 37.3
平均的なスコアです。
※バイブルスコア詳細はこちら
バイブルスコアとは独自のAI機械学習技術を利用した物件評価システムで、物件のおすすめ度を示します。最高得点は100点で、スコアが高いほど、よりおすすめの物件と評価されています。
写真
契約条件
| 賃料 | 予想金額:86,000〜106,000円程度 | 管理費 | 予想金額:8,500〜12,500円程度 |
| 礼金 | 非公開(アーカイブ) | 敷金 | 非公開(アーカイブ) |
| フリーレント | なし | 平米数 | 20.9㎡ |
| 間取り | 1K | 大型収納 | |
| 契約期間 |
| 方角 | 西 |
| 更新料 | 契約形態 | 普通賃貸借契約 | |
| 取引態様 | 媒介 | 内見状況 | 入居中 |
| 入居時期 | 入居中 | SOHO・事務所 | |
| ペット | ペット可 | 間取り内訳 | 洋:5.3 |
| キャンペーン情報・備考 | 本情報は賃料改定交渉の資料作成、収益物件の利回り試算、周辺エリアや最寄り駅の坪単価分析、次回募集開始時期の予測などにご活用いただけます。 | ||
※「どの不動産に頼めばいいのか分からない」「信頼できる営業マンの話を聞きたい」「一番親切な会社と契約したい」とお悩みの方におすすめなのが「高級賃貸バイブル」です。
高級賃貸バイブルは業界10年以上の熟練スタッフ群がお客様ファーストで対応します。
下記ボタンから、まずは無料でご相談下さい。
※内覧をご希望の際には、どうぞ物件のエントランス前にてお待ち合わせくださいませ。ご内覧後は、同じ場所でお別れとさせていただきます。お客様のご都合に合わせたスムーズなご案内を心がけておりますので、ご質問等がございましたら何なりとお申し付けください。 物件概要
| 物件名 |
| 築年月 |
|
|---|---|---|---|
| 所在地 | |||
| 交通 | |||
| 総戸数 |
| 総階数 |
|
| 構造 |
| ||
地図
物件までの道のりは、「拡大地図を表示」をクリックしてナビ機能をご利用ください。
部屋設備














建物設備

TVモニターホン

エレベーター

オートロック

宅配ボックス

敷地内ゴミ置場

管理人

駐輪場
レオンコンフォート池田山の現在募集中のお部屋
- No rooms found for this property.









