
| 賃料 | 予想金額:89,000〜109,000円程度 | 管理費 | 予想金額:8,500〜12,500円程度 |
| 礼金/敷金 | 非公開(アーカイブ) | 平米数 | 20.62㎡ |
| 初期費用概算(参考) | 目安:305,500〜405,500 円 | みなし賃料(月額・参考) | 105,138〜125,138 円 |
| 備考 | 本ページは過去募集のアーカイブです。表示の金額は周辺相場・過去募集を踏まえた参考レンジであり、実際の契約金額・条件ではありません。 | ||
※上記みなし賃料(月額)は仲介手数料割引・無料&キャッシュバックを加味した高級賃貸バイブル限定の金額です。一般的なみなし賃料とは異なります。
【建物ページ】レオンコンフォート池田山の詳細・最新空室はこちら▶▶選ばれる理由
仲介手数料無料・キャンペーン情報(毎月15名様限定)
〇仲介手数料割引キャンペーン
レオンコンフォート池田山 703の口コミ・レビュー
レオンコンフォート池田山 703は、まるで夢の扉を開けるかのような特別な空間を提供します。東京都品川区東五反田の静謐な環境に佇むこの物件は、まるで都会の喧騒から解き放たれた隠れ家のように、優雅さと親しみやすさを兼ね備えています。703号室の扉を開ける瞬間、あなたの人生に新たな物語が始まるのです。
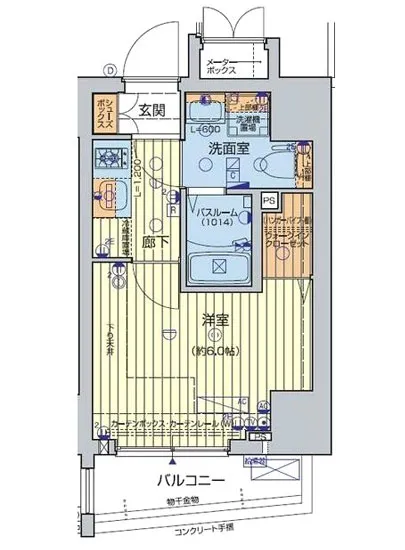
広さ20.62㎡のこの1Kの住まいは、洗練されたデザインが施されており、まるで静かな湖面に映る月明か…レオンコンフォート池田山 703は、まるで夢の扉を開けるかのような特別な空間を提供します。東京都品川区東五反田の静謐な環境に佇むこの物件は、まるで都会の喧騒から解き放たれた隠れ家のように、優雅さと親しみやすさを兼ね備えています。703号室の扉を開ける瞬間、あなたの人生に新たな物語が始まるのです。
広さ20.62㎡のこの1Kの住まいは、洗練されたデザインが施されており、まるで静かな湖面に映る月明かりのように穏やかな美しさを湛えています。洋室6帖の空間は、心安らぐ光が差し込み、あなたの私的な世界を優雅に彩ります。ゆったりとした時間の流れの中で、コーヒーの香ばしい香りに包まれながら、本を読みふけるひととき、あるいは大切な友人とともに食卓を囲み、笑い合う瞬間がここにあります。
レオンコンフォート池田山 703は、単なる居住空間ではありません。それは、あなた自身を再発見するための舞台です。オートロックや宅配ボックスといった心に安らぎをもたらす設備が整い、いつでも安心して帰れる場所であると同時に、周囲の文化や歴史を静かに感じられる場所でもあります。品川区といえば、江戸時代から続く歴史ある地であり、近隣には美術館や古い神社が点在しています。ここでの生活は、まるで時代を超えた旅に出るかのような体験が待っています。
そして、夕日が西の空に沈む頃、レオンコンフォート池田山 703の窓から外を見ると、街の灯りが一つ、また一つと顔を出し、まるで星空を眺めるかのような美しさに心が奪われます。あなたがこの暮らしの中で、どんな夢を描くのか、それはあなた次第です。エレベーターでの上昇、管理人との挨拶、静寂の中で感じる街の息遣い、すべてがこの空間の中での彩りある日常を演出しています。そして、都営地下鉄浅草線五反田駅までの徒歩7分の距離が、まるであなたの冒険心をくすぐる架け橋となり、いつでも新たな発見への出口を与えてくれます。
この地での生活は、ただの暮らしではなく、心の豊かさを育む瞬間の連続です。レオンコンフォート池田山 703は、あなたに特別な体験を約束する場所なのです。ここでのひと時が、人生の中でかけがえのない思い出となることでしょう。ぜひ、一度その扉を開いてみてください。新たな物語が、あなたを待っています。
広さ20.62㎡のこの1Kの住まいは、洗練されたデザインが施されており、まるで静かな湖面に映る月明か…レオンコンフォート池田山 703は、まるで夢の扉を開けるかのような特別な空間を提供します。東京都品川区東五反田の静謐な環境に佇むこの物件は、まるで都会の喧騒から解き放たれた隠れ家のように、優雅さと親しみやすさを兼ね備えています。703号室の扉を開ける瞬間、あなたの人生に新たな物語が始まるのです。
広さ20.62㎡のこの1Kの住まいは、洗練されたデザインが施されており、まるで静かな湖面に映る月明かりのように穏やかな美しさを湛えています。洋室6帖の空間は、心安らぐ光が差し込み、あなたの私的な世界を優雅に彩ります。ゆったりとした時間の流れの中で、コーヒーの香ばしい香りに包まれながら、本を読みふけるひととき、あるいは大切な友人とともに食卓を囲み、笑い合う瞬間がここにあります。
レオンコンフォート池田山 703は、単なる居住空間ではありません。それは、あなた自身を再発見するための舞台です。オートロックや宅配ボックスといった心に安らぎをもたらす設備が整い、いつでも安心して帰れる場所であると同時に、周囲の文化や歴史を静かに感じられる場所でもあります。品川区といえば、江戸時代から続く歴史ある地であり、近隣には美術館や古い神社が点在しています。ここでの生活は、まるで時代を超えた旅に出るかのような体験が待っています。
そして、夕日が西の空に沈む頃、レオンコンフォート池田山 703の窓から外を見ると、街の灯りが一つ、また一つと顔を出し、まるで星空を眺めるかのような美しさに心が奪われます。あなたがこの暮らしの中で、どんな夢を描くのか、それはあなた次第です。エレベーターでの上昇、管理人との挨拶、静寂の中で感じる街の息遣い、すべてがこの空間の中での彩りある日常を演出しています。そして、都営地下鉄浅草線五反田駅までの徒歩7分の距離が、まるであなたの冒険心をくすぐる架け橋となり、いつでも新たな発見への出口を与えてくれます。
この地での生活は、ただの暮らしではなく、心の豊かさを育む瞬間の連続です。レオンコンフォート池田山 703は、あなたに特別な体験を約束する場所なのです。ここでのひと時が、人生の中でかけがえのない思い出となることでしょう。ぜひ、一度その扉を開いてみてください。新たな物語が、あなたを待っています。
バイブルスコア
バイブルスコア: 28.5
平均的なスコアです。
※バイブルスコア詳細はこちら
バイブルスコアとは独自のAI機械学習技術を利用した物件評価システムで、物件のおすすめ度を示します。最高得点は100点で、スコアが高いほど、よりおすすめの物件と評価されています。
写真
契約条件
| 賃料 | 予想金額:89,000〜109,000円程度 | 管理費 | 予想金額:8,500〜12,500円程度 |
| 礼金 | 非公開(アーカイブ) | 敷金 | 非公開(アーカイブ) |
| フリーレント | なし | 平米数 | 20.62㎡ |
| 間取り | 1K | 大型収納 | WIC |
| 契約期間 |
| 方角 | 西 |
| 更新料 | 契約形態 | 普通賃貸借契約 | |
| 取引態様 | 媒介 | 内見状況 | 入居中 |
| 入居時期 | 入居中 | SOHO・事務所 | |
| ペット | ペット可 | 間取り内訳 | 洋:6 |
| キャンペーン情報・備考 | 本情報は賃料改定交渉の資料作成、収益物件の利回り試算、周辺エリアや最寄り駅の坪単価分析、次回募集開始時期の予測などにご活用いただけます。 | ||
※「どの不動産に頼めばいいのか分からない」「信頼できる営業マンの話を聞きたい」「一番親切な会社と契約したい」とお悩みの方におすすめなのが「高級賃貸バイブル」です。
高級賃貸バイブルは業界10年以上の熟練スタッフ群がお客様ファーストで対応します。
下記ボタンから、まずは無料でご相談下さい。
※内覧をご希望の際には、どうぞ物件のエントランス前にてお待ち合わせくださいませ。ご内覧後は、同じ場所でお別れとさせていただきます。お客様のご都合に合わせたスムーズなご案内を心がけておりますので、ご質問等がございましたら何なりとお申し付けください。 物件概要
| 物件名 |
| 築年月 |
|
|---|---|---|---|
| 所在地 | |||
| 交通 | |||
| 総戸数 |
| 総階数 |
|
| 構造 |
| ||
地図
物件までの道のりは、「拡大地図を表示」をクリックしてナビ機能をご利用ください。
部屋設備














建物設備

TVモニターホン

エレベーター

オートロック

宅配ボックス

敷地内ゴミ置場

管理人

駐輪場
レオンコンフォート池田山の現在募集中のお部屋
- No rooms found for this property.









