
| 賃料 | 予想金額:91,000〜111,000円程度 | 管理費 | 予想金額:8,500〜12,500円程度 |
| 礼金/敷金 | 非公開(アーカイブ) | 平米数 | 20.66㎡ |
| 初期費用概算(参考) | 目安:310,500〜410,500 円 | みなし賃料(月額・参考) | 107,200〜127,200 円 |
| 備考 | 本ページは過去募集のアーカイブです。表示の金額は周辺相場・過去募集を踏まえた参考レンジであり、実際の契約金額・条件ではありません。 | ||
※上記みなし賃料(月額)は仲介手数料割引・無料&キャッシュバックを加味した高級賃貸バイブル限定の金額です。一般的なみなし賃料とは異なります。
【建物ページ】レオンコンフォート池田山の詳細・最新空室はこちら▶▶選ばれる理由
仲介手数料無料・キャンペーン情報(毎月15名様限定)
〇仲介手数料割引キャンペーン
レオンコンフォート池田山 1203の口コミ・レビュー
レオンコンフォート池田山 1203は、あなたの日常を特別なものに変える舞台となる場所です。この美しい物件は、東京都品川区東五反田5-21-17に位置し、東向きの窓からは朝日の光が優しく差し込みます。最寄駅の都営地下鉄浅草線五反田駅から徒歩7分の好立地は、まさに都市の利便性を享受しながら、ひっそりとした安らぎを味わえる魔法のような環境を提供します。
専有面積20.66㎡のレオンコンフォート池田山 …レオンコンフォート池田山 1203は、あなたの日常を特別なものに変える舞台となる場所です。この美しい物件は、東京都品川区東五反田5-21-17に位置し、東向きの窓からは朝日の光が優しく差し込みます。最寄駅の都営地下鉄浅草線五反田駅から徒歩7分の好立地は、まさに都市の利便性を享受しながら、ひっそりとした安らぎを味わえる魔法のような環境を提供します。
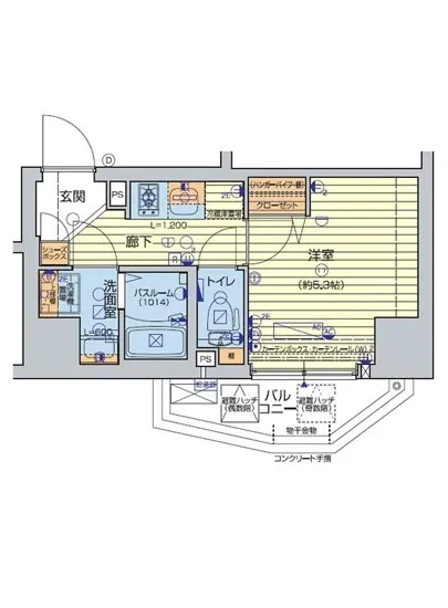
専有面積20.66㎡のレオンコンフォート池田山 1203では、あなたが自分だけの小宇宙を創り出すことができます。1Kの間取りは、機能性と快適さを兼ね備えた空間を生み出し、洋室5.3帖は、静寂の中に佇むアートギャラリーのようです。ここにいると、まるで自分の心の奥底から美しいインスピレーションが湧き上がってくるかのようです。
エレベーターで楼上へ上がると、扉が開き、その先には高級感漂う共用スペースが広がります。オートロックシステムは、あなたの安全をしっかり守ってくれ、まるで忠実な番犬のように見守る存在です。宅配ボックスは、忙しい日常の中でもあなたの大切な荷物を確実に受け取る助けとなり、まるで優雅なセレブが利用する専属のバトラーのように、安心感を与えてくれます。
レオンコンフォート池田山 1203に住むことは、単なる暮らしではなく、日々が映画の一シーンとなることを意味します。例えば、朝、ふと目を覚ますと、カーテンの間から差し込む柔らかな光が、あなたを優しく包み込みます。そして、新鮮な香りのコーヒーを淹れながら、窓の外を眺めると、人々が行き交う街の活気が感じられ、まるで映画の主人公になった気分。生活の中に流れる音楽は、街のざわめきと共にあなたの心に響き渡ります。
周辺には、歴史ある街並みや文化的なアートスポットが点在しており、東京の魅力を存分に享受することができます。例えば、近くのカフェで洋菓子を頬張りながら、甘い香りに包まれて思わず笑顔がこぼれる瞬間、また芸術館の展示を楽しむ際に感じる白い壁の冷たさと、絵画から伝わる熱気のコントラストは、あなたの感性を刺激するでしょう。
レオンコンフォート池田山 1203は、ただの住まいではなく、あなた自身を描くキャンバスです。一歩足を踏み入れた瞬間、あなたの心に火が灯り、素晴らしい日常が始まります。この場所で過ごす毎日は、まるで心の中の宝石が輝くように、あなたを特別な存在にしてくれることでしょう。あなたの居場所、あなたの物語、そしてあなたの未来がここに待っています。
専有面積20.66㎡のレオンコンフォート池田山 …レオンコンフォート池田山 1203は、あなたの日常を特別なものに変える舞台となる場所です。この美しい物件は、東京都品川区東五反田5-21-17に位置し、東向きの窓からは朝日の光が優しく差し込みます。最寄駅の都営地下鉄浅草線五反田駅から徒歩7分の好立地は、まさに都市の利便性を享受しながら、ひっそりとした安らぎを味わえる魔法のような環境を提供します。
専有面積20.66㎡のレオンコンフォート池田山 1203では、あなたが自分だけの小宇宙を創り出すことができます。1Kの間取りは、機能性と快適さを兼ね備えた空間を生み出し、洋室5.3帖は、静寂の中に佇むアートギャラリーのようです。ここにいると、まるで自分の心の奥底から美しいインスピレーションが湧き上がってくるかのようです。
エレベーターで楼上へ上がると、扉が開き、その先には高級感漂う共用スペースが広がります。オートロックシステムは、あなたの安全をしっかり守ってくれ、まるで忠実な番犬のように見守る存在です。宅配ボックスは、忙しい日常の中でもあなたの大切な荷物を確実に受け取る助けとなり、まるで優雅なセレブが利用する専属のバトラーのように、安心感を与えてくれます。
レオンコンフォート池田山 1203に住むことは、単なる暮らしではなく、日々が映画の一シーンとなることを意味します。例えば、朝、ふと目を覚ますと、カーテンの間から差し込む柔らかな光が、あなたを優しく包み込みます。そして、新鮮な香りのコーヒーを淹れながら、窓の外を眺めると、人々が行き交う街の活気が感じられ、まるで映画の主人公になった気分。生活の中に流れる音楽は、街のざわめきと共にあなたの心に響き渡ります。
周辺には、歴史ある街並みや文化的なアートスポットが点在しており、東京の魅力を存分に享受することができます。例えば、近くのカフェで洋菓子を頬張りながら、甘い香りに包まれて思わず笑顔がこぼれる瞬間、また芸術館の展示を楽しむ際に感じる白い壁の冷たさと、絵画から伝わる熱気のコントラストは、あなたの感性を刺激するでしょう。
レオンコンフォート池田山 1203は、ただの住まいではなく、あなた自身を描くキャンバスです。一歩足を踏み入れた瞬間、あなたの心に火が灯り、素晴らしい日常が始まります。この場所で過ごす毎日は、まるで心の中の宝石が輝くように、あなたを特別な存在にしてくれることでしょう。あなたの居場所、あなたの物語、そしてあなたの未来がここに待っています。
バイブルスコア
バイブルスコア: 26.5
平均的なスコアです。
※バイブルスコア詳細はこちら
バイブルスコアとは独自のAI機械学習技術を利用した物件評価システムで、物件のおすすめ度を示します。最高得点は100点で、スコアが高いほど、よりおすすめの物件と評価されています。
写真
契約条件
| 賃料 | 予想金額:91,000〜111,000円程度 | 管理費 | 予想金額:8,500〜12,500円程度 |
| 礼金 | 非公開(アーカイブ) | 敷金 | 非公開(アーカイブ) |
| フリーレント | なし | 平米数 | 20.66㎡ |
| 間取り | 1K | 大型収納 | |
| 契約期間 |
| 方角 | 東 |
| 更新料 | 契約形態 | 普通賃貸借契約 | |
| 取引態様 | 媒介 | 内見状況 | 入居中 |
| 入居時期 | 入居中 | SOHO・事務所 | |
| ペット | ペット可 | 間取り内訳 | 洋:5.3 |
| キャンペーン情報・備考 | 本情報は賃料改定交渉の資料作成、収益物件の利回り試算、周辺エリアや最寄り駅の坪単価分析、次回募集開始時期の予測などにご活用いただけます。 | ||
※「どの不動産に頼めばいいのか分からない」「信頼できる営業マンの話を聞きたい」「一番親切な会社と契約したい」とお悩みの方におすすめなのが「高級賃貸バイブル」です。
高級賃貸バイブルは業界10年以上の熟練スタッフ群がお客様ファーストで対応します。
下記ボタンから、まずは無料でご相談下さい。
※内覧をご希望の際には、どうぞ物件のエントランス前にてお待ち合わせくださいませ。ご内覧後は、同じ場所でお別れとさせていただきます。お客様のご都合に合わせたスムーズなご案内を心がけておりますので、ご質問等がございましたら何なりとお申し付けください。 物件概要
| 物件名 |
| 築年月 |
|
|---|---|---|---|
| 所在地 | |||
| 交通 | |||
| 総戸数 |
| 総階数 |
|
| 構造 |
| ||
地図
物件までの道のりは、「拡大地図を表示」をクリックしてナビ機能をご利用ください。
部屋設備














建物設備

TVモニターホン

エレベーター

オートロック

宅配ボックス

敷地内ゴミ置場

管理人

駐輪場
レオンコンフォート池田山の現在募集中のお部屋
- No rooms found for this property.









