
| 賃料 | 予想金額:96,000〜116,000円程度 | 管理費 | 予想金額:6,000〜10,000円程度 |
| 礼金/敷金 | 非公開(アーカイブ) | 平米数 | 30.24㎡ |
| 初期費用概算(参考) | 目安:424,500〜524,500 円 | みなし賃料(月額・参考) | 111,677〜131,677 円 |
| 備考 | 本ページは過去募集のアーカイブです。表示の金額は周辺相場・過去募集を踏まえた参考レンジであり、実際の契約金額・条件ではありません。 | ||
※上記みなし賃料(月額)は仲介手数料割引・無料&キャッシュバックを加味した高級賃貸バイブル限定の金額です。一般的なみなし賃料とは異なります。
【建物ページ】コスモグランス南品川の詳細・最新空室はこちら▶▶選ばれる理由
仲介手数料無料・キャンペーン情報(毎月15名様限定)
〇仲介手数料割引キャンペーン
コスモグランス南品川 1010の口コミ・レビュー
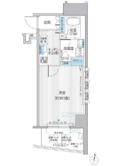
「コスモグランス南品川 1010」は、まるで静寂の中から生まれた一粒の宝石のように、あなたを魅了することでしょう。この物件は、東京都品川区南品川5に位置し、11階建てのこの壮麗な空間は、南向き・東向きという恵まれた方角を持ち、朝日と夕日が優しくあなたの日常を彩ります。専有面積は30.24㎡、1Kの間取りは、洋室10.1帖とキッチン2.6帖から成り立っており、まるであなた専用の小さな宮殿のような、温…「コスモグランス南品川 1010」は、まるで静寂の中から生まれた一粒の宝石のように、あなたを魅了することでしょう。この物件は、東京都品川区南品川5に位置し、11階建てのこの壮麗な空間は、南向き・東向きという恵まれた方角を持ち、朝日と夕日が優しくあなたの日常を彩ります。専有面積は30.24㎡、1Kの間取りは、洋室10.1帖とキッチン2.6帖から成り立っており、まるであなた専用の小さな宮殿のような、温もりのある空間を提供します。
コスモグランス南品川 1010に足を踏み入れると、まず感じるのは、静寂の中に漂う芳しい香り。新しく施された壁紙のほのかな香りが、住空間に洗練された感覚を与えます。広々とした洋室には、柔らかな光が差し込み、時折、窓から聞こえてくる小鳥のさえずりが、心の平穏をもたらしてくれるでしょう。夜には、星空を眺めながらのんびりとくつろぎ、日常の喧騒を忘れさせてくれる特別なひとときを堪能してください。
この物件は、オートロックやエレベーター、TVモニターホンなど、現代のライフスタイルに欠かせない設備を完備しています。あなたの大切なプライバシーを守り、安心感を与えるこの空間は、まるで信頼のおける友人のよう。さらに、バイク置場や宅配ボックスも完備されており、忙しい日常生活をよりスムーズにサポートしてくれます。敷地内ごみ置き場や駐車場も完備されているため、生活のストレスを軽減し、快適に過ごすことができるでしょう。
コスモグランス南品川 1010がある品川区は、古くからの歴史と文化が息づく地域です。美しい港町の情景や多彩な食文化に彩られた町並みは、あなたの生活に喜びをもたらします。大井町駅からわずか徒歩11分の距離にあり、都会の喧騒から少し離れた場所で、心穏やかな日々を過ごしてみてはいかがでしょうか。
毎朝、このコスモグランス南品川 1010を起点に、さまざまな冒険が待っているのです。季節が移ろう中で、街に咲く花々や、木々の葉の色づき、そして地元の人々とのふれあい。これらのすべてが、あなたにとって特別なストーリーの一部となり、思い出のシーンを彩っていくことでしょう。
コスモグランス南品川 1010は、ただの住まいではなく、あなたの人生に新たな章をもたらす、特別な場所です。すべての感覚を研ぎ澄ませ、毎日を映画のように織りなしていく、その一歩をこの地で踏み出してみてください。あなたが織り成す未来の物語が、ここから始まるのです。
コスモグランス南品川 1010に足を踏み入れると、まず感じるのは、静寂の中に漂う芳しい香り。新しく施された壁紙のほのかな香りが、住空間に洗練された感覚を与えます。広々とした洋室には、柔らかな光が差し込み、時折、窓から聞こえてくる小鳥のさえずりが、心の平穏をもたらしてくれるでしょう。夜には、星空を眺めながらのんびりとくつろぎ、日常の喧騒を忘れさせてくれる特別なひとときを堪能してください。
この物件は、オートロックやエレベーター、TVモニターホンなど、現代のライフスタイルに欠かせない設備を完備しています。あなたの大切なプライバシーを守り、安心感を与えるこの空間は、まるで信頼のおける友人のよう。さらに、バイク置場や宅配ボックスも完備されており、忙しい日常生活をよりスムーズにサポートしてくれます。敷地内ごみ置き場や駐車場も完備されているため、生活のストレスを軽減し、快適に過ごすことができるでしょう。
コスモグランス南品川 1010がある品川区は、古くからの歴史と文化が息づく地域です。美しい港町の情景や多彩な食文化に彩られた町並みは、あなたの生活に喜びをもたらします。大井町駅からわずか徒歩11分の距離にあり、都会の喧騒から少し離れた場所で、心穏やかな日々を過ごしてみてはいかがでしょうか。
毎朝、このコスモグランス南品川 1010を起点に、さまざまな冒険が待っているのです。季節が移ろう中で、街に咲く花々や、木々の葉の色づき、そして地元の人々とのふれあい。これらのすべてが、あなたにとって特別なストーリーの一部となり、思い出のシーンを彩っていくことでしょう。
コスモグランス南品川 1010は、ただの住まいではなく、あなたの人生に新たな章をもたらす、特別な場所です。すべての感覚を研ぎ澄ませ、毎日を映画のように織りなしていく、その一歩をこの地で踏み出してみてください。あなたが織り成す未来の物語が、ここから始まるのです。
バイブルスコア
バイブルスコア: 41.6
条件のいい物件です、引っ越しが2か月以内の場合は仮申し込みを検討すべき物件です。
※バイブルスコア詳細はこちら
バイブルスコアとは独自のAI機械学習技術を利用した物件評価システムで、物件のおすすめ度を示します。最高得点は100点で、スコアが高いほど、よりおすすめの物件と評価されています。
写真
契約条件
| 賃料 | 予想金額:96,000〜116,000円程度 | 管理費 | 予想金額:6,000〜10,000円程度 |
| 礼金 | 非公開(アーカイブ) | 敷金 | 非公開(アーカイブ) |
| フリーレント | なし | 平米数 | 30.24㎡ |
| 間取り | 1K | 大型収納 | |
| 契約期間 |
| 方角 | 南 / 東 |
| 更新料 | 契約形態 | 普通賃貸借契約 | |
| 取引態様 | 媒介 | 内見状況 | 入居中 |
| 入居時期 | 入居中 | SOHO・事務所 | |
| ペット | 間取り内訳 | 洋:10.1 K:2.6 | |
| キャンペーン情報・備考 | 本情報は賃料改定交渉の資料作成、収益物件の利回り試算、周辺エリアや最寄り駅の坪単価分析、次回募集開始時期の予測などにご活用いただけます。 | ||
※「どの不動産に頼めばいいのか分からない」「信頼できる営業マンの話を聞きたい」「一番親切な会社と契約したい」とお悩みの方におすすめなのが「高級賃貸バイブル」です。
高級賃貸バイブルは業界10年以上の熟練スタッフ群がお客様ファーストで対応します。
下記ボタンから、まずは無料でご相談下さい。
※内覧をご希望の際には、どうぞ物件のエントランス前にてお待ち合わせくださいませ。ご内覧後は、同じ場所でお別れとさせていただきます。お客様のご都合に合わせたスムーズなご案内を心がけておりますので、ご質問等がございましたら何なりとお申し付けください。 物件概要
| 物件名 |
| 築年月 |
|
|---|---|---|---|
| 所在地 | |||
| 交通 | |||
| 総戸数 |
| 総階数 |
|
| 構造 |
| ||
地図
物件までの道のりは、「拡大地図を表示」をクリックしてナビ機能をご利用ください。
部屋設備














建物設備

TVモニターホン

エレベーター

オートロック

バイク置場

宅配ボックス

敷地内ゴミ置場

管理人

駐車場平置き

駐車場機械式

駐輪場
コスモグランス南品川の現在募集中のお部屋
- コスモグランス南品川 1302 - 間取り: 2LDK+WIC - 賃料: 23.2万円
















