
| 賃料 | 予想金額:200,000〜220,000円程度 | 管理費 | 予想金額:10,000〜14,000円程度 |
| 礼金/敷金 | 非公開(アーカイブ) | 平米数 | 52.98㎡ |
| 初期費用概算(参考) | 目安:1,004,500〜1,104,500 円 | みなし賃料(月額・参考) | 229,594〜249,594 円 |
| 備考 | 本ページは過去募集のアーカイブです。表示の金額は周辺相場・過去募集を踏まえた参考レンジであり、実際の契約金額・条件ではありません。 | ||
※上記みなし賃料(月額)は仲介手数料割引・無料&キャッシュバックを加味した高級賃貸バイブル限定の金額です。一般的なみなし賃料とは異なります。
【建物ページ】コスモグランス南品川の詳細・最新空室はこちら▶▶選ばれる理由
仲介手数料無料・キャンペーン情報(毎月15名様限定)
〇仲介手数料割引キャンペーン
コスモグランス南品川 1204の口コミ・レビュー
コスモグランス南品川 1204。あなたを迎え入れるのは、まるで静寂の中を漂う高雅な音楽のような存在です。この2LDKの物件は、東京都品川区南品川5に位置し、52.98㎡の専有面積で、あたかも都会のオアシスのようにあなたの生活を彩ります。1204階からの眺望は、西と南の両方に広がり、日が沈む瞬間には、黄金色の光が室内を優しく包み込み、夕暮れ時の情緒を一層際立たせるでしょう。
このマンションは、まる…コスモグランス南品川 1204。あなたを迎え入れるのは、まるで静寂の中を漂う高雅な音楽のような存在です。この2LDKの物件は、東京都品川区南品川5に位置し、52.98㎡の専有面積で、あたかも都会のオアシスのようにあなたの生活を彩ります。1204階からの眺望は、西と南の両方に広がり、日が沈む瞬間には、黄金色の光が室内を優しく包み込み、夕暮れ時の情緒を一層際立たせるでしょう。
このマンションは、まるで新しい旅の始まりを告げる風のように、あなたに語りかけます。入居するその日から、あなたの日常がまるで映画のワンシーンのように、色とりどりの感情に満ちたものになることをお約束します。エレベーターに乗り、オートロックを通過するたび、まるで異世界の扉を開くようなドキドキ感に胸が高鳴ることでしょう。
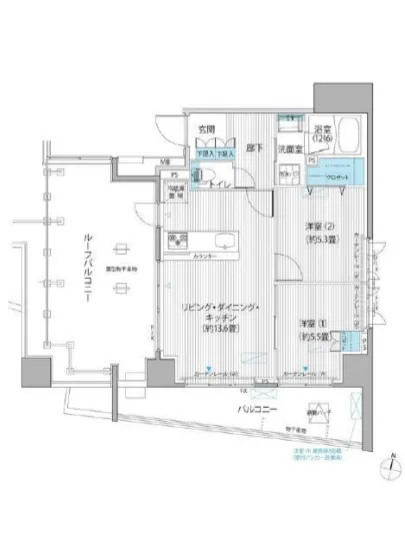
住まいの内部に足を踏み入れると、リビング・ダイニング・キッチン(LDK)13.6帖は、まるであなたを包み込む心地よいシルクのように、温かく迎え入れてくれます。日常のコーヒーの香りが漂い、窓から差し込む光が、木の温もりを感じさせるフローリングに煌めく様子は、まるでキャンバスに描かれた美しい風景画のようです。この空間は、あなたの嗜好やアイデンティティを反映する、無限の可能性を秘めた庭となることでしょう。
そして、隣接する洋室5.5帖と5.3帖は、そっとあなたの疲れを癒し、心を開放するための特別な場所です。どちらの部屋でも、静かな夜に星空を見上げつつ、周囲の喧騒から離れた心の平和を味わうことができます。ここでの生活は、毎日が特別なものであり、生活の中での選択肢も豊富です。あなたのライフスタイルに合わせた私的な空間は、絵画のような美しさをもたらし、インスピレーションに満ちたひとときを提供してくれることでしょう。
また、コスモグランス南品川 1204周辺には、歴史と文化の息吹が感じられる場所が数多く存在します。大井町駅まで徒歩11分の距離には、歴史的な名所や美術館が点在し、アートや文化に触れる機会があなたを待っています。散歩がてら味わう都内の喧騒は、まるで日常に彩りを添えるパレットのようです。ここに住むことで、あなたの日常は、単なる生活ではなく、人生を楽しむための舞台となることでしょう。
ぜひ、このコスモグランス南品川 1204で新たな物語を紡いでください。あなたの人生の主役として、心地よい住環境が日々のエネルギーを与え、感動的なシーンを創出するのです。新たな章を開くその瞬間、あなたの心に響くメロディが流れ始めることでしょう。
このマンションは、まる…コスモグランス南品川 1204。あなたを迎え入れるのは、まるで静寂の中を漂う高雅な音楽のような存在です。この2LDKの物件は、東京都品川区南品川5に位置し、52.98㎡の専有面積で、あたかも都会のオアシスのようにあなたの生活を彩ります。1204階からの眺望は、西と南の両方に広がり、日が沈む瞬間には、黄金色の光が室内を優しく包み込み、夕暮れ時の情緒を一層際立たせるでしょう。
このマンションは、まるで新しい旅の始まりを告げる風のように、あなたに語りかけます。入居するその日から、あなたの日常がまるで映画のワンシーンのように、色とりどりの感情に満ちたものになることをお約束します。エレベーターに乗り、オートロックを通過するたび、まるで異世界の扉を開くようなドキドキ感に胸が高鳴ることでしょう。
住まいの内部に足を踏み入れると、リビング・ダイニング・キッチン(LDK)13.6帖は、まるであなたを包み込む心地よいシルクのように、温かく迎え入れてくれます。日常のコーヒーの香りが漂い、窓から差し込む光が、木の温もりを感じさせるフローリングに煌めく様子は、まるでキャンバスに描かれた美しい風景画のようです。この空間は、あなたの嗜好やアイデンティティを反映する、無限の可能性を秘めた庭となることでしょう。
そして、隣接する洋室5.5帖と5.3帖は、そっとあなたの疲れを癒し、心を開放するための特別な場所です。どちらの部屋でも、静かな夜に星空を見上げつつ、周囲の喧騒から離れた心の平和を味わうことができます。ここでの生活は、毎日が特別なものであり、生活の中での選択肢も豊富です。あなたのライフスタイルに合わせた私的な空間は、絵画のような美しさをもたらし、インスピレーションに満ちたひとときを提供してくれることでしょう。
また、コスモグランス南品川 1204周辺には、歴史と文化の息吹が感じられる場所が数多く存在します。大井町駅まで徒歩11分の距離には、歴史的な名所や美術館が点在し、アートや文化に触れる機会があなたを待っています。散歩がてら味わう都内の喧騒は、まるで日常に彩りを添えるパレットのようです。ここに住むことで、あなたの日常は、単なる生活ではなく、人生を楽しむための舞台となることでしょう。
ぜひ、このコスモグランス南品川 1204で新たな物語を紡いでください。あなたの人生の主役として、心地よい住環境が日々のエネルギーを与え、感動的なシーンを創出するのです。新たな章を開くその瞬間、あなたの心に響くメロディが流れ始めることでしょう。
バイブルスコア
バイブルスコア: 19.5
高級な物件でない場合は割高な物件です。。
※バイブルスコア詳細はこちら
バイブルスコアとは独自のAI機械学習技術を利用した物件評価システムで、物件のおすすめ度を示します。最高得点は100点で、スコアが高いほど、よりおすすめの物件と評価されています。
写真
契約条件
| 賃料 | 予想金額:200,000〜220,000円程度 | 管理費 | 予想金額:10,000〜14,000円程度 |
| 礼金 | 非公開(アーカイブ) | 敷金 | 非公開(アーカイブ) |
| フリーレント | なし | 平米数 | 52.98㎡ |
| 間取り | 2LDK | 大型収納 | |
| 契約期間 |
| 方角 | 西 / 南 |
| 更新料 | 契約形態 | 普通賃貸借契約 | |
| 取引態様 | 媒介 | 内見状況 | 入居中 |
| 入居時期 | 入居中 | SOHO・事務所 | |
| ペット | 間取り内訳 | 洋:5.5 洋:5.3 LDK:13.6 | |
| キャンペーン情報・備考 | 本情報は賃料改定交渉の資料作成、収益物件の利回り試算、周辺エリアや最寄り駅の坪単価分析、次回募集開始時期の予測などにご活用いただけます。 | ||
※「どの不動産に頼めばいいのか分からない」「信頼できる営業マンの話を聞きたい」「一番親切な会社と契約したい」とお悩みの方におすすめなのが「高級賃貸バイブル」です。
高級賃貸バイブルは業界10年以上の熟練スタッフ群がお客様ファーストで対応します。
下記ボタンから、まずは無料でご相談下さい。
※内覧をご希望の際には、どうぞ物件のエントランス前にてお待ち合わせくださいませ。ご内覧後は、同じ場所でお別れとさせていただきます。お客様のご都合に合わせたスムーズなご案内を心がけておりますので、ご質問等がございましたら何なりとお申し付けください。 物件概要
| 物件名 |
| 築年月 |
|
|---|---|---|---|
| 所在地 | |||
| 交通 | |||
| 総戸数 |
| 総階数 |
|
| 構造 |
| ||
地図
物件までの道のりは、「拡大地図を表示」をクリックしてナビ機能をご利用ください。
部屋設備

















建物設備

TVモニターホン

エレベーター

オートロック

バイク置場

宅配ボックス

敷地内ゴミ置場

管理人

駐車場平置き

駐車場機械式

駐輪場
コスモグランス南品川の現在募集中のお部屋
- コスモグランス南品川 1302 - 間取り: 2LDK+WIC - 賃料: 23.2万円
















