
| 賃料 | 予想金額:94,000〜114,000円程度 | 管理費 | 予想金額:8,000〜12,000円程度 |
| 礼金/敷金 | 非公開(アーカイブ) | 平米数 | 22.91㎡ |
| 初期費用概算(参考) | 目安:213,250〜313,250 円 | みなし賃料(月額・参考) | 107,807〜127,807 円 |
| 備考 | 本ページは過去募集のアーカイブです。表示の金額は周辺相場・過去募集を踏まえた参考レンジであり、実際の契約金額・条件ではありません。 | ||
※上記みなし賃料(月額)は仲介手数料割引・無料&キャッシュバックを加味した高級賃貸バイブル限定の金額です。一般的なみなし賃料とは異なります。
【建物ページ】コンシェリア浜松町マスターズヴィラの詳細・最新空室はこちら▶▶選ばれる理由
仲介手数料無料・キャンペーン情報(毎月15名様限定)
〇仲介手数料割引キャンペーン
コンシェリア浜松町マスターズヴィラ 1406の口コミ・レビュー
コンシェリア浜松町マスターズヴィラ 1406は、まるで優雅な舞台の主役のように、その存在感を際立たせています。東京都港区浜松町の静寂と賑わいが交差するこの地で、日々の喧騒を忘れさせる穏やかな住環境が、あなたを迎え入れます。最上階の1406号室からは、南を向いた窓からやわらかな陽光が降り注ぎ、あなたの日常を金色に染めてくれるでしょう。
この物件には、22.91㎡というサイズでありながら、広がりのあ…コンシェリア浜松町マスターズヴィラ 1406は、まるで優雅な舞台の主役のように、その存在感を際立たせています。東京都港区浜松町の静寂と賑わいが交差するこの地で、日々の喧騒を忘れさせる穏やかな住環境が、あなたを迎え入れます。最上階の1406号室からは、南を向いた窓からやわらかな陽光が降り注ぎ、あなたの日常を金色に染めてくれるでしょう。
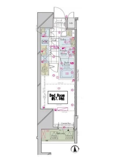
この物件には、22.91㎡というサイズでありながら、広がりのある感覚と洗練されたデザインが息づいています。6.6帖の洋室は、まるで心を解き放つアートギャラリーのように、あなたの独自のスタイルで飾られることを待っています。時に静寂を楽しみ、またある時はパーティーに興じる、そんな多様な生活を可能にするのです。
コンシェリア浜松町マスターズヴィラ 1406は、まるで上質なシャンパンの泡のように、生活を華やかに演出する数々の設備が揃っています。24時間管理の安心感は、まるで守護者が常時寄り添っているかのように、あなたの安全を守ります。オートロックやTVモニターホンは、まるで古の城のようなセキュリティを提供し、プライバシーを大切に守ります。
そして、宅配ボックスや敷地内のゴミ置場は、現代生活の利便性を損なうことなく、あなたの生活を円滑にサポート。駐車場や駐輪場は、外の世界へのアクセスを可能にする道しるべのように感じられます。この居心地の良い空間に身を委ねることで、まるで映画のワンシーンの中にいるかのような感覚を味わえることでしょう。
浜松町の街並みは、歴史と文化が織りなす美しい tapestry(タペストリー)です。近隣には、江戸の情緒が息づく名所や、現代アートの震源地とも言えるスポットが点在しています。小さなカフェで香ばしいコーヒーの香りに包まれながら、文学や芸術に触れる瞬間は、まるでノスタルジックな映画の一コマのようです。散策するたびに新しい発見が待っており、あなたの心を豊かにしてくれるのです。
コンシェリア浜松町マスターズヴィラ 1406での生活は、ただの居住空間ではなく、あなたの人生を彩る舞台なのです。心が躍る瞬間、五感が研ぎ澄まされる日々、そして、未来への期待に満ちた生活が、ここでは待ち受けています。あなたのストーリーの始まりは、ここから始まるのです。生活の一瞬一瞬を大切にし、心地よい空間で、真の豊かさを見つけてください。
この物件には、22.91㎡というサイズでありながら、広がりのあ…コンシェリア浜松町マスターズヴィラ 1406は、まるで優雅な舞台の主役のように、その存在感を際立たせています。東京都港区浜松町の静寂と賑わいが交差するこの地で、日々の喧騒を忘れさせる穏やかな住環境が、あなたを迎え入れます。最上階の1406号室からは、南を向いた窓からやわらかな陽光が降り注ぎ、あなたの日常を金色に染めてくれるでしょう。
この物件には、22.91㎡というサイズでありながら、広がりのある感覚と洗練されたデザインが息づいています。6.6帖の洋室は、まるで心を解き放つアートギャラリーのように、あなたの独自のスタイルで飾られることを待っています。時に静寂を楽しみ、またある時はパーティーに興じる、そんな多様な生活を可能にするのです。
コンシェリア浜松町マスターズヴィラ 1406は、まるで上質なシャンパンの泡のように、生活を華やかに演出する数々の設備が揃っています。24時間管理の安心感は、まるで守護者が常時寄り添っているかのように、あなたの安全を守ります。オートロックやTVモニターホンは、まるで古の城のようなセキュリティを提供し、プライバシーを大切に守ります。
そして、宅配ボックスや敷地内のゴミ置場は、現代生活の利便性を損なうことなく、あなたの生活を円滑にサポート。駐車場や駐輪場は、外の世界へのアクセスを可能にする道しるべのように感じられます。この居心地の良い空間に身を委ねることで、まるで映画のワンシーンの中にいるかのような感覚を味わえることでしょう。
浜松町の街並みは、歴史と文化が織りなす美しい tapestry(タペストリー)です。近隣には、江戸の情緒が息づく名所や、現代アートの震源地とも言えるスポットが点在しています。小さなカフェで香ばしいコーヒーの香りに包まれながら、文学や芸術に触れる瞬間は、まるでノスタルジックな映画の一コマのようです。散策するたびに新しい発見が待っており、あなたの心を豊かにしてくれるのです。
コンシェリア浜松町マスターズヴィラ 1406での生活は、ただの居住空間ではなく、あなたの人生を彩る舞台なのです。心が躍る瞬間、五感が研ぎ澄まされる日々、そして、未来への期待に満ちた生活が、ここでは待ち受けています。あなたのストーリーの始まりは、ここから始まるのです。生活の一瞬一瞬を大切にし、心地よい空間で、真の豊かさを見つけてください。
バイブルスコア
バイブルスコア: 26.1
平均的なスコアです。
※バイブルスコア詳細はこちら
バイブルスコアとは独自のAI機械学習技術を利用した物件評価システムで、物件のおすすめ度を示します。最高得点は100点で、スコアが高いほど、よりおすすめの物件と評価されています。
写真
契約条件
| 賃料 | 予想金額:94,000〜114,000円程度 | 管理費 | 予想金額:8,000〜12,000円程度 |
| 礼金 | 非公開(アーカイブ) | 敷金 | 非公開(アーカイブ) |
| フリーレント | なし | 平米数 | 22.91㎡ |
| 間取り | 1K | 大型収納 | |
| 契約期間 |
| 方角 | 南 |
| 更新料 | 契約形態 | 普通賃貸借契約 | |
| 取引態様 | 媒介 | 内見状況 | 入居中 |
| 入居時期 | 入居中 | SOHO・事務所 | |
| ペット | ペット可 | 間取り内訳 | 洋:6.6 |
| キャンペーン情報・備考 | 本情報は賃料改定交渉の資料作成、収益物件の利回り試算、周辺エリアや最寄り駅の坪単価分析、次回募集開始時期の予測などにご活用いただけます。 | ||
※「どの不動産に頼めばいいのか分からない」「信頼できる営業マンの話を聞きたい」「一番親切な会社と契約したい」とお悩みの方におすすめなのが「高級賃貸バイブル」です。
高級賃貸バイブルは業界10年以上の熟練スタッフ群がお客様ファーストで対応します。
下記ボタンから、まずは無料でご相談下さい。
※内覧をご希望の際には、どうぞ物件のエントランス前にてお待ち合わせくださいませ。ご内覧後は、同じ場所でお別れとさせていただきます。お客様のご都合に合わせたスムーズなご案内を心がけておりますので、ご質問等がございましたら何なりとお申し付けください。 物件概要
| 物件名 |
| 築年月 |
|
|---|---|---|---|
| 所在地 | |||
| 交通 | |||
| 総戸数 |
| 総階数 |
|
| 構造 |
| ||
地図
物件までの道のりは、「拡大地図を表示」をクリックしてナビ機能をご利用ください。
部屋設備
















建物設備

24時間管理

TVモニターホン

エレベーター

オートロック

宅配ボックス

敷地内ゴミ置場

管理人

駐車場平置き

駐車場機械式

駐輪場
コンシェリア浜松町マスターズヴィラの現在募集中のお部屋
- No rooms found for this property.




























