
| 賃料 | 予想金額:104,000〜124,000円程度 | 管理費 | 予想金額:8,000〜12,000円程度 |
| 礼金/敷金 | 非公開(アーカイブ) | 平米数 | 27.35㎡ |
| 初期費用概算(参考) | 目安:455,500〜555,500 円 | みなし賃料(月額・参考) | 122,156〜142,156 円 |
| 備考 | 本ページは過去募集のアーカイブです。表示の金額は周辺相場・過去募集を踏まえた参考レンジであり、実際の契約金額・条件ではありません。 | ||
※上記みなし賃料(月額)は仲介手数料割引・無料&キャッシュバックを加味した高級賃貸バイブル限定の金額です。一般的なみなし賃料とは異なります。
【建物ページ】セジョリ西麻布の詳細・最新空室はこちら▶▶選ばれる理由
仲介手数料無料・キャンペーン情報(毎月15名様限定)
〇仲介手数料割引キャンペーン
セジョリ西麻布 502の口コミ・レビュー
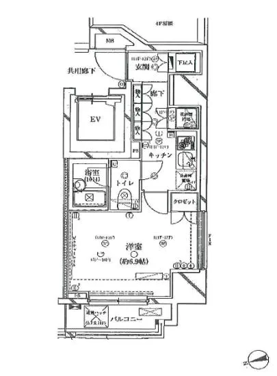
セジョリ西麻布 502。この物件名は、まるで都会のオアシスとも言える存在感を放つ、特別な一室を意味しています。502号室は、心躍るような都市の喧騒から少し離れた静寂の中にありながら、洗練された生活を約束する場所です。27.35㎡の専有面積は、まるであなた自身を包み込むような温もりを提供し、心が安らぐ空間へと変わるのです。
想像してみてください。日が西に傾く頃、優しい光が窓から差し込み、洋室6.9…セジョリ西麻布 502。この物件名は、まるで都会のオアシスとも言える存在感を放つ、特別な一室を意味しています。502号室は、心躍るような都市の喧騒から少し離れた静寂の中にありながら、洗練された生活を約束する場所です。27.35㎡の専有面積は、まるであなた自身を包み込むような温もりを提供し、心が安らぐ空間へと変わるのです。
想像してみてください。日が西に傾く頃、優しい光が窓から差し込み、洋室6.9帖の空間を柔らかく照らします。その光は、まるで過去の物語を語りかけるように、穏やかな日常の一コマを演出してくれます。あなたはその中で、コーヒーの香りが漂うキッチンで静かに朝食を楽しむ贅沢を味わうことができるのです。
このセジョリ西麻布 502という空間は、ただの住まいではなく、あなたの生活の舞台です。エレベーターで軽やかに上がり、オートロックを通じて安心感の中に身を置くことができるこの特権。それは、まるであなただけの秘密の隠れ家のようです。周囲にはお洒落なカフェやレストランが点在し、文化の香りが漂う西麻布の街並みを散策するたびに、新たなインスピレーションを得ることができるでしょう。
そして、この物件にはTVモニターホンも装備されており、来訪者を確認しながらも、まるで自分の城を守る王のような気分に浸れることも魅力です。さらに、宅配ボックスが設置されていることで、生活のリズムを乱すことなく、大切な荷物を安心して受け取ることができるのです。これはあなただけの贅沢な時間の始まりを告げるサインと言えるでしょう。
周囲の街は、歴史や文化に彩られており、古き良き日本と現代が融合した不思議な空間を生み出しています。東京メトロ日比谷線広尾駅から徒歩10分、あなたは美術館やギャラリーとの出会いを楽しむことができるでしょう。日常の中に、アートが溶け込む瞬間を体験することができるのです。
セジョリ西麻布 502は、ただの賃貸物件ではなく、あなたの生活を豊かにするための舞台装置です。毎朝目覚め、毎晩その静寂に包まれる体験は、まるで映画の一シーンのように美しく、心に残る日々を創造するでしょう。あなたの物語がここから始まります。この特別な場所で、心地よい生活を手に入れてみませんか。あなたの新たな旅立ちを、心より期待しています。
想像してみてください。日が西に傾く頃、優しい光が窓から差し込み、洋室6.9…セジョリ西麻布 502。この物件名は、まるで都会のオアシスとも言える存在感を放つ、特別な一室を意味しています。502号室は、心躍るような都市の喧騒から少し離れた静寂の中にありながら、洗練された生活を約束する場所です。27.35㎡の専有面積は、まるであなた自身を包み込むような温もりを提供し、心が安らぐ空間へと変わるのです。
想像してみてください。日が西に傾く頃、優しい光が窓から差し込み、洋室6.9帖の空間を柔らかく照らします。その光は、まるで過去の物語を語りかけるように、穏やかな日常の一コマを演出してくれます。あなたはその中で、コーヒーの香りが漂うキッチンで静かに朝食を楽しむ贅沢を味わうことができるのです。
このセジョリ西麻布 502という空間は、ただの住まいではなく、あなたの生活の舞台です。エレベーターで軽やかに上がり、オートロックを通じて安心感の中に身を置くことができるこの特権。それは、まるであなただけの秘密の隠れ家のようです。周囲にはお洒落なカフェやレストランが点在し、文化の香りが漂う西麻布の街並みを散策するたびに、新たなインスピレーションを得ることができるでしょう。
そして、この物件にはTVモニターホンも装備されており、来訪者を確認しながらも、まるで自分の城を守る王のような気分に浸れることも魅力です。さらに、宅配ボックスが設置されていることで、生活のリズムを乱すことなく、大切な荷物を安心して受け取ることができるのです。これはあなただけの贅沢な時間の始まりを告げるサインと言えるでしょう。
周囲の街は、歴史や文化に彩られており、古き良き日本と現代が融合した不思議な空間を生み出しています。東京メトロ日比谷線広尾駅から徒歩10分、あなたは美術館やギャラリーとの出会いを楽しむことができるでしょう。日常の中に、アートが溶け込む瞬間を体験することができるのです。
セジョリ西麻布 502は、ただの賃貸物件ではなく、あなたの生活を豊かにするための舞台装置です。毎朝目覚め、毎晩その静寂に包まれる体験は、まるで映画の一シーンのように美しく、心に残る日々を創造するでしょう。あなたの物語がここから始まります。この特別な場所で、心地よい生活を手に入れてみませんか。あなたの新たな旅立ちを、心より期待しています。
バイブルスコア
バイブルスコア: 29.7
平均的なスコアです。
※バイブルスコア詳細はこちら
バイブルスコアとは独自のAI機械学習技術を利用した物件評価システムで、物件のおすすめ度を示します。最高得点は100点で、スコアが高いほど、よりおすすめの物件と評価されています。
写真
契約条件
| 賃料 | 予想金額:104,000〜124,000円程度 | 管理費 | 予想金額:8,000〜12,000円程度 |
| 礼金 | 非公開(アーカイブ) | 敷金 | 非公開(アーカイブ) |
| フリーレント | なし | 平米数 | 27.35㎡ |
| 間取り | 1K | 大型収納 | |
| 契約期間 |
| 方角 | 西 |
| 更新料 | 契約形態 | 普通賃貸借契約 | |
| 取引態様 | 媒介 | 内見状況 | 入居中 |
| 入居時期 | 入居中 | SOHO・事務所 | |
| ペット | ペット可 | 間取り内訳 | 洋室6.9帖 |
| キャンペーン情報・備考 | 本情報は賃料改定交渉の資料作成、収益物件の利回り試算、周辺エリアや最寄り駅の坪単価分析、次回募集開始時期の予測などにご活用いただけます。 | ||
※「どの不動産に頼めばいいのか分からない」「信頼できる営業マンの話を聞きたい」「一番親切な会社と契約したい」とお悩みの方におすすめなのが「高級賃貸バイブル」です。
高級賃貸バイブルは業界10年以上の熟練スタッフ群がお客様ファーストで対応します。
下記ボタンから、まずは無料でご相談下さい。
※内覧をご希望の際には、どうぞ物件のエントランス前にてお待ち合わせくださいませ。ご内覧後は、同じ場所でお別れとさせていただきます。お客様のご都合に合わせたスムーズなご案内を心がけておりますので、ご質問等がございましたら何なりとお申し付けください。 物件概要
| 物件名 |
| 築年月 |
|
|---|---|---|---|
| 所在地 | |||
| 交通 | |||
| 総戸数 |
| 総階数 |
|
| 構造 |
| ||
地図
物件までの道のりは、「拡大地図を表示」をクリックしてナビ機能をご利用ください。
部屋設備












建物設備

TVモニターホン

エレベーター

オートロック

宅配ボックス

敷地内ゴミ置場

駐輪場
セジョリ西麻布の現在募集中のお部屋
- No rooms found for this property.






























