
| 賃料 | 予想金額:320,000〜340,000円程度 | 管理費 | 予想金額:18,000〜22,000円程度 |
| 礼金/敷金 | 非公開(アーカイブ) | 平米数 | 72.47㎡ |
| 初期費用概算(参考) | 目安:759,000〜859,000 円 | みなし賃料(月額・参考) | 349,979〜369,979 円 |
| 備考 | 本ページは過去募集のアーカイブです。表示の金額は周辺相場・過去募集を踏まえた参考レンジであり、実際の契約金額・条件ではありません。 | ||
※上記みなし賃料(月額)は仲介手数料割引・無料&キャッシュバックを加味した高級賃貸バイブル限定の金額です。一般的なみなし賃料とは異なります。
【建物ページ】グランスイート四谷エクシアの詳細・最新空室はこちら▶▶選ばれる理由
仲介手数料無料・キャンペーン情報(毎月15名様限定)
〇引っ越しお祝い金66000円プレゼント(キャッシュバック)
〇仲介手数料無料キャンペーン
グランスイート四谷エクシア 301の口コミ・レビュー
グランスイート四谷エクシア 301は、あなたの生活に優雅な舞台を提供するために存在しています。この物件は、ただの住所以上の意味を持ち、まるであなたを温かく迎え入れる名作の一篇のようです。301号室は、広々とした73㎡の空間を贅沢に使い、3つの洋室と開放感あふれるLDKが、快適な生活の舞台を演出します。
この格別な住まいは、明るい西向きの窓から、ゆったりと流れる午後の光を取り込み、室内を幻想的な煌…グランスイート四谷エクシア 301は、あなたの生活に優雅な舞台を提供するために存在しています。この物件は、ただの住所以上の意味を持ち、まるであなたを温かく迎え入れる名作の一篇のようです。301号室は、広々とした73㎡の空間を贅沢に使い、3つの洋室と開放感あふれるLDKが、快適な生活の舞台を演出します。
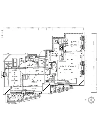
この格別な住まいは、明るい西向きの窓から、ゆったりと流れる午後の光を取り込み、室内を幻想的な煌めきで彩ります。あなたがクロゼットにしまったお気に入りのコートや本を取り出すたびに、心が躍る大切な瞬間が生まれることでしょう。洋室6.5帖、5帖、4.5帖のそれぞれの空間は、あなたの個性を反映したシンフォニーを奏でる舞台装置として機能し、贅沢なプライベートを約束します。
リビングダイニングは、落ち着きを求めるあなたに最適な12.2帖という広さを誇り、豊かな家族の会話や友人との楽しい時間を育む場所です。食卓に並ぶ料理の香りが漂い、ふんわりとしたパンの甘い香りや新鮮な野菜の青々とした香りが、あなたの食生活を豊かに彩ります。毎日が映画のワンシーンのように、思い出が積み重なっていくことでしょう。
キッチンはまた、料理の魔法がかかる場所。3.9帖のスペースで、あなたの創造力を自由に羽ばたかせ、色とりどりの料理を生み出すことができます。誰もが羨むディナーを演出するための道具は、ここから始まります。家族や友人と囲むテーブルは、笑顔の花が咲き誇る場所になることでしょう。
グランスイート四谷エクシア 301は、単なる生活空間ではありません。オートロックやTVモニターホンなどの先進設備も整っており、安心感に包まれた日常が広がります。デザイナーズの美しい外観は、あなたのセンスを引き立て、訪れる人々にとって特別な場所であることを強調します。宅配ボックスや敷地内ゴミ置き場など、生活の利便性も見逃せません。周囲には四谷の歴史的な街並みや、文化的な香りが漂い、その中で生活することが、まるでアートの一部になったかのような感覚をもたらします。
最寄りの四谷三丁目駅からは、1分でアクセスできるという利便性も、優雅な生活を後押しします。通勤や街へのお出かけも、あっという間に実現し、都市の喧騒を感じながらも、穏やかな時間が流れる場所へとあなたを導いてくれます。
さあ、グランスイート四谷エクシア 301で、日常という名のキャンバスに、あなた自身の色を加えてみませんか。ここは、あなたの人生の新しい章が始まる場所。あなたの物語が、この贅沢な空間で紡がれていくことを、心から楽しみにしています。
この格別な住まいは、明るい西向きの窓から、ゆったりと流れる午後の光を取り込み、室内を幻想的な煌…グランスイート四谷エクシア 301は、あなたの生活に優雅な舞台を提供するために存在しています。この物件は、ただの住所以上の意味を持ち、まるであなたを温かく迎え入れる名作の一篇のようです。301号室は、広々とした73㎡の空間を贅沢に使い、3つの洋室と開放感あふれるLDKが、快適な生活の舞台を演出します。
この格別な住まいは、明るい西向きの窓から、ゆったりと流れる午後の光を取り込み、室内を幻想的な煌めきで彩ります。あなたがクロゼットにしまったお気に入りのコートや本を取り出すたびに、心が躍る大切な瞬間が生まれることでしょう。洋室6.5帖、5帖、4.5帖のそれぞれの空間は、あなたの個性を反映したシンフォニーを奏でる舞台装置として機能し、贅沢なプライベートを約束します。
リビングダイニングは、落ち着きを求めるあなたに最適な12.2帖という広さを誇り、豊かな家族の会話や友人との楽しい時間を育む場所です。食卓に並ぶ料理の香りが漂い、ふんわりとしたパンの甘い香りや新鮮な野菜の青々とした香りが、あなたの食生活を豊かに彩ります。毎日が映画のワンシーンのように、思い出が積み重なっていくことでしょう。
キッチンはまた、料理の魔法がかかる場所。3.9帖のスペースで、あなたの創造力を自由に羽ばたかせ、色とりどりの料理を生み出すことができます。誰もが羨むディナーを演出するための道具は、ここから始まります。家族や友人と囲むテーブルは、笑顔の花が咲き誇る場所になることでしょう。
グランスイート四谷エクシア 301は、単なる生活空間ではありません。オートロックやTVモニターホンなどの先進設備も整っており、安心感に包まれた日常が広がります。デザイナーズの美しい外観は、あなたのセンスを引き立て、訪れる人々にとって特別な場所であることを強調します。宅配ボックスや敷地内ゴミ置き場など、生活の利便性も見逃せません。周囲には四谷の歴史的な街並みや、文化的な香りが漂い、その中で生活することが、まるでアートの一部になったかのような感覚をもたらします。
最寄りの四谷三丁目駅からは、1分でアクセスできるという利便性も、優雅な生活を後押しします。通勤や街へのお出かけも、あっという間に実現し、都市の喧騒を感じながらも、穏やかな時間が流れる場所へとあなたを導いてくれます。
さあ、グランスイート四谷エクシア 301で、日常という名のキャンバスに、あなた自身の色を加えてみませんか。ここは、あなたの人生の新しい章が始まる場所。あなたの物語が、この贅沢な空間で紡がれていくことを、心から楽しみにしています。
バイブルスコア
バイブルスコア: 45.9
条件のいい物件です、引っ越しが2か月以内の場合は仮申し込みを検討すべき物件です。
※バイブルスコア詳細はこちら
バイブルスコアとは独自のAI機械学習技術を利用した物件評価システムで、物件のおすすめ度を示します。最高得点は100点で、スコアが高いほど、よりおすすめの物件と評価されています。
写真
契約条件
| 賃料 | 予想金額:320,000〜340,000円程度 | 管理費 | 予想金額:18,000〜22,000円程度 |
| 礼金 | 非公開(アーカイブ) | 敷金 | 非公開(アーカイブ) |
| フリーレント | なし | 平米数 | 72.47㎡ |
| 間取り | 3LDK | 大型収納 | WIC |
| 契約期間 | 2年 | 方角 | 西 |
| 更新料 | 1ヶ月 | 契約形態 | 普通賃貸借契約 |
| 取引態様 | 媒介 | 内見状況 | 入居中 |
| 入居時期 | 入居中 | SOHO・事務所 | 不可 |
| ペット | 不可 | 間取り内訳 | 洋:6.5 洋:5 洋:4.5 LD:12.2 K:3.9 |
| キャンペーン情報・備考 | 本情報は賃料改定交渉の資料作成、収益物件の利回り試算、周辺エリアや最寄り駅の坪単価分析、次回募集開始時期の予測などにご活用いただけます。 | ||
※「どの不動産に頼めばいいのか分からない」「信頼できる営業マンの話を聞きたい」「一番親切な会社と契約したい」とお悩みの方におすすめなのが「高級賃貸バイブル」です。
高級賃貸バイブルは業界10年以上の熟練スタッフ群がお客様ファーストで対応します。
下記ボタンから、まずは無料でご相談下さい。
※内覧をご希望の際には、どうぞ物件のエントランス前にてお待ち合わせくださいませ。ご内覧後は、同じ場所でお別れとさせていただきます。お客様のご都合に合わせたスムーズなご案内を心がけておりますので、ご質問等がございましたら何なりとお申し付けください。 物件概要
| 物件名 |
| 築年月 |
|
|---|---|---|---|
| 所在地 | |||
| 交通 | |||
| 総戸数 |
| 総階数 | |
| 構造 |
| ||
地図
物件までの道のりは、「拡大地図を表示」をクリックしてナビ機能をご利用ください。
部屋設備















建物設備

TVモニターホン

エレベーター

オートロック

宅配ボックス

敷地内ゴミ置場

管理人

駐輪場
グランスイート四谷エクシアの現在募集中のお部屋
- No rooms found for this property.













