
| 賃料 | 予想金額:340,000〜360,000円程度 | 管理費 | 予想金額:0〜2,000円程度 |
| 礼金/敷金 | 非公開(アーカイブ) | 平米数 | 58.92㎡ |
| 初期費用概算(参考) | 目安:1,966,500〜2,066,500 円 | みなし賃料(月額・参考) | 374,719〜394,719 円 |
| 備考 | 本ページは過去募集のアーカイブです。表示の金額は周辺相場・過去募集を踏まえた参考レンジであり、実際の契約金額・条件ではありません。 | ||
※上記みなし賃料(月額)は仲介手数料割引・無料&キャッシュバックを加味した高級賃貸バイブル限定の金額です。一般的なみなし賃料とは異なります。
【建物ページ】ジオ四谷三栄町の詳細・最新空室はこちら▶▶選ばれる理由
仲介手数料無料・キャンペーン情報(毎月15名様限定)
〇仲介手数料割引キャンペーン
ジオ四谷三栄町 10階 58.92㎡の口コミ・レビュー
ジオ四谷三栄町 10階 58.92㎡。一歩足を踏み入れた瞬間、この高級賃貸物件の門があなたを新たな物語へといざないます。10階という高みからは、都市の喧騒を見下ろしながら、日常生活の中に旅のエッセンスをもたらす眺望が待っています。南東と北東の方角から差し込む陽光は、まるで金色の羽根で包まれた宝石のように部屋を照らし、生活のひとコマをまさに映画のワンシーンのように演出してくれることでしょう。
住ま…ジオ四谷三栄町 10階 58.92㎡。一歩足を踏み入れた瞬間、この高級賃貸物件の門があなたを新たな物語へといざないます。10階という高みからは、都市の喧騒を見下ろしながら、日常生活の中に旅のエッセンスをもたらす眺望が待っています。南東と北東の方角から差し込む陽光は、まるで金色の羽根で包まれた宝石のように部屋を照らし、生活のひとコマをまさに映画のワンシーンのように演出してくれることでしょう。
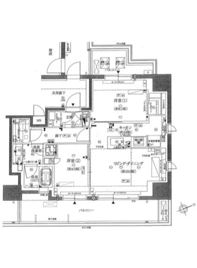
住まいの心臓部とも言えるLDKは10帖の空間が広がり、柔らかな光が満ちるこの場で朝食を楽しむひとときや、大切な友人を招いてのディナータイムは、心の栄養となることでしょう。厨房の3.6帖には、精緻な料理の香りが漂い、スパイスを心地よく刺激することで、料理の腕も自然と磨かれます。洗練された空間が、あなたの感性を引き出し、料理の楽しさをさらに深めてくれるはずです。
ジオ四谷三栄町は、ただの住まいではありません。それ自身が一つのアート作品であり、住む人々の物語を紡ぎます。洋室はそれぞれ6.1帖、4.5帖の間取りで、心の拠り所として、自分だけの静けさを享受できる空間を提供します。ここでは、夢の中の物語が現実となり、心ゆくまで思索に耽ることが許されるのです。優雅なインテリアに取り囲まれた夜、一杯のワインがあなたの手元にあり、静寂の中で感じる豊かさの瞬間は、至福のひとときとなるでしょう。
また、ジオ四谷三栄町の周辺には歴史と文化が息づいています。静かな街並みに溶け込み、隠れたカフェやアートギャラリーが点在し、時には散策が新しい発見をもたらすことでしょう。東京メトロ丸ノ内線四谷三丁目駅から徒歩6分という立地は、利便性を保ちながらも、周囲の穏やかな雰囲気に包まれています。降り注ぐ日差しの中、街を歩けば、風に乗った木々のささやきが耳を撫で、時折感じる花の香りが心を満たします。
24時間管理による安心感はいかがでしょうか。オートロックやTVモニターホン、宅配ボックス、駐車場などの設備が揃い、生活の利便性を一層高めています。バイク置場や駐輪場も完備されており、あなたのライフスタイルに寄り添う形で日常をサポートします。
ジオ四谷三栄町 10階 58.92㎡という空間は、あなた自身の物語を編み上げるためのキャンバスです。心踊る新しい日々を、この特別な場所で始めてみませんか。あなたを待っているのは、ただの住まいではなく、人生の豊かさを体現する場所です。ここでの生活が、まるで一枚の美しい絵画のように、あなたの心に刻まれることでしょう。
住ま…ジオ四谷三栄町 10階 58.92㎡。一歩足を踏み入れた瞬間、この高級賃貸物件の門があなたを新たな物語へといざないます。10階という高みからは、都市の喧騒を見下ろしながら、日常生活の中に旅のエッセンスをもたらす眺望が待っています。南東と北東の方角から差し込む陽光は、まるで金色の羽根で包まれた宝石のように部屋を照らし、生活のひとコマをまさに映画のワンシーンのように演出してくれることでしょう。
住まいの心臓部とも言えるLDKは10帖の空間が広がり、柔らかな光が満ちるこの場で朝食を楽しむひとときや、大切な友人を招いてのディナータイムは、心の栄養となることでしょう。厨房の3.6帖には、精緻な料理の香りが漂い、スパイスを心地よく刺激することで、料理の腕も自然と磨かれます。洗練された空間が、あなたの感性を引き出し、料理の楽しさをさらに深めてくれるはずです。
ジオ四谷三栄町は、ただの住まいではありません。それ自身が一つのアート作品であり、住む人々の物語を紡ぎます。洋室はそれぞれ6.1帖、4.5帖の間取りで、心の拠り所として、自分だけの静けさを享受できる空間を提供します。ここでは、夢の中の物語が現実となり、心ゆくまで思索に耽ることが許されるのです。優雅なインテリアに取り囲まれた夜、一杯のワインがあなたの手元にあり、静寂の中で感じる豊かさの瞬間は、至福のひとときとなるでしょう。
また、ジオ四谷三栄町の周辺には歴史と文化が息づいています。静かな街並みに溶け込み、隠れたカフェやアートギャラリーが点在し、時には散策が新しい発見をもたらすことでしょう。東京メトロ丸ノ内線四谷三丁目駅から徒歩6分という立地は、利便性を保ちながらも、周囲の穏やかな雰囲気に包まれています。降り注ぐ日差しの中、街を歩けば、風に乗った木々のささやきが耳を撫で、時折感じる花の香りが心を満たします。
24時間管理による安心感はいかがでしょうか。オートロックやTVモニターホン、宅配ボックス、駐車場などの設備が揃い、生活の利便性を一層高めています。バイク置場や駐輪場も完備されており、あなたのライフスタイルに寄り添う形で日常をサポートします。
ジオ四谷三栄町 10階 58.92㎡という空間は、あなた自身の物語を編み上げるためのキャンバスです。心踊る新しい日々を、この特別な場所で始めてみませんか。あなたを待っているのは、ただの住まいではなく、人生の豊かさを体現する場所です。ここでの生活が、まるで一枚の美しい絵画のように、あなたの心に刻まれることでしょう。
バイブルスコア
バイブルスコア: 8.8
高級な物件でない場合は割高な物件です。。
※バイブルスコア詳細はこちら
バイブルスコアとは独自のAI機械学習技術を利用した物件評価システムで、物件のおすすめ度を示します。最高得点は100点で、スコアが高いほど、よりおすすめの物件と評価されています。
写真
契約条件
| 賃料 | 予想金額:340,000〜360,000円程度 | 管理費 | 予想金額:0〜2,000円程度 |
| 礼金 | 非公開(アーカイブ) | 敷金 | 非公開(アーカイブ) |
| フリーレント | なし | 平米数 | 58.92㎡ |
| 間取り | 2LDK | 大型収納 | WIC+SIC |
| 契約期間 |
| 方角 | 南東 / 北東 |
| 更新料 | 契約形態 | 普通賃貸借契約 | |
| 取引態様 | 媒介 | 内見状況 | 入居中 |
| 入居時期 | 入居中 | SOHO・事務所 | |
| ペット | 間取り内訳 | 洋:6.1 洋:4.5 LD:10 K:3.6 | |
| キャンペーン情報・備考 | 本情報は賃料改定交渉の資料作成、収益物件の利回り試算、周辺エリアや最寄り駅の坪単価分析、次回募集開始時期の予測などにご活用いただけます。 | ||
※「どの不動産に頼めばいいのか分からない」「信頼できる営業マンの話を聞きたい」「一番親切な会社と契約したい」とお悩みの方におすすめなのが「高級賃貸バイブル」です。
高級賃貸バイブルは業界10年以上の熟練スタッフ群がお客様ファーストで対応します。
下記ボタンから、まずは無料でご相談下さい。
※内覧をご希望の際には、どうぞ物件のエントランス前にてお待ち合わせくださいませ。ご内覧後は、同じ場所でお別れとさせていただきます。お客様のご都合に合わせたスムーズなご案内を心がけておりますので、ご質問等がございましたら何なりとお申し付けください。 物件概要
| 物件名 |
| 築年月 |
|
|---|---|---|---|
| 所在地 | |||
| 交通 | |||
| 総戸数 |
| 総階数 |
|
| 構造 |
| ||
地図
物件までの道のりは、「拡大地図を表示」をクリックしてナビ機能をご利用ください。
部屋設備




















建物設備

24時間管理

TVモニターホン

エレベーター

オートロック

バイク置場

宅配ボックス

敷地内ゴミ置場

管理人

駐車場平置き

駐車場機械式

駐輪場
ジオ四谷三栄町の現在募集中のお部屋
- No rooms found for this property.



















