
| 賃料 | 予想金額:118,000〜138,000円程度 | 管理費 | 予想金額:6,000〜10,000円程度 |
| 礼金/敷金 | 非公開(アーカイブ) | 平米数 | 30.42㎡ |
| 初期費用概算(参考) | 目安:404,400〜504,400 円 | みなし賃料(月額・参考) | 132,800〜152,800 円 |
| 備考 | 本ページは過去募集のアーカイブです。表示の金額は周辺相場・過去募集を踏まえた参考レンジであり、実際の契約金額・条件ではありません。 | ||
※上記みなし賃料(月額)は仲介手数料割引・無料&キャッシュバックを加味した高級賃貸バイブル限定の金額です。一般的なみなし賃料とは異なります。
【建物ページ】ズーム新宿西落合の詳細・最新空室はこちら▶▶選ばれる理由
仲介手数料無料・キャンペーン情報(毎月15名様限定)
〇引っ越しお祝い金25600円プレゼント(キャッシュバック)
〇仲介手数料無料キャンペーン
ZOOM新宿西落合 6階 30.42㎡の口コミ・レビュー
この物件は、あなたのためにデザインされたように感じられ、まるで昔からの友のように親しみを持って迎え入れてくれることでしょう。エレベーターで6階まで上がり、重厚感のある扉を開ける瞬間、空気がきらりと輝くのを感じるかもしれません。TVモニターホンやオートロックの設備が、まるで貴族の城の守りを担うように、あなたの大切なプライバシーを守ってくれます。
目を閉じて耳を澄ませば、都会の喧騒を一瞬忘れ、静けさに包まれることでしょう。バルコニーからは、近隣の緑豊かな公園や、うっすらと見える新宿の高層ビル群を望むことができ、まるで時間が止まったかのような感覚を覚えます。その瞬間、思わず深呼吸をし、心に刻み込むのです。
さらに、ZOOM新宿西落合の周辺は、古い歴史と新しい文化が見事に交錯する、まるで都会の宝石箱のような場所。徒歩数分の距離にある落合南長崎駅は、あなたを東京の心臓部、新宿へと誘います。美術館や劇場、乃木坂や表参道の洗練された街並みへも、足を運ぶことができる絶好の立地です。
敷地内には、宅配ボックスも完備されており、忙しい日常の中でも自分らしい生活を維持するためのサポートが整っています。駐車場も平置きと機械式を用意し、バイク置場や駐輪場も設けられているため、ライフスタイルに合わせた自由な移動が可能です。まるで自分だけの小宇宙を作り上げるかの如く、あなたの生活をサポートしてくれるでしょう。
生活の中の小さな喜びを大切にし、ZOOM新宿西落合での新たな生活を始めることで、まるで映画のワンシーンのような日々が待っていることを、あなた自身で感じてみてはいかがでしょうか。ここでの生活は、きっと豊かな色彩と感動に満ちたものとなり、あなたの人生の新しい章を開く鍵となるのです。
バイブルスコア
バイブルスコア: 50.3
条件のいい物件です、引っ越しが2か月以内の場合は仮申し込みを検討すべき物件です。
このお部屋は、現在ご入居中のため空室情報はございません。ただし、将来的に募集が開始される際、バイブルスコアにおいて非常に高い評価が期待されます。特にご興味をお持ちの方は、今のうちにブックマークやお気に入りに登録していただくと、募集開始のお知らせをすぐに受け取ることができます。是非ともご検討くださいませ。
※バイブルスコア詳細はこちら
バイブルスコアとは独自のAI機械学習技術を利用した物件評価システムで、物件のおすすめ度を示します。最高得点は100点で、スコアが高いほど、よりおすすめの物件と評価されています。
写真
現在写真が登録されていません契約条件
| 賃料 | 予想金額:118,000〜138,000円程度 | 管理費 | 予想金額:6,000〜10,000円程度 |
| 礼金 | 非公開(アーカイブ) | 敷金 | 非公開(アーカイブ) |
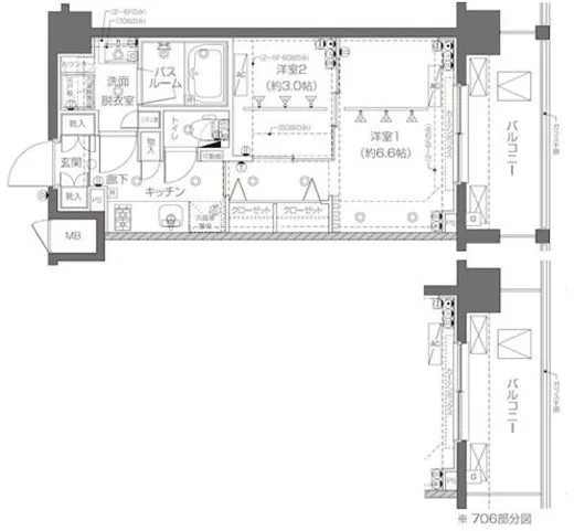
| フリーレント | なし | 平米数 | 30.42㎡ |
| 間取り | 2K | 大型収納 | なし |
| 契約期間 | 2年 | 方角 | 東 |
| 更新料 | 1ヶ月 | 契約形態 | 普通賃貸借契約 |
| 取引態様 | 媒介 | 内見状況 | 入居中 |
| 入居時期 | 入居中 | SOHO・事務所 | 不可 |
| ペット | 可 | 間取り内訳 | 洋室6.6帖 洋室3帖 |
| キャンペーン情報・備考 | 本情報は賃料改定交渉の資料作成、収益物件の利回り試算、周辺エリアや最寄り駅の坪単価分析、次回募集開始時期の予測などにご活用いただけます。 | ||
※「どの不動産に頼めばいいのか分からない」「信頼できる営業マンの話を聞きたい」「一番親切な会社と契約したい」とお悩みの方におすすめなのが「高級賃貸バイブル」です。
高級賃貸バイブルは業界10年以上の熟練スタッフ群がお客様ファーストで対応します。
下記ボタンから、まずは無料でご相談下さい。
※内覧をご希望の際には、どうぞ物件のエントランス前にてお待ち合わせくださいませ。ご内覧後は、同じ場所でお別れとさせていただきます。お客様のご都合に合わせたスムーズなご案内を心がけておりますので、ご質問等がございましたら何なりとお申し付けください。 物件概要
| 物件名 |
| 築年月 |
|
|---|---|---|---|
| 所在地 | |||
| 交通 | |||
| 総戸数 |
| 総階数 |
|
| 構造 |
| ||
地図
物件までの道のりは、「拡大地図を表示」をクリックしてナビ機能をご利用ください。
部屋設備









建物設備

TVモニターホン

エレベーター

オートロック

バイク置場

宅配ボックス

敷地内ゴミ置場

管理人

駐車場平置き

駐車場機械式

駐輪場
ズーム新宿西落合の現在募集中のお部屋
- No rooms found for this property.
