
| 賃料 | 予想金額:155,000〜175,000円程度 | 管理費 | 予想金額:8,000〜12,000円程度 |
| 礼金/敷金 | 非公開(アーカイブ) | 平米数 | 51.68㎡ |
| 初期費用概算(参考) | 目安:634,000〜734,000 円 | みなし賃料(月額・参考) | 175,813〜195,813 円 |
| 備考 | 本ページは過去募集のアーカイブです。表示の金額は周辺相場・過去募集を踏まえた参考レンジであり、実際の契約金額・条件ではありません。 | ||
※上記みなし賃料(月額)は仲介手数料割引・無料&キャッシュバックを加味した高級賃貸バイブル限定の金額です。一般的なみなし賃料とは異なります。
【建物ページ】レオーネ南千住の詳細・最新空室はこちら▶▶選ばれる理由
仲介手数料無料・キャンペーン情報(毎月15名様限定)
〇仲介手数料割引キャンペーン
レオーネ南千住 1103の口コミ・レビュー
レオーネ南千住 1103。あなたの新しい生活の舞台がここに用意されています。まるで静謐な森の中に佇む一軒の別荘のように、レオーネ南千住 1103は、都会の喧騒から一歩離れた特別な空間です。持ち主の物語を柔らかな手で包み込み、毎日の生活の中に深い安らぎをもたらしてくれます。
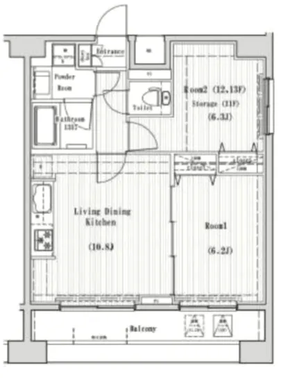
この物件には、心地良い光が差し込む広々としたLDKがございます。10.8帖の空間は、まるで大自然の中にいるかのような開放感を…レオーネ南千住 1103。あなたの新しい生活の舞台がここに用意されています。まるで静謐な森の中に佇む一軒の別荘のように、レオーネ南千住 1103は、都会の喧騒から一歩離れた特別な空間です。持ち主の物語を柔らかな手で包み込み、毎日の生活の中に深い安らぎをもたらしてくれます。
この物件には、心地良い光が差し込む広々としたLDKがございます。10.8帖の空間は、まるで大自然の中にいるかのような開放感を感じさせます。窓から差し込む朝日が、暖かく包み込むように住人を迎え入れ、夜には都心のきらめく星たちがバルコニーから眺められることでしょう。心を落ち着けるための読書や、心温まるディナーを楽しむことができるのは、この特別な場所だけです。
それぞれの洋室にも、6.3帖と6.2帖で過ごしやすい快適なスペースが広がり、自分だけの小宇宙を作ることができます。心地良い木材の温もりや、柔らかなカーテンの手触りが、あなたを優しく包みます。今ここにいること、その瞬間を大切に感じることで、新たな創造のインスピレーションが湧き上がってくるかもしれません。
さらに、レオーネ南千住 1103の魅力は、その先進的な設備にもあります。TVモニターホンやオートロックなど、暮らしの安全と快適さを追求した設計がなされています。バイク置場や駐輪場をはじめ、宅配ボックスまで完備されており、手軽に日常の利便性を享受できるのも嬉しいポイントです。あなたの日々の暮らしを、より豊かに彩る準備が整っています。
周辺には、東京都台東区清川という文化と歴史の香り漂うエリアが広がっています。昔ながらの街並みや、アートギャラリー、個性的なカフェも点在しており、日常がまるで映画のワンシーンのように映り込むことでしょう。地元の人々とのふれあいが、四季折々の風景や行事とともに、あなたの心を豊かにしてくれます。
レオーネ南千住 1103は、北と東の風が心地よく通り抜ける、まさに風の通り道のような立地です。毎日を新たにするための出発点として、あなたの生活を彩る夢を叶えてくれるでしょう。この特別な場所で、新しい章を刻み始める準備は整いましたか?あなたの物語が、ここから始まるのです。あなたの帰る場所、レオーネ南千住 1103が、心よりお待ちしております。
この物件には、心地良い光が差し込む広々としたLDKがございます。10.8帖の空間は、まるで大自然の中にいるかのような開放感を…レオーネ南千住 1103。あなたの新しい生活の舞台がここに用意されています。まるで静謐な森の中に佇む一軒の別荘のように、レオーネ南千住 1103は、都会の喧騒から一歩離れた特別な空間です。持ち主の物語を柔らかな手で包み込み、毎日の生活の中に深い安らぎをもたらしてくれます。
この物件には、心地良い光が差し込む広々としたLDKがございます。10.8帖の空間は、まるで大自然の中にいるかのような開放感を感じさせます。窓から差し込む朝日が、暖かく包み込むように住人を迎え入れ、夜には都心のきらめく星たちがバルコニーから眺められることでしょう。心を落ち着けるための読書や、心温まるディナーを楽しむことができるのは、この特別な場所だけです。
それぞれの洋室にも、6.3帖と6.2帖で過ごしやすい快適なスペースが広がり、自分だけの小宇宙を作ることができます。心地良い木材の温もりや、柔らかなカーテンの手触りが、あなたを優しく包みます。今ここにいること、その瞬間を大切に感じることで、新たな創造のインスピレーションが湧き上がってくるかもしれません。
さらに、レオーネ南千住 1103の魅力は、その先進的な設備にもあります。TVモニターホンやオートロックなど、暮らしの安全と快適さを追求した設計がなされています。バイク置場や駐輪場をはじめ、宅配ボックスまで完備されており、手軽に日常の利便性を享受できるのも嬉しいポイントです。あなたの日々の暮らしを、より豊かに彩る準備が整っています。
周辺には、東京都台東区清川という文化と歴史の香り漂うエリアが広がっています。昔ながらの街並みや、アートギャラリー、個性的なカフェも点在しており、日常がまるで映画のワンシーンのように映り込むことでしょう。地元の人々とのふれあいが、四季折々の風景や行事とともに、あなたの心を豊かにしてくれます。
レオーネ南千住 1103は、北と東の風が心地よく通り抜ける、まさに風の通り道のような立地です。毎日を新たにするための出発点として、あなたの生活を彩る夢を叶えてくれるでしょう。この特別な場所で、新しい章を刻み始める準備は整いましたか?あなたの物語が、ここから始まるのです。あなたの帰る場所、レオーネ南千住 1103が、心よりお待ちしております。
バイブルスコア
バイブルスコア: 32.7
平均的なスコアです。
※バイブルスコア詳細はこちら
バイブルスコアとは独自のAI機械学習技術を利用した物件評価システムで、物件のおすすめ度を示します。最高得点は100点で、スコアが高いほど、よりおすすめの物件と評価されています。
写真
契約条件
| 賃料 | 予想金額:155,000〜175,000円程度 | 管理費 | 予想金額:8,000〜12,000円程度 |
| 礼金 | 非公開(アーカイブ) | 敷金 | 非公開(アーカイブ) |
| フリーレント | なし | 平米数 | 51.68㎡ |
| 間取り | 2LDK | 大型収納 | |
| 契約期間 |
| 方角 | 北 / 東 |
| 更新料 | 契約形態 | 普通賃貸借契約 | |
| 取引態様 | 媒介 | 内見状況 | 入居中 |
| 入居時期 | 入居中 | SOHO・事務所 | |
| ペット | ペット可 | 間取り内訳 | 洋:6.3 洋:6.2 LDK:10.8 |
| キャンペーン情報・備考 | 本情報は賃料改定交渉の資料作成、収益物件の利回り試算、周辺エリアや最寄り駅の坪単価分析、次回募集開始時期の予測などにご活用いただけます。 | ||
※「どの不動産に頼めばいいのか分からない」「信頼できる営業マンの話を聞きたい」「一番親切な会社と契約したい」とお悩みの方におすすめなのが「高級賃貸バイブル」です。
高級賃貸バイブルは業界10年以上の熟練スタッフ群がお客様ファーストで対応します。
下記ボタンから、まずは無料でご相談下さい。
※内覧をご希望の際には、どうぞ物件のエントランス前にてお待ち合わせくださいませ。ご内覧後は、同じ場所でお別れとさせていただきます。お客様のご都合に合わせたスムーズなご案内を心がけておりますので、ご質問等がございましたら何なりとお申し付けください。 物件概要
| 物件名 |
| 築年月 |
|
|---|---|---|---|
| 所在地 | |||
| 交通 | |||
| 総戸数 |
| 総階数 |
|
| 構造 |
| ||
地図
物件までの道のりは、「拡大地図を表示」をクリックしてナビ機能をご利用ください。
部屋設備















建物設備

TVモニターホン

エレベーター

オートロック

バイク置場

宅配ボックス

敷地内ゴミ置場

管理人

駐輪場
レオーネ南千住の現在募集中のお部屋
- No rooms found for this property.

