
| 賃料 | 予想金額:167,000〜187,000円程度 | 管理費 | 予想金額:0〜2,000円程度 |
| 礼金/敷金 | 非公開(アーカイブ) | 平米数 | 43.45㎡ |
| 初期費用概算(参考) | 目安:838,000〜938,000 円 | みなし賃料(月額・参考) | 181,813〜201,813 円 |
| 備考 | 本ページは過去募集のアーカイブです。表示の金額は周辺相場・過去募集を踏まえた参考レンジであり、実際の契約金額・条件ではありません。 | ||
※上記みなし賃料(月額)は仲介手数料割引・無料&キャッシュバックを加味した高級賃貸バイブル限定の金額です。一般的なみなし賃料とは異なります。
【建物ページ】ステージグランデ文京白山の詳細・最新空室はこちら▶▶選ばれる理由
仲介手数料無料・キャンペーン情報(毎月15名様限定)
〇仲介手数料割引キャンペーン
ステージグランデ文京白山 1301の口コミ・レビュー
ステージグランデ文京白山 1301、まるであなたを特別な世界へと誘う魔法の扉のようです。この地に生きることは、ただの住まいを超え、日々の生活がまるで映画の一シーンのような美しさを持つことを意味します。43.45㎡の空間が、洗練された生活の舞台を用意しています。
この特別な住まいに足を踏み入れると、まずは柔らかな光が差し込み、洗練されたデザインのリビング・ダイニングキッチン(LDK11.4帖)が出…ステージグランデ文京白山 1301、まるであなたを特別な世界へと誘う魔法の扉のようです。この地に生きることは、ただの住まいを超え、日々の生活がまるで映画の一シーンのような美しさを持つことを意味します。43.45㎡の空間が、洗練された生活の舞台を用意しています。
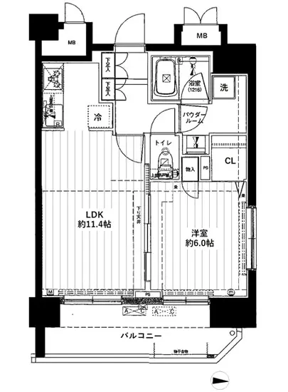
この特別な住まいに足を踏み入れると、まずは柔らかな光が差し込み、洗練されたデザインのリビング・ダイニングキッチン(LDK11.4帖)が出迎えてくれます。窓からは東の空が広がり、朝日が木漏れ日のように優しく照らし出します。その瞬間、あなたはこの場所が与えてくれる安らぎを肌で感じることでしょう。まるで心地よい風が舞い込み、朝の香りを運んでくるかのように、コーヒーの香ばしい香りが部屋に満ちていきます。
このステージグランデ文京白山 1301は、居住空間としての機能性だけでなく、心の豊かさをも提供してくれます。洗練された洋室(6帖)では、思い思いの時間を楽しむことができます。静かな夜に本を手に取ったり、優しい音楽を流したり、または大切な人との語らいに花を咲かせたりするのも良いでしょう。まるで自分だけの秘密の庭のように、どんな瞬間も特別なものに変えてくれるのです。
この物件は、ただの高級賃貸ではなく、文京区の文化や歴史の息吹を感じることのできる場所でもあります。近隣には、長い歳月を経て語り継がれてきた名所や、静かに佇む美術館が点在しており、芸術と歴史が交差する環境が整っています。まるであなたの生活に、文化の香りを促しているようで、日々の暮らしが深みを増していくのを実感することでしょう。
さらに、エレガントな設備も充実しています。オートロックシステムが安全を提供し、TVモニターホンが訪問者の顔を優しく映し出します。そして、管理人の方が見守る安心感が、あなたの日常をより豊かなものに変えてくれるのです。宅配ボックスがあることで、忙しい日々にも便利さが加わり、生活の質を一層高めます。
ステージグランデ文京白山 1301は、ただの住まいではありません。それは、あなたの日々を彩り、あなたの人生に新たな物語を紡ぐための舞台なのです。ここでは、心地よい空間と共に、夢のような日常を迎え入れ、不安や疲れを忘れ、自分自身を取り戻すことができるでしょう。この物件が持つ魅力は、あなたの生活の一部となり、なんとも言えない満足感を与えてくれることは間違いありません。あなたの新しい物語は、ここから始まります。
この特別な住まいに足を踏み入れると、まずは柔らかな光が差し込み、洗練されたデザインのリビング・ダイニングキッチン(LDK11.4帖)が出…ステージグランデ文京白山 1301、まるであなたを特別な世界へと誘う魔法の扉のようです。この地に生きることは、ただの住まいを超え、日々の生活がまるで映画の一シーンのような美しさを持つことを意味します。43.45㎡の空間が、洗練された生活の舞台を用意しています。
この特別な住まいに足を踏み入れると、まずは柔らかな光が差し込み、洗練されたデザインのリビング・ダイニングキッチン(LDK11.4帖)が出迎えてくれます。窓からは東の空が広がり、朝日が木漏れ日のように優しく照らし出します。その瞬間、あなたはこの場所が与えてくれる安らぎを肌で感じることでしょう。まるで心地よい風が舞い込み、朝の香りを運んでくるかのように、コーヒーの香ばしい香りが部屋に満ちていきます。
このステージグランデ文京白山 1301は、居住空間としての機能性だけでなく、心の豊かさをも提供してくれます。洗練された洋室(6帖)では、思い思いの時間を楽しむことができます。静かな夜に本を手に取ったり、優しい音楽を流したり、または大切な人との語らいに花を咲かせたりするのも良いでしょう。まるで自分だけの秘密の庭のように、どんな瞬間も特別なものに変えてくれるのです。
この物件は、ただの高級賃貸ではなく、文京区の文化や歴史の息吹を感じることのできる場所でもあります。近隣には、長い歳月を経て語り継がれてきた名所や、静かに佇む美術館が点在しており、芸術と歴史が交差する環境が整っています。まるであなたの生活に、文化の香りを促しているようで、日々の暮らしが深みを増していくのを実感することでしょう。
さらに、エレガントな設備も充実しています。オートロックシステムが安全を提供し、TVモニターホンが訪問者の顔を優しく映し出します。そして、管理人の方が見守る安心感が、あなたの日常をより豊かなものに変えてくれるのです。宅配ボックスがあることで、忙しい日々にも便利さが加わり、生活の質を一層高めます。
ステージグランデ文京白山 1301は、ただの住まいではありません。それは、あなたの日々を彩り、あなたの人生に新たな物語を紡ぐための舞台なのです。ここでは、心地よい空間と共に、夢のような日常を迎え入れ、不安や疲れを忘れ、自分自身を取り戻すことができるでしょう。この物件が持つ魅力は、あなたの生活の一部となり、なんとも言えない満足感を与えてくれることは間違いありません。あなたの新しい物語は、ここから始まります。
バイブルスコア
バイブルスコア: 16.8
高級な物件でない場合は割高な物件です。。
※バイブルスコア詳細はこちら
バイブルスコアとは独自のAI機械学習技術を利用した物件評価システムで、物件のおすすめ度を示します。最高得点は100点で、スコアが高いほど、よりおすすめの物件と評価されています。
写真
契約条件
| 賃料 | 予想金額:167,000〜187,000円程度 | 管理費 | 予想金額:0〜2,000円程度 |
| 礼金 | 非公開(アーカイブ) | 敷金 | 非公開(アーカイブ) |
| フリーレント | なし | 平米数 | 43.45㎡ |
| 間取り | 1LDK | 大型収納 | |
| 契約期間 |
| 方角 | 東 |
| 更新料 | 契約形態 | 普通賃貸借契約 | |
| 取引態様 | 媒介 | 内見状況 | 入居中 |
| 入居時期 | 入居中 | SOHO・事務所 | |
| ペット | 間取り内訳 | 洋:6 LDK:11.4 | |
| キャンペーン情報・備考 | 本情報は賃料改定交渉の資料作成、収益物件の利回り試算、周辺エリアや最寄り駅の坪単価分析、次回募集開始時期の予測などにご活用いただけます。 | ||
※「どの不動産に頼めばいいのか分からない」「信頼できる営業マンの話を聞きたい」「一番親切な会社と契約したい」とお悩みの方におすすめなのが「高級賃貸バイブル」です。
高級賃貸バイブルは業界10年以上の熟練スタッフ群がお客様ファーストで対応します。
下記ボタンから、まずは無料でご相談下さい。
※内覧をご希望の際には、どうぞ物件のエントランス前にてお待ち合わせくださいませ。ご内覧後は、同じ場所でお別れとさせていただきます。お客様のご都合に合わせたスムーズなご案内を心がけておりますので、ご質問等がございましたら何なりとお申し付けください。 物件概要
| 物件名 |
| 築年月 |
|
|---|---|---|---|
| 所在地 | |||
| 交通 | |||
| 総戸数 |
| 総階数 |
|
| 構造 |
| ||
地図
物件までの道のりは、「拡大地図を表示」をクリックしてナビ機能をご利用ください。
部屋設備











建物設備

TVモニターホン

エレベーター

オートロック

宅配ボックス

敷地内ゴミ置場

管理人

駐輪場
ステージグランデ文京白山の現在募集中のお部屋
- No rooms found for this property.








