
| 賃料 | 予想金額:237,000〜257,000円程度 | 管理費 | 予想金額:6,000〜10,000円程度 |
| 礼金/敷金 | 非公開(アーカイブ) | 平米数 | 56.44㎡ |
| 初期費用概算(参考) | 目安:671,000〜771,000 円 | みなし賃料(月額・参考) | 254,875〜274,875 円 |
| 備考 | 本ページは過去募集のアーカイブです。表示の金額は周辺相場・過去募集を踏まえた参考レンジであり、実際の契約金額・条件ではありません。 | ||
※上記みなし賃料(月額)は仲介手数料割引・無料&キャッシュバックを加味した高級賃貸バイブル限定の金額です。一般的なみなし賃料とは異なります。
【建物ページ】レジディア東麻布の詳細・最新空室はこちら▶▶選ばれる理由
仲介手数料無料・キャンペーン情報(毎月15名様限定)
〇仲介手数料割引キャンペーン
レジディア東麻布 1101の口コミ・レビュー
レジディア東麻布 1101。それは、まるで大都会の喧騒を忘れさせる隠れ家のような存在です。あなたがこの開放的な空間に足を踏み入れる瞬間、56.44㎡の広がりがあなたを迎え入れ、まるで都会と自然の調和を感じさせる穏やかな風が漂います。レジディア東麻布 1101は、日常の疲れを癒すための特別な舞台です。
エレベーターで11階まで上がると、目の前に広がる景色はまさに息をのむ美しさ。東に向かって広がる朝…レジディア東麻布 1101。それは、まるで大都会の喧騒を忘れさせる隠れ家のような存在です。あなたがこの開放的な空間に足を踏み入れる瞬間、56.44㎡の広がりがあなたを迎え入れ、まるで都会と自然の調和を感じさせる穏やかな風が漂います。レジディア東麻布 1101は、日常の疲れを癒すための特別な舞台です。
エレベーターで11階まで上がると、目の前に広がる景色はまさに息をのむ美しさ。東に向かって広がる朝日が、あなたの心に新たな希望の光を注ぎます。窓から差し込む柔らかな光が、室内を優しく包み込み、時間の流れを忘れさせるほどの心地良さをもたらします。
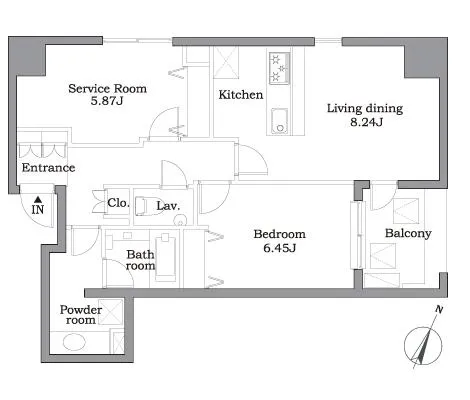
このデザイナーズ空間は、洗練された美意識が感じられ、住む人のライフスタイルを豊かにします。LDK8.24帖の開放感あふれるリビングでは、大切な人たちと一緒に過ごすひとときが、まるで映画のワンシーンのように色鮮やかに描かれます。その瞬間、香ばしいコーヒーの香りが漂い、新鮮な食材で作った料理が、愛する人々の笑顔を引き出します。ここで交わされる会話が、心温まる記憶としてあなたの心に刻まれていくことでしょう。
また、洋室6.45帖と洋室5.87帖は、それぞれが静寂な隠れ家として、心を落ち着けるための最適な空間です。時には一人で過ごしたり、創作活動に没頭したりするのにもぴったりです。その空間に身を置くと、肌で感じる風の流れや、窓を開けた時に耳に入る外の音は、あなたに生命の息吹を感じさせてくれます。
そして、周辺の歴史や文化が、このレジディア東麻布 1101にさらなる魅力を与えています。麻布十番駅から徒歩8分の距離に広がる街並みは、古き良き日本の面影と現代の洗練が共存しています。伝統的な和食の名店や、オシャレなカフェが軒を連ね、心豊かな暮らしをサポートします。地域の人々やアートに触れ合うことで、あなたの感性が磨かれ、心の豊かさが増していくことでしょう。
レジディア東麻布 1101は、ただの住居ではなく、生活を豊かにするための大切な舞台です。あなたがここに住むことで、新しい物語が始まります。日々の暮らしが、まるで贅沢な映画の一場面のように、心に残る体験になることでしょう。この場所で、新たな人生を歩み出してみませんか。あなたの新たな物語が、ここから始まります。
エレベーターで11階まで上がると、目の前に広がる景色はまさに息をのむ美しさ。東に向かって広がる朝…レジディア東麻布 1101。それは、まるで大都会の喧騒を忘れさせる隠れ家のような存在です。あなたがこの開放的な空間に足を踏み入れる瞬間、56.44㎡の広がりがあなたを迎え入れ、まるで都会と自然の調和を感じさせる穏やかな風が漂います。レジディア東麻布 1101は、日常の疲れを癒すための特別な舞台です。
エレベーターで11階まで上がると、目の前に広がる景色はまさに息をのむ美しさ。東に向かって広がる朝日が、あなたの心に新たな希望の光を注ぎます。窓から差し込む柔らかな光が、室内を優しく包み込み、時間の流れを忘れさせるほどの心地良さをもたらします。
このデザイナーズ空間は、洗練された美意識が感じられ、住む人のライフスタイルを豊かにします。LDK8.24帖の開放感あふれるリビングでは、大切な人たちと一緒に過ごすひとときが、まるで映画のワンシーンのように色鮮やかに描かれます。その瞬間、香ばしいコーヒーの香りが漂い、新鮮な食材で作った料理が、愛する人々の笑顔を引き出します。ここで交わされる会話が、心温まる記憶としてあなたの心に刻まれていくことでしょう。
また、洋室6.45帖と洋室5.87帖は、それぞれが静寂な隠れ家として、心を落ち着けるための最適な空間です。時には一人で過ごしたり、創作活動に没頭したりするのにもぴったりです。その空間に身を置くと、肌で感じる風の流れや、窓を開けた時に耳に入る外の音は、あなたに生命の息吹を感じさせてくれます。
そして、周辺の歴史や文化が、このレジディア東麻布 1101にさらなる魅力を与えています。麻布十番駅から徒歩8分の距離に広がる街並みは、古き良き日本の面影と現代の洗練が共存しています。伝統的な和食の名店や、オシャレなカフェが軒を連ね、心豊かな暮らしをサポートします。地域の人々やアートに触れ合うことで、あなたの感性が磨かれ、心の豊かさが増していくことでしょう。
レジディア東麻布 1101は、ただの住居ではなく、生活を豊かにするための大切な舞台です。あなたがここに住むことで、新しい物語が始まります。日々の暮らしが、まるで贅沢な映画の一場面のように、心に残る体験になることでしょう。この場所で、新たな人生を歩み出してみませんか。あなたの新たな物語が、ここから始まります。
バイブルスコア
バイブルスコア: 27.7
平均的なスコアです。
※バイブルスコア詳細はこちら
バイブルスコアとは独自のAI機械学習技術を利用した物件評価システムで、物件のおすすめ度を示します。最高得点は100点で、スコアが高いほど、よりおすすめの物件と評価されています。
写真
契約条件
| 賃料 | 予想金額:237,000〜257,000円程度 | 管理費 | 予想金額:6,000〜10,000円程度 |
| 礼金 | 非公開(アーカイブ) | 敷金 | 非公開(アーカイブ) |
| フリーレント | なし | 平米数 | 56.44㎡ |
| 間取り | 2LDK | 大型収納 | |
| 契約期間 |
| 方角 | 東 |
| 更新料 | 契約形態 | 普通賃貸借契約 | |
| 取引態様 | 媒介 | 内見状況 | 入居中 |
| 入居時期 | 入居中 | SOHO・事務所 | |
| ペット | ペット可 | 間取り内訳 | 洋室6.45畳/洋室5.87畳/LDK8.24畳 |
| キャンペーン情報・備考 | 本情報は賃料改定交渉の資料作成、収益物件の利回り試算、周辺エリアや最寄り駅の坪単価分析、次回募集開始時期の予測などにご活用いただけます。 | ||
※「どの不動産に頼めばいいのか分からない」「信頼できる営業マンの話を聞きたい」「一番親切な会社と契約したい」とお悩みの方におすすめなのが「高級賃貸バイブル」です。
高級賃貸バイブルは業界10年以上の熟練スタッフ群がお客様ファーストで対応します。
下記ボタンから、まずは無料でご相談下さい。
※内覧をご希望の際には、どうぞ物件のエントランス前にてお待ち合わせくださいませ。ご内覧後は、同じ場所でお別れとさせていただきます。お客様のご都合に合わせたスムーズなご案内を心がけておりますので、ご質問等がございましたら何なりとお申し付けください。 物件概要
| 物件名 |
| 築年月 |
|
|---|---|---|---|
| 所在地 | |||
| 交通 | |||
| 総戸数 |
| 総階数 |
|
| 構造 |
| ||
地図
物件までの道のりは、「拡大地図を表示」をクリックしてナビ機能をご利用ください。
部屋設備
















建物設備

24時間管理

TVモニターホン

エレベーター

オートロック

バイク置場

宅配ボックス

敷地内ゴミ置場

駐車場平置き

駐輪場
レジディア東麻布の現在募集中のお部屋
- レジディア東麻布 1201 - 間取り: 1SLDK - 賃料: 29.9万円









