
| 賃料 | 予想金額:238,000〜258,000円程度 | 管理費 | 予想金額:13,000〜17,000円程度 |
| 礼金/敷金 | 非公開(アーカイブ) | 平米数 | 56.44㎡ |
| 初期費用概算(参考) | 目安:847,000〜947,000 円 | みなし賃料(月額・参考) | 266,521〜286,521 円 |
| 備考 | 本ページは過去募集のアーカイブです。表示の金額は周辺相場・過去募集を踏まえた参考レンジであり、実際の契約金額・条件ではありません。 | ||
※上記みなし賃料(月額)は仲介手数料割引・無料&キャッシュバックを加味した高級賃貸バイブル限定の金額です。一般的なみなし賃料とは異なります。
【建物ページ】レジディア東麻布の詳細・最新空室はこちら▶▶選ばれる理由
仲介手数料無料・キャンペーン情報(毎月15名様限定)
〇引っ越しお祝い金30000円プレゼント(キャッシュバック)
〇仲介手数料無料キャンペーン
レジディア東麻布 501の口コミ・レビュー
レジディア東麻布 501。あなたを優雅な物語の主人公に招待する特別な住まいが、ここにあります。501という数字は、まるで特権的な階の舞台のように、あなたの生活を特別なものに変えてくれることでしょう。この美しい住まいは、東京都港区東麻布1-5-1に存在し、東を向いて広がる光のカーテンに包まれています。
ここでは、朝日が優しく差し込み、やさしい光の中で一日の始まりを感じることができます。優雅な空間を…レジディア東麻布 501。あなたを優雅な物語の主人公に招待する特別な住まいが、ここにあります。501という数字は、まるで特権的な階の舞台のように、あなたの生活を特別なものに変えてくれることでしょう。この美しい住まいは、東京都港区東麻布1-5-1に存在し、東を向いて広がる光のカーテンに包まれています。
ここでは、朝日が優しく差し込み、やさしい光の中で一日の始まりを感じることができます。優雅な空間を演出する56.44㎡の広さは、洗練されたデザインの中であなたの感性を刺激し、心の奥深くに潜む創造性を引き出します。レジディア東麻布 501は、ただの住まいではなく、アートのような生活空間です。
あなたが扉を開けると、そっと迎えてくれるのは、広がりのあるLDK。まるで青空の下でダンスしているかのように、視覚を楽しませる空間が広がります。ここでは、料理をしながら友人の笑い声が耳に響く、甘く濃厚な空気が漂います。豊かな香りを感じる食材たちが、あなたの手元で踊り、日々のストーリーを紡いでいくことでしょう。
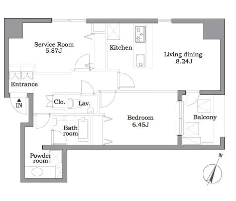
そして、二つの洋室、6.45畳と5.87畳は、まるで個性豊かなキャラクターのように、それぞれの役割を持ってあなたを待っています。一つは静謐な時間を提供し、もう一つは創造のインスピレーションを与える。どちらも、あなたの生活に色を添え、思い出の場を提供してくれることでしょう。窓からの風は、時折花の香りを運び、四季折々の美しさを感じさせてくれます。
レジディア東麻布 501は、単なる住まいではなく、あなたの人生の舞台であり、心地よい生活のシーンを描くキャンバスです。24時間管理された安心感は、まるで親友が常にあなたを見守っているかのよう。オートロックやTVモニターホンは、あなたのプライベートな世界を守る盾となり、日々の生活にさらなる安心をもたらします。
周囲には、歴史と文化が息づく麻布十番の街。近隣の美術館やギャラリーでは、芸術の息吹を感じることができ、心が豊かになる瞬間を与えてくれます。まるで映画の一コマのように、街を散歩すれば、古き良き日本の面影を残した町並みや、洗練されたカフェに遭遇するでしょう。歴史を感じながら、あなた自身の物語をより深く育むことができます。
レジディア東麻布 501は、ただの賃貸物件ではなく、あなたの新たな人生の一章を始める場所。ここでの生活は、毎日が映画のワンシーンのように美しく、洗練された体験があなたを待っています。この場所で、新たなストーリーを紡ぎ出してください。あなたの人生を彩るピースとして、レジディア東麻布 501が寄り添います。
ここでは、朝日が優しく差し込み、やさしい光の中で一日の始まりを感じることができます。優雅な空間を…レジディア東麻布 501。あなたを優雅な物語の主人公に招待する特別な住まいが、ここにあります。501という数字は、まるで特権的な階の舞台のように、あなたの生活を特別なものに変えてくれることでしょう。この美しい住まいは、東京都港区東麻布1-5-1に存在し、東を向いて広がる光のカーテンに包まれています。
ここでは、朝日が優しく差し込み、やさしい光の中で一日の始まりを感じることができます。優雅な空間を演出する56.44㎡の広さは、洗練されたデザインの中であなたの感性を刺激し、心の奥深くに潜む創造性を引き出します。レジディア東麻布 501は、ただの住まいではなく、アートのような生活空間です。
あなたが扉を開けると、そっと迎えてくれるのは、広がりのあるLDK。まるで青空の下でダンスしているかのように、視覚を楽しませる空間が広がります。ここでは、料理をしながら友人の笑い声が耳に響く、甘く濃厚な空気が漂います。豊かな香りを感じる食材たちが、あなたの手元で踊り、日々のストーリーを紡いでいくことでしょう。
そして、二つの洋室、6.45畳と5.87畳は、まるで個性豊かなキャラクターのように、それぞれの役割を持ってあなたを待っています。一つは静謐な時間を提供し、もう一つは創造のインスピレーションを与える。どちらも、あなたの生活に色を添え、思い出の場を提供してくれることでしょう。窓からの風は、時折花の香りを運び、四季折々の美しさを感じさせてくれます。
レジディア東麻布 501は、単なる住まいではなく、あなたの人生の舞台であり、心地よい生活のシーンを描くキャンバスです。24時間管理された安心感は、まるで親友が常にあなたを見守っているかのよう。オートロックやTVモニターホンは、あなたのプライベートな世界を守る盾となり、日々の生活にさらなる安心をもたらします。
周囲には、歴史と文化が息づく麻布十番の街。近隣の美術館やギャラリーでは、芸術の息吹を感じることができ、心が豊かになる瞬間を与えてくれます。まるで映画の一コマのように、街を散歩すれば、古き良き日本の面影を残した町並みや、洗練されたカフェに遭遇するでしょう。歴史を感じながら、あなた自身の物語をより深く育むことができます。
レジディア東麻布 501は、ただの賃貸物件ではなく、あなたの新たな人生の一章を始める場所。ここでの生活は、毎日が映画のワンシーンのように美しく、洗練された体験があなたを待っています。この場所で、新たなストーリーを紡ぎ出してください。あなたの人生を彩るピースとして、レジディア東麻布 501が寄り添います。
バイブルスコア
バイブルスコア: 27.3
平均的なスコアです。
※バイブルスコア詳細はこちら
バイブルスコアとは独自のAI機械学習技術を利用した物件評価システムで、物件のおすすめ度を示します。最高得点は100点で、スコアが高いほど、よりおすすめの物件と評価されています。
写真
契約条件
| 賃料 | 予想金額:238,000〜258,000円程度 | 管理費 | 予想金額:13,000〜17,000円程度 |
| 礼金 | 非公開(アーカイブ) | 敷金 | 非公開(アーカイブ) |
| フリーレント | なし | 平米数 | 56.44㎡ |
| 間取り | 2LDK | 大型収納 | |
| 契約期間 |
| 方角 | 東 |
| 更新料 | 契約形態 | 普通賃貸借契約 | |
| 取引態様 | 媒介 | 内見状況 | 入居中 |
| 入居時期 | 入居中 | SOHO・事務所 | |
| ペット | ペット可 | 間取り内訳 | 洋室6.45畳/洋室5.87畳/LDK8.24畳 |
| キャンペーン情報・備考 | 本情報は賃料改定交渉の資料作成、収益物件の利回り試算、周辺エリアや最寄り駅の坪単価分析、次回募集開始時期の予測などにご活用いただけます。 | ||
※「どの不動産に頼めばいいのか分からない」「信頼できる営業マンの話を聞きたい」「一番親切な会社と契約したい」とお悩みの方におすすめなのが「高級賃貸バイブル」です。
高級賃貸バイブルは業界10年以上の熟練スタッフ群がお客様ファーストで対応します。
下記ボタンから、まずは無料でご相談下さい。
※内覧をご希望の際には、どうぞ物件のエントランス前にてお待ち合わせくださいませ。ご内覧後は、同じ場所でお別れとさせていただきます。お客様のご都合に合わせたスムーズなご案内を心がけておりますので、ご質問等がございましたら何なりとお申し付けください。 物件概要
| 物件名 |
| 築年月 |
|
|---|---|---|---|
| 所在地 | |||
| 交通 | |||
| 総戸数 |
| 総階数 |
|
| 構造 |
| ||
地図
物件までの道のりは、「拡大地図を表示」をクリックしてナビ機能をご利用ください。
部屋設備
















建物設備

24時間管理

TVモニターホン

エレベーター

オートロック

バイク置場

宅配ボックス

敷地内ゴミ置場

駐車場平置き

駐輪場
レジディア東麻布の現在募集中のお部屋
- レジディア東麻布 1201 - 間取り: 1SLDK - 賃料: 29.9万円









