
| 賃料 | 予想金額:149,000〜169,000円程度 | 管理費 | 予想金額:8,000〜12,000円程度 |
| 礼金/敷金 | 非公開(アーカイブ) | 平米数 | 45.9㎡ |
| 初期費用概算(参考) | 目安:613,000〜713,000 円 | みなし賃料(月額・参考) | 169,500〜189,500 円 |
| 備考 | 本ページは過去募集のアーカイブです。表示の金額は周辺相場・過去募集を踏まえた参考レンジであり、実際の契約金額・条件ではありません。 | ||
※上記みなし賃料(月額)は仲介手数料割引・無料&キャッシュバックを加味した高級賃貸バイブル限定の金額です。一般的なみなし賃料とは異なります。
【建物ページ】ボルト麻布十番レジデンスの詳細・最新空室はこちら▶▶選ばれる理由
仲介手数料無料・キャンペーン情報(毎月15名様限定)
〇仲介手数料割引キャンペーン
ボルト麻布十番レジデンス 201の口コミ・レビュー
ボルト麻布十番レジデンス 201。あなたの心の中で、特別な場所になることを約束します。東京都港区東麻布3-7-1に佇むこの物件は、まるで都会の隠れ家のように、洗練された佇まいを見せています。北東に向かって伸びる窓からは、優しい自然光が差し込み、朝の光を優雅に纏った空間は、まるで映画のワンシーンのようです。
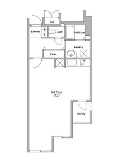
このボルト麻布十番レジデンス 201の間取りは、1R、洋室17.2帖という広さを誇ります。…ボルト麻布十番レジデンス 201。あなたの心の中で、特別な場所になることを約束します。東京都港区東麻布3-7-1に佇むこの物件は、まるで都会の隠れ家のように、洗練された佇まいを見せています。北東に向かって伸びる窓からは、優しい自然光が差し込み、朝の光を優雅に纏った空間は、まるで映画のワンシーンのようです。
このボルト麻布十番レジデンス 201の間取りは、1R、洋室17.2帖という広さを誇ります。広々とした空間は、あなたの感性を満たすためのキャンバスのようなもの。白い壁にお気に入りのアートを飾り、木の温もりを感じる家具を配置すれば、瞬く間にあなただけの特別な空間が生まれます。45.9㎡という専有面積は、自由な発想を育む土壌であり、あなたの生活スタイルに合わせた空間作りを可能にします。
ボルト麻布十番レジデンス 201では、洗練された設備も魅力の一つです。TVモニターホンで居住空間の安全を守り、エレベーターでスムーズに上階へアクセスできる利便性は、都会の喧騒の中でも心の安らぎを提供します。オートロックや宅配ボックスも整っており、安心して生活できる環境を整えています。敷地内の駐車場や駐輪場も完備され、公共交通機関に頼らずとも、自由な移動が叶います。
また、生活の便利さだけでなく、麻布十番という地名は、その文化や歴史にも深い意味を持っています。古き良き日本の風情と、現代の洗練が共存するこのエリアは、訪れる人々に多様な感動を提供します。近隣には美術館やギャラリーが点在し、アートに囲まれた生活を送ることができます。そのすぐ近くには、心温まるカフェやレストランもあり、味覚の冒険を楽しむこともできるのです。想像してみてください、朝の光を浴びながら自宅で焼きたてのパンの香りを楽しみ、友人を招いて贅沢なディナーを振る舞う瞬間。ボルト麻布十番レジデンス 201での生活は、まるで一つのアート作品のように豊かで色彩に満ちています。
このボルト麻布十番レジデンス 201が、あなたの心の拠り所となり、毎日の生活をより一層特別なものにしてくれることでしょう。都会の喧騒から少し離れ、静かな時間を楽しみながら、自分自身を再発見する旅に出かけませんか。あなたを待ち受けるのは、ただの住まいではなく、心の故郷とも言うべき場所です。生活の中で感じる全ての瞬間が、映画のワンシーンのように美しく彩られ、愛おしい思い出と共に心に刻まれることでしょう。このボルト麻布十番レジデンス 201で、あなたの新たな物語を始めてみませんか。
このボルト麻布十番レジデンス 201の間取りは、1R、洋室17.2帖という広さを誇ります。…ボルト麻布十番レジデンス 201。あなたの心の中で、特別な場所になることを約束します。東京都港区東麻布3-7-1に佇むこの物件は、まるで都会の隠れ家のように、洗練された佇まいを見せています。北東に向かって伸びる窓からは、優しい自然光が差し込み、朝の光を優雅に纏った空間は、まるで映画のワンシーンのようです。
このボルト麻布十番レジデンス 201の間取りは、1R、洋室17.2帖という広さを誇ります。広々とした空間は、あなたの感性を満たすためのキャンバスのようなもの。白い壁にお気に入りのアートを飾り、木の温もりを感じる家具を配置すれば、瞬く間にあなただけの特別な空間が生まれます。45.9㎡という専有面積は、自由な発想を育む土壌であり、あなたの生活スタイルに合わせた空間作りを可能にします。
ボルト麻布十番レジデンス 201では、洗練された設備も魅力の一つです。TVモニターホンで居住空間の安全を守り、エレベーターでスムーズに上階へアクセスできる利便性は、都会の喧騒の中でも心の安らぎを提供します。オートロックや宅配ボックスも整っており、安心して生活できる環境を整えています。敷地内の駐車場や駐輪場も完備され、公共交通機関に頼らずとも、自由な移動が叶います。
また、生活の便利さだけでなく、麻布十番という地名は、その文化や歴史にも深い意味を持っています。古き良き日本の風情と、現代の洗練が共存するこのエリアは、訪れる人々に多様な感動を提供します。近隣には美術館やギャラリーが点在し、アートに囲まれた生活を送ることができます。そのすぐ近くには、心温まるカフェやレストランもあり、味覚の冒険を楽しむこともできるのです。想像してみてください、朝の光を浴びながら自宅で焼きたてのパンの香りを楽しみ、友人を招いて贅沢なディナーを振る舞う瞬間。ボルト麻布十番レジデンス 201での生活は、まるで一つのアート作品のように豊かで色彩に満ちています。
このボルト麻布十番レジデンス 201が、あなたの心の拠り所となり、毎日の生活をより一層特別なものにしてくれることでしょう。都会の喧騒から少し離れ、静かな時間を楽しみながら、自分自身を再発見する旅に出かけませんか。あなたを待ち受けるのは、ただの住まいではなく、心の故郷とも言うべき場所です。生活の中で感じる全ての瞬間が、映画のワンシーンのように美しく彩られ、愛おしい思い出と共に心に刻まれることでしょう。このボルト麻布十番レジデンス 201で、あなたの新たな物語を始めてみませんか。
バイブルスコア
バイブルスコア: 32.7
平均的なスコアです。
※バイブルスコア詳細はこちら
バイブルスコアとは独自のAI機械学習技術を利用した物件評価システムで、物件のおすすめ度を示します。最高得点は100点で、スコアが高いほど、よりおすすめの物件と評価されています。
写真
契約条件
| 賃料 | 予想金額:149,000〜169,000円程度 | 管理費 | 予想金額:8,000〜12,000円程度 |
| 礼金 | 非公開(アーカイブ) | 敷金 | 非公開(アーカイブ) |
| フリーレント | なし | 平米数 | 45.9㎡ |
| 間取り | 1R | 大型収納 | |
| 契約期間 |
| 方角 | 北東 |
| 更新料 | 契約形態 | 普通賃貸借契約 | |
| 取引態様 | 媒介 | 内見状況 | 入居中 |
| 入居時期 | 入居中 | SOHO・事務所 | |
| ペット | 間取り内訳 | 洋室17.2帖 | |
| キャンペーン情報・備考 | 本情報は賃料改定交渉の資料作成、収益物件の利回り試算、周辺エリアや最寄り駅の坪単価分析、次回募集開始時期の予測などにご活用いただけます。 | ||
※「どの不動産に頼めばいいのか分からない」「信頼できる営業マンの話を聞きたい」「一番親切な会社と契約したい」とお悩みの方におすすめなのが「高級賃貸バイブル」です。
高級賃貸バイブルは業界10年以上の熟練スタッフ群がお客様ファーストで対応します。
下記ボタンから、まずは無料でご相談下さい。
※内覧をご希望の際には、どうぞ物件のエントランス前にてお待ち合わせくださいませ。ご内覧後は、同じ場所でお別れとさせていただきます。お客様のご都合に合わせたスムーズなご案内を心がけておりますので、ご質問等がございましたら何なりとお申し付けください。 物件概要
| 物件名 |
| 築年月 |
|
|---|---|---|---|
| 所在地 | |||
| 交通 | |||
| 総戸数 |
| 総階数 |
|
| 構造 |
| ||
地図
物件までの道のりは、「拡大地図を表示」をクリックしてナビ機能をご利用ください。
部屋設備













建物設備

TVモニターホン

エレベーター

オートロック

宅配ボックス

敷地内ゴミ置場

駐車場平置き

駐輪場
ボルト麻布十番レジデンスの現在募集中のお部屋
- No rooms found for this property.



















