
| 賃料 | 予想金額:158,000〜178,000円程度 | 管理費 | 予想金額:0〜2,000円程度 |
| 礼金/敷金 | 非公開(アーカイブ) | 平米数 | 41.63㎡ |
| 初期費用概算(参考) | 目安:461,500〜561,500 円 | みなし賃料(月額・参考) | 165,156〜185,156 円 |
| 備考 | 本ページは過去募集のアーカイブです。表示の金額は周辺相場・過去募集を踏まえた参考レンジであり、実際の契約金額・条件ではありません。 | ||
※上記みなし賃料(月額)は仲介手数料割引・無料&キャッシュバックを加味した高級賃貸バイブル限定の金額です。一般的なみなし賃料とは異なります。
【建物ページ】セントラルレジデンス九段下シティタワーの詳細・最新空室はこちら▶▶選ばれる理由
仲介手数料無料・キャンペーン情報(毎月15名様限定)
〇仲介手数料割引キャンペーン
セントラルレジデンス九段下シティタワー 1204の口コミ・レビュー
「セントラルレジデンス九段下シティタワー 1204」という名を持つこの高級賃貸物件は、まるで一つの宝石のように都会の喧騒の中で静かに輝きを放っています。あなたの新しい生活の舞台として、この素敵な場所が待ち受けているのです。この素晴らしい物件は、東京都千代田区神田神保町3-6-2に位置し、最寄り駅である東京メトロ半蔵門線 九段下駅までわずか徒歩2分という抜群のアクセスを誇ります。
セントラルレジデ…「セントラルレジデンス九段下シティタワー 1204」という名を持つこの高級賃貸物件は、まるで一つの宝石のように都会の喧騒の中で静かに輝きを放っています。あなたの新しい生活の舞台として、この素敵な場所が待ち受けているのです。この素晴らしい物件は、東京都千代田区神田神保町3-6-2に位置し、最寄り駅である東京メトロ半蔵門線 九段下駅までわずか徒歩2分という抜群のアクセスを誇ります。
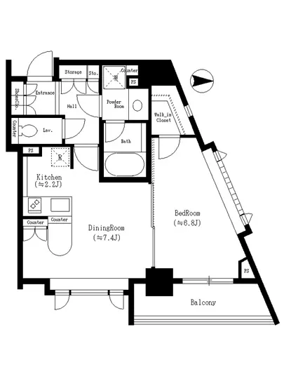
セントラルレジデンス九段下シティタワー 1204は、41.63㎡の広さを持つ贅沢な1LDKの間取りが魅力です。この住まいの心臓部であるLDKは、7.4帖の広さを持ち、まるで映画のワンシーンのような贅沢な時間を過ごす場所へと誘います。朝日が東から差し込むその窓辺に腰を下ろし、温かいコーヒーの香りと共に一日の始まりを迎える瞬間は、あなたの心を豊かに満たしてくれることでしょう。
室内のデザインは洗練されており、心地良さと美しさが調和しています。6.8帖の洋室は、まるで静けさに包まれた隠れ家のようです。柔らかな光が差し込む空間で、心身ともにリラックスできる至福の時間をお過ごしください。例えば、少し肌寒い冬の夜に、あたたかなブランケットに包まれながらお気に入りの本を手に取り、静寂に包まれたこの洋室でのひとときを楽しむ姿は、見る者の心を温かくすることでしょう。
セントラルレジデンス九段下シティタワー 1204では、生活を豊かにするための設備が整っています。24時間管理の安心感、オートロックで守られた安全、宅配ボックスにより、あなたの生活を更に快適にサポートいたします。エレベーターでスムーズにアクセスできるフロアでは、時間を有効に使いながら日々の生活を楽しむことができるでしょう。
この物件は、千代田区の中心に位置し、周囲には歴史ある神保町の書店やカフェが点在しています。古き良き文化と新しい風が交差するこの地で、知識を求める人々と共に、豊かな情景が広がっています。週末には、近くの公園で季節の香りに包まれながら、ピクニックを楽しむのも素敵です。
セントラルレジデンス九段下シティタワー 1204が、あなたにどのような生活の物語を紡いでくれるのでしょうか。高級感と上品さが漂うこの場所で、あなたの新しい人生が始まります。毎日の暮らしが、まるで映画の一幕のように色鮮やかに描かれることを想像してみてください。この場所での日々を、心から楽しんでいただけることを願っています。あなたのために、この物件はいつでも開かれています。
セントラルレジデ…「セントラルレジデンス九段下シティタワー 1204」という名を持つこの高級賃貸物件は、まるで一つの宝石のように都会の喧騒の中で静かに輝きを放っています。あなたの新しい生活の舞台として、この素敵な場所が待ち受けているのです。この素晴らしい物件は、東京都千代田区神田神保町3-6-2に位置し、最寄り駅である東京メトロ半蔵門線 九段下駅までわずか徒歩2分という抜群のアクセスを誇ります。
セントラルレジデンス九段下シティタワー 1204は、41.63㎡の広さを持つ贅沢な1LDKの間取りが魅力です。この住まいの心臓部であるLDKは、7.4帖の広さを持ち、まるで映画のワンシーンのような贅沢な時間を過ごす場所へと誘います。朝日が東から差し込むその窓辺に腰を下ろし、温かいコーヒーの香りと共に一日の始まりを迎える瞬間は、あなたの心を豊かに満たしてくれることでしょう。
室内のデザインは洗練されており、心地良さと美しさが調和しています。6.8帖の洋室は、まるで静けさに包まれた隠れ家のようです。柔らかな光が差し込む空間で、心身ともにリラックスできる至福の時間をお過ごしください。例えば、少し肌寒い冬の夜に、あたたかなブランケットに包まれながらお気に入りの本を手に取り、静寂に包まれたこの洋室でのひとときを楽しむ姿は、見る者の心を温かくすることでしょう。
セントラルレジデンス九段下シティタワー 1204では、生活を豊かにするための設備が整っています。24時間管理の安心感、オートロックで守られた安全、宅配ボックスにより、あなたの生活を更に快適にサポートいたします。エレベーターでスムーズにアクセスできるフロアでは、時間を有効に使いながら日々の生活を楽しむことができるでしょう。
この物件は、千代田区の中心に位置し、周囲には歴史ある神保町の書店やカフェが点在しています。古き良き文化と新しい風が交差するこの地で、知識を求める人々と共に、豊かな情景が広がっています。週末には、近くの公園で季節の香りに包まれながら、ピクニックを楽しむのも素敵です。
セントラルレジデンス九段下シティタワー 1204が、あなたにどのような生活の物語を紡いでくれるのでしょうか。高級感と上品さが漂うこの場所で、あなたの新しい人生が始まります。毎日の暮らしが、まるで映画の一幕のように色鮮やかに描かれることを想像してみてください。この場所での日々を、心から楽しんでいただけることを願っています。あなたのために、この物件はいつでも開かれています。
バイブルスコア
バイブルスコア: 23.9
平均的なスコアです。
※バイブルスコア詳細はこちら
バイブルスコアとは独自のAI機械学習技術を利用した物件評価システムで、物件のおすすめ度を示します。最高得点は100点で、スコアが高いほど、よりおすすめの物件と評価されています。
写真
契約条件
| 賃料 | 予想金額:158,000〜178,000円程度 | 管理費 | 予想金額:0〜2,000円程度 |
| 礼金 | 非公開(アーカイブ) | 敷金 | 非公開(アーカイブ) |
| フリーレント | なし | 平米数 | 41.63㎡ |
| 間取り | 1LDK | 大型収納 | WIC |
| 契約期間 |
| 方角 | 東 |
| 更新料 | 契約形態 | 普通賃貸借契約 | |
| 取引態様 | 媒介 | 内見状況 | 入居中 |
| 入居時期 | 入居中 | SOHO・事務所 | |
| ペット | 間取り内訳 | 洋:6.8 LD:7.4 K:2.2 | |
| キャンペーン情報・備考 | 本情報は賃料改定交渉の資料作成、収益物件の利回り試算、周辺エリアや最寄り駅の坪単価分析、次回募集開始時期の予測などにご活用いただけます。 | ||
※「どの不動産に頼めばいいのか分からない」「信頼できる営業マンの話を聞きたい」「一番親切な会社と契約したい」とお悩みの方におすすめなのが「高級賃貸バイブル」です。
高級賃貸バイブルは業界10年以上の熟練スタッフ群がお客様ファーストで対応します。
下記ボタンから、まずは無料でご相談下さい。
※内覧をご希望の際には、どうぞ物件のエントランス前にてお待ち合わせくださいませ。ご内覧後は、同じ場所でお別れとさせていただきます。お客様のご都合に合わせたスムーズなご案内を心がけておりますので、ご質問等がございましたら何なりとお申し付けください。 物件概要
| 物件名 |
| 築年月 |
|
|---|---|---|---|
| 所在地 | |||
| 交通 | |||
| 総戸数 |
| 総階数 |
|
| 構造 |
| ||
地図
物件までの道のりは、「拡大地図を表示」をクリックしてナビ機能をご利用ください。
部屋設備


















建物設備

24時間管理

TVモニターホン

エレベーター

オートロック

バイク置場

宅配ボックス

敷地内ゴミ置場

管理人

駐車場平置き

駐車場機械式

駐輪場
セントラルレジデンス九段下シティタワーの現在募集中のお部屋
- セントラルレジデンス九段下シティタワー 8階 40.12㎡ - 間取り: 1R+SIC - 賃料: 17.6万円





















