
| 賃料 | 予想金額:116,000〜136,000円程度 | 管理費 | 予想金額:8,000〜12,000円程度 |
| 礼金/敷金 | 非公開(アーカイブ) | 平米数 | 25.55㎡ |
| 初期費用概算(参考) | 目安:371,500〜471,500 円 | みなし賃料(月額・参考) | 132,156〜152,156 円 |
| 備考 | 本ページは過去募集のアーカイブです。表示の金額は周辺相場・過去募集を踏まえた参考レンジであり、実際の契約金額・条件ではありません。 | ||
※上記みなし賃料(月額)は仲介手数料割引・無料&キャッシュバックを加味した高級賃貸バイブル限定の金額です。一般的なみなし賃料とは異なります。
【建物ページ】クレイシアIDZ三田の詳細・最新空室はこちら▶▶選ばれる理由
仲介手数料無料・キャンペーン情報(毎月15名様限定)
〇仲介手数料割引キャンペーン
クレイシアIDZ三田 604の口コミ・レビュー
クレイシアIDZ三田 604。この美しい名前を持つマンションは、まるで時空を超えた貴族の城のように、優雅に佇んでいます。あなたがそのドアを開ける瞬間、日常から非日常へと誘われる旅が始まります。専有面積25.55㎡という空間は、まるで心地よいピアノの音色のように響きわたり、7帖の広々とした寝室は、あなたの夢を存分に育むためのキャンバスとなることでしょう。
南東に広がる窓から差し込む光は、柔らかな金…クレイシアIDZ三田 604。この美しい名前を持つマンションは、まるで時空を超えた貴族の城のように、優雅に佇んでいます。あなたがそのドアを開ける瞬間、日常から非日常へと誘われる旅が始まります。専有面積25.55㎡という空間は、まるで心地よいピアノの音色のように響きわたり、7帖の広々とした寝室は、あなたの夢を存分に育むためのキャンバスとなることでしょう。
南東に広がる窓から差し込む光は、柔らかな金色の糸のようで、あなたの日常にさりげない煌めきを与えます。朝のコーヒーの香りが漂うキッチンで、優雅に朝食を楽しむそのひととき、まるで映画の主人公になった気分です。クレイシアIDZ三田 604では、日々の小さな幸せが積み重なり、人生の美しいストーリーが紡がれていくのです。
このマンションの素晴らしい特徴は、24時間体制での管理です。まるであなた専用の守護天使のように、安心感を提供してくれます。また、TVモニターホンが、外で待ち受ける不安を遠ざけ、あなたに快適さをもたらします。オートロックやエレベーターも完備され、スムーズに生活を送ることができる環境が整っています。
地元の人々が集う三田の街の文化は、その全体が一つのアート作品のように溶け合っています。徒歩4分の距離にある三田駅からは、東京中の美しい景色へと続く道が延びており、あなたを新たな発見の旅へと誘います。このエリアには、静寂を保ちながらも多彩な歴史が息づいており、あなたの感性を刺激します。
自転車専用の駐輪場やバイク置き場も完備され、自由に街を駆け巡ることができる喜びは、まるで風を感じる冒険者のようです。宅配ボックスは、あなたの生活を一層便利にし、忙しい日々をサポートしてくれます。
クレイシアIDZ三田 604は、ただの住まいではなく、あなたの人生に寄り添うパートナーです。ここでの生活は、まるでアートのように美しい瞬間が連なり、毎日が新たな発見へと繋がっています。あなたの人生の幕開けを、ここで迎えてみませんか。クレイシアIDZ三田 604で、最高の暮らしをあなたの手で描き出してください。
南東に広がる窓から差し込む光は、柔らかな金…クレイシアIDZ三田 604。この美しい名前を持つマンションは、まるで時空を超えた貴族の城のように、優雅に佇んでいます。あなたがそのドアを開ける瞬間、日常から非日常へと誘われる旅が始まります。専有面積25.55㎡という空間は、まるで心地よいピアノの音色のように響きわたり、7帖の広々とした寝室は、あなたの夢を存分に育むためのキャンバスとなることでしょう。
南東に広がる窓から差し込む光は、柔らかな金色の糸のようで、あなたの日常にさりげない煌めきを与えます。朝のコーヒーの香りが漂うキッチンで、優雅に朝食を楽しむそのひととき、まるで映画の主人公になった気分です。クレイシアIDZ三田 604では、日々の小さな幸せが積み重なり、人生の美しいストーリーが紡がれていくのです。
このマンションの素晴らしい特徴は、24時間体制での管理です。まるであなた専用の守護天使のように、安心感を提供してくれます。また、TVモニターホンが、外で待ち受ける不安を遠ざけ、あなたに快適さをもたらします。オートロックやエレベーターも完備され、スムーズに生活を送ることができる環境が整っています。
地元の人々が集う三田の街の文化は、その全体が一つのアート作品のように溶け合っています。徒歩4分の距離にある三田駅からは、東京中の美しい景色へと続く道が延びており、あなたを新たな発見の旅へと誘います。このエリアには、静寂を保ちながらも多彩な歴史が息づいており、あなたの感性を刺激します。
自転車専用の駐輪場やバイク置き場も完備され、自由に街を駆け巡ることができる喜びは、まるで風を感じる冒険者のようです。宅配ボックスは、あなたの生活を一層便利にし、忙しい日々をサポートしてくれます。
クレイシアIDZ三田 604は、ただの住まいではなく、あなたの人生に寄り添うパートナーです。ここでの生活は、まるでアートのように美しい瞬間が連なり、毎日が新たな発見へと繋がっています。あなたの人生の幕開けを、ここで迎えてみませんか。クレイシアIDZ三田 604で、最高の暮らしをあなたの手で描き出してください。
バイブルスコア
バイブルスコア: 26.9
平均的なスコアです。
※バイブルスコア詳細はこちら
バイブルスコアとは独自のAI機械学習技術を利用した物件評価システムで、物件のおすすめ度を示します。最高得点は100点で、スコアが高いほど、よりおすすめの物件と評価されています。
写真
契約条件
| 賃料 | 予想金額:116,000〜136,000円程度 | 管理費 | 予想金額:8,000〜12,000円程度 |
| 礼金 | 非公開(アーカイブ) | 敷金 | 非公開(アーカイブ) |
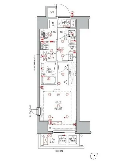
| フリーレント | なし | 平米数 | 25.55㎡ |
| 間取り | 1K | 大型収納 | |
| 契約期間 |
| 方角 | 南東 |
| 更新料 | 契約形態 | 普通賃貸借契約 | |
| 取引態様 | 媒介 | 内見状況 | 入居中 |
| 入居時期 | 入居中 | SOHO・事務所 | |
| ペット | ペット可 | 間取り内訳 | BR=7J |
| キャンペーン情報・備考 | 本情報は賃料改定交渉の資料作成、収益物件の利回り試算、周辺エリアや最寄り駅の坪単価分析、次回募集開始時期の予測などにご活用いただけます。 | ||
※「どの不動産に頼めばいいのか分からない」「信頼できる営業マンの話を聞きたい」「一番親切な会社と契約したい」とお悩みの方におすすめなのが「高級賃貸バイブル」です。
高級賃貸バイブルは業界10年以上の熟練スタッフ群がお客様ファーストで対応します。
下記ボタンから、まずは無料でご相談下さい。
※内覧をご希望の際には、どうぞ物件のエントランス前にてお待ち合わせくださいませ。ご内覧後は、同じ場所でお別れとさせていただきます。お客様のご都合に合わせたスムーズなご案内を心がけておりますので、ご質問等がございましたら何なりとお申し付けください。 物件概要
| 物件名 |
| 築年月 |
|
|---|---|---|---|
| 所在地 | |||
| 交通 | |||
| 総戸数 |
| 総階数 |
|
| 構造 |
| ||
地図
物件までの道のりは、「拡大地図を表示」をクリックしてナビ機能をご利用ください。
部屋設備















建物設備

24時間管理

TVモニターホン

エレベーター

オートロック

バイク置場

宅配ボックス

敷地内ゴミ置場

駐輪場
クレイシアIDZ三田の現在募集中のお部屋
- No rooms found for this property.





























