
| 賃料 | 予想金額:115,000〜135,000円程度 | 管理費 | 予想金額:13,000〜17,000円程度 |
| 礼金/敷金 | 非公開(アーカイブ) | 平米数 | 25.5㎡ |
| 初期費用概算(参考) | 目安:409,500〜509,500 円 | みなし賃料(月額・参考) | 136,969〜156,969 円 |
| 備考 | 本ページは過去募集のアーカイブです。表示の金額は周辺相場・過去募集を踏まえた参考レンジであり、実際の契約金額・条件ではありません。 | ||
※上記みなし賃料(月額)は仲介手数料割引・無料&キャッシュバックを加味した高級賃貸バイブル限定の金額です。一般的なみなし賃料とは異なります。
【建物ページ】クレイシアIDZ三田の詳細・最新空室はこちら▶▶選ばれる理由
仲介手数料無料・キャンペーン情報(毎月15名様限定)
〇仲介手数料割引キャンペーン
クレイシアIDZ三田 302の口コミ・レビュー
クレイシアIDZ三田 302。あなたの新たな物語が、ここから始まります。この美しい物件は、東京都港区三田3-2-9という恵まれたロケーションに位置し、南東を向いて光をたっぷりと受け止める、心躍る空間です。まるで一枚の絵画のような景色が、あなたの毎日を彩ります。
クレイシアIDZ三田 302の扉を開けた瞬間、まるで特別な映画のワンシーンに足を踏み入れたかのような感覚に包まれます。広がる7帖の寝室は…クレイシアIDZ三田 302。あなたの新たな物語が、ここから始まります。この美しい物件は、東京都港区三田3-2-9という恵まれたロケーションに位置し、南東を向いて光をたっぷりと受け止める、心躍る空間です。まるで一枚の絵画のような景色が、あなたの毎日を彩ります。
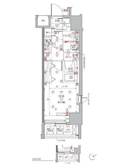
クレイシアIDZ三田 302の扉を開けた瞬間、まるで特別な映画のワンシーンに足を踏み入れたかのような感覚に包まれます。広がる7帖の寝室は、洗練されたデザイナーズの風合いが漂い、自然光が優しく差し込むことで、心の奥底まで温かくなります。あなたが穏やかな朝を迎えると、静かな街の目覚めを感じることができ、窓を開けると新鮮な空気が優しく頬を撫で、日常生活に新しい息吹をもたらします。
この部屋に住む幸運を手に入れたあなたは、様々な出会いと経験が待っている予感を感じます。とりわけ、24時間管理の安心感は、あなたを包み込む優しい手のひらのよう。TVモニターホンやオートロックは、あなたのプライベートを守るガーディアンとして働き、日々の忙しさの中でも心の安らぎを提供します。
クレイシアIDZ三田 302は、単なる住まいではなく、あなた自身の拠点として、あなたの生活を豊かに彩るパートナーです。エレベーターで軽やかに地上へ降り立ち、三田駅へ向かえば、さまざまな文化や歴史が息づく街並みに出会います。徒歩4分の距離で新たな冒険が広がっているのです。近隣には美術館や文化施設も点在しており、あなたの感性を刺激する素晴らしいアートの数々と出会えることでしょう。
自宅には宅配ボックスも完備され、便利なライフスタイルがあなたの手の中に。食材や日用品を取り入れる瞬間、まるでシェフのように料理を楽しむことができ、豊かな味わいの体験が待っています。さらに、バイク置場や駐輪場も整備され、自由気ままに街を散策する楽しさを提供します。
クレイシアIDZ三田 302は単なる物件ではなく、人生の豊かさを増幅させる舞台です。この空間で過ごす毎日は、あなた自身を映し出す美しいキャンバスとなり、そこに描かれるストーリーは、まるで一冊の小説が綴られていくかのよう。あなたの夢や希望が、この部屋で息づき、形をなす瞬間を、心から待ち望んでいます。クレイシアIDZ三田 302で、あなた自身の物語を始めてみませんか。
クレイシアIDZ三田 302の扉を開けた瞬間、まるで特別な映画のワンシーンに足を踏み入れたかのような感覚に包まれます。広がる7帖の寝室は…クレイシアIDZ三田 302。あなたの新たな物語が、ここから始まります。この美しい物件は、東京都港区三田3-2-9という恵まれたロケーションに位置し、南東を向いて光をたっぷりと受け止める、心躍る空間です。まるで一枚の絵画のような景色が、あなたの毎日を彩ります。
クレイシアIDZ三田 302の扉を開けた瞬間、まるで特別な映画のワンシーンに足を踏み入れたかのような感覚に包まれます。広がる7帖の寝室は、洗練されたデザイナーズの風合いが漂い、自然光が優しく差し込むことで、心の奥底まで温かくなります。あなたが穏やかな朝を迎えると、静かな街の目覚めを感じることができ、窓を開けると新鮮な空気が優しく頬を撫で、日常生活に新しい息吹をもたらします。
この部屋に住む幸運を手に入れたあなたは、様々な出会いと経験が待っている予感を感じます。とりわけ、24時間管理の安心感は、あなたを包み込む優しい手のひらのよう。TVモニターホンやオートロックは、あなたのプライベートを守るガーディアンとして働き、日々の忙しさの中でも心の安らぎを提供します。
クレイシアIDZ三田 302は、単なる住まいではなく、あなた自身の拠点として、あなたの生活を豊かに彩るパートナーです。エレベーターで軽やかに地上へ降り立ち、三田駅へ向かえば、さまざまな文化や歴史が息づく街並みに出会います。徒歩4分の距離で新たな冒険が広がっているのです。近隣には美術館や文化施設も点在しており、あなたの感性を刺激する素晴らしいアートの数々と出会えることでしょう。
自宅には宅配ボックスも完備され、便利なライフスタイルがあなたの手の中に。食材や日用品を取り入れる瞬間、まるでシェフのように料理を楽しむことができ、豊かな味わいの体験が待っています。さらに、バイク置場や駐輪場も整備され、自由気ままに街を散策する楽しさを提供します。
クレイシアIDZ三田 302は単なる物件ではなく、人生の豊かさを増幅させる舞台です。この空間で過ごす毎日は、あなた自身を映し出す美しいキャンバスとなり、そこに描かれるストーリーは、まるで一冊の小説が綴られていくかのよう。あなたの夢や希望が、この部屋で息づき、形をなす瞬間を、心から待ち望んでいます。クレイシアIDZ三田 302で、あなた自身の物語を始めてみませんか。
バイブルスコア
バイブルスコア: 35.5
平均的なスコアです。
※バイブルスコア詳細はこちら
バイブルスコアとは独自のAI機械学習技術を利用した物件評価システムで、物件のおすすめ度を示します。最高得点は100点で、スコアが高いほど、よりおすすめの物件と評価されています。
写真
契約条件
| 賃料 | 予想金額:115,000〜135,000円程度 | 管理費 | 予想金額:13,000〜17,000円程度 |
| 礼金 | 非公開(アーカイブ) | 敷金 | 非公開(アーカイブ) |
| フリーレント | なし | 平米数 | 25.5㎡ |
| 間取り | 1K | 大型収納 | なし |
| 契約期間 | 2年 | 方角 | 南東 |
| 更新料 | 1ヶ月 | 契約形態 | 普通賃貸借契約 |
| 取引態様 | 媒介 | 内見状況 | 入居中 |
| 入居時期 | 入居中 | SOHO・事務所 | 不可 |
| ペット | ペット可 | 間取り内訳 | BR=7J |
| キャンペーン情報・備考 | 本情報は賃料改定交渉の資料作成、収益物件の利回り試算、周辺エリアや最寄り駅の坪単価分析、次回募集開始時期の予測などにご活用いただけます。 | ||
※「どの不動産に頼めばいいのか分からない」「信頼できる営業マンの話を聞きたい」「一番親切な会社と契約したい」とお悩みの方におすすめなのが「高級賃貸バイブル」です。
高級賃貸バイブルは業界10年以上の熟練スタッフ群がお客様ファーストで対応します。
下記ボタンから、まずは無料でご相談下さい。
※内覧をご希望の際には、どうぞ物件のエントランス前にてお待ち合わせくださいませ。ご内覧後は、同じ場所でお別れとさせていただきます。お客様のご都合に合わせたスムーズなご案内を心がけておりますので、ご質問等がございましたら何なりとお申し付けください。 物件概要
| 物件名 |
| 築年月 |
|
|---|---|---|---|
| 所在地 | |||
| 交通 | |||
| 総戸数 |
| 総階数 |
|
| 構造 |
| ||
地図
物件までの道のりは、「拡大地図を表示」をクリックしてナビ機能をご利用ください。
部屋設備















建物設備

24時間管理

TVモニターホン

エレベーター

オートロック

バイク置場

宅配ボックス

敷地内ゴミ置場

駐輪場
クレイシアIDZ三田の現在募集中のお部屋
- No rooms found for this property.






























