
| 賃料 | 予想金額:105,000〜125,000円程度 | 管理費 | 予想金額:8,000〜12,000円程度 |
| 礼金/敷金 | 非公開(アーカイブ) | 平米数 | 25.5㎡ |
| 初期費用概算(参考) | 目安:229,750〜329,750 円 | みなし賃料(月額・参考) | 118,922〜138,922 円 |
| 備考 | 本ページは過去募集のアーカイブです。表示の金額は周辺相場・過去募集を踏まえた参考レンジであり、実際の契約金額・条件ではありません。 | ||
※上記みなし賃料(月額)は仲介手数料割引・無料&キャッシュバックを加味した高級賃貸バイブル限定の金額です。一般的なみなし賃料とは異なります。
【建物ページ】クレイシアIDZ三田の詳細・最新空室はこちら▶▶選ばれる理由
仲介手数料無料・キャンペーン情報(毎月15名様限定)
〇仲介手数料割引キャンペーン
クレイシアIDZ三田 601の口コミ・レビュー
クレイシアIDZ三田 601。これは、ただの住まいではありません。まるで都会の喧騒から逃れた隠れ家のように、あなたを迎える準備を整えています。東京都港区三田3-2-9に位置するこの物件は、北東の角から見える美しい朝焼けが、やがてあなたの一日の始まりの儀式となることでしょう。
クレイシアIDZ三田 601の内部に足を踏み入れると、まず感じるのは心地よい静けさです。広がる空間は、25.5㎡の贅沢な専…クレイシアIDZ三田 601。これは、ただの住まいではありません。まるで都会の喧騒から逃れた隠れ家のように、あなたを迎える準備を整えています。東京都港区三田3-2-9に位置するこの物件は、北東の角から見える美しい朝焼けが、やがてあなたの一日の始まりの儀式となることでしょう。
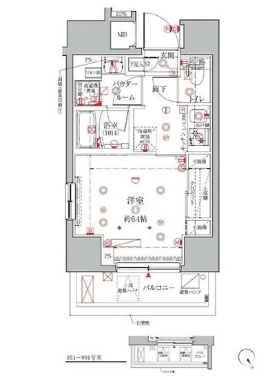
クレイシアIDZ三田 601の内部に足を踏み入れると、まず感じるのは心地よい静けさです。広がる空間は、25.5㎡の贅沢な専有面積を誇り、隅々までデザイナーズの美学が息づいています。あなた専用の空間は、まるでアートギャラリーのように、生活そのものが美の一部であることを教えてくれます。6.4帖のベッドルームは、柔らかな光を優しく取り込み、心を癒す場であると同時に、夢見る空間を提供してくれます。
このマンションは、単なる構造物ではなく、あなたに語りかける存在です。「私の中で新しい生活を築いてみないか?」と、クレイシアIDZ三田 601が囁くようです。ここには、24時間管理された安心感があり、TVモニターホンを通じて、いつでも安全を感じることができます。オートロックがあなたのプライバシーを守り、まるで秘密の隠れ家のように、外の世界から隔離されているような気分を味わえます。
エレベーターで優雅に1階から6階へと移動すれば、あなたは瞬時に都会の喧騒から解き放たれ、クレイシアIDZ三田 601での新生活がスタートします。バイク置場や駐輪場も完備され、アクティブなライフスタイルをサポートします。そして、宅配ボックスがあれば、外出先でも大切な荷物を心置きなく受け取ることができ、生活のリズムがスムーズになります。
周辺の三田エリアは、豊かな歴史と文化が息づく場所です。住まうあなたは、弘大な慶應義塾大学に囲まれ、芸術的な活動が盛んなこの地の恩恵を受けることでしょう。周囲には、落ち着いたカフェや洗練されたレストランが点在しており、友人を招いて特別なひとときを過ごすことができます。一杯のコーヒーからは、ひんやりとした香りが漂い、静かに時を忘れる贅沢を提供してくれます。
クレイシアIDZ三田 601での生活は、まるで映画のワンシーンのように、毎瞬が特別であり、心に刻まれることでしょう。ここに住むということは、ただの住処を超え、あなた自身のストーリーを描く舞台を手に入れることを意味します。新しい日々の中で、心を惹きつける場所に出会えたことに感謝し、クレイシアIDZ三田 601での幸福な暮らしを思い描いてみてはいかがでしょうか。
クレイシアIDZ三田 601の内部に足を踏み入れると、まず感じるのは心地よい静けさです。広がる空間は、25.5㎡の贅沢な専…クレイシアIDZ三田 601。これは、ただの住まいではありません。まるで都会の喧騒から逃れた隠れ家のように、あなたを迎える準備を整えています。東京都港区三田3-2-9に位置するこの物件は、北東の角から見える美しい朝焼けが、やがてあなたの一日の始まりの儀式となることでしょう。
クレイシアIDZ三田 601の内部に足を踏み入れると、まず感じるのは心地よい静けさです。広がる空間は、25.5㎡の贅沢な専有面積を誇り、隅々までデザイナーズの美学が息づいています。あなた専用の空間は、まるでアートギャラリーのように、生活そのものが美の一部であることを教えてくれます。6.4帖のベッドルームは、柔らかな光を優しく取り込み、心を癒す場であると同時に、夢見る空間を提供してくれます。
このマンションは、単なる構造物ではなく、あなたに語りかける存在です。「私の中で新しい生活を築いてみないか?」と、クレイシアIDZ三田 601が囁くようです。ここには、24時間管理された安心感があり、TVモニターホンを通じて、いつでも安全を感じることができます。オートロックがあなたのプライバシーを守り、まるで秘密の隠れ家のように、外の世界から隔離されているような気分を味わえます。
エレベーターで優雅に1階から6階へと移動すれば、あなたは瞬時に都会の喧騒から解き放たれ、クレイシアIDZ三田 601での新生活がスタートします。バイク置場や駐輪場も完備され、アクティブなライフスタイルをサポートします。そして、宅配ボックスがあれば、外出先でも大切な荷物を心置きなく受け取ることができ、生活のリズムがスムーズになります。
周辺の三田エリアは、豊かな歴史と文化が息づく場所です。住まうあなたは、弘大な慶應義塾大学に囲まれ、芸術的な活動が盛んなこの地の恩恵を受けることでしょう。周囲には、落ち着いたカフェや洗練されたレストランが点在しており、友人を招いて特別なひとときを過ごすことができます。一杯のコーヒーからは、ひんやりとした香りが漂い、静かに時を忘れる贅沢を提供してくれます。
クレイシアIDZ三田 601での生活は、まるで映画のワンシーンのように、毎瞬が特別であり、心に刻まれることでしょう。ここに住むということは、ただの住処を超え、あなた自身のストーリーを描く舞台を手に入れることを意味します。新しい日々の中で、心を惹きつける場所に出会えたことに感謝し、クレイシアIDZ三田 601での幸福な暮らしを思い描いてみてはいかがでしょうか。
バイブルスコア
バイブルスコア: 39.2
平均的なスコアです。
※バイブルスコア詳細はこちら
バイブルスコアとは独自のAI機械学習技術を利用した物件評価システムで、物件のおすすめ度を示します。最高得点は100点で、スコアが高いほど、よりおすすめの物件と評価されています。
写真
契約条件
| 賃料 | 予想金額:105,000〜125,000円程度 | 管理費 | 予想金額:8,000〜12,000円程度 |
| 礼金 | 非公開(アーカイブ) | 敷金 | 非公開(アーカイブ) |
| フリーレント | なし | 平米数 | 25.5㎡ |
| 間取り | 1K | 大型収納 | |
| 契約期間 |
| 方角 | 北東 |
| 更新料 | 契約形態 | 普通賃貸借契約 | |
| 取引態様 | 媒介 | 内見状況 | 入居中 |
| 入居時期 | 入居中 | SOHO・事務所 | |
| ペット | ペット可 | 間取り内訳 | BR=6.4J |
| キャンペーン情報・備考 | 本情報は賃料改定交渉の資料作成、収益物件の利回り試算、周辺エリアや最寄り駅の坪単価分析、次回募集開始時期の予測などにご活用いただけます。 | ||
※「どの不動産に頼めばいいのか分からない」「信頼できる営業マンの話を聞きたい」「一番親切な会社と契約したい」とお悩みの方におすすめなのが「高級賃貸バイブル」です。
高級賃貸バイブルは業界10年以上の熟練スタッフ群がお客様ファーストで対応します。
下記ボタンから、まずは無料でご相談下さい。
※内覧をご希望の際には、どうぞ物件のエントランス前にてお待ち合わせくださいませ。ご内覧後は、同じ場所でお別れとさせていただきます。お客様のご都合に合わせたスムーズなご案内を心がけておりますので、ご質問等がございましたら何なりとお申し付けください。 物件概要
| 物件名 |
| 築年月 |
|
|---|---|---|---|
| 所在地 | |||
| 交通 | |||
| 総戸数 |
| 総階数 |
|
| 構造 |
| ||
地図
物件までの道のりは、「拡大地図を表示」をクリックしてナビ機能をご利用ください。
部屋設備














建物設備

24時間管理

TVモニターホン

エレベーター

オートロック

バイク置場

宅配ボックス

敷地内ゴミ置場

駐輪場
クレイシアIDZ三田の現在募集中のお部屋
- No rooms found for this property.





























