
| 賃料 | 予想金額:98,000〜118,000円程度 | 管理費 | 予想金額:8,000〜12,000円程度 |
| 礼金/敷金 | 非公開(アーカイブ) | 平米数 | 25.95㎡ |
| 初期費用概算(参考) | 目安:110,500〜210,500 円 | みなし賃料(月額・参考) | 111,344〜131,344 円 |
| 備考 | 本ページは過去募集のアーカイブです。表示の金額は周辺相場・過去募集を踏まえた参考レンジであり、実際の契約金額・条件ではありません。 | ||
※上記みなし賃料(月額)は仲介手数料割引・無料&キャッシュバックを加味した高級賃貸バイブル限定の金額です。一般的なみなし賃料とは異なります。
【建物ページ】ジェノヴィア本所吾妻橋スカイガーデンの詳細・最新空室はこちら▶▶選ばれる理由
仲介手数料無料・キャンペーン情報(毎月15名様限定)
〇フリーレント1か月キャンペーン
ジェノヴィア本所吾妻橋スカイガーデン 703の口コミ・レビュー
ジェノヴィア本所吾妻橋スカイガーデン 703。この美しい名前が、まだ見ぬあなたの未来を優しく呼びかけるかのようです。703号室は、都営地下鉄浅草線 本所吾妻橋駅から徒歩10分、墨田区石原の静かな街並みに包まれ、まるで隠れ家のようにそっと佇んでいます。専有面積25.95㎡の小宇宙は、あなたの日々の物語を紡ぐ舞台となるべく、心を込めてお待ちしております。
このお部屋の西側に広がる風景は、日が沈むとと…ジェノヴィア本所吾妻橋スカイガーデン 703。この美しい名前が、まだ見ぬあなたの未来を優しく呼びかけるかのようです。703号室は、都営地下鉄浅草線 本所吾妻橋駅から徒歩10分、墨田区石原の静かな街並みに包まれ、まるで隠れ家のようにそっと佇んでいます。専有面積25.95㎡の小宇宙は、あなたの日々の物語を紡ぐ舞台となるべく、心を込めてお待ちしております。
このお部屋の西側に広がる風景は、日が沈むとともに、まるで絵画のような美しい景色に変わります。夕焼けのオレンジ色が窓越しに差し込み、柔らかな光が室内を包み込みます。その瞬間、空気が甘く香り、まるで人生の贅沢を味わっているかのような気分を与えてくれるのです。静けさの中に身を置いて、自分だけの安らぎの時間を過ごすことができるこの空間で、あなたのストーリーが始まります。
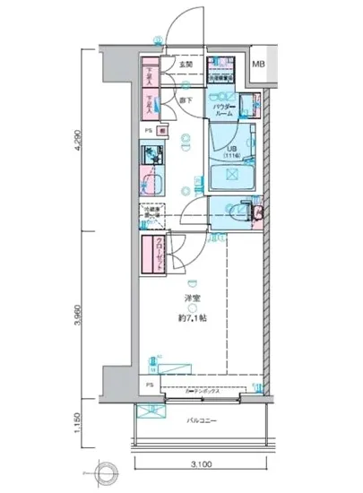
間取りは1K、洋室7.1帖という心地よい広さです。ここには、居心地の良い居間としての役割を果たしつつも、あなたの個性を反映するキャンバスとなるスペースがあります。柔らかなカーテンを揺らす優しい風が、窓を通してあなたのもとへ舞い込むと、そこには温もりある日常が待っています。朝食をテーブルに並べ、香ばしいコーヒーの香りが漂い、あなたの五感を目覚めさせるのです。
ジェノヴィア本所吾妻橋スカイガーデン 703は、ただの住まいではありません。それは、高級感あふれる生活を求めるあなたの理想を叶えるための場所なのです。オートロックやエレベーター、宅配ボックスなどの設備も整い、安心感と便利さが共存しています。それぞれの設備があなたの生活をサポートし、まるで親しい友人のように寄り添ってくれる存在なのです。
周辺には、墨田区の歴史や文化が色濃く残るスポットが点在しています。例えば、隅田川の美しい景色を楽しみながら、散策をすることで心が豊かに育まれ、新たなインスピレーションを得ることができるでしょう。歴史あるお寺や伝統的な商店街、そしてアートや文化の香りが漂う場所が、あなたの日常をさらに彩ります。
夜が訪れると、ジェノヴィア本所吾妻橋スカイガーデン 703のバルコニーからは、星空が広がります。静寂の中、心地よい風を感じながら、あなたの夢を描く時間が流れていくのです。ここには、ただの居住空間以上の、あなた自身の物語が宿る場所があるのです。さあ、新しい生活をこの場所で始めてみませんか。あなたの物語が、ここから幕を開けるのです。
このお部屋の西側に広がる風景は、日が沈むとと…ジェノヴィア本所吾妻橋スカイガーデン 703。この美しい名前が、まだ見ぬあなたの未来を優しく呼びかけるかのようです。703号室は、都営地下鉄浅草線 本所吾妻橋駅から徒歩10分、墨田区石原の静かな街並みに包まれ、まるで隠れ家のようにそっと佇んでいます。専有面積25.95㎡の小宇宙は、あなたの日々の物語を紡ぐ舞台となるべく、心を込めてお待ちしております。
このお部屋の西側に広がる風景は、日が沈むとともに、まるで絵画のような美しい景色に変わります。夕焼けのオレンジ色が窓越しに差し込み、柔らかな光が室内を包み込みます。その瞬間、空気が甘く香り、まるで人生の贅沢を味わっているかのような気分を与えてくれるのです。静けさの中に身を置いて、自分だけの安らぎの時間を過ごすことができるこの空間で、あなたのストーリーが始まります。
間取りは1K、洋室7.1帖という心地よい広さです。ここには、居心地の良い居間としての役割を果たしつつも、あなたの個性を反映するキャンバスとなるスペースがあります。柔らかなカーテンを揺らす優しい風が、窓を通してあなたのもとへ舞い込むと、そこには温もりある日常が待っています。朝食をテーブルに並べ、香ばしいコーヒーの香りが漂い、あなたの五感を目覚めさせるのです。
ジェノヴィア本所吾妻橋スカイガーデン 703は、ただの住まいではありません。それは、高級感あふれる生活を求めるあなたの理想を叶えるための場所なのです。オートロックやエレベーター、宅配ボックスなどの設備も整い、安心感と便利さが共存しています。それぞれの設備があなたの生活をサポートし、まるで親しい友人のように寄り添ってくれる存在なのです。
周辺には、墨田区の歴史や文化が色濃く残るスポットが点在しています。例えば、隅田川の美しい景色を楽しみながら、散策をすることで心が豊かに育まれ、新たなインスピレーションを得ることができるでしょう。歴史あるお寺や伝統的な商店街、そしてアートや文化の香りが漂う場所が、あなたの日常をさらに彩ります。
夜が訪れると、ジェノヴィア本所吾妻橋スカイガーデン 703のバルコニーからは、星空が広がります。静寂の中、心地よい風を感じながら、あなたの夢を描く時間が流れていくのです。ここには、ただの居住空間以上の、あなた自身の物語が宿る場所があるのです。さあ、新しい生活をこの場所で始めてみませんか。あなたの物語が、ここから幕を開けるのです。
バイブルスコア
バイブルスコア: 13.0
高級な物件でない場合は割高な物件です。。
※バイブルスコア詳細はこちら
バイブルスコアとは独自のAI機械学習技術を利用した物件評価システムで、物件のおすすめ度を示します。最高得点は100点で、スコアが高いほど、よりおすすめの物件と評価されています。
写真
現在写真が登録されていません契約条件
| 賃料 | 予想金額:98,000〜118,000円程度 | 管理費 | 予想金額:8,000〜12,000円程度 |
| 礼金 | 非公開(アーカイブ) | 敷金 | 非公開(アーカイブ) |
| フリーレント | 1.0ヶ月 | 平米数 | 25.95㎡ |
| 間取り | 1K | 大型収納 | |
| 契約期間 |
| 方角 | 西 |
| 更新料 | 契約形態 | 普通賃貸借契約 | |
| 取引態様 | 媒介 | 内見状況 | 入居中 |
| 入居時期 | 入居中 | SOHO・事務所 | |
| ペット | ペット可 | 間取り内訳 | 洋:7.1 |
| キャンペーン情報・備考 | 本情報は賃料改定交渉の資料作成、収益物件の利回り試算、周辺エリアや最寄り駅の坪単価分析、次回募集開始時期の予測などにご活用いただけます。 | ||
※「どの不動産に頼めばいいのか分からない」「信頼できる営業マンの話を聞きたい」「一番親切な会社と契約したい」とお悩みの方におすすめなのが「高級賃貸バイブル」です。
高級賃貸バイブルは業界10年以上の熟練スタッフ群がお客様ファーストで対応します。
下記ボタンから、まずは無料でご相談下さい。
※内覧をご希望の際には、どうぞ物件のエントランス前にてお待ち合わせくださいませ。ご内覧後は、同じ場所でお別れとさせていただきます。お客様のご都合に合わせたスムーズなご案内を心がけておりますので、ご質問等がございましたら何なりとお申し付けください。 物件概要
| 物件名 |
| 築年月 |
|
|---|---|---|---|
| 所在地 | |||
| 交通 | |||
| 総戸数 |
| 総階数 |
|
| 構造 |
| ||
地図
物件までの道のりは、「拡大地図を表示」をクリックしてナビ機能をご利用ください。
部屋設備













建物設備

TVモニターホン

エレベーター

オートロック

バイク置場

宅配ボックス

敷地内ゴミ置場

管理人

駐車場平置き

駐輪場
ジェノヴィア本所吾妻橋スカイガーデンの現在募集中のお部屋
- GENOVIA本所吾妻橋skygarden 2階 40.58㎡ - 間取り: 1LDK - 賃料: 17.6万円
