
| 賃料 | 予想金額:81,000〜101,000円程度 | 管理費 | 予想金額:10,000〜14,000円程度 |
| 礼金/敷金 | 非公開(アーカイブ) | 平米数 | 25.57㎡ |
| 初期費用概算(参考) | 目安:105,000〜205,000 円 | みなし賃料(月額・参考) | 96,229〜116,229 円 |
| 備考 | 本ページは過去募集のアーカイブです。表示の金額は周辺相場・過去募集を踏まえた参考レンジであり、実際の契約金額・条件ではありません。 | ||
※上記みなし賃料(月額)は仲介手数料割引・無料&キャッシュバックを加味した高級賃貸バイブル限定の金額です。一般的なみなし賃料とは異なります。
【建物ページ】ジェノヴィア本所吾妻橋スカイガーデンの詳細・最新空室はこちら▶▶選ばれる理由
仲介手数料無料・キャンペーン情報(毎月15名様限定)
〇フリーレント2か月キャンペーン
ジェノヴィア本所吾妻橋スカイガーデン 702の口コミ・レビュー
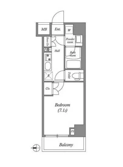
ジェノヴィア本所吾妻橋スカイガーデン 702。これはただの住所でもなければ、単なる数値の羅列ではありません。この特別な空間は、あなたの人生に寄り添い、まるで映画の主人公になったかのような日常を提供する場所です。702号室は、贅沢な1Kの間取りで、広さは25.57㎡。それは、心地よい居場所を求めるあなたにとって、まさに理想の逃避行の始まりです。
玄関のドアを開けた瞬間、あなたを出迎えるのは、優雅に…ジェノヴィア本所吾妻橋スカイガーデン 702。これはただの住所でもなければ、単なる数値の羅列ではありません。この特別な空間は、あなたの人生に寄り添い、まるで映画の主人公になったかのような日常を提供する場所です。702号室は、贅沢な1Kの間取りで、広さは25.57㎡。それは、心地よい居場所を求めるあなたにとって、まさに理想の逃避行の始まりです。
玄関のドアを開けた瞬間、あなたを出迎えるのは、優雅に広がる7.1帖の洋室。理想の住まいでは、ただの「部屋」という枠を超え、あなたの想像力を掻き立てるキャンバスとなります。西向きの窓からは、柔らかな夕陽が差し込み、まるで黄金の光がリビングを染め上げるかのよう。夕暮れ時には、オレンジ色の光の中で、温かみのある空間が生まれ、まるで気持ちを包み込んでくれるような感覚を味わえます。
こちらの物件、ジェノヴィア本所吾妻橋スカイガーデン 702には、オートロックシステムやTVモニターホンなどの先進的な設備が整っていますが、それ以上に強くあなたの心をつかむのは、この場所が持つ独特の雰囲気と歴史です。周囲の墨田区は、江戸の香りを残しながらも、現代のアートや文化が息づく街。歩いていくと、歴史的な建物と現代的なカフェが共存する様子を肌で感じ、その息遣いに浸ることができます。
あなたが朝、漂う新鮮なコーヒーの香りを楽しむ際、周囲の賑わいを感じながら、贅沢な一杯を味わうことができるのです。また、近隣にはバイク置場や駐輪場が完備されており、あなたのライフスタイルに合わせた自由な移動が可能となります。定期的に訪れる江戸川の風を感じながら、そんな移動を楽しめるのも、ここジェノヴィア本所吾妻橋スカイガーデン 702の魅力のひとつです。
あなたの一日の始まりは、静かな合間に広がる和やかな音色によって覚醒されます。周囲に耳を傾ければ、穏やかな風が木々を揺らし、鳥たちがさえずる姿が見えるでしょう。それは、自分自身を再発見する旅のようなもので、毎日が新たな発見に満ちています。
プロの管理人が常駐し、安心できる環境で暮らすことができるのもこの物件ならではの特権です。あなたが、心をゆったり解放できる場所、そして新しい出発点を見つけるための拠点であることを、心より感じていただけることでしょう。
ジェノヴィア本所吾妻橋スカイガーデン 702は、ただの住まいではなく、あなたの人生を彩る舞台です。その物語は、あなた自身が主役となり、日々の瞬間を大切にしながら紡いでいくのです。新しい生活を始める準備は整いましたか?あなたの新たな物語がここから始まります。
玄関のドアを開けた瞬間、あなたを出迎えるのは、優雅に…ジェノヴィア本所吾妻橋スカイガーデン 702。これはただの住所でもなければ、単なる数値の羅列ではありません。この特別な空間は、あなたの人生に寄り添い、まるで映画の主人公になったかのような日常を提供する場所です。702号室は、贅沢な1Kの間取りで、広さは25.57㎡。それは、心地よい居場所を求めるあなたにとって、まさに理想の逃避行の始まりです。
玄関のドアを開けた瞬間、あなたを出迎えるのは、優雅に広がる7.1帖の洋室。理想の住まいでは、ただの「部屋」という枠を超え、あなたの想像力を掻き立てるキャンバスとなります。西向きの窓からは、柔らかな夕陽が差し込み、まるで黄金の光がリビングを染め上げるかのよう。夕暮れ時には、オレンジ色の光の中で、温かみのある空間が生まれ、まるで気持ちを包み込んでくれるような感覚を味わえます。
こちらの物件、ジェノヴィア本所吾妻橋スカイガーデン 702には、オートロックシステムやTVモニターホンなどの先進的な設備が整っていますが、それ以上に強くあなたの心をつかむのは、この場所が持つ独特の雰囲気と歴史です。周囲の墨田区は、江戸の香りを残しながらも、現代のアートや文化が息づく街。歩いていくと、歴史的な建物と現代的なカフェが共存する様子を肌で感じ、その息遣いに浸ることができます。
あなたが朝、漂う新鮮なコーヒーの香りを楽しむ際、周囲の賑わいを感じながら、贅沢な一杯を味わうことができるのです。また、近隣にはバイク置場や駐輪場が完備されており、あなたのライフスタイルに合わせた自由な移動が可能となります。定期的に訪れる江戸川の風を感じながら、そんな移動を楽しめるのも、ここジェノヴィア本所吾妻橋スカイガーデン 702の魅力のひとつです。
あなたの一日の始まりは、静かな合間に広がる和やかな音色によって覚醒されます。周囲に耳を傾ければ、穏やかな風が木々を揺らし、鳥たちがさえずる姿が見えるでしょう。それは、自分自身を再発見する旅のようなもので、毎日が新たな発見に満ちています。
プロの管理人が常駐し、安心できる環境で暮らすことができるのもこの物件ならではの特権です。あなたが、心をゆったり解放できる場所、そして新しい出発点を見つけるための拠点であることを、心より感じていただけることでしょう。
ジェノヴィア本所吾妻橋スカイガーデン 702は、ただの住まいではなく、あなたの人生を彩る舞台です。その物語は、あなた自身が主役となり、日々の瞬間を大切にしながら紡いでいくのです。新しい生活を始める準備は整いましたか?あなたの新たな物語がここから始まります。
バイブルスコア
バイブルスコア: 31.4
平均的なスコアです。
※バイブルスコア詳細はこちら
バイブルスコアとは独自のAI機械学習技術を利用した物件評価システムで、物件のおすすめ度を示します。最高得点は100点で、スコアが高いほど、よりおすすめの物件と評価されています。
写真
現在写真が登録されていません契約条件
| 賃料 | 予想金額:81,000〜101,000円程度 | 管理費 | 予想金額:10,000〜14,000円程度 |
| 礼金 | 非公開(アーカイブ) | 敷金 | 非公開(アーカイブ) |
| フリーレント | 2.0ヶ月 | 平米数 | 25.57㎡ |
| 間取り | 1K | 大型収納 | |
| 契約期間 |
| 方角 | 西 |
| 更新料 | 契約形態 | 普通賃貸借契約 | |
| 取引態様 | 媒介 | 内見状況 | 入居中 |
| 入居時期 | 入居中 | SOHO・事務所 | |
| ペット | ペット可 | 間取り内訳 | 洋:7.1 |
| キャンペーン情報・備考 | 本情報は賃料改定交渉の資料作成、収益物件の利回り試算、周辺エリアや最寄り駅の坪単価分析、次回募集開始時期の予測などにご活用いただけます。 | ||
※「どの不動産に頼めばいいのか分からない」「信頼できる営業マンの話を聞きたい」「一番親切な会社と契約したい」とお悩みの方におすすめなのが「高級賃貸バイブル」です。
高級賃貸バイブルは業界10年以上の熟練スタッフ群がお客様ファーストで対応します。
下記ボタンから、まずは無料でご相談下さい。
※内覧をご希望の際には、どうぞ物件のエントランス前にてお待ち合わせくださいませ。ご内覧後は、同じ場所でお別れとさせていただきます。お客様のご都合に合わせたスムーズなご案内を心がけておりますので、ご質問等がございましたら何なりとお申し付けください。 物件概要
| 物件名 |
| 築年月 |
|
|---|---|---|---|
| 所在地 | |||
| 交通 | |||
| 総戸数 |
| 総階数 |
|
| 構造 |
| ||
地図
物件までの道のりは、「拡大地図を表示」をクリックしてナビ機能をご利用ください。
部屋設備













建物設備

TVモニターホン

エレベーター

オートロック

バイク置場

宅配ボックス

敷地内ゴミ置場

管理人

駐車場平置き

駐輪場
ジェノヴィア本所吾妻橋スカイガーデンの現在募集中のお部屋
- GENOVIA本所吾妻橋skygarden 2階 40.58㎡ - 間取り: 1LDK - 賃料: 17.6万円
