
| 賃料 | 予想金額:109,000〜129,000円程度 | 管理費 | 予想金額:9,000〜13,000円程度 |
| 礼金/敷金 | 非公開(アーカイブ) | 平米数 | 26.04㎡ |
| 初期費用概算(参考) | 目安:474,500〜574,500 円 | みなし賃料(月額・参考) | 128,448〜148,448 円 |
| 備考 | 本ページは過去募集のアーカイブです。表示の金額は周辺相場・過去募集を踏まえた参考レンジであり、実際の契約金額・条件ではありません。 | ||
※上記みなし賃料(月額)は仲介手数料割引・無料&キャッシュバックを加味した高級賃貸バイブル限定の金額です。一般的なみなし賃料とは異なります。
【建物ページ】イニシアイオ西麻布の詳細・最新空室はこちら▶▶選ばれる理由
仲介手数料無料・キャンペーン情報(毎月15名様限定)
〇仲介手数料割引キャンペーン
イニシアイオ西麻布 401の口コミ・レビュー
イニシアイオ西麻布 401。この魅力溢れる住空間は、まるで都会の喧騒から離れた静謐な楽園のように、心を穏やかに包み込んでくれます。26.04㎡のスペースには、洗練されたデザイナーズのエッセンスが息づき、あなたのライフスタイルを新たな高みへと導いてくれることでしょう。
この物件に一歩足を踏み入れると、北向きの窓から降り注ぐ柔らかな光が、空間を満たすのを感じます。その光が壁に優しく当たり、まるで絵画…イニシアイオ西麻布 401。この魅力溢れる住空間は、まるで都会の喧騒から離れた静謐な楽園のように、心を穏やかに包み込んでくれます。26.04㎡のスペースには、洗練されたデザイナーズのエッセンスが息づき、あなたのライフスタイルを新たな高みへと導いてくれることでしょう。
この物件に一歩足を踏み入れると、北向きの窓から降り注ぐ柔らかな光が、空間を満たすのを感じます。その光が壁に優しく当たり、まるで絵画のように変化していく様子は、まさにアートの一部。お洒落な家具と共に、ここに住む喜びを味わうことができるでしょう。広々とした洋室8.1帖は、あなたの夢を描くキャンバス。どんなインテリアで飾ろうか、無限の可能性が広がります。
イニシアイオ西麻布 401は、都心の中心にありながら、静寂な住宅街に佇む傑作です。周囲には高級ブランドのショップや一流レストランが軒を連ね、まるで自分が映画の主人公になったかのような感覚を味わえます。リラックスした休日には、近くのアートギャラリーへ足を運び、刺激的な作品に触れることができます。文化の薫りが漂う街で、あなた自身の感性を磨いていくのです。
驚くべきことに、イニシアイオ西麻布 401には24時間管理が行き届いており、安心感に包まれる毎日を送ることができます。オートロックの玄関を開ける瞬間、まるで秘密の隠れ家に辿り着いたかのような感覚に包まれ、自分だけの特別な空間へと誘われます。そして、宅配ボックスがあることで、忙しい日常においても大切な荷物を受け取る手間を省くことができるのです。便利さと安心感が融合したこの贅沢な環境で、あなたは心穏やかに日々を楽しむことができるでしょう。
イニシアイオ西麻布 401は、洗練された生活を求める方にぴったりの住まいです。心地よい風が通り抜け、都会の喧騒を忘れさせてくれるこの場所で、あなたの日常はまるで映画のワンシーンのように彩られます。訪れる人々が羨むあなただけの貴重な空間、その美しさは住む人の心に深く響くことでしょう。さあ、あなたもイニシアイオ西麻布 401で、特別な毎日を始めてみませんか?
この物件に一歩足を踏み入れると、北向きの窓から降り注ぐ柔らかな光が、空間を満たすのを感じます。その光が壁に優しく当たり、まるで絵画…イニシアイオ西麻布 401。この魅力溢れる住空間は、まるで都会の喧騒から離れた静謐な楽園のように、心を穏やかに包み込んでくれます。26.04㎡のスペースには、洗練されたデザイナーズのエッセンスが息づき、あなたのライフスタイルを新たな高みへと導いてくれることでしょう。
この物件に一歩足を踏み入れると、北向きの窓から降り注ぐ柔らかな光が、空間を満たすのを感じます。その光が壁に優しく当たり、まるで絵画のように変化していく様子は、まさにアートの一部。お洒落な家具と共に、ここに住む喜びを味わうことができるでしょう。広々とした洋室8.1帖は、あなたの夢を描くキャンバス。どんなインテリアで飾ろうか、無限の可能性が広がります。
イニシアイオ西麻布 401は、都心の中心にありながら、静寂な住宅街に佇む傑作です。周囲には高級ブランドのショップや一流レストランが軒を連ね、まるで自分が映画の主人公になったかのような感覚を味わえます。リラックスした休日には、近くのアートギャラリーへ足を運び、刺激的な作品に触れることができます。文化の薫りが漂う街で、あなた自身の感性を磨いていくのです。
驚くべきことに、イニシアイオ西麻布 401には24時間管理が行き届いており、安心感に包まれる毎日を送ることができます。オートロックの玄関を開ける瞬間、まるで秘密の隠れ家に辿り着いたかのような感覚に包まれ、自分だけの特別な空間へと誘われます。そして、宅配ボックスがあることで、忙しい日常においても大切な荷物を受け取る手間を省くことができるのです。便利さと安心感が融合したこの贅沢な環境で、あなたは心穏やかに日々を楽しむことができるでしょう。
イニシアイオ西麻布 401は、洗練された生活を求める方にぴったりの住まいです。心地よい風が通り抜け、都会の喧騒を忘れさせてくれるこの場所で、あなたの日常はまるで映画のワンシーンのように彩られます。訪れる人々が羨むあなただけの貴重な空間、その美しさは住む人の心に深く響くことでしょう。さあ、あなたもイニシアイオ西麻布 401で、特別な毎日を始めてみませんか?
バイブルスコア
バイブルスコア: 33.2
平均的なスコアです。
※バイブルスコア詳細はこちら
バイブルスコアとは独自のAI機械学習技術を利用した物件評価システムで、物件のおすすめ度を示します。最高得点は100点で、スコアが高いほど、よりおすすめの物件と評価されています。
写真
契約条件
| 賃料 | 予想金額:109,000〜129,000円程度 | 管理費 | 予想金額:9,000〜13,000円程度 |
| 礼金 | 非公開(アーカイブ) | 敷金 | 非公開(アーカイブ) |
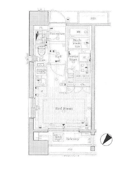
| フリーレント | なし | 平米数 | 26.04㎡ |
| 間取り | 1R | 大型収納 | |
| 契約期間 |
| 方角 | 北 |
| 更新料 | 契約形態 | 普通賃貸借契約 | |
| 取引態様 | 媒介 | 内見状況 | 入居中 |
| 入居時期 | 入居中 | SOHO・事務所 | |
| ペット | ペット可 | 間取り内訳 | 洋:8.1 |
| キャンペーン情報・備考 | 本情報は賃料改定交渉の資料作成、収益物件の利回り試算、周辺エリアや最寄り駅の坪単価分析、次回募集開始時期の予測などにご活用いただけます。 | ||
※「どの不動産に頼めばいいのか分からない」「信頼できる営業マンの話を聞きたい」「一番親切な会社と契約したい」とお悩みの方におすすめなのが「高級賃貸バイブル」です。
高級賃貸バイブルは業界10年以上の熟練スタッフ群がお客様ファーストで対応します。
下記ボタンから、まずは無料でご相談下さい。
※内覧をご希望の際には、どうぞ物件のエントランス前にてお待ち合わせくださいませ。ご内覧後は、同じ場所でお別れとさせていただきます。お客様のご都合に合わせたスムーズなご案内を心がけておりますので、ご質問等がございましたら何なりとお申し付けください。 物件概要
| 物件名 |
| 築年月 |
|
|---|---|---|---|
| 所在地 | |||
| 交通 | |||
| 総戸数 |
| 総階数 |
|
| 構造 |
| ||
地図
物件までの道のりは、「拡大地図を表示」をクリックしてナビ機能をご利用ください。
部屋設備
















建物設備

24時間管理

TVモニターホン

エレベーター

オートロック

バイク置場

宅配ボックス

敷地内ゴミ置場

駐車場機械式

駐輪場
イニシアイオ西麻布の現在募集中のお部屋
- No rooms found for this property.






















