
| 賃料 | 予想金額:145,000〜165,000円程度 | 管理費 | 予想金額:6,000〜10,000円程度 |
| 礼金/敷金 | 非公開(アーカイブ) | 平米数 | 43.39㎡ |
| 初期費用概算(参考) | 目安:627,000〜727,000 円 | みなし賃料(月額・参考) | 163,875〜183,875 円 |
| 備考 | 本ページは過去募集のアーカイブです。表示の金額は周辺相場・過去募集を踏まえた参考レンジであり、実際の契約金額・条件ではありません。 | ||
※上記みなし賃料(月額)は仲介手数料割引・無料&キャッシュバックを加味した高級賃貸バイブル限定の金額です。一般的なみなし賃料とは異なります。
【建物ページ】プラムコート東中野の詳細・最新空室はこちら▶▶選ばれる理由
仲介手数料無料・キャンペーン情報(毎月15名様限定)
〇仲介手数料割引キャンペーン
プラムコート東中野 109の口コミ・レビュー
プラムコート東中野 109は、まるで都会の喧騒からひとときの安らぎをもたらす隠れ家のようです。43.39㎡という広さの中に、洗練されたデザインと機能性が見事に融合し、住む人々を特別な日常へと誘います。この物件に足を踏み入れた瞬間、あなたはまるで映画の主人公になったかのような高揚感を覚えます。
まず目に飛び込んでくるのは、優雅な洋室6.03帖の空間。朝日が優しく差し込む窓辺では、カーテンの隙間から…プラムコート東中野 109は、まるで都会の喧騒からひとときの安らぎをもたらす隠れ家のようです。43.39㎡という広さの中に、洗練されたデザインと機能性が見事に融合し、住む人々を特別な日常へと誘います。この物件に足を踏み入れた瞬間、あなたはまるで映画の主人公になったかのような高揚感を覚えます。
まず目に飛び込んでくるのは、優雅な洋室6.03帖の空間。朝日が優しく差し込む窓辺では、カーテンの隙間からこぼれる光が、まるで黄金色の絨毯を敷き詰めるかのようです。新鮮な空気を吸い込み、心の奥底から清々しさを感じることでしょう。ふんわりと漂うコーヒーの香り、そしてトーストが焼ける焼き加減に、朝の始まりを告げる優しいサウンドが心地よく響きます。
続いては、9.31帖の広々としたLDK。この空間では、家族や友人と共に過ごすひと時が何物にも代えがたい宝物となります。対面式のキッチンでは、料理をしながら会話が弾む姿が目に浮かびます。料理の香ばしい香りと、笑い声が交わる瞬間はまさに映画のワンシーンのよう。壁のアクセントや照明が、居心地の良い雰囲気を演出し、心の疲れを癒してくれます。
プラムコート東中野 109の魅力は、ただ居住する場所を提供するだけではありません。オートロックやエレベーター、宅配ボックスといった先進的な設備が、安心感と利便性をもたらし、日常生活に寄り添う存在となるのです。管理人の見守りを受けながら、心地よく安全な空間での生活を心ゆくまで楽しむことができるでしょう。
また、この物件は東京都中野区東中野という立地に位置し、近くには歴史ある文化やアートギャラリーが点在しています。散策を楽しみながら、地元の人々との交流や、文化に触れる機会も豊富です。おしゃれなカフェや、こだわりのショップも多く、周囲には魅力的なスポットが溢れています。この地域が持つアートの息吹を感じながら、あなたのライフスタイルを彩る素敵な場所となるでしょう。
さあ、プラムコート東中野 109へ、あなたの新しい物語を紡ぐための第一歩を踏み出してみませんか。どんな日々が待っているのか、ワクワクしながらこの特別な場所での生活を想像してみてください。息を呑むような瞬間が、あなたを待っています。ここでの生活は、まるで一冊の本のように、あなた自身の手で新たなページをめくる旅なのです。
まず目に飛び込んでくるのは、優雅な洋室6.03帖の空間。朝日が優しく差し込む窓辺では、カーテンの隙間から…プラムコート東中野 109は、まるで都会の喧騒からひとときの安らぎをもたらす隠れ家のようです。43.39㎡という広さの中に、洗練されたデザインと機能性が見事に融合し、住む人々を特別な日常へと誘います。この物件に足を踏み入れた瞬間、あなたはまるで映画の主人公になったかのような高揚感を覚えます。
まず目に飛び込んでくるのは、優雅な洋室6.03帖の空間。朝日が優しく差し込む窓辺では、カーテンの隙間からこぼれる光が、まるで黄金色の絨毯を敷き詰めるかのようです。新鮮な空気を吸い込み、心の奥底から清々しさを感じることでしょう。ふんわりと漂うコーヒーの香り、そしてトーストが焼ける焼き加減に、朝の始まりを告げる優しいサウンドが心地よく響きます。
続いては、9.31帖の広々としたLDK。この空間では、家族や友人と共に過ごすひと時が何物にも代えがたい宝物となります。対面式のキッチンでは、料理をしながら会話が弾む姿が目に浮かびます。料理の香ばしい香りと、笑い声が交わる瞬間はまさに映画のワンシーンのよう。壁のアクセントや照明が、居心地の良い雰囲気を演出し、心の疲れを癒してくれます。
プラムコート東中野 109の魅力は、ただ居住する場所を提供するだけではありません。オートロックやエレベーター、宅配ボックスといった先進的な設備が、安心感と利便性をもたらし、日常生活に寄り添う存在となるのです。管理人の見守りを受けながら、心地よく安全な空間での生活を心ゆくまで楽しむことができるでしょう。
また、この物件は東京都中野区東中野という立地に位置し、近くには歴史ある文化やアートギャラリーが点在しています。散策を楽しみながら、地元の人々との交流や、文化に触れる機会も豊富です。おしゃれなカフェや、こだわりのショップも多く、周囲には魅力的なスポットが溢れています。この地域が持つアートの息吹を感じながら、あなたのライフスタイルを彩る素敵な場所となるでしょう。
さあ、プラムコート東中野 109へ、あなたの新しい物語を紡ぐための第一歩を踏み出してみませんか。どんな日々が待っているのか、ワクワクしながらこの特別な場所での生活を想像してみてください。息を呑むような瞬間が、あなたを待っています。ここでの生活は、まるで一冊の本のように、あなた自身の手で新たなページをめくる旅なのです。
バイブルスコア
バイブルスコア: 24.2
平均的なスコアです。
※バイブルスコア詳細はこちら
バイブルスコアとは独自のAI機械学習技術を利用した物件評価システムで、物件のおすすめ度を示します。最高得点は100点で、スコアが高いほど、よりおすすめの物件と評価されています。
写真
現在写真が登録されていません契約条件
| 賃料 | 予想金額:145,000〜165,000円程度 | 管理費 | 予想金額:6,000〜10,000円程度 |
| 礼金 | 非公開(アーカイブ) | 敷金 | 非公開(アーカイブ) |
| フリーレント | なし | 平米数 | 43.39㎡ |
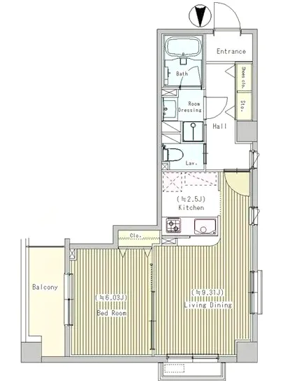
| 間取り | 1LDK | 大型収納 | |
| 契約期間 |
| 方角 | 東 |
| 更新料 | 契約形態 | 普通賃貸借契約 | |
| 取引態様 | 媒介 | 内見状況 | 入居中 |
| 入居時期 | 入居中 | SOHO・事務所 | |
| ペット | 間取り内訳 | 洋:6.03 LDK:9.31 | |
| キャンペーン情報・備考 | 本情報は賃料改定交渉の資料作成、収益物件の利回り試算、周辺エリアや最寄り駅の坪単価分析、次回募集開始時期の予測などにご活用いただけます。 | ||
※「どの不動産に頼めばいいのか分からない」「信頼できる営業マンの話を聞きたい」「一番親切な会社と契約したい」とお悩みの方におすすめなのが「高級賃貸バイブル」です。
高級賃貸バイブルは業界10年以上の熟練スタッフ群がお客様ファーストで対応します。
下記ボタンから、まずは無料でご相談下さい。
※内覧をご希望の際には、どうぞ物件のエントランス前にてお待ち合わせくださいませ。ご内覧後は、同じ場所でお別れとさせていただきます。お客様のご都合に合わせたスムーズなご案内を心がけておりますので、ご質問等がございましたら何なりとお申し付けください。 物件概要
| 物件名 |
| 築年月 |
|
|---|---|---|---|
| 所在地 | |||
| 交通 | |||
| 総戸数 |
| 総階数 |
|
| 構造 |
| ||
地図
物件までの道のりは、「拡大地図を表示」をクリックしてナビ機能をご利用ください。
部屋設備
















建物設備

TVモニターホン

エレベーター

オートロック

宅配ボックス

敷地内ゴミ置場

管理人

駐車場平置き

駐輪場
プラムコート東中野の現在募集中のお部屋
- No rooms found for this property.
