
| 賃料 | 予想金額:165,000〜185,000円程度 | 管理費 | 予想金額:18,000〜22,000円程度 |
| 礼金/敷金 | 非公開(アーカイブ) | 平米数 | 33.89㎡ |
| 初期費用概算(参考) | 目安:682,500〜782,500 円 | みなし賃料(月額・参考) | 196,615〜216,615 円 |
| 備考 | 本ページは過去募集のアーカイブです。表示の金額は周辺相場・過去募集を踏まえた参考レンジであり、実際の契約金額・条件ではありません。 | ||
※上記みなし賃料(月額)は仲介手数料割引・無料&キャッシュバックを加味した高級賃貸バイブル限定の金額です。一般的なみなし賃料とは異なります。
【建物ページ】プレミアムキューブ代々木上原の詳細・最新空室はこちら▶▶選ばれる理由
仲介手数料無料・キャンペーン情報(毎月15名様限定)
〇引っ越しお祝い金105000円プレゼント(キャッシュバック)
〇仲介手数料無料キャンペーン
プレミアムキューブ代々木上原 704の口コミ・レビュー
プレミアムキューブ代々木上原 704。これが、あなたの生活の舞台となる高級賃貸物件です。この特別な空間は、都市の喧騒を少し離れた静かな場所に佇んでおり、まるで一つのアートピースのように、五感を刺激する瞬間を提供します。
704号室の扉を開けた瞬間、あなたは新たな生活の始まりを感じるでしょう。33.89㎡のこの1DKには、穏やかな光が差し込み、毎朝目覚めるたびに新しい日が待っていることを教えてくれ…プレミアムキューブ代々木上原 704。これが、あなたの生活の舞台となる高級賃貸物件です。この特別な空間は、都市の喧騒を少し離れた静かな場所に佇んでおり、まるで一つのアートピースのように、五感を刺激する瞬間を提供します。
704号室の扉を開けた瞬間、あなたは新たな生活の始まりを感じるでしょう。33.89㎡のこの1DKには、穏やかな光が差し込み、毎朝目覚めるたびに新しい日が待っていることを教えてくれるでしょう。北向きの窓からは、柔らかな光が降り注ぎ、心を落ち着かせる静かなプライベート空間が広がります。ここにいると、毎日の忙しさを忘れて、まるで小説の主人公になったかのような気持ちになります。
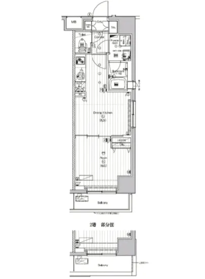
洋室6帖の空間は、シンプルでありながらも温もりを感じさせ、あなた自身の個性を表現できるCanvasです。お気に入りのアートや本、そしてあなたが愛するものたちで彩られ、心地よい居場所となることでしょう。デザイン性と機能性を兼ね備えたダイニングキッチン8帖では、料理の香りが立ち込め、友人との楽しいディナーや、大切な人との特別な時間を過ごすことができます。食材が sizzling と音を立て、豊かな風味が広がるその瞬間、あなたの暮らしはまるで映画の一コマのように輝きます。
この物件の魅力は、単なる設備や間取りだけには収まりません。TVモニターホンやエレベーター、オートロックなどの最新の設備は、安全で快適な暮らしを実現するための大切なサポートです。また、宅配ボックスや敷地内ゴミ置場といった便利な設備が、日常生活のストレスを和らげ、心に余裕をもたらしてくれるでしょう。
周辺の風景には、代々木上原ならではの歴史と文化が息づいています。近くの公園では四季の移り変わりを感じ、懐かしさと新しさが交錯するカフェやギャラリーでアートを楽しむことができます。東京メトロ千代田線の代々木上原駅まで徒歩3分という便利さは、日々の生活をより特別なものにしてくれるでしょう。
プレミアムキューブ代々木上原 704があなたの新しい住まいであることは、まさに運命の出会い。ここでの日々は、静寂の中にある穏やかな贅沢を実感させ、あなたの人生に新たな彩りを加えてくれることでしょう。他にはない特別な暮らしが待っています。あなたの物語が、ここから始まるのです。
704号室の扉を開けた瞬間、あなたは新たな生活の始まりを感じるでしょう。33.89㎡のこの1DKには、穏やかな光が差し込み、毎朝目覚めるたびに新しい日が待っていることを教えてくれ…プレミアムキューブ代々木上原 704。これが、あなたの生活の舞台となる高級賃貸物件です。この特別な空間は、都市の喧騒を少し離れた静かな場所に佇んでおり、まるで一つのアートピースのように、五感を刺激する瞬間を提供します。
704号室の扉を開けた瞬間、あなたは新たな生活の始まりを感じるでしょう。33.89㎡のこの1DKには、穏やかな光が差し込み、毎朝目覚めるたびに新しい日が待っていることを教えてくれるでしょう。北向きの窓からは、柔らかな光が降り注ぎ、心を落ち着かせる静かなプライベート空間が広がります。ここにいると、毎日の忙しさを忘れて、まるで小説の主人公になったかのような気持ちになります。
洋室6帖の空間は、シンプルでありながらも温もりを感じさせ、あなた自身の個性を表現できるCanvasです。お気に入りのアートや本、そしてあなたが愛するものたちで彩られ、心地よい居場所となることでしょう。デザイン性と機能性を兼ね備えたダイニングキッチン8帖では、料理の香りが立ち込め、友人との楽しいディナーや、大切な人との特別な時間を過ごすことができます。食材が sizzling と音を立て、豊かな風味が広がるその瞬間、あなたの暮らしはまるで映画の一コマのように輝きます。
この物件の魅力は、単なる設備や間取りだけには収まりません。TVモニターホンやエレベーター、オートロックなどの最新の設備は、安全で快適な暮らしを実現するための大切なサポートです。また、宅配ボックスや敷地内ゴミ置場といった便利な設備が、日常生活のストレスを和らげ、心に余裕をもたらしてくれるでしょう。
周辺の風景には、代々木上原ならではの歴史と文化が息づいています。近くの公園では四季の移り変わりを感じ、懐かしさと新しさが交錯するカフェやギャラリーでアートを楽しむことができます。東京メトロ千代田線の代々木上原駅まで徒歩3分という便利さは、日々の生活をより特別なものにしてくれるでしょう。
プレミアムキューブ代々木上原 704があなたの新しい住まいであることは、まさに運命の出会い。ここでの日々は、静寂の中にある穏やかな贅沢を実感させ、あなたの人生に新たな彩りを加えてくれることでしょう。他にはない特別な暮らしが待っています。あなたの物語が、ここから始まるのです。
バイブルスコア
バイブルスコア: 16.8
高級な物件でない場合は割高な物件です。。
※バイブルスコア詳細はこちら
バイブルスコアとは独自のAI機械学習技術を利用した物件評価システムで、物件のおすすめ度を示します。最高得点は100点で、スコアが高いほど、よりおすすめの物件と評価されています。
写真
現在写真が登録されていません契約条件
| 賃料 | 予想金額:165,000〜185,000円程度 | 管理費 | 予想金額:18,000〜22,000円程度 |
| 礼金 | 非公開(アーカイブ) | 敷金 | 非公開(アーカイブ) |
| フリーレント | なし | 平米数 | 33.89㎡ |
| 間取り | 1DK | 大型収納 | |
| 契約期間 |
| 方角 | 北 |
| 更新料 | 契約形態 | 普通賃貸借契約 | |
| 取引態様 | 媒介 | 内見状況 | 入居中 |
| 入居時期 | 入居中 | SOHO・事務所 | |
| ペット | ペット可 | 間取り内訳 | 洋:6 DK:8 |
| キャンペーン情報・備考 | 本情報は賃料改定交渉の資料作成、収益物件の利回り試算、周辺エリアや最寄り駅の坪単価分析、次回募集開始時期の予測などにご活用いただけます。 | ||
※「どの不動産に頼めばいいのか分からない」「信頼できる営業マンの話を聞きたい」「一番親切な会社と契約したい」とお悩みの方におすすめなのが「高級賃貸バイブル」です。
高級賃貸バイブルは業界10年以上の熟練スタッフ群がお客様ファーストで対応します。
下記ボタンから、まずは無料でご相談下さい。
※内覧をご希望の際には、どうぞ物件のエントランス前にてお待ち合わせくださいませ。ご内覧後は、同じ場所でお別れとさせていただきます。お客様のご都合に合わせたスムーズなご案内を心がけておりますので、ご質問等がございましたら何なりとお申し付けください。 物件概要
| 物件名 |
| 築年月 |
|
|---|---|---|---|
| 所在地 | |||
| 交通 | |||
| 総戸数 |
| 総階数 |
|
| 構造 |
| ||
地図
物件までの道のりは、「拡大地図を表示」をクリックしてナビ機能をご利用ください。
部屋設備














建物設備

TVモニターホン

エレベーター

オートロック

宅配ボックス

敷地内ゴミ置場

管理人

駐輪場
プレミアムキューブ代々木上原の現在募集中のお部屋
- PREMIUM CUBE 代々木上原 504 - 間取り: 1DK - 賃料: 18.5万円
- PREMIUM CUBE 代々木上原 203 - 間取り: 1DK - 賃料: 18.3万円
- PREMIUM CUBE 代々木上原 403 - 間取り: 1DK - 賃料: 18.4万円
