
| 賃料 | 予想金額:171,000〜191,000円程度 | 管理費 | 予想金額:16,000〜20,000円程度 |
| 礼金/敷金 | 非公開(アーカイブ) | 平米数 | 33.89㎡ |
| 初期費用概算(参考) | 目安:718,500〜818,500 円 | みなし賃料(月額・参考) | 201,240〜221,240 円 |
| 備考 | 本ページは過去募集のアーカイブです。表示の金額は周辺相場・過去募集を踏まえた参考レンジであり、実際の契約金額・条件ではありません。 | ||
※上記みなし賃料(月額)は仲介手数料割引・無料&キャッシュバックを加味した高級賃貸バイブル限定の金額です。一般的なみなし賃料とは異なります。
【建物ページ】プレミアムキューブ代々木上原の詳細・最新空室はこちら▶▶選ばれる理由
仲介手数料無料・キャンペーン情報(毎月15名様限定)
〇仲介手数料割引キャンペーン
プレミアムキューブ代々木上原 404の口コミ・レビュー
プレミアムキューブ代々木上原 404。ここは、まるで時を忘れさせるような美しい空間が広がる特別な場所です。東京都渋谷区大山町1に位置し、北の方角を向いて佇むこの物件は、まさに都会のオアシスのような存在です。静けさと上品さを併せ持ちながら、生活の利便性を考慮した設計が施されています。
あなたがこの家の扉を開けると、まず感じるのは、心地よい木の香りと温かい光に包まれる優しい空間。DK8帖のリビングは…プレミアムキューブ代々木上原 404。ここは、まるで時を忘れさせるような美しい空間が広がる特別な場所です。東京都渋谷区大山町1に位置し、北の方角を向いて佇むこの物件は、まさに都会のオアシスのような存在です。静けさと上品さを併せ持ちながら、生活の利便性を考慮した設計が施されています。
あなたがこの家の扉を開けると、まず感じるのは、心地よい木の香りと温かい光に包まれる優しい空間。DK8帖のリビングは、まるで美術館の一角のように高い天井と大きな窓から差し込む自然光によって、日々の生活が鮮やかなキャンバスに変わります。そこでお気に入りのカフェの香り漂うコーヒーを淹れ、朝のひとときを静かに楽しむと、まるで映画のワンシーンに自分が出演しているかのような感覚に浸れます。
続いて、洋室6帖のスペースがあなたを包み込みます。この部屋は、夢見心地の夜を約束してくれる場所です。薄暗いカーテンの隙間からもれ出す月明かりが、部屋を幻想的な空間に変え、一日の疲れを癒してくれる心の拠り所となるでしょう。質の高い寝具に身を委ねるその瞬間、あなたは……まるで星空の下、静かな森の中で過ごすような心地よさを感じることでしょう。
プレミアムキューブ代々木上原 404は、エレベーターやオートロック、宅配ボックスなどの最新の設備も整い、安心して暮らせる環境を提供しています。管理人の穏やかな笑顔が、日常に安心感をもたらし、何気ない会話が新たなコミュニティの芽生えを手助けします。駐輪場も完備されており、あなたの自転車と共に、近隣の美術館や公園、カフェへと自由に旅することができます。
また、この物件の近くには、東京メトロ千代田線 代々木上原駅が徒歩3分というアクセスの良さも魅力です。文化と歴史が交差するこのエリアは、アートと音楽、食の宝庫。週末には、地元のアーティストが手掛けた作品に触れたり、隠れ家的なレストランで美味しい料理を楽しんだり、心の豊かさを育む時間を過ごすことができます。
プレミアムキューブ代々木上原 404は、ただの住まいではありません。ここは、あなたの人生の新たな舞台であり、日々の生活が特別な物語となる場所です。この空間で、あなた自身のストーリーを紡いでいくことができます。日々を丁寧に、豊かに、心に残る瞬間を重ねていくことで、あなたはこの地に根ざした新たな人生を築いていくことでしょう。また、古き良き東京の情緒を感じながら、現代の利便性を享受できるこの空間で、ぜひ素敵な未来を築いてください。
あなたがこの家の扉を開けると、まず感じるのは、心地よい木の香りと温かい光に包まれる優しい空間。DK8帖のリビングは…プレミアムキューブ代々木上原 404。ここは、まるで時を忘れさせるような美しい空間が広がる特別な場所です。東京都渋谷区大山町1に位置し、北の方角を向いて佇むこの物件は、まさに都会のオアシスのような存在です。静けさと上品さを併せ持ちながら、生活の利便性を考慮した設計が施されています。
あなたがこの家の扉を開けると、まず感じるのは、心地よい木の香りと温かい光に包まれる優しい空間。DK8帖のリビングは、まるで美術館の一角のように高い天井と大きな窓から差し込む自然光によって、日々の生活が鮮やかなキャンバスに変わります。そこでお気に入りのカフェの香り漂うコーヒーを淹れ、朝のひとときを静かに楽しむと、まるで映画のワンシーンに自分が出演しているかのような感覚に浸れます。
続いて、洋室6帖のスペースがあなたを包み込みます。この部屋は、夢見心地の夜を約束してくれる場所です。薄暗いカーテンの隙間からもれ出す月明かりが、部屋を幻想的な空間に変え、一日の疲れを癒してくれる心の拠り所となるでしょう。質の高い寝具に身を委ねるその瞬間、あなたは……まるで星空の下、静かな森の中で過ごすような心地よさを感じることでしょう。
プレミアムキューブ代々木上原 404は、エレベーターやオートロック、宅配ボックスなどの最新の設備も整い、安心して暮らせる環境を提供しています。管理人の穏やかな笑顔が、日常に安心感をもたらし、何気ない会話が新たなコミュニティの芽生えを手助けします。駐輪場も完備されており、あなたの自転車と共に、近隣の美術館や公園、カフェへと自由に旅することができます。
また、この物件の近くには、東京メトロ千代田線 代々木上原駅が徒歩3分というアクセスの良さも魅力です。文化と歴史が交差するこのエリアは、アートと音楽、食の宝庫。週末には、地元のアーティストが手掛けた作品に触れたり、隠れ家的なレストランで美味しい料理を楽しんだり、心の豊かさを育む時間を過ごすことができます。
プレミアムキューブ代々木上原 404は、ただの住まいではありません。ここは、あなたの人生の新たな舞台であり、日々の生活が特別な物語となる場所です。この空間で、あなた自身のストーリーを紡いでいくことができます。日々を丁寧に、豊かに、心に残る瞬間を重ねていくことで、あなたはこの地に根ざした新たな人生を築いていくことでしょう。また、古き良き東京の情緒を感じながら、現代の利便性を享受できるこの空間で、ぜひ素敵な未来を築いてください。
バイブルスコア
バイブルスコア: 56
条件のいい物件です、引っ越しが2か月以内の場合は仮申し込みを検討すべき物件です。
このお部屋は、現在ご入居中のため空室情報はございません。ただし、将来的に募集が開始される際、バイブルスコアにおいて非常に高い評価が期待されます。特にご興味をお持ちの方は、今のうちにブックマークやお気に入りに登録していただくと、募集開始のお知らせをすぐに受け取ることができます。是非ともご検討くださいませ。
※バイブルスコア詳細はこちら
バイブルスコアとは独自のAI機械学習技術を利用した物件評価システムで、物件のおすすめ度を示します。最高得点は100点で、スコアが高いほど、よりおすすめの物件と評価されています。
写真
現在写真が登録されていません契約条件
| 賃料 | 予想金額:171,000〜191,000円程度 | 管理費 | 予想金額:16,000〜20,000円程度 |
| 礼金 | 非公開(アーカイブ) | 敷金 | 非公開(アーカイブ) |
| フリーレント | なし | 平米数 | 33.89㎡ |
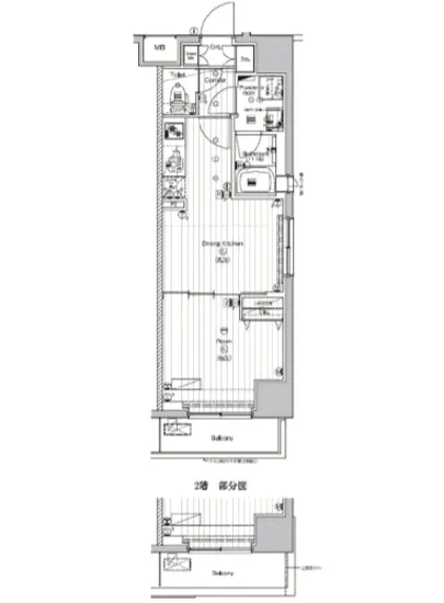
| 間取り | 1DK | 大型収納 | なし |
| 契約期間 | 2年 | 方角 | 北 |
| 更新料 | 1ヶ月 | 契約形態 | 普通賃貸借契約 |
| 取引態様 | 媒介 | 内見状況 | 入居中 |
| 入居時期 | 入居中 | SOHO・事務所 | 不可 |
| ペット | 可 | 間取り内訳 | DK8帖 洋室6帖 |
| キャンペーン情報・備考 | 本情報は賃料改定交渉の資料作成、収益物件の利回り試算、周辺エリアや最寄り駅の坪単価分析、次回募集開始時期の予測などにご活用いただけます。 | ||
※「どの不動産に頼めばいいのか分からない」「信頼できる営業マンの話を聞きたい」「一番親切な会社と契約したい」とお悩みの方におすすめなのが「高級賃貸バイブル」です。
高級賃貸バイブルは業界10年以上の熟練スタッフ群がお客様ファーストで対応します。
下記ボタンから、まずは無料でご相談下さい。
※内覧をご希望の際には、どうぞ物件のエントランス前にてお待ち合わせくださいませ。ご内覧後は、同じ場所でお別れとさせていただきます。お客様のご都合に合わせたスムーズなご案内を心がけておりますので、ご質問等がございましたら何なりとお申し付けください。 物件概要
| 物件名 |
| 築年月 |
|
|---|---|---|---|
| 所在地 | |||
| 交通 | |||
| 総戸数 |
| 総階数 |
|
| 構造 |
| ||
地図
物件までの道のりは、「拡大地図を表示」をクリックしてナビ機能をご利用ください。
部屋設備









建物設備

TVモニターホン

エレベーター

オートロック

宅配ボックス

敷地内ゴミ置場

管理人

駐輪場
プレミアムキューブ代々木上原の現在募集中のお部屋
- PREMIUM CUBE 代々木上原 504 - 間取り: 1DK - 賃料: 18.5万円
- PREMIUM CUBE 代々木上原 203 - 間取り: 1DK - 賃料: 18.3万円
- PREMIUM CUBE 代々木上原 403 - 間取り: 1DK - 賃料: 18.4万円
