
| 賃料 | 予想金額:146,000〜166,000円程度 | 管理費 | 予想金額:10,000〜14,000円程度 |
| 礼金/敷金 | 非公開(アーカイブ) | 平米数 | 45.34㎡ |
| 初期費用概算(参考) | 目安:683,500〜783,500 円 | みなし賃料(月額・参考) | 170,031〜190,031 円 |
| 備考 | 本ページは過去募集のアーカイブです。表示の金額は周辺相場・過去募集を踏まえた参考レンジであり、実際の契約金額・条件ではありません。 | ||
※上記みなし賃料(月額)は仲介手数料割引・無料&キャッシュバックを加味した高級賃貸バイブル限定の金額です。一般的なみなし賃料とは異なります。
【建物ページ】ガラ・グランディ日本橋の詳細・最新空室はこちら▶▶選ばれる理由
仲介手数料無料・キャンペーン情報(毎月15名様限定)
〇仲介手数料割引キャンペーン
ガラ・グランディ日本橋 10階 45.34㎡の口コミ・レビュー
ガラ・グランディ日本橋 10階 45.34㎡。あなたの新たな生活の舞台がここにあります。この美しい高級賃貸物件は、ただの住まいではなく、まるで一篇の詩のように、心の豊かさを育む場所なのです。10階からの眺望は、忙しい都市の喧騒を忘れさせてくれる贅沢なひとときを提供します。窓から差し込む南西、南東の光が、朝の目覚めを優しく包み込み、アラーム音よりも心地よい日々の始まりを感じさせてくれます。
この空…ガラ・グランディ日本橋 10階 45.34㎡。あなたの新たな生活の舞台がここにあります。この美しい高級賃貸物件は、ただの住まいではなく、まるで一篇の詩のように、心の豊かさを育む場所なのです。10階からの眺望は、忙しい都市の喧騒を忘れさせてくれる贅沢なひとときを提供します。窓から差し込む南西、南東の光が、朝の目覚めを優しく包み込み、アラーム音よりも心地よい日々の始まりを感じさせてくれます。
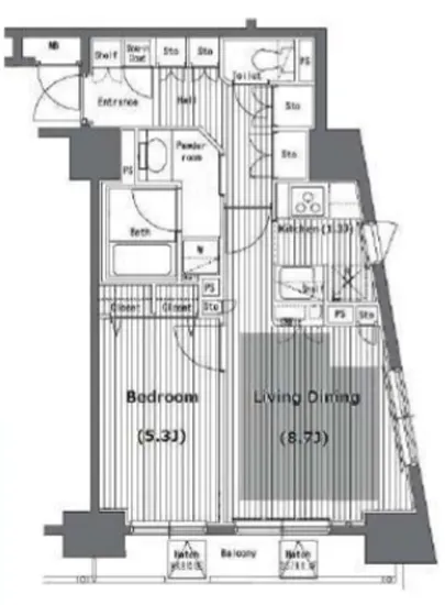
この空間に一歩足を踏み入れれば、広がる45.34㎡の世界があなたを迎え入れます。その広さは、もちろん物理的なものであると同時に、心の広がりをも意味します。リビングダイニングは8.7㎡という贅沢なスペースを誇り、友人や家族との会話が温かく弾む場であることを約束します。そこで隣り合う小さなキッチン1.3㎡は、料理の魔法を繰り広げる舞台に変わります。あなたの手で生み出される香ばしい匂いは、食卓を囲む笑顔を際立たせ、心に残るひとときを演出します。
ガラ・グランディ日本橋は、単なる設備を超えた生活の一部を創造するために設計されています。TVモニターホンやオートロックは、あなたの安全を見守りつつ、いつでも優雅に訪問者を迎え入れられる準備を整えてくれます。宅配ボックスが設けられたことで、オンラインショッピングに夢中になっても、あなたの時間を無駄にすることはありません。管理人が常駐し、丁寧に見守り続ける姿勢は、まるで親しい友人のように感じられることでしょう。
この物件は、ただの居住空間ではありません。ガラ・グランディ日本橋は、生活の舞台として、都市の歴史と文化が交錯する日本橋という特異なエリアに根ざしています。水天宮前駅まで徒歩4分の距離にあり、日本の伝統と現代が共存する情景を肌で感じることができるのです。近くには、古き良き町並みとモダンなショップが共存し、散歩するだけで心が豊かになります。都会の喧騒から一歩離れた静けさと、文化的な刺激が交じり合うこの場所で、あなたの日常はまるで映画のワンシーンのようになるでしょう。
ガラ・グランディ日本橋 10階 45.34㎡は、ただの住まい以上のものを提供する、あなたの人生の新たな物語のスタート地点です。生活のあらゆる瞬間が、感動的なシーンへと変わり、日々を特別なものにしてくれることでしょう。この場所で、あなたは自らの物語を紡いで欲しいと、静かに語りかけているのです。どうぞ、この素晴らしい舞台で新しい生活を始めてみてはいかがでしょうか。あなたの想い描く未来が、ここから始まるのです。
この空…ガラ・グランディ日本橋 10階 45.34㎡。あなたの新たな生活の舞台がここにあります。この美しい高級賃貸物件は、ただの住まいではなく、まるで一篇の詩のように、心の豊かさを育む場所なのです。10階からの眺望は、忙しい都市の喧騒を忘れさせてくれる贅沢なひとときを提供します。窓から差し込む南西、南東の光が、朝の目覚めを優しく包み込み、アラーム音よりも心地よい日々の始まりを感じさせてくれます。
この空間に一歩足を踏み入れれば、広がる45.34㎡の世界があなたを迎え入れます。その広さは、もちろん物理的なものであると同時に、心の広がりをも意味します。リビングダイニングは8.7㎡という贅沢なスペースを誇り、友人や家族との会話が温かく弾む場であることを約束します。そこで隣り合う小さなキッチン1.3㎡は、料理の魔法を繰り広げる舞台に変わります。あなたの手で生み出される香ばしい匂いは、食卓を囲む笑顔を際立たせ、心に残るひとときを演出します。
ガラ・グランディ日本橋は、単なる設備を超えた生活の一部を創造するために設計されています。TVモニターホンやオートロックは、あなたの安全を見守りつつ、いつでも優雅に訪問者を迎え入れられる準備を整えてくれます。宅配ボックスが設けられたことで、オンラインショッピングに夢中になっても、あなたの時間を無駄にすることはありません。管理人が常駐し、丁寧に見守り続ける姿勢は、まるで親しい友人のように感じられることでしょう。
この物件は、ただの居住空間ではありません。ガラ・グランディ日本橋は、生活の舞台として、都市の歴史と文化が交錯する日本橋という特異なエリアに根ざしています。水天宮前駅まで徒歩4分の距離にあり、日本の伝統と現代が共存する情景を肌で感じることができるのです。近くには、古き良き町並みとモダンなショップが共存し、散歩するだけで心が豊かになります。都会の喧騒から一歩離れた静けさと、文化的な刺激が交じり合うこの場所で、あなたの日常はまるで映画のワンシーンのようになるでしょう。
ガラ・グランディ日本橋 10階 45.34㎡は、ただの住まい以上のものを提供する、あなたの人生の新たな物語のスタート地点です。生活のあらゆる瞬間が、感動的なシーンへと変わり、日々を特別なものにしてくれることでしょう。この場所で、あなたは自らの物語を紡いで欲しいと、静かに語りかけているのです。どうぞ、この素晴らしい舞台で新しい生活を始めてみてはいかがでしょうか。あなたの想い描く未来が、ここから始まるのです。
バイブルスコア
バイブルスコア: 32.3
平均的なスコアです。
※バイブルスコア詳細はこちら
バイブルスコアとは独自のAI機械学習技術を利用した物件評価システムで、物件のおすすめ度を示します。最高得点は100点で、スコアが高いほど、よりおすすめの物件と評価されています。
写真
契約条件
| 賃料 | 予想金額:146,000〜166,000円程度 | 管理費 | 予想金額:10,000〜14,000円程度 |
| 礼金 | 非公開(アーカイブ) | 敷金 | 非公開(アーカイブ) |
| フリーレント | なし | 平米数 | 45.34㎡ |
| 間取り | 1LDK | 大型収納 | |
| 契約期間 |
| 方角 | 南西 / 南東 |
| 更新料 | 契約形態 | 普通賃貸借契約 | |
| 取引態様 | 媒介 | 内見状況 | 入居中 |
| 入居時期 | 入居中 | SOHO・事務所 | |
| ペット | 間取り内訳 | 洋:5.3 LD:8.7 K:1.3 | |
| キャンペーン情報・備考 | 本情報は賃料改定交渉の資料作成、収益物件の利回り試算、周辺エリアや最寄り駅の坪単価分析、次回募集開始時期の予測などにご活用いただけます。 | ||
※「どの不動産に頼めばいいのか分からない」「信頼できる営業マンの話を聞きたい」「一番親切な会社と契約したい」とお悩みの方におすすめなのが「高級賃貸バイブル」です。
高級賃貸バイブルは業界10年以上の熟練スタッフ群がお客様ファーストで対応します。
下記ボタンから、まずは無料でご相談下さい。
※内覧をご希望の際には、どうぞ物件のエントランス前にてお待ち合わせくださいませ。ご内覧後は、同じ場所でお別れとさせていただきます。お客様のご都合に合わせたスムーズなご案内を心がけておりますので、ご質問等がございましたら何なりとお申し付けください。 物件概要
| 物件名 |
| 築年月 |
|
|---|---|---|---|
| 所在地 | |||
| 交通 | |||
| 総戸数 |
| 総階数 |
|
| 構造 |
| ||
地図
物件までの道のりは、「拡大地図を表示」をクリックしてナビ機能をご利用ください。
部屋設備

















建物設備

TVモニターホン

エレベーター

オートロック

宅配ボックス

敷地内ゴミ置場

管理人

駐車場平置き

駐車場機械式

駐輪場
ガラ・グランディ日本橋の現在募集中のお部屋
- No rooms found for this property.






























