
| 賃料 | 予想金額:149,000〜169,000円程度 | 管理費 | 予想金額:8,000〜12,000円程度 |
| 礼金/敷金 | 非公開(アーカイブ) | 平米数 | 45.33㎡ |
| 初期費用概算(参考) | 目安:772,000〜872,000 円 | みなし賃料(月額・参考) | 172,813〜192,813 円 |
| 備考 | 本ページは過去募集のアーカイブです。表示の金額は周辺相場・過去募集を踏まえた参考レンジであり、実際の契約金額・条件ではありません。 | ||
※上記みなし賃料(月額)は仲介手数料割引・無料&キャッシュバックを加味した高級賃貸バイブル限定の金額です。一般的なみなし賃料とは異なります。
【建物ページ】リベルテ月島の詳細・最新空室はこちら▶▶選ばれる理由
仲介手数料無料・キャンペーン情報(毎月15名様限定)
〇仲介手数料割引キャンペーン
リベルテ月島 806の口コミ・レビュー
リベルテ月島 806。それは、まるで都会のオアシスのように、東京の喧騒から一歩離れた場所に佇む特別な空間です。この物件に足を踏み入れた瞬間、あなたを迎えるのは、洗練されたデザインと、心安らぐ居心地の良さ。806という高層に位置するこの住まいは、北東の空に向けて大きく開かれ、朝日が優しく差し込み、心を温かく包み込んでくれることでしょう。
このリベルテ月島 806は、45.33㎡という絶妙な広さを誇…リベルテ月島 806。それは、まるで都会のオアシスのように、東京の喧騒から一歩離れた場所に佇む特別な空間です。この物件に足を踏み入れた瞬間、あなたを迎えるのは、洗練されたデザインと、心安らぐ居心地の良さ。806という高層に位置するこの住まいは、北東の空に向けて大きく開かれ、朝日が優しく差し込み、心を温かく包み込んでくれることでしょう。
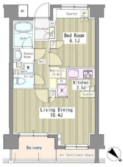
このリベルテ月島 806は、45.33㎡という絶妙な広さを誇り、生活の豊かさを感じさせます。温かな光にそっと導かれ、広がるLDK10.4帖は、まるで一杯の美味しい紅茶が入ったティーカップのように、ほっと心が弾むひとときを与えてくれます。こぼれる笑顔が自然と生まれるこの空間では、家族や友人との楽しい時間が育まれることでしょう。静かな夜、ひとりで読みかけの本に没頭しながら、窓の外に広がる都会の灯りを眺める。まるで映画のワンシーンのような瞬間が、日常の中に息づいています。
このお住まいには、洋室6.1帖も用意されており、穏やかな眠りを約束してくれます。夜が深まるにつれて穏やかな静けさが広がり、安らぎのひとときを提供することでしょう。このお部屋は、昼下がりの陽射しを浴びると、まるで新鮮な果実が熟すかのように豊かな気持ちにさせてくれるのです。窓を開けると、外から漂ってくる潮の香りが、あなたの五感を刺激し、日常のストレスをじっとりと流してくれます。
リベルテ月島 806の魅力は、その立地にもあります。月島駅から徒歩3分という至便なアクセスは、毎日の生活をよりスムーズにし、周辺には豊かな歴史と文化が息づいています。佃の町並みは江戸時代からの風情を残し、静けさと共に時間がゆっくりと流れる場所です。地元の人々に愛される小さな食堂や、洗練されたカフェ、アートギャラリーが点在し、訪れるたびに新しい発見があることでしょう。あなたの生活の中に、文化や芸術の薫りを咲かせることができるのです。
また、オートロックや宅配ボックス、バイク置場に駐車場と、快適な暮らしを支える魅力的な設備が整っています。住む人を優しく守るように、しっかりとした管理がなされ、安心して暮らすことができる空間。心地よい風が吹き抜けるリベルテ月島 806は、あなたの新しい生活の舞台となり、心の豊かさを引き出してくれることでしょう。
リベルテ月島 806で、あなたの人生のストーリーを新たに紡いでみませんか?ここには、日常を特別に変えてくれる魔法が散りばめられています。あなたの毎日が、映画のように彩られることを、心から願っています。
このリベルテ月島 806は、45.33㎡という絶妙な広さを誇…リベルテ月島 806。それは、まるで都会のオアシスのように、東京の喧騒から一歩離れた場所に佇む特別な空間です。この物件に足を踏み入れた瞬間、あなたを迎えるのは、洗練されたデザインと、心安らぐ居心地の良さ。806という高層に位置するこの住まいは、北東の空に向けて大きく開かれ、朝日が優しく差し込み、心を温かく包み込んでくれることでしょう。
このリベルテ月島 806は、45.33㎡という絶妙な広さを誇り、生活の豊かさを感じさせます。温かな光にそっと導かれ、広がるLDK10.4帖は、まるで一杯の美味しい紅茶が入ったティーカップのように、ほっと心が弾むひとときを与えてくれます。こぼれる笑顔が自然と生まれるこの空間では、家族や友人との楽しい時間が育まれることでしょう。静かな夜、ひとりで読みかけの本に没頭しながら、窓の外に広がる都会の灯りを眺める。まるで映画のワンシーンのような瞬間が、日常の中に息づいています。
このお住まいには、洋室6.1帖も用意されており、穏やかな眠りを約束してくれます。夜が深まるにつれて穏やかな静けさが広がり、安らぎのひとときを提供することでしょう。このお部屋は、昼下がりの陽射しを浴びると、まるで新鮮な果実が熟すかのように豊かな気持ちにさせてくれるのです。窓を開けると、外から漂ってくる潮の香りが、あなたの五感を刺激し、日常のストレスをじっとりと流してくれます。
リベルテ月島 806の魅力は、その立地にもあります。月島駅から徒歩3分という至便なアクセスは、毎日の生活をよりスムーズにし、周辺には豊かな歴史と文化が息づいています。佃の町並みは江戸時代からの風情を残し、静けさと共に時間がゆっくりと流れる場所です。地元の人々に愛される小さな食堂や、洗練されたカフェ、アートギャラリーが点在し、訪れるたびに新しい発見があることでしょう。あなたの生活の中に、文化や芸術の薫りを咲かせることができるのです。
また、オートロックや宅配ボックス、バイク置場に駐車場と、快適な暮らしを支える魅力的な設備が整っています。住む人を優しく守るように、しっかりとした管理がなされ、安心して暮らすことができる空間。心地よい風が吹き抜けるリベルテ月島 806は、あなたの新しい生活の舞台となり、心の豊かさを引き出してくれることでしょう。
リベルテ月島 806で、あなたの人生のストーリーを新たに紡いでみませんか?ここには、日常を特別に変えてくれる魔法が散りばめられています。あなたの毎日が、映画のように彩られることを、心から願っています。
バイブルスコア
バイブルスコア: 27.7
平均的なスコアです。
※バイブルスコア詳細はこちら
バイブルスコアとは独自のAI機械学習技術を利用した物件評価システムで、物件のおすすめ度を示します。最高得点は100点で、スコアが高いほど、よりおすすめの物件と評価されています。
写真
契約条件
| 賃料 | 予想金額:149,000〜169,000円程度 | 管理費 | 予想金額:8,000〜12,000円程度 |
| 礼金 | 非公開(アーカイブ) | 敷金 | 非公開(アーカイブ) |
| フリーレント | なし | 平米数 | 45.33㎡ |
| 間取り | 1LDK | 大型収納 | WIC |
| 契約期間 |
| 方角 | 北東 |
| 更新料 | 契約形態 | 普通賃貸借契約 | |
| 取引態様 | 媒介 | 内見状況 | 入居中 |
| 入居時期 | 入居中 | SOHO・事務所 | |
| ペット | 間取り内訳 | 洋:6.1 LD:10.4 K:2.5 | |
| キャンペーン情報・備考 | 本情報は賃料改定交渉の資料作成、収益物件の利回り試算、周辺エリアや最寄り駅の坪単価分析、次回募集開始時期の予測などにご活用いただけます。 | ||
※「どの不動産に頼めばいいのか分からない」「信頼できる営業マンの話を聞きたい」「一番親切な会社と契約したい」とお悩みの方におすすめなのが「高級賃貸バイブル」です。
高級賃貸バイブルは業界10年以上の熟練スタッフ群がお客様ファーストで対応します。
下記ボタンから、まずは無料でご相談下さい。
※内覧をご希望の際には、どうぞ物件のエントランス前にてお待ち合わせくださいませ。ご内覧後は、同じ場所でお別れとさせていただきます。お客様のご都合に合わせたスムーズなご案内を心がけておりますので、ご質問等がございましたら何なりとお申し付けください。 物件概要
| 物件名 |
| 築年月 |
|
|---|---|---|---|
| 所在地 | |||
| 交通 | |||
| 総戸数 |
| 総階数 |
|
| 構造 |
| ||
地図
物件までの道のりは、「拡大地図を表示」をクリックしてナビ機能をご利用ください。
部屋設備















建物設備

TVモニターホン

エレベーター

オートロック

バイク置場

宅配ボックス

敷地内ゴミ置場

管理人

駐車場平置き

駐車場機械式

駐輪場
リベルテ月島の現在募集中のお部屋
- リベルテ月島 610 - 間取り: 1LDK+SIC - 賃料: 18.4万円
























