
| 賃料 | 予想金額:320,000〜340,000円程度 | 管理費 | 予想金額:0〜2,000円程度 |
| 礼金/敷金 | 非公開(アーカイブ) | 平米数 | 73.6㎡ |
| 初期費用概算(参考) | 目安:1,526,500〜1,626,500 円 | みなし賃料(月額・参考) | 345,969〜365,969 円 |
| 備考 | 本ページは過去募集のアーカイブです。表示の金額は周辺相場・過去募集を踏まえた参考レンジであり、実際の契約金額・条件ではありません。 | ||
※上記みなし賃料(月額)は仲介手数料割引・無料&キャッシュバックを加味した高級賃貸バイブル限定の金額です。一般的なみなし賃料とは異なります。
【建物ページ】二番町パークフォレストの詳細・最新空室はこちら▶▶選ばれる理由
仲介手数料無料・キャンペーン情報(毎月15名様限定)
〇仲介手数料割引キャンペーン
二番町パークフォレスト 1102の口コミ・レビュー
二番町パークフォレスト 1102。ここは、まるで街の中に佇む秘密のオアシス。東京の喧騒を忘れさせてくれる静謐な空間で、あなたを待ち受けています。この高級賃貸物件は、専有面積73.6㎡の贅沢な広がりを持ち、1LDKの美しい造形が日々の生活に温もりを与えます。
北西を向いたこの部屋は、午後の柔らかな日差しが差し込み、まるで金色の絨毯のように床を彩ります。LDは14.8帖、Kは5.1帖、そしてBRは8…二番町パークフォレスト 1102。ここは、まるで街の中に佇む秘密のオアシス。東京の喧騒を忘れさせてくれる静謐な空間で、あなたを待ち受けています。この高級賃貸物件は、専有面積73.6㎡の贅沢な広がりを持ち、1LDKの美しい造形が日々の生活に温もりを与えます。
北西を向いたこの部屋は、午後の柔らかな日差しが差し込み、まるで金色の絨毯のように床を彩ります。LDは14.8帖、Kは5.1帖、そしてBRは8.7帖という細部にまでこだわり抜いた設計が、自然とあなたの生活リズムを優雅に整えてくれることでしょう。特に、LDKの広々とした空間は、家族や友人との温かな会話を育む場所として、また静かなひとときを過ごすための隠れ家として機能します。
二番町パークフォレスト 1102に住まうことで、毎日の生活は映画のワンシーンのように美しく映し出されます。朝、カーテンを開くと、新鮮な空気が部屋に流れ込み、まるで森林浴をするかのような心地良さが広がります。コーヒーの香ばしい香りが漂う中、テーブルに並ぶ朝食は、贅沢なフルーツやサクサクのトーストで、五感を一層刺激します。
夜になると、二番町パークフォレスト 1102からはきらめく東京の夜景が広がります。窓から見える景色は、一枚の絵画のように美しく、まるでその中に身を投じたかのような感覚を味わえます。高級感あふれるフロントサービスが、あなたの日常を一層華やかに演出し、帰宅するたびに特別な気持ちにさせてくれることでしょう。
この場所には、24時間管理やオートロック、エレベーターといった便利な設備が整い、安心して過ごせる環境が提供されています。バイク置場や駐車場も完備されており、アクティブなライフスタイルを送りたい方にもぴったりです。周辺には文化財が点在し、歴史ある街並みが魅力を引き立てます。歴史と現代が交錯するこの地で、あなたの新たな物語が始まるのです。
二番町パークフォレスト 1102は、ただの住まいではなく、あなたの人生を豊かにする舞台となることでしょう。ここでの生活は、毎日が特別な瞬間で満たされ、まるで優雅な映画の主人公になったかのような感覚を味わえます。さあ、この素晴らしい空間で新しい物語を紡ぎ始めませんか。あなたの帰りを、二番町パークフォレスト 1102は温かく迎えてくれます。
北西を向いたこの部屋は、午後の柔らかな日差しが差し込み、まるで金色の絨毯のように床を彩ります。LDは14.8帖、Kは5.1帖、そしてBRは8…二番町パークフォレスト 1102。ここは、まるで街の中に佇む秘密のオアシス。東京の喧騒を忘れさせてくれる静謐な空間で、あなたを待ち受けています。この高級賃貸物件は、専有面積73.6㎡の贅沢な広がりを持ち、1LDKの美しい造形が日々の生活に温もりを与えます。
北西を向いたこの部屋は、午後の柔らかな日差しが差し込み、まるで金色の絨毯のように床を彩ります。LDは14.8帖、Kは5.1帖、そしてBRは8.7帖という細部にまでこだわり抜いた設計が、自然とあなたの生活リズムを優雅に整えてくれることでしょう。特に、LDKの広々とした空間は、家族や友人との温かな会話を育む場所として、また静かなひとときを過ごすための隠れ家として機能します。
二番町パークフォレスト 1102に住まうことで、毎日の生活は映画のワンシーンのように美しく映し出されます。朝、カーテンを開くと、新鮮な空気が部屋に流れ込み、まるで森林浴をするかのような心地良さが広がります。コーヒーの香ばしい香りが漂う中、テーブルに並ぶ朝食は、贅沢なフルーツやサクサクのトーストで、五感を一層刺激します。
夜になると、二番町パークフォレスト 1102からはきらめく東京の夜景が広がります。窓から見える景色は、一枚の絵画のように美しく、まるでその中に身を投じたかのような感覚を味わえます。高級感あふれるフロントサービスが、あなたの日常を一層華やかに演出し、帰宅するたびに特別な気持ちにさせてくれることでしょう。
この場所には、24時間管理やオートロック、エレベーターといった便利な設備が整い、安心して過ごせる環境が提供されています。バイク置場や駐車場も完備されており、アクティブなライフスタイルを送りたい方にもぴったりです。周辺には文化財が点在し、歴史ある街並みが魅力を引き立てます。歴史と現代が交錯するこの地で、あなたの新たな物語が始まるのです。
二番町パークフォレスト 1102は、ただの住まいではなく、あなたの人生を豊かにする舞台となることでしょう。ここでの生活は、毎日が特別な瞬間で満たされ、まるで優雅な映画の主人公になったかのような感覚を味わえます。さあ、この素晴らしい空間で新しい物語を紡ぎ始めませんか。あなたの帰りを、二番町パークフォレスト 1102は温かく迎えてくれます。
バイブルスコア
バイブルスコア: 27.3
平均的なスコアです。
※バイブルスコア詳細はこちら
バイブルスコアとは独自のAI機械学習技術を利用した物件評価システムで、物件のおすすめ度を示します。最高得点は100点で、スコアが高いほど、よりおすすめの物件と評価されています。
写真
契約条件
| 賃料 | 予想金額:320,000〜340,000円程度 | 管理費 | 予想金額:0〜2,000円程度 |
| 礼金 | 非公開(アーカイブ) | 敷金 | 非公開(アーカイブ) |
| フリーレント | なし | 平米数 | 73.6㎡ |
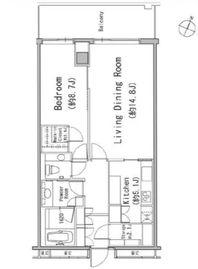
| 間取り | 1LDK | 大型収納 | WIC+SIC |
| 契約期間 |
| 方角 | 北西 |
| 更新料 | 契約形態 | 普通賃貸借契約 | |
| 取引態様 | 媒介 | 内見状況 | 入居中 |
| 入居時期 | 入居中 | SOHO・事務所 | 事務所(SOHO)可 |
| ペット | 間取り内訳 | LD=14.8J / K=5.1J / BR=8.7J | |
| キャンペーン情報・備考 | 本情報は賃料改定交渉の資料作成、収益物件の利回り試算、周辺エリアや最寄り駅の坪単価分析、次回募集開始時期の予測などにご活用いただけます。 | ||
※「どの不動産に頼めばいいのか分からない」「信頼できる営業マンの話を聞きたい」「一番親切な会社と契約したい」とお悩みの方におすすめなのが「高級賃貸バイブル」です。
高級賃貸バイブルは業界10年以上の熟練スタッフ群がお客様ファーストで対応します。
下記ボタンから、まずは無料でご相談下さい。
※内覧をご希望の際には、どうぞ物件のエントランス前にてお待ち合わせくださいませ。ご内覧後は、同じ場所でお別れとさせていただきます。お客様のご都合に合わせたスムーズなご案内を心がけておりますので、ご質問等がございましたら何なりとお申し付けください。 物件概要
| 物件名 |
| 築年月 |
|
|---|---|---|---|
| 所在地 | |||
| 交通 | |||
| 総戸数 |
| 総階数 |
|
| 構造 |
| ||
地図
物件までの道のりは、「拡大地図を表示」をクリックしてナビ機能をご利用ください。
部屋設備



















建物設備

24時間管理

TVモニターホン

エレベーター

オートロック

バイク置場

フロントサービス

ラウンジ

宅配ボックス

敷地内ゴミ置場

管理人

駐車場平置き

駐車場機械式

駐輪場
二番町パークフォレストの現在募集中のお部屋
- No rooms found for this property.















