
| 賃料 | 予想金額:130,000〜150,000円程度 | 管理費 | 予想金額:4,000〜8,000円程度 |
| 礼金/敷金 | 非公開(アーカイブ) | 平米数 | 34.06㎡ |
| 初期費用概算(参考) | 目安:540,500〜640,500 円 | みなし賃料(月額・参考) | 145,385〜165,385 円 |
| 備考 | 本ページは過去募集のアーカイブです。表示の金額は周辺相場・過去募集を踏まえた参考レンジであり、実際の契約金額・条件ではありません。 | ||
※上記みなし賃料(月額)は仲介手数料割引・無料&キャッシュバックを加味した高級賃貸バイブル限定の金額です。一般的なみなし賃料とは異なります。
【建物ページ】グレイスコート白金の詳細・最新空室はこちら▶▶選ばれる理由
仲介手数料無料・キャンペーン情報(毎月15名様限定)
〇仲介手数料割引キャンペーン
グレイスコート白金 402の口コミ・レビュー
「グレイスコート白金 402」は、まるで千年の時を経た白金の地に新たな息吹を吹き込むかのように、静かに佇んでいます。あなたの「住まい」に対する夢を、ふんだんに詰め込んだ空間を提供します。この美しい1Rのお部屋は、専有面積34.06㎡の中に、心の拠り所を包み込むような温もりを秘めています。そして、402という番号は、特別な物語の始まりを告げるかのように、あなたを新たな冒険へと誘います。
この物件の…「グレイスコート白金 402」は、まるで千年の時を経た白金の地に新たな息吹を吹き込むかのように、静かに佇んでいます。あなたの「住まい」に対する夢を、ふんだんに詰め込んだ空間を提供します。この美しい1Rのお部屋は、専有面積34.06㎡の中に、心の拠り所を包み込むような温もりを秘めています。そして、402という番号は、特別な物語の始まりを告げるかのように、あなたを新たな冒険へと誘います。
この物件の窓からは、優雅な東の光が降り注ぎ、朝の訪れを優しく感じさせてくれます。日の出と共に、あなたは新たな一日を迎え入れることができるでしょう。この明るい光は、自然とあなたの心をも明るくし、身も心もリフレッシュさせる魔法のようです。毎朝、カーテンを開ける瞬間、まるで世界の扉が開かれるような喜びを感じることでしょう。
そして、グレイスコート白金 402の内装は、デザイナーズの洗練された美しさが漂っています。心地よい洋室10.6帖は、自由な発想を育むキャンバスのようです。あなたの大切な家具やアートが、この空間に溶け込み、まるで家そのものがあなたの個性を語ってくれるような感覚を味わえます。足元に触れるフローリングは、温かさを感じさせ、歩くたびにその感触が心を満たしてくれます。
生活の中の些細な瞬間も、グレイスコート白金 402では特別なものに感じられます。例えば、日曜日の午後、あなたは自宅で香ばしいコーヒーを淹れ、その香りが部屋中に広がるのを感じるでしょう。外の静けさが、まるでその香りを包み込んでくれるように、心地よい時間を演出します。この瞬間が、日常の小さな贅沢だと気づくことができるのです。
周囲には、白金の歴史と文化が息づいており、美術館やギャラリーが点在しています。芸術に触れることで、自らの感性が磨かれ、その影響が生活の質を高めていくことでしょう。この土地の魅力を感じながら、毎日がまるで映画のワンシーンのように、美しく彩られていきます。
グレイスコート白金 402は、ただの住まいではありません。自分自身を見つめ直し、夢を育む場所です。そして、エレベーターでの移動やオートロックによる安心感、宅配ボックスの便利さは、あなたのライフスタイルを更に豊かにします。この宝物のような空間で、日々の暮らしがより一層輝きを増すことを、心から願っています。
さあ、グレイスコート白金 402という名の新しい生活の舞台で、思い描く未来を共に創り出しましょう。この場所が、あなたの新たな物語の一章となることを期待しています。
この物件の…「グレイスコート白金 402」は、まるで千年の時を経た白金の地に新たな息吹を吹き込むかのように、静かに佇んでいます。あなたの「住まい」に対する夢を、ふんだんに詰め込んだ空間を提供します。この美しい1Rのお部屋は、専有面積34.06㎡の中に、心の拠り所を包み込むような温もりを秘めています。そして、402という番号は、特別な物語の始まりを告げるかのように、あなたを新たな冒険へと誘います。
この物件の窓からは、優雅な東の光が降り注ぎ、朝の訪れを優しく感じさせてくれます。日の出と共に、あなたは新たな一日を迎え入れることができるでしょう。この明るい光は、自然とあなたの心をも明るくし、身も心もリフレッシュさせる魔法のようです。毎朝、カーテンを開ける瞬間、まるで世界の扉が開かれるような喜びを感じることでしょう。
そして、グレイスコート白金 402の内装は、デザイナーズの洗練された美しさが漂っています。心地よい洋室10.6帖は、自由な発想を育むキャンバスのようです。あなたの大切な家具やアートが、この空間に溶け込み、まるで家そのものがあなたの個性を語ってくれるような感覚を味わえます。足元に触れるフローリングは、温かさを感じさせ、歩くたびにその感触が心を満たしてくれます。
生活の中の些細な瞬間も、グレイスコート白金 402では特別なものに感じられます。例えば、日曜日の午後、あなたは自宅で香ばしいコーヒーを淹れ、その香りが部屋中に広がるのを感じるでしょう。外の静けさが、まるでその香りを包み込んでくれるように、心地よい時間を演出します。この瞬間が、日常の小さな贅沢だと気づくことができるのです。
周囲には、白金の歴史と文化が息づいており、美術館やギャラリーが点在しています。芸術に触れることで、自らの感性が磨かれ、その影響が生活の質を高めていくことでしょう。この土地の魅力を感じながら、毎日がまるで映画のワンシーンのように、美しく彩られていきます。
グレイスコート白金 402は、ただの住まいではありません。自分自身を見つめ直し、夢を育む場所です。そして、エレベーターでの移動やオートロックによる安心感、宅配ボックスの便利さは、あなたのライフスタイルを更に豊かにします。この宝物のような空間で、日々の暮らしがより一層輝きを増すことを、心から願っています。
さあ、グレイスコート白金 402という名の新しい生活の舞台で、思い描く未来を共に創り出しましょう。この場所が、あなたの新たな物語の一章となることを期待しています。
バイブルスコア
バイブルスコア: 17.9
高級な物件でない場合は割高な物件です。。
※バイブルスコア詳細はこちら
バイブルスコアとは独自のAI機械学習技術を利用した物件評価システムで、物件のおすすめ度を示します。最高得点は100点で、スコアが高いほど、よりおすすめの物件と評価されています。
写真
契約条件
| 賃料 | 予想金額:130,000〜150,000円程度 | 管理費 | 予想金額:4,000〜8,000円程度 |
| 礼金 | 非公開(アーカイブ) | 敷金 | 非公開(アーカイブ) |
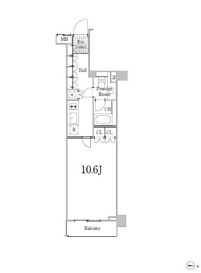
| フリーレント | なし | 平米数 | 34.06㎡ |
| 間取り | 1R | 大型収納 | |
| 契約期間 |
| 方角 | 東 |
| 更新料 | 契約形態 | 普通賃貸借契約 | |
| 取引態様 | 媒介 | 内見状況 | 入居中 |
| 入居時期 | 入居中 | SOHO・事務所 | |
| ペット | ペット可 | 間取り内訳 | 洋室10.6畳 |
| キャンペーン情報・備考 | 本情報は賃料改定交渉の資料作成、収益物件の利回り試算、周辺エリアや最寄り駅の坪単価分析、次回募集開始時期の予測などにご活用いただけます。 | ||
※「どの不動産に頼めばいいのか分からない」「信頼できる営業マンの話を聞きたい」「一番親切な会社と契約したい」とお悩みの方におすすめなのが「高級賃貸バイブル」です。
高級賃貸バイブルは業界10年以上の熟練スタッフ群がお客様ファーストで対応します。
下記ボタンから、まずは無料でご相談下さい。
※内覧をご希望の際には、どうぞ物件のエントランス前にてお待ち合わせくださいませ。ご内覧後は、同じ場所でお別れとさせていただきます。お客様のご都合に合わせたスムーズなご案内を心がけておりますので、ご質問等がございましたら何なりとお申し付けください。 物件概要
| 物件名 |
| 築年月 |
|
|---|---|---|---|
| 所在地 | |||
| 交通 | |||
| 総戸数 |
| 総階数 |
|
| 構造 |
| ||
地図
物件までの道のりは、「拡大地図を表示」をクリックしてナビ機能をご利用ください。
部屋設備













建物設備

TVモニターホン

エレベーター

オートロック

宅配ボックス

敷地内ゴミ置場

駐車場平置き

駐輪場
グレイスコート白金の現在募集中のお部屋
- No rooms found for this property.




















