
| 賃料 | 予想金額:200,000〜220,000円程度 | 管理費 | 予想金額:18,000〜22,000円程度 |
| 礼金/敷金 | 非公開(アーカイブ) | 平米数 | 49.28㎡ |
| 初期費用概算(参考) | 目安:823,000〜923,000 円 | みなし賃料(月額・参考) | 233,813〜253,813 円 |
| 備考 | 本ページは過去募集のアーカイブです。表示の金額は周辺相場・過去募集を踏まえた参考レンジであり、実際の契約金額・条件ではありません。 | ||
※上記みなし賃料(月額)は仲介手数料割引・無料&キャッシュバックを加味した高級賃貸バイブル限定の金額です。一般的なみなし賃料とは異なります。
【建物ページ】オープンレジデンシア池尻大橋の詳細・最新空室はこちら▶▶選ばれる理由
仲介手数料無料・キャンペーン情報(毎月15名様限定)
〇仲介手数料割引キャンペーン
オープンレジデンシア池尻大橋 1102の口コミ・レビュー
オープンレジデンシア池尻大橋 1102。その名は、まるで都会の喧騒から離れた静かなオアシスのように響きます。この物件は、東京都世田谷区池尻の穏やかな通りに位置し、北西の風が優雅に心地良く漂う場所です。あなたがこの地に身を置くことで、日常がどのような色彩に染まるのか、想像するだけで胸が高鳴ります。
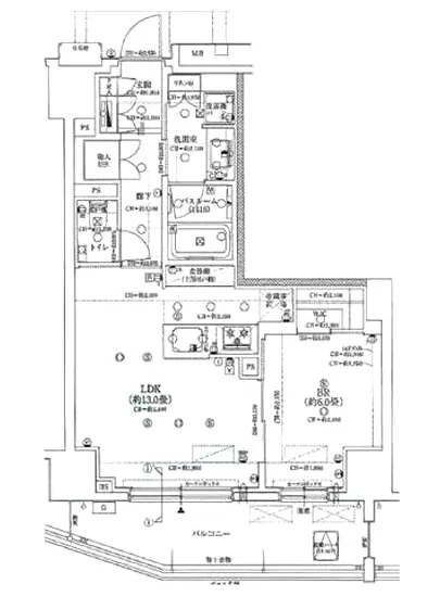
この特別な部屋は、49.28㎡の広さを誇り、一つのアートのようにデザインされています。LDKは13帖…オープンレジデンシア池尻大橋 1102。その名は、まるで都会の喧騒から離れた静かなオアシスのように響きます。この物件は、東京都世田谷区池尻の穏やかな通りに位置し、北西の風が優雅に心地良く漂う場所です。あなたがこの地に身を置くことで、日常がどのような色彩に染まるのか、想像するだけで胸が高鳴ります。
この特別な部屋は、49.28㎡の広さを誇り、一つのアートのようにデザインされています。LDKは13帖、ゆったりとした空間には、心地よい光が注ぎ込み、あなたの毎日に豊かさをもたらしてくれることでしょう。さらに、6帖の洋室は、一日の疲れを癒すための隠れ家。そこでは、柔らかな布団に身を沈めることができ、まるで優しい夢の世界へと導かれるかのようです。
オープンレジデンシア池尻大橋 1102に住むことで、まさに日常が映画のワンシーンのように感じられるのです。朝日が差し込むリビングで、香ばしいコーヒーの香りが漂う中、窓を開けて新鮮な空気を取り込み、軽やかな音楽を耳にする。まるで自分が主役になったかのように、心躍る瞬間が訪れます。
この物件の魅力は、ただの住まいではありません。TVモニターホンやエレベーター、オートロックなどの便利な設備は、あなたの生活をリズミカルに支えてくれます。宅配ボックスや敷地内のゴミ置場は、日常のストレスを軽減し、あなたにより多くの自由な時間を提供してくれることでしょう。バイク置場や駐輪場もあり、アクティブなライフスタイルを楽しむあなたにぴったりです。
周囲には、歴史と文化が息づく場所が点在しています。夜になると、近くのレストランやカフェから漂ってくる香りが、食欲を刺激します。池尻大橋駅までは徒歩5分というアクセスの良さもあり、街のエネルギーを存分に感じることができます。忙しい日常の中でも、ふとした瞬間に歴史ある街並みや文化に触れることで、心に潤いを与えてくれることでしょう。
オープンレジデンシア池尻大橋 1102は、ただの住まいではなく、あなたの人生に新たなページを加える舞台です。まるで、特別な演出が施された劇場の中で、あなたが新しい物語を紡いでいくかのように。あなたの感性を刺激し、心を豊かにしてくれるこの場所で、ぜひ新たな生活を始めてみませんか。あなたを待っているのは、毎日を特別にするための、唯一無二の空間なのです。
この特別な部屋は、49.28㎡の広さを誇り、一つのアートのようにデザインされています。LDKは13帖…オープンレジデンシア池尻大橋 1102。その名は、まるで都会の喧騒から離れた静かなオアシスのように響きます。この物件は、東京都世田谷区池尻の穏やかな通りに位置し、北西の風が優雅に心地良く漂う場所です。あなたがこの地に身を置くことで、日常がどのような色彩に染まるのか、想像するだけで胸が高鳴ります。
この特別な部屋は、49.28㎡の広さを誇り、一つのアートのようにデザインされています。LDKは13帖、ゆったりとした空間には、心地よい光が注ぎ込み、あなたの毎日に豊かさをもたらしてくれることでしょう。さらに、6帖の洋室は、一日の疲れを癒すための隠れ家。そこでは、柔らかな布団に身を沈めることができ、まるで優しい夢の世界へと導かれるかのようです。
オープンレジデンシア池尻大橋 1102に住むことで、まさに日常が映画のワンシーンのように感じられるのです。朝日が差し込むリビングで、香ばしいコーヒーの香りが漂う中、窓を開けて新鮮な空気を取り込み、軽やかな音楽を耳にする。まるで自分が主役になったかのように、心躍る瞬間が訪れます。
この物件の魅力は、ただの住まいではありません。TVモニターホンやエレベーター、オートロックなどの便利な設備は、あなたの生活をリズミカルに支えてくれます。宅配ボックスや敷地内のゴミ置場は、日常のストレスを軽減し、あなたにより多くの自由な時間を提供してくれることでしょう。バイク置場や駐輪場もあり、アクティブなライフスタイルを楽しむあなたにぴったりです。
周囲には、歴史と文化が息づく場所が点在しています。夜になると、近くのレストランやカフェから漂ってくる香りが、食欲を刺激します。池尻大橋駅までは徒歩5分というアクセスの良さもあり、街のエネルギーを存分に感じることができます。忙しい日常の中でも、ふとした瞬間に歴史ある街並みや文化に触れることで、心に潤いを与えてくれることでしょう。
オープンレジデンシア池尻大橋 1102は、ただの住まいではなく、あなたの人生に新たなページを加える舞台です。まるで、特別な演出が施された劇場の中で、あなたが新しい物語を紡いでいくかのように。あなたの感性を刺激し、心を豊かにしてくれるこの場所で、ぜひ新たな生活を始めてみませんか。あなたを待っているのは、毎日を特別にするための、唯一無二の空間なのです。
バイブルスコア
バイブルスコア: 87.4
レア物件です、すぐ仮押さえしましょう!
このお部屋は、現在ご入居中のため空室情報はございません。ただし、将来的に募集が開始される際、バイブルスコアにおいて非常に高い評価が期待されます。特にご興味をお持ちの方は、今のうちにブックマークやお気に入りに登録していただくと、募集開始のお知らせをすぐに受け取ることができます。是非ともご検討くださいませ。
※バイブルスコア詳細はこちら
バイブルスコアとは独自のAI機械学習技術を利用した物件評価システムで、物件のおすすめ度を示します。最高得点は100点で、スコアが高いほど、よりおすすめの物件と評価されています。
写真
現在写真が登録されていません契約条件
| 賃料 | 予想金額:200,000〜220,000円程度 | 管理費 | 予想金額:18,000〜22,000円程度 |
| 礼金 | 非公開(アーカイブ) | 敷金 | 非公開(アーカイブ) |
| フリーレント | なし | 平米数 | 49.28㎡ |
| 間取り | 1LDK | 大型収納 | WIC |
| 契約期間 | 2年 | 方角 | 北西 |
| 更新料 | 1ヶ月 | 契約形態 | 普通賃貸借契約 |
| 取引態様 | 媒介 | 内見状況 | 入居中 |
| 入居時期 | 入居中 | SOHO・事務所 | |
| ペット | ペット可 | 間取り内訳 | 洋:6 LDK:13 |
| キャンペーン情報・備考 | 本情報は賃料改定交渉の資料作成、収益物件の利回り試算、周辺エリアや最寄り駅の坪単価分析、次回募集開始時期の予測などにご活用いただけます。 | ||
※「どの不動産に頼めばいいのか分からない」「信頼できる営業マンの話を聞きたい」「一番親切な会社と契約したい」とお悩みの方におすすめなのが「高級賃貸バイブル」です。
高級賃貸バイブルは業界10年以上の熟練スタッフ群がお客様ファーストで対応します。
下記ボタンから、まずは無料でご相談下さい。
※内覧をご希望の際には、どうぞ物件のエントランス前にてお待ち合わせくださいませ。ご内覧後は、同じ場所でお別れとさせていただきます。お客様のご都合に合わせたスムーズなご案内を心がけておりますので、ご質問等がございましたら何なりとお申し付けください。 物件概要
| 物件名 |
| 築年月 |
|
|---|---|---|---|
| 所在地 | |||
| 交通 |
| ||
| 総戸数 |
| 総階数 |
|
| 構造 |
| ||
地図
物件までの道のりは、「拡大地図を表示」をクリックしてナビ機能をご利用ください。
部屋設備


















建物設備

TVモニターホン

エレベーター

オートロック

バイク置場

宅配ボックス

敷地内ゴミ置場

管理人

駐車場平置き

駐車場機械式

駐輪場
オープンレジデンシア池尻大橋の現在募集中のお部屋
- オープンレジデンシア池尻大橋 2階 33.3㎡ - 間取り: 1DK+SIC - 賃料: 15万円
