
| 賃料 | 予想金額:97,000〜117,000円程度 | 管理費 | 予想金額:10,000〜14,000円程度 |
| 礼金/敷金 | 非公開(アーカイブ) | 平米数 | 26.79㎡ |
| 初期費用概算(参考) | 目安:0〜-30,250 円 | みなし賃料(月額・参考) | 107,828〜127,828 円 |
| 備考 | 本ページは過去募集のアーカイブです。表示の金額は周辺相場・過去募集を踏まえた参考レンジであり、実際の契約金額・条件ではありません。 | ||
※上記みなし賃料(月額)は仲介手数料割引・無料&キャッシュバックを加味した高級賃貸バイブル限定の金額です。一般的なみなし賃料とは異なります。
【建物ページ】コンシェリア後楽園ヒルトップスクエアの詳細・最新空室はこちら▶▶選ばれる理由
仲介手数料無料・キャンペーン情報(毎月15名様限定)
〇引っ越しお祝い金172000円プレゼント(キャッシュバック)
〇フリーレント1か月キャンペーン
〇仲介手数料無料キャンペーン
コンシェリア後楽園ヒルトップスクエア 102の口コミ・レビュー
コンシェリア後楽園ヒルトップスクエア 102。この物件名が示す通り、あなたの新たな生活がここから始まります。東京の文京区小石川に位置するこの住まいは、まるで都会の喧騒から逸れ、静けさの中に身を委ねるための隠れ家のようです。北西の方角に広がる景観は、まるで壮大なキャンバスに描かれた風景画のようで、日々変わる表情を楽しむことができます。
この部屋は、専有面積26.79㎡の中に、あなたの思い描く生活の…コンシェリア後楽園ヒルトップスクエア 102。この物件名が示す通り、あなたの新たな生活がここから始まります。東京の文京区小石川に位置するこの住まいは、まるで都会の喧騒から逸れ、静けさの中に身を委ねるための隠れ家のようです。北西の方角に広がる景観は、まるで壮大なキャンバスに描かれた風景画のようで、日々変わる表情を楽しむことができます。
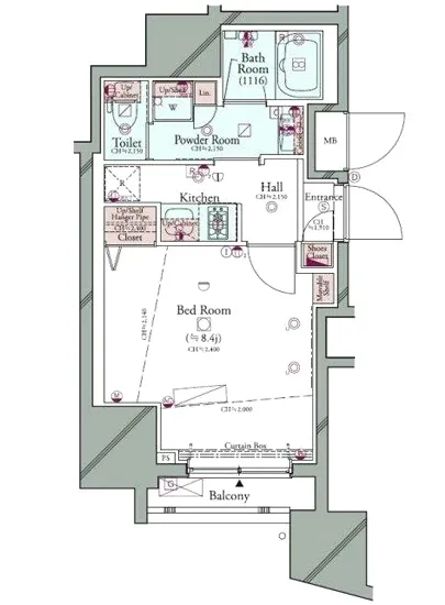
この部屋は、専有面積26.79㎡の中に、あなたの思い描く生活のすべてを凝縮しています。洋室は8.4帖、Kは1.5帖。広がりを持ちながらも、心地よい居場所を提供する間取りは、あなたの感性を刺激し、インスピレーションを与えることでしょう。コンシェリア後楽園ヒルトップスクエア 102には、現代的な設備が整っており、TVモニターホンやオートロック、宅配ボックスなどが生活の利便性を高めます。これらの機能が、まるであなたのためにデザインされたかのように、日常の雑事を優雅にサポートします。
エレベーターを降り、コンシェリア後楽園ヒルトップスクエア 102の扉を開けると、優雅な空間が広がります。柔らかな光が、窓から差し込むとともに、部屋を包み込み、まるで心を癒す音楽が響いているかのよう。香ばしいコーヒーの香りが漂う中、朝のひとときを楽しむことができるのです。料理をするためにKに立てば、ぐつぐつと煮える鍋の音が、まるで家族や友人との楽しい会話を誘うかのように響き渡ります。
また、周辺には歴史と文化が息づいています。鳥のさえずりが聞こえる小石川の街並みは、まるで時が止まったかのような静けさを持っています。散歩に出れば、昔ながらの町屋や緑豊かな公園が、あなたの心を癒してくれるでしょう。さらに、最寄りの茗荷谷駅からは、東京の中心地へのアクセスも抜群。都会の喧騒と静けさが共存する、この場所で新たな物語を紡いでみてはいかがでしょうか。
都心に位置しながらも、時間がゆっくりと流れる感覚を味わえるコンシェリア後楽園ヒルトップスクエア 102。ここはただの住まいではありません。あなた自身を磨き、生活を楽しむための舞台なのです。日々の生活が、まるで映画のワンシーンのように美しく、感動的であることを約束します。さあ、あなたの新しい生活を始める準備は整いましたか?この場所から、あなたの未来に向けた一歩を踏み出してみてください。
この部屋は、専有面積26.79㎡の中に、あなたの思い描く生活の…コンシェリア後楽園ヒルトップスクエア 102。この物件名が示す通り、あなたの新たな生活がここから始まります。東京の文京区小石川に位置するこの住まいは、まるで都会の喧騒から逸れ、静けさの中に身を委ねるための隠れ家のようです。北西の方角に広がる景観は、まるで壮大なキャンバスに描かれた風景画のようで、日々変わる表情を楽しむことができます。
この部屋は、専有面積26.79㎡の中に、あなたの思い描く生活のすべてを凝縮しています。洋室は8.4帖、Kは1.5帖。広がりを持ちながらも、心地よい居場所を提供する間取りは、あなたの感性を刺激し、インスピレーションを与えることでしょう。コンシェリア後楽園ヒルトップスクエア 102には、現代的な設備が整っており、TVモニターホンやオートロック、宅配ボックスなどが生活の利便性を高めます。これらの機能が、まるであなたのためにデザインされたかのように、日常の雑事を優雅にサポートします。
エレベーターを降り、コンシェリア後楽園ヒルトップスクエア 102の扉を開けると、優雅な空間が広がります。柔らかな光が、窓から差し込むとともに、部屋を包み込み、まるで心を癒す音楽が響いているかのよう。香ばしいコーヒーの香りが漂う中、朝のひとときを楽しむことができるのです。料理をするためにKに立てば、ぐつぐつと煮える鍋の音が、まるで家族や友人との楽しい会話を誘うかのように響き渡ります。
また、周辺には歴史と文化が息づいています。鳥のさえずりが聞こえる小石川の街並みは、まるで時が止まったかのような静けさを持っています。散歩に出れば、昔ながらの町屋や緑豊かな公園が、あなたの心を癒してくれるでしょう。さらに、最寄りの茗荷谷駅からは、東京の中心地へのアクセスも抜群。都会の喧騒と静けさが共存する、この場所で新たな物語を紡いでみてはいかがでしょうか。
都心に位置しながらも、時間がゆっくりと流れる感覚を味わえるコンシェリア後楽園ヒルトップスクエア 102。ここはただの住まいではありません。あなた自身を磨き、生活を楽しむための舞台なのです。日々の生活が、まるで映画のワンシーンのように美しく、感動的であることを約束します。さあ、あなたの新しい生活を始める準備は整いましたか?この場所から、あなたの未来に向けた一歩を踏み出してみてください。
バイブルスコア
バイブルスコア: 22.1
平均的なスコアです。
※バイブルスコア詳細はこちら
バイブルスコアとは独自のAI機械学習技術を利用した物件評価システムで、物件のおすすめ度を示します。最高得点は100点で、スコアが高いほど、よりおすすめの物件と評価されています。
写真
現在写真が登録されていません契約条件
| 賃料 | 予想金額:97,000〜117,000円程度 | 管理費 | 予想金額:10,000〜14,000円程度 |
| 礼金 | 非公開(アーカイブ) | 敷金 | 非公開(アーカイブ) |
| フリーレント | 1.0ヶ月 | 平米数 | 26.79㎡ |
| 間取り | 1K | 大型収納 | |
| 契約期間 |
| 方角 | 北西 |
| 更新料 | 契約形態 | 普通賃貸借契約 | |
| 取引態様 | 媒介 | 内見状況 | 入居中 |
| 入居時期 | 入居中 | SOHO・事務所 | |
| ペット | 間取り内訳 | 洋:8.4 K:1.5 | |
| キャンペーン情報・備考 | 本情報は賃料改定交渉の資料作成、収益物件の利回り試算、周辺エリアや最寄り駅の坪単価分析、次回募集開始時期の予測などにご活用いただけます。 | ||
※「どの不動産に頼めばいいのか分からない」「信頼できる営業マンの話を聞きたい」「一番親切な会社と契約したい」とお悩みの方におすすめなのが「高級賃貸バイブル」です。
高級賃貸バイブルは業界10年以上の熟練スタッフ群がお客様ファーストで対応します。
下記ボタンから、まずは無料でご相談下さい。
※内覧をご希望の際には、どうぞ物件のエントランス前にてお待ち合わせくださいませ。ご内覧後は、同じ場所でお別れとさせていただきます。お客様のご都合に合わせたスムーズなご案内を心がけておりますので、ご質問等がございましたら何なりとお申し付けください。 物件概要
| 物件名 |
| 築年月 |
|
|---|---|---|---|
| 所在地 | |||
| 交通 | |||
| 総戸数 | 総階数 |
| |
| 構造 |
| ||
地図
物件までの道のりは、「拡大地図を表示」をクリックしてナビ機能をご利用ください。
部屋設備













建物設備

TVモニターホン

エレベーター

オートロック

バイク置場

宅配ボックス

敷地内ゴミ置場

管理人

駐輪場
コンシェリア後楽園ヒルトップスクエアの現在募集中のお部屋
- No rooms found for this property.
