
| 賃料 | 予想金額:161,000〜181,000円程度 | 管理費 | 予想金額:16,000〜20,000円程度 |
| 礼金/敷金 | 非公開(アーカイブ) | 平米数 | 40.52㎡ |
| 初期費用概算(参考) | 目安:325,000〜425,000 円 | みなし賃料(月額・参考) | 183,250〜203,250 円 |
| 備考 | 本ページは過去募集のアーカイブです。表示の金額は周辺相場・過去募集を踏まえた参考レンジであり、実際の契約金額・条件ではありません。 | ||
※上記みなし賃料(月額)は仲介手数料割引・無料&キャッシュバックを加味した高級賃貸バイブル限定の金額です。一般的なみなし賃料とは異なります。
【建物ページ】コンシェリア後楽園ヒルトップスクエアの詳細・最新空室はこちら▶▶選ばれる理由
仲介手数料無料・キャンペーン情報(毎月15名様限定)
〇仲介手数料割引キャンペーン
コンシェリア後楽園ヒルトップスクエア 1301の口コミ・レビュー
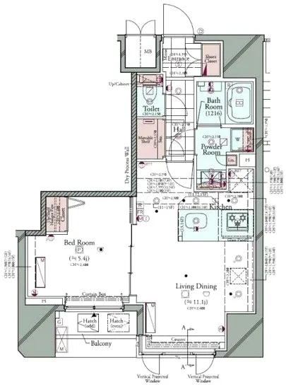
コンシェリア後楽園ヒルトップスクエア 1301。この美しい名前を持つ住まいは、まるで都会の隠れ家のように、洗練された空間と豊かな環境を体現しています。1301号室は、文京区の小石川に位置し、優雅な生活を約束する1LDKの間取りで、南西向きの窓からは温もりある日差しが降り注ぎます。専有面積は40.52㎡で、まるで大きな帆を広げた船のように、心地よい風が吹き込む空間が広がります。
このリビングでは、…コンシェリア後楽園ヒルトップスクエア 1301。この美しい名前を持つ住まいは、まるで都会の隠れ家のように、洗練された空間と豊かな環境を体現しています。1301号室は、文京区の小石川に位置し、優雅な生活を約束する1LDKの間取りで、南西向きの窓からは温もりある日差しが降り注ぎます。専有面積は40.52㎡で、まるで大きな帆を広げた船のように、心地よい風が吹き込む空間が広がります。
このリビングでは、ソファに深く腰を下ろし、窓の外に広がる緑の庭を眺めながら洗練された至福の時をお過ごしください。LDK11.1帖の空間は、無限の可能性を秘めた舞台であり、あなたの個性を映し出すキャンバスとなります。美味しいコーヒーの香りが立ち込めるキッチンで、心躍る料理を仕込む瞬間や、友人を招いての食卓のひとときを想像するだけで、胸が高鳴ります。
洋室5.4帖の空間では、柔らかな光が心地よく包み込み、穏やかな眠りへと誘います。夜の帳が降りると、静寂が広がり、窓からは星の光がわずかに差し込み、まるでおとぎ話の一篇のように夢の中へと溶け込むことでしょう。まるで詩情溢れる映画のワンシーンにいるかのような感覚を味わえます。
コンシェリア後楽園ヒルトップスクエアは、ただの住まいではなく、心の奥底に響く贅沢な生活空間なのです。オートロックとエレベーターが導くこの高貴な場所は、まるで貴族の館のように、あなたを温かく迎え入れます。管理人が目の届くところで、プライベートで安心できる環境が整い、さらにはバイク置場や宅配ボックスも完備。これらは、心地よい日常を支える大切なサポートです。
周辺には、歴史ある文京区の美しい景観が広がり、散策するだけで時代を超えた芸術の息吹を感じることができます。静謐な小石川後楽園の景観は、江戸時代から続く空間であり、四季折々の自然美を堪能できる特別な場所です。街の喧騒を忘れ、ゆったりとした時間を楽しむことができるのです。
コンシェリア後楽園ヒルトップスクエア 1301は、あなたの人生のストーリーが生まれる場所であり、思い出の数々を彩るキャンバスです。心のこもった生活を、ここから始めませんか。新たな日常が、あなたを待っています。
このリビングでは、…コンシェリア後楽園ヒルトップスクエア 1301。この美しい名前を持つ住まいは、まるで都会の隠れ家のように、洗練された空間と豊かな環境を体現しています。1301号室は、文京区の小石川に位置し、優雅な生活を約束する1LDKの間取りで、南西向きの窓からは温もりある日差しが降り注ぎます。専有面積は40.52㎡で、まるで大きな帆を広げた船のように、心地よい風が吹き込む空間が広がります。
このリビングでは、ソファに深く腰を下ろし、窓の外に広がる緑の庭を眺めながら洗練された至福の時をお過ごしください。LDK11.1帖の空間は、無限の可能性を秘めた舞台であり、あなたの個性を映し出すキャンバスとなります。美味しいコーヒーの香りが立ち込めるキッチンで、心躍る料理を仕込む瞬間や、友人を招いての食卓のひとときを想像するだけで、胸が高鳴ります。
洋室5.4帖の空間では、柔らかな光が心地よく包み込み、穏やかな眠りへと誘います。夜の帳が降りると、静寂が広がり、窓からは星の光がわずかに差し込み、まるでおとぎ話の一篇のように夢の中へと溶け込むことでしょう。まるで詩情溢れる映画のワンシーンにいるかのような感覚を味わえます。
コンシェリア後楽園ヒルトップスクエアは、ただの住まいではなく、心の奥底に響く贅沢な生活空間なのです。オートロックとエレベーターが導くこの高貴な場所は、まるで貴族の館のように、あなたを温かく迎え入れます。管理人が目の届くところで、プライベートで安心できる環境が整い、さらにはバイク置場や宅配ボックスも完備。これらは、心地よい日常を支える大切なサポートです。
周辺には、歴史ある文京区の美しい景観が広がり、散策するだけで時代を超えた芸術の息吹を感じることができます。静謐な小石川後楽園の景観は、江戸時代から続く空間であり、四季折々の自然美を堪能できる特別な場所です。街の喧騒を忘れ、ゆったりとした時間を楽しむことができるのです。
コンシェリア後楽園ヒルトップスクエア 1301は、あなたの人生のストーリーが生まれる場所であり、思い出の数々を彩るキャンバスです。心のこもった生活を、ここから始めませんか。新たな日常が、あなたを待っています。
バイブルスコア
バイブルスコア: 24.2
平均的なスコアです。
※バイブルスコア詳細はこちら
バイブルスコアとは独自のAI機械学習技術を利用した物件評価システムで、物件のおすすめ度を示します。最高得点は100点で、スコアが高いほど、よりおすすめの物件と評価されています。
写真
現在写真が登録されていません契約条件
| 賃料 | 予想金額:161,000〜181,000円程度 | 管理費 | 予想金額:16,000〜20,000円程度 |
| 礼金 | 非公開(アーカイブ) | 敷金 | 非公開(アーカイブ) |
| フリーレント | なし | 平米数 | 40.52㎡ |
| 間取り | 1LDK | 大型収納 | |
| 契約期間 |
| 方角 | 南西 |
| 更新料 | 契約形態 | 普通賃貸借契約 | |
| 取引態様 | 媒介 | 内見状況 | 入居中 |
| 入居時期 | 入居中 | SOHO・事務所 | |
| ペット | 間取り内訳 | 洋:5.4 LDK:11.1 | |
| キャンペーン情報・備考 | 本情報は賃料改定交渉の資料作成、収益物件の利回り試算、周辺エリアや最寄り駅の坪単価分析、次回募集開始時期の予測などにご活用いただけます。 | ||
※「どの不動産に頼めばいいのか分からない」「信頼できる営業マンの話を聞きたい」「一番親切な会社と契約したい」とお悩みの方におすすめなのが「高級賃貸バイブル」です。
高級賃貸バイブルは業界10年以上の熟練スタッフ群がお客様ファーストで対応します。
下記ボタンから、まずは無料でご相談下さい。
※内覧をご希望の際には、どうぞ物件のエントランス前にてお待ち合わせくださいませ。ご内覧後は、同じ場所でお別れとさせていただきます。お客様のご都合に合わせたスムーズなご案内を心がけておりますので、ご質問等がございましたら何なりとお申し付けください。 物件概要
| 物件名 |
| 築年月 |
|
|---|---|---|---|
| 所在地 | |||
| 交通 | |||
| 総戸数 | 総階数 |
| |
| 構造 |
| ||
地図
物件までの道のりは、「拡大地図を表示」をクリックしてナビ機能をご利用ください。
部屋設備
















建物設備

TVモニターホン

エレベーター

オートロック

バイク置場

宅配ボックス

敷地内ゴミ置場

管理人

駐輪場
コンシェリア後楽園ヒルトップスクエアの現在募集中のお部屋
- No rooms found for this property.
