
| 賃料 | 予想金額:186,000〜206,000円程度 | 管理費 | 予想金額:5,000〜9,000円程度 |
| 礼金/敷金 | 非公開(アーカイブ) | 平米数 | 38.77㎡ |
| 初期費用概算(参考) | 目安:738,000〜838,000 円 | みなし賃料(月額・参考) | 205,333〜225,333 円 |
| 備考 | 本ページは過去募集のアーカイブです。表示の金額は周辺相場・過去募集を踏まえた参考レンジであり、実際の契約金額・条件ではありません。 | ||
※上記みなし賃料(月額)は仲介手数料割引・無料&キャッシュバックを加味した高級賃貸バイブル限定の金額です。一般的なみなし賃料とは異なります。
【建物ページ】グランリビオ高輪三丁目の詳細・最新空室はこちら▶▶選ばれる理由
仲介手数料無料・キャンペーン情報(毎月15名様限定)
〇仲介手数料割引キャンペーン
グランリビオ高輪三丁目 403の口コミ・レビュー
グランリビオ高輪三丁目 403は、まるで時代を超えた珠玉の一篇の物語のように、豊かで洗練された生活空間を提供します。この403号室は、まさに洗練された美の象徴であり、貴方の生活を特別なものへと昇華させる舞台です。
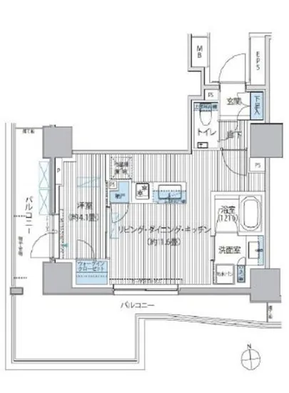
南西の陽射しがふりそそぐこのお部屋は、光と影の織りなすアート作品のよう。リビングダイニング(LDK=11.6帖)は、貴方の生活の中心となる特別な空間です。大きな窓からこぼれる自然光が、…グランリビオ高輪三丁目 403は、まるで時代を超えた珠玉の一篇の物語のように、豊かで洗練された生活空間を提供します。この403号室は、まさに洗練された美の象徴であり、貴方の生活を特別なものへと昇華させる舞台です。
南西の陽射しがふりそそぐこのお部屋は、光と影の織りなすアート作品のよう。リビングダイニング(LDK=11.6帖)は、貴方の生活の中心となる特別な空間です。大きな窓からこぼれる自然光が、街の喧騒を忘れさせ、心地良い安らぎを感じさせてくれます。ほのかに香る新鮮な空気とともに、居心地の良いソファに身を沈めれば、外の世界を眺めるだけで映画のワンシーンのような贅沢なひとときを味わうことができます。
寝室(BR=4.1帖)は、まるで小さな隠れ家のように、安らぎのひとときを約束する空間。日々の疲れを忘れさせ、静寂に包まれたこの場所での睡眠は、星が瞬く夜空の下で囁かれる夢のように深いものになるでしょう。心地よい寝具に触れ、繊細な布地が肌に優しく寄り添う感覚が、至福の眠りへと誘います。
また、グランリビオ高輪三丁目 403の魅力は、充実した設備にあります。テレビモニターホンやオートロックといった先進的なセキュリティが、貴方の生活をしっかりと守ります。エレベーターで上がるたびに、心が躍るような期待感が膨らみ、日常の一瞬一瞬を特別なものにしてくれます。ラウンジでの憩いの時間や、ゆったりとした宅配ボックスの存在は、まさに現代の生活に欠かせない贅沢この上ないものです。
この物件の周辺には、歴史と文化が息づいています。高輪という名は、古くから人々の憩いの場であり、多くの文化人が訪れた場所。街を散策すれば、歴史の香りが漂う建物や、洗練されたカフェが点在し、心が躍る瞬間が待っていることでしょう。高輪台駅から徒歩2分というアクセスは、日々の忙しさの中に潤いを与えてくれます。
グランリビオ高輪三丁目 403での生活は、自分自身を再発見する旅の始まり。毎朝目覚めるたびに、心が躍り、生活の美しさを再認識できることでしょう。この特別な住まいは、ただの物件ではなく、貴方のストーリーを紡ぐ舞台なのです。どうぞ、グランリビオ高輪三丁目 403へ足を運び、その目で、耳で、肌で、感じていただければと思います。貴方の新たな日常が、ここから始まるのです。
南西の陽射しがふりそそぐこのお部屋は、光と影の織りなすアート作品のよう。リビングダイニング(LDK=11.6帖)は、貴方の生活の中心となる特別な空間です。大きな窓からこぼれる自然光が、…グランリビオ高輪三丁目 403は、まるで時代を超えた珠玉の一篇の物語のように、豊かで洗練された生活空間を提供します。この403号室は、まさに洗練された美の象徴であり、貴方の生活を特別なものへと昇華させる舞台です。
南西の陽射しがふりそそぐこのお部屋は、光と影の織りなすアート作品のよう。リビングダイニング(LDK=11.6帖)は、貴方の生活の中心となる特別な空間です。大きな窓からこぼれる自然光が、街の喧騒を忘れさせ、心地良い安らぎを感じさせてくれます。ほのかに香る新鮮な空気とともに、居心地の良いソファに身を沈めれば、外の世界を眺めるだけで映画のワンシーンのような贅沢なひとときを味わうことができます。
寝室(BR=4.1帖)は、まるで小さな隠れ家のように、安らぎのひとときを約束する空間。日々の疲れを忘れさせ、静寂に包まれたこの場所での睡眠は、星が瞬く夜空の下で囁かれる夢のように深いものになるでしょう。心地よい寝具に触れ、繊細な布地が肌に優しく寄り添う感覚が、至福の眠りへと誘います。
また、グランリビオ高輪三丁目 403の魅力は、充実した設備にあります。テレビモニターホンやオートロックといった先進的なセキュリティが、貴方の生活をしっかりと守ります。エレベーターで上がるたびに、心が躍るような期待感が膨らみ、日常の一瞬一瞬を特別なものにしてくれます。ラウンジでの憩いの時間や、ゆったりとした宅配ボックスの存在は、まさに現代の生活に欠かせない贅沢この上ないものです。
この物件の周辺には、歴史と文化が息づいています。高輪という名は、古くから人々の憩いの場であり、多くの文化人が訪れた場所。街を散策すれば、歴史の香りが漂う建物や、洗練されたカフェが点在し、心が躍る瞬間が待っていることでしょう。高輪台駅から徒歩2分というアクセスは、日々の忙しさの中に潤いを与えてくれます。
グランリビオ高輪三丁目 403での生活は、自分自身を再発見する旅の始まり。毎朝目覚めるたびに、心が躍り、生活の美しさを再認識できることでしょう。この特別な住まいは、ただの物件ではなく、貴方のストーリーを紡ぐ舞台なのです。どうぞ、グランリビオ高輪三丁目 403へ足を運び、その目で、耳で、肌で、感じていただければと思います。貴方の新たな日常が、ここから始まるのです。
バイブルスコア
バイブルスコア: 19.2
高級な物件でない場合は割高な物件です。。
※バイブルスコア詳細はこちら
バイブルスコアとは独自のAI機械学習技術を利用した物件評価システムで、物件のおすすめ度を示します。最高得点は100点で、スコアが高いほど、よりおすすめの物件と評価されています。
写真
契約条件
| 賃料 | 予想金額:186,000〜206,000円程度 | 管理費 | 予想金額:5,000〜9,000円程度 |
| 礼金 | 非公開(アーカイブ) | 敷金 | 非公開(アーカイブ) |
| フリーレント | なし | 平米数 | 38.77㎡ |
| 間取り | 1LDK | 大型収納 | WIC |
| 契約期間 |
| 方角 | 南西 |
| 更新料 | 契約形態 | 普通賃貸借契約 | |
| 取引態様 | 媒介 | 内見状況 | 入居中 |
| 入居時期 | 入居中 | SOHO・事務所 | |
| ペット | 間取り内訳 | LDK=11.6J / BR=4.1J | |
| キャンペーン情報・備考 | 本情報は賃料改定交渉の資料作成、収益物件の利回り試算、周辺エリアや最寄り駅の坪単価分析、次回募集開始時期の予測などにご活用いただけます。 | ||
※「どの不動産に頼めばいいのか分からない」「信頼できる営業マンの話を聞きたい」「一番親切な会社と契約したい」とお悩みの方におすすめなのが「高級賃貸バイブル」です。
高級賃貸バイブルは業界10年以上の熟練スタッフ群がお客様ファーストで対応します。
下記ボタンから、まずは無料でご相談下さい。
※内覧をご希望の際には、どうぞ物件のエントランス前にてお待ち合わせくださいませ。ご内覧後は、同じ場所でお別れとさせていただきます。お客様のご都合に合わせたスムーズなご案内を心がけておりますので、ご質問等がございましたら何なりとお申し付けください。 物件概要
| 物件名 |
| 築年月 |
|
|---|---|---|---|
| 所在地 | |||
| 交通 | |||
| 総戸数 |
| 総階数 |
|
| 構造 |
| ||
地図
物件までの道のりは、「拡大地図を表示」をクリックしてナビ機能をご利用ください。
部屋設備



















建物設備

TVモニターホン

エレベーター

オートロック

バイク置場

ラウンジ

宅配ボックス

敷地内ゴミ置場

管理人

駐車場平置き

駐車場機械式

駐輪場
グランリビオ高輪三丁目の現在募集中のお部屋
- グランリビオ高輪三丁目 4階 70.55㎡ - 間取り: 3LDK+WIC - 賃料: 33.8万円
























