
| 賃料 | 予想金額:111,000〜131,000円程度 | 管理費 | 予想金額:6,000〜10,000円程度 |
| 礼金/敷金 | 非公開(アーカイブ) | 平米数 | 26.31㎡ |
| 初期費用概算(参考) | 目安:114,000〜214,000 円 | みなし賃料(月額・参考) | 122,417〜142,417 円 |
| 備考 | 本ページは過去募集のアーカイブです。表示の金額は周辺相場・過去募集を踏まえた参考レンジであり、実際の契約金額・条件ではありません。 | ||
※上記みなし賃料(月額)は仲介手数料割引・無料&キャッシュバックを加味した高級賃貸バイブル限定の金額です。一般的なみなし賃料とは異なります。
【建物ページ】グランパセオ日本橋箱崎町の詳細・最新空室はこちら▶▶選ばれる理由
仲介手数料無料・キャンペーン情報(毎月15名様限定)
〇フリーレント2か月キャンペーン
グランパセオ日本橋箱崎町 301の口コミ・レビュー
グランパセオ日本橋箱崎町 301。あなたがこの美しい名前の住まいに足を踏み入れた瞬間、まるで異国の地に迷い込んだかのような感覚に包まれるでしょう。301という数字は、単なる階数ではなく、生活の舞台を象徴する一部となります。この空間は、きっとあなたの心を解き放ち、忘れられない時を紡ぐ場所に変わることでしょう。
静かに息を潜める日本橋箱崎町。その街の中に位置するグランパセオ日本橋箱崎町 301は、北…グランパセオ日本橋箱崎町 301。あなたがこの美しい名前の住まいに足を踏み入れた瞬間、まるで異国の地に迷い込んだかのような感覚に包まれるでしょう。301という数字は、単なる階数ではなく、生活の舞台を象徴する一部となります。この空間は、きっとあなたの心を解き放ち、忘れられない時を紡ぐ場所に変わることでしょう。
静かに息を潜める日本橋箱崎町。その街の中に位置するグランパセオ日本橋箱崎町 301は、北西の方角を迎え入れることで、午後の陽光が心地よく微笑みかけてくれます。26.31㎡の広さは、一見するとコンパクトですが、その中に無限の可能性が広がっているのです。まるで、宝石のようにあなたの生活の舞台を彩ってくれることでしょう。
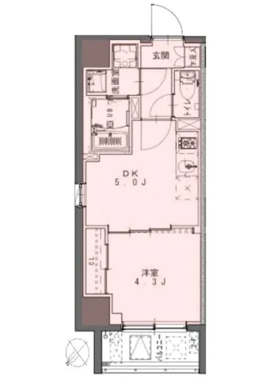
この1DKの間取りは、プライベートな洋室4.3帖と、くつろぎのDK5帖を持ち、あなたのライフスタイルを優雅に包み込みます。想像してみてください。朝の光が柔らかく差し込み、コーヒーの香りが漂うキッチンで、ゆったりとした朝食を味わう瞬間。外では、都市の喧騒が遠くに感じられ、ここにいることが特別であることを教えてくれるのです。
グランパセオ日本橋箱崎町 301には、モニターホンやオートロックなどの優れた設備が備わっており、あなたの安全と快適さを守ります。まるで、この住まいがあなたをしっかりと包み込んでくれるかのように、安心感をもたらすひとつの存在となるのです。エレベーターに身を委ね、果てしない高みへと運ばれる瞬間、まるで空を飛んでいるかのような感覚を味わえるでしょう。
周辺には、歴史の息遣いを感じさせる文化と、現代的な風が交錯する街並みがあります。美術館やギャラリーが、あなたのインスピレーションを刺激し、アートを通じて心を豊かにします。日々の暮らしが、まるで映画のワンシーンのように華やかに演出され、あなたの物語は鮮やかに彩られていきます。
このグランパセオ日本橋箱崎町 301は、ただの住居ではなく、あなたの新しい生活の起点となるのです。日々の小さな幸せが重なり合い、調和した空間で新たな一歩を踏み出すとき、ここがあなたにとっての“家”となり、心の故郷のように感じられることでしょう。毎日が特別で、毎瞬が輝いている、そんな暮らしをぜひ手に入れてください。グランパセオ日本橋箱崎町 301で、あなたの人生がどのように豊かに彩られていくのか、想像するだけで胸が高鳴ります。
静かに息を潜める日本橋箱崎町。その街の中に位置するグランパセオ日本橋箱崎町 301は、北…グランパセオ日本橋箱崎町 301。あなたがこの美しい名前の住まいに足を踏み入れた瞬間、まるで異国の地に迷い込んだかのような感覚に包まれるでしょう。301という数字は、単なる階数ではなく、生活の舞台を象徴する一部となります。この空間は、きっとあなたの心を解き放ち、忘れられない時を紡ぐ場所に変わることでしょう。
静かに息を潜める日本橋箱崎町。その街の中に位置するグランパセオ日本橋箱崎町 301は、北西の方角を迎え入れることで、午後の陽光が心地よく微笑みかけてくれます。26.31㎡の広さは、一見するとコンパクトですが、その中に無限の可能性が広がっているのです。まるで、宝石のようにあなたの生活の舞台を彩ってくれることでしょう。
この1DKの間取りは、プライベートな洋室4.3帖と、くつろぎのDK5帖を持ち、あなたのライフスタイルを優雅に包み込みます。想像してみてください。朝の光が柔らかく差し込み、コーヒーの香りが漂うキッチンで、ゆったりとした朝食を味わう瞬間。外では、都市の喧騒が遠くに感じられ、ここにいることが特別であることを教えてくれるのです。
グランパセオ日本橋箱崎町 301には、モニターホンやオートロックなどの優れた設備が備わっており、あなたの安全と快適さを守ります。まるで、この住まいがあなたをしっかりと包み込んでくれるかのように、安心感をもたらすひとつの存在となるのです。エレベーターに身を委ね、果てしない高みへと運ばれる瞬間、まるで空を飛んでいるかのような感覚を味わえるでしょう。
周辺には、歴史の息遣いを感じさせる文化と、現代的な風が交錯する街並みがあります。美術館やギャラリーが、あなたのインスピレーションを刺激し、アートを通じて心を豊かにします。日々の暮らしが、まるで映画のワンシーンのように華やかに演出され、あなたの物語は鮮やかに彩られていきます。
このグランパセオ日本橋箱崎町 301は、ただの住居ではなく、あなたの新しい生活の起点となるのです。日々の小さな幸せが重なり合い、調和した空間で新たな一歩を踏み出すとき、ここがあなたにとっての“家”となり、心の故郷のように感じられることでしょう。毎日が特別で、毎瞬が輝いている、そんな暮らしをぜひ手に入れてください。グランパセオ日本橋箱崎町 301で、あなたの人生がどのように豊かに彩られていくのか、想像するだけで胸が高鳴ります。
バイブルスコア
バイブルスコア: 36.4
平均的なスコアです。
※バイブルスコア詳細はこちら
バイブルスコアとは独自のAI機械学習技術を利用した物件評価システムで、物件のおすすめ度を示します。最高得点は100点で、スコアが高いほど、よりおすすめの物件と評価されています。
写真
契約条件
| 賃料 | 予想金額:111,000〜131,000円程度 | 管理費 | 予想金額:6,000〜10,000円程度 |
| 礼金 | 非公開(アーカイブ) | 敷金 | 非公開(アーカイブ) |
| フリーレント | 2.0ヶ月 | 平米数 | 26.31㎡ |
| 間取り | 1DK | 大型収納 | |
| 契約期間 |
| 方角 | 北西 |
| 更新料 | 契約形態 | 普通賃貸借契約 | |
| 取引態様 | 媒介 | 内見状況 | 入居中 |
| 入居時期 | 入居中 | SOHO・事務所 | |
| ペット | 間取り内訳 | 洋:4.3 DK:5 | |
| キャンペーン情報・備考 | 本情報は賃料改定交渉の資料作成、収益物件の利回り試算、周辺エリアや最寄り駅の坪単価分析、次回募集開始時期の予測などにご活用いただけます。 | ||
※「どの不動産に頼めばいいのか分からない」「信頼できる営業マンの話を聞きたい」「一番親切な会社と契約したい」とお悩みの方におすすめなのが「高級賃貸バイブル」です。
高級賃貸バイブルは業界10年以上の熟練スタッフ群がお客様ファーストで対応します。
下記ボタンから、まずは無料でご相談下さい。
※内覧をご希望の際には、どうぞ物件のエントランス前にてお待ち合わせくださいませ。ご内覧後は、同じ場所でお別れとさせていただきます。お客様のご都合に合わせたスムーズなご案内を心がけておりますので、ご質問等がございましたら何なりとお申し付けください。 物件概要
| 物件名 |
| 築年月 |
|
|---|---|---|---|
| 所在地 | |||
| 交通 | |||
| 総戸数 |
| 総階数 |
|
| 構造 |
| ||
地図
物件までの道のりは、「拡大地図を表示」をクリックしてナビ機能をご利用ください。
部屋設備













建物設備

TVモニターホン

エレベーター

オートロック

宅配ボックス

敷地内ゴミ置場

管理人

駐輪場
グランパセオ日本橋箱崎町の現在募集中のお部屋
- No rooms found for this property.




























