
| 賃料 | 予想金額:131,000〜151,000円程度 | 管理費 | 予想金額:6,000〜10,000円程度 |
| 礼金/敷金 | 非公開(アーカイブ) | 平米数 | 26.31㎡ |
| 初期費用概算(参考) | 目安:24,300〜124,300 円 | みなし賃料(月額・参考) | 137,610〜157,610 円 |
| 備考 | 本ページは過去募集のアーカイブです。表示の金額は周辺相場・過去募集を踏まえた参考レンジであり、実際の契約金額・条件ではありません。 | ||
※上記みなし賃料(月額)は仲介手数料割引・無料&キャッシュバックを加味した高級賃貸バイブル限定の金額です。一般的なみなし賃料とは異なります。
【建物ページ】グランパセオ日本橋箱崎町の詳細・最新空室はこちら▶▶選ばれる理由
仲介手数料無料・キャンペーン情報(毎月15名様限定)
〇引っ越しお祝い金169200円プレゼント(キャッシュバック)
〇仲介手数料無料キャンペーン
グランパセオ日本橋箱崎町 501の口コミ・レビュー
グランパセオ日本橋箱崎町 501は、まるで一篇の詩が息づくかのような、特別な住まいです。この物件は、東京都中央区日本橋箱崎町9-4という地に佇んでおり、まさに都市の中心に心地よく溶け込んでいます。501という数字は、特別な空間への扉を開く鍵であり、あなたを新たな生活の舞台へと誘います。
北西に位置するこのお部屋は、心地よい光が差し込み、柔らかな日差しがあなたを包み込みます。窓の外には街の喧騒が静…グランパセオ日本橋箱崎町 501は、まるで一篇の詩が息づくかのような、特別な住まいです。この物件は、東京都中央区日本橋箱崎町9-4という地に佇んでおり、まさに都市の中心に心地よく溶け込んでいます。501という数字は、特別な空間への扉を開く鍵であり、あなたを新たな生活の舞台へと誘います。
北西に位置するこのお部屋は、心地よい光が差し込み、柔らかな日差しがあなたを包み込みます。窓の外には街の喧騒が静かに響き、ふとした瞬間に感じる風の優しさが、日常を特別なものに変えてくれるでしょう。初夏のある日、窓を開けると、爽やかな空気とともに、近隣の花々の香りが漂い込み、まるで春の舞踏会に招待されたかのような高揚感を味わえます。
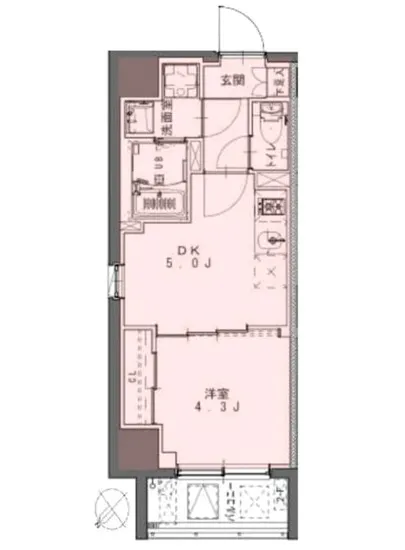
グランパセオ日本橋箱崎町 501の間取りは、洋室4.3帖、ダイニングキッチン5帖の優雅な1DK。心を込めて料理をする自分と、食卓を囲む仲間との笑い声が重なり合う、その瞬間こそが生活の美しさを際立たせるのです。静かな夜、キャンドルを灯し、料理の香ばしい香りが漂う中、心も満たされるひとときが、あなたを包み込むでしょう。このお部屋では、まるで映画のワンシーンにいるかのように、豊かな感情を紡ぎ出すのです。
また、グランパセオ日本橋箱崎町 501は、エレベーターやオートロック、宅配ボックス、さらに敷地内のゴミ置場といった充実した設備も備えています。これらはまるで小さな魔法のように、日々の生活をより便利に、より豊かにしてくれるのです。管理人が見守るこの空間では、安心感が漂い、あなたはただリラックスして生活を楽しむことができます。
近隣には水天宮前駅があり、東京メトロ半蔵門線を利用することで、新しい冒険が待つ街へとスムーズにアクセスできます。街の一歩を踏み出すたび、歴史ある日本橋の文化に触れることができ、伝統と現代が調和するその瞬間を享受できるのです。静かな歴史とともに、あなたの生活もまた、進化し続けることでしょう。
グランパセオ日本橋箱崎町 501は、ただの住まいではなく、あなたの人生を彩る舞台のような存在です。心地よい日常の中に、特別な瞬間を見つけ出すことで、豊かな生活が待っています。どうぞ、この特別な空間に踏み入れ、まるで夢の中で生きるかのような感覚を体験してください。あなたの物語が、ここから始まります。
北西に位置するこのお部屋は、心地よい光が差し込み、柔らかな日差しがあなたを包み込みます。窓の外には街の喧騒が静…グランパセオ日本橋箱崎町 501は、まるで一篇の詩が息づくかのような、特別な住まいです。この物件は、東京都中央区日本橋箱崎町9-4という地に佇んでおり、まさに都市の中心に心地よく溶け込んでいます。501という数字は、特別な空間への扉を開く鍵であり、あなたを新たな生活の舞台へと誘います。
北西に位置するこのお部屋は、心地よい光が差し込み、柔らかな日差しがあなたを包み込みます。窓の外には街の喧騒が静かに響き、ふとした瞬間に感じる風の優しさが、日常を特別なものに変えてくれるでしょう。初夏のある日、窓を開けると、爽やかな空気とともに、近隣の花々の香りが漂い込み、まるで春の舞踏会に招待されたかのような高揚感を味わえます。
グランパセオ日本橋箱崎町 501の間取りは、洋室4.3帖、ダイニングキッチン5帖の優雅な1DK。心を込めて料理をする自分と、食卓を囲む仲間との笑い声が重なり合う、その瞬間こそが生活の美しさを際立たせるのです。静かな夜、キャンドルを灯し、料理の香ばしい香りが漂う中、心も満たされるひとときが、あなたを包み込むでしょう。このお部屋では、まるで映画のワンシーンにいるかのように、豊かな感情を紡ぎ出すのです。
また、グランパセオ日本橋箱崎町 501は、エレベーターやオートロック、宅配ボックス、さらに敷地内のゴミ置場といった充実した設備も備えています。これらはまるで小さな魔法のように、日々の生活をより便利に、より豊かにしてくれるのです。管理人が見守るこの空間では、安心感が漂い、あなたはただリラックスして生活を楽しむことができます。
近隣には水天宮前駅があり、東京メトロ半蔵門線を利用することで、新しい冒険が待つ街へとスムーズにアクセスできます。街の一歩を踏み出すたび、歴史ある日本橋の文化に触れることができ、伝統と現代が調和するその瞬間を享受できるのです。静かな歴史とともに、あなたの生活もまた、進化し続けることでしょう。
グランパセオ日本橋箱崎町 501は、ただの住まいではなく、あなたの人生を彩る舞台のような存在です。心地よい日常の中に、特別な瞬間を見つけ出すことで、豊かな生活が待っています。どうぞ、この特別な空間に踏み入れ、まるで夢の中で生きるかのような感覚を体験してください。あなたの物語が、ここから始まります。
バイブルスコア
バイブルスコア: 49.2
条件のいい物件です、引っ越しが2か月以内の場合は仮申し込みを検討すべき物件です。
※バイブルスコア詳細はこちら
バイブルスコアとは独自のAI機械学習技術を利用した物件評価システムで、物件のおすすめ度を示します。最高得点は100点で、スコアが高いほど、よりおすすめの物件と評価されています。
写真
契約条件
| 賃料 | 予想金額:131,000〜151,000円程度 | 管理費 | 予想金額:6,000〜10,000円程度 |
| 礼金 | 非公開(アーカイブ) | 敷金 | 非公開(アーカイブ) |
| フリーレント | なし | 平米数 | 26.31㎡ |
| 間取り | 1DK | 大型収納 | なし |
| 契約期間 | 2年 | 方角 | 北西 |
| 更新料 | 1ヶ月 | 契約形態 | 普通賃貸借契約 |
| 取引態様 | 媒介 | 内見状況 | 入居中 |
| 入居時期 | 入居中 | SOHO・事務所 | 不可 |
| ペット | 不可 | 間取り内訳 | 洋:4.3 DK:5 |
| キャンペーン情報・備考 | 本情報は賃料改定交渉の資料作成、収益物件の利回り試算、周辺エリアや最寄り駅の坪単価分析、次回募集開始時期の予測などにご活用いただけます。 | ||
※「どの不動産に頼めばいいのか分からない」「信頼できる営業マンの話を聞きたい」「一番親切な会社と契約したい」とお悩みの方におすすめなのが「高級賃貸バイブル」です。
高級賃貸バイブルは業界10年以上の熟練スタッフ群がお客様ファーストで対応します。
下記ボタンから、まずは無料でご相談下さい。
※内覧をご希望の際には、どうぞ物件のエントランス前にてお待ち合わせくださいませ。ご内覧後は、同じ場所でお別れとさせていただきます。お客様のご都合に合わせたスムーズなご案内を心がけておりますので、ご質問等がございましたら何なりとお申し付けください。 物件概要
| 物件名 |
| 築年月 |
|
|---|---|---|---|
| 所在地 | |||
| 交通 | |||
| 総戸数 |
| 総階数 |
|
| 構造 |
| ||
地図
物件までの道のりは、「拡大地図を表示」をクリックしてナビ機能をご利用ください。
部屋設備













建物設備

TVモニターホン

エレベーター

オートロック

宅配ボックス

敷地内ゴミ置場

管理人

駐輪場
グランパセオ日本橋箱崎町の現在募集中のお部屋
- No rooms found for this property.




























