
| 賃料 | 予想金額:142,000〜162,000円程度 | 管理費 | 予想金額:0〜2,000円程度 |
| 礼金/敷金 | 非公開(アーカイブ) | 平米数 | 26.8㎡ |
| 初期費用概算(参考) | 目安:485,060〜585,060 円 | みなし賃料(月額・参考) | 149,980〜169,980 円 |
| 備考 | 本ページは過去募集のアーカイブです。表示の金額は周辺相場・過去募集を踏まえた参考レンジであり、実際の契約金額・条件ではありません。 | ||
※上記みなし賃料(月額)は仲介手数料割引・無料&キャッシュバックを加味した高級賃貸バイブル限定の金額です。一般的なみなし賃料とは異なります。
【建物ページ】南青山ハウスの詳細・最新空室はこちら▶▶選ばれる理由
仲介手数料無料・キャンペーン情報(毎月15名様限定)
〇引っ越しお祝い金33440円プレゼント(キャッシュバック)
〇仲介手数料無料キャンペーン
南青山ハウス 402の口コミ・レビュー
南青山ハウス 402。この言葉を口にするだけで、心はすぐに洗練された都会のオアシスに導かれます。東京都港区南青山に位置するこの特別な空間は、南東の光を優雅に浴びながら、あなたの異なる人生のシーンを包み込む舞台となることでしょう。
お部屋の扉を開けると、11.5帖のLDKが広がります。ここは単なる居住空間ではありません。まるで自らの物語を紡ぐために作られたシアターのようです。カーテンを開けると、光…南青山ハウス 402。この言葉を口にするだけで、心はすぐに洗練された都会のオアシスに導かれます。東京都港区南青山に位置するこの特別な空間は、南東の光を優雅に浴びながら、あなたの異なる人生のシーンを包み込む舞台となることでしょう。
お部屋の扉を開けると、11.5帖のLDKが広がります。ここは単なる居住空間ではありません。まるで自らの物語を紡ぐために作られたシアターのようです。カーテンを開けると、光が一瞬にしてあなたを包み込み、心地よい日差しがその肌を優しく撫でます。コーヒーの香りが漂う朝、ここで過ごす特別な時間が一層際立ちます。友人を招いてのホームパーティ、ゆったりとした午後の読書、ありふれた日常が映画の一シーンに変わります。
隣接する洋室8帖は、あなたの秘密の隠れ家。鮮やかなグリーンを配したインテリアは、まるで自然の一部であるかのように、視覚を楽しませてくれます。この空間に身を委ねれば、疲れた心と体が癒され、まるで深い森に抱かれているかのようです。窓の外からは、穏やかな風がそっと入ってきて、まるで物語のページをめくるように新しい一日を開いてくれます。
南青山ハウス 402の魅力を語るには、周辺の文化も忘れられません。近くにはアートギャラリーやデザインショップが立ち並び、街全体が芸術の舞台であるかのように感じます。それはまるで、あなたがアーティストとなり、日常の中で美を発見する旅に出る準備が整ったかのよう。このエリアの洗練された雰囲気は、あなたの感性を刺激し、毎日を特別なものに変えてくれるのです。
さらに、この物件にはオートロックや宅配ボックスといった現代の暮らしに欠かせない便利な設備が整い、まるで親しい友人が周りを取り巻くような安心感をもたらします。エレベーターで快適に移動し、敷地内のゴミ置場や駐輪場も整備されていることで、生活の利便性も抜群です。
南青山ハウス 402は単なる物件ではなく、あなたの新しい生活の始まりを告げる舞台です。ここで過ごす時間が、喜びの音色を奏で、日々の生活を美しい旋律で満たすことでしょう。都心の喧騒を離れ、心の安息を求めるあなたにこそ、ふさわしい場所です。南青山ハウス 402で、あなた自身の物語を描いてみませんか。
お部屋の扉を開けると、11.5帖のLDKが広がります。ここは単なる居住空間ではありません。まるで自らの物語を紡ぐために作られたシアターのようです。カーテンを開けると、光…南青山ハウス 402。この言葉を口にするだけで、心はすぐに洗練された都会のオアシスに導かれます。東京都港区南青山に位置するこの特別な空間は、南東の光を優雅に浴びながら、あなたの異なる人生のシーンを包み込む舞台となることでしょう。
お部屋の扉を開けると、11.5帖のLDKが広がります。ここは単なる居住空間ではありません。まるで自らの物語を紡ぐために作られたシアターのようです。カーテンを開けると、光が一瞬にしてあなたを包み込み、心地よい日差しがその肌を優しく撫でます。コーヒーの香りが漂う朝、ここで過ごす特別な時間が一層際立ちます。友人を招いてのホームパーティ、ゆったりとした午後の読書、ありふれた日常が映画の一シーンに変わります。
隣接する洋室8帖は、あなたの秘密の隠れ家。鮮やかなグリーンを配したインテリアは、まるで自然の一部であるかのように、視覚を楽しませてくれます。この空間に身を委ねれば、疲れた心と体が癒され、まるで深い森に抱かれているかのようです。窓の外からは、穏やかな風がそっと入ってきて、まるで物語のページをめくるように新しい一日を開いてくれます。
南青山ハウス 402の魅力を語るには、周辺の文化も忘れられません。近くにはアートギャラリーやデザインショップが立ち並び、街全体が芸術の舞台であるかのように感じます。それはまるで、あなたがアーティストとなり、日常の中で美を発見する旅に出る準備が整ったかのよう。このエリアの洗練された雰囲気は、あなたの感性を刺激し、毎日を特別なものに変えてくれるのです。
さらに、この物件にはオートロックや宅配ボックスといった現代の暮らしに欠かせない便利な設備が整い、まるで親しい友人が周りを取り巻くような安心感をもたらします。エレベーターで快適に移動し、敷地内のゴミ置場や駐輪場も整備されていることで、生活の利便性も抜群です。
南青山ハウス 402は単なる物件ではなく、あなたの新しい生活の始まりを告げる舞台です。ここで過ごす時間が、喜びの音色を奏で、日々の生活を美しい旋律で満たすことでしょう。都心の喧騒を離れ、心の安息を求めるあなたにこそ、ふさわしい場所です。南青山ハウス 402で、あなた自身の物語を描いてみませんか。
バイブルスコア
バイブルスコア: 11.9
高級な物件でない場合は割高な物件です。。
※バイブルスコア詳細はこちら
バイブルスコアとは独自のAI機械学習技術を利用した物件評価システムで、物件のおすすめ度を示します。最高得点は100点で、スコアが高いほど、よりおすすめの物件と評価されています。
写真
現在写真が登録されていません契約条件
| 賃料 | 予想金額:142,000〜162,000円程度 | 管理費 | 予想金額:0〜2,000円程度 |
| 礼金 | 非公開(アーカイブ) | 敷金 | 非公開(アーカイブ) |
| フリーレント | なし | 平米数 | 26.8㎡ |
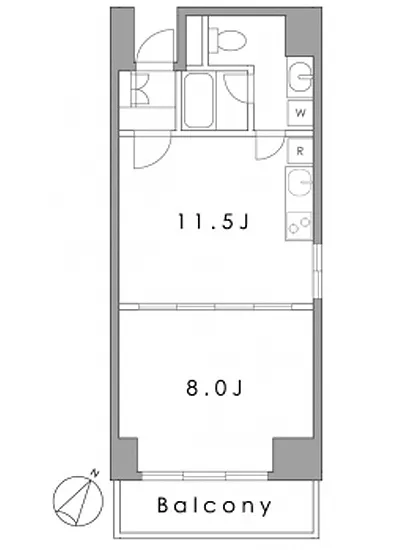
| 間取り | 1LDK | 大型収納 | |
| 契約期間 |
| 方角 | 南東 |
| 更新料 | 契約形態 | 普通賃貸借契約 | |
| 取引態様 | 媒介 | 内見状況 | 入居中 |
| 入居時期 | 入居中 | SOHO・事務所 | 事務所(SOHO)可 |
| ペット | 間取り内訳 | LDK11.5 / 洋8 | |
| キャンペーン情報・備考 | 本情報は賃料改定交渉の資料作成、収益物件の利回り試算、周辺エリアや最寄り駅の坪単価分析、次回募集開始時期の予測などにご活用いただけます。 | ||
※「どの不動産に頼めばいいのか分からない」「信頼できる営業マンの話を聞きたい」「一番親切な会社と契約したい」とお悩みの方におすすめなのが「高級賃貸バイブル」です。
高級賃貸バイブルは業界10年以上の熟練スタッフ群がお客様ファーストで対応します。
下記ボタンから、まずは無料でご相談下さい。
※内覧をご希望の際には、どうぞ物件のエントランス前にてお待ち合わせくださいませ。ご内覧後は、同じ場所でお別れとさせていただきます。お客様のご都合に合わせたスムーズなご案内を心がけておりますので、ご質問等がございましたら何なりとお申し付けください。 物件概要
| 物件名 |
| 築年月 |
|
|---|---|---|---|
| 所在地 | |||
| 交通 | |||
| 総戸数 | 総階数 |
| |
| 構造 |
| ||
地図
物件までの道のりは、「拡大地図を表示」をクリックしてナビ機能をご利用ください。
部屋設備












建物設備

TVモニターホン

エレベーター

オートロック

宅配ボックス

敷地内ゴミ置場

駐輪場
南青山ハウスの現在募集中のお部屋
- No rooms found for this property.
