
| 賃料 | 予想金額:206,000〜226,000円程度 | 管理費 | 予想金額:30,400〜34,400円程度 |
| 礼金/敷金 | 非公開(アーカイブ) | 平米数 | 44.4㎡ |
| 初期費用概算(参考) | 目安:630,100〜730,100 円 | みなし賃料(月額・参考) | 248,069〜268,069 円 |
| 備考 | 本ページは過去募集のアーカイブです。表示の金額は周辺相場・過去募集を踏まえた参考レンジであり、実際の契約金額・条件ではありません。 | ||
※上記みなし賃料(月額)は仲介手数料割引・無料&キャッシュバックを加味した高級賃貸バイブル限定の金額です。一般的なみなし賃料とは異なります。
【建物ページ】南青山ハウスの詳細・最新空室はこちら▶▶選ばれる理由
仲介手数料無料・キャンペーン情報(毎月15名様限定)
〇仲介手数料割引キャンペーン
南青山ハウス 302の口コミ・レビュー
南青山ハウス 302へようこそ。ここは、ただの住まいではありません。南青山という美しい街角に、静かに身を寄せるこの物件は、まるで都会の喧騒を優雅にスルリとかわす、特別な存在なのです。あなたがこのドアを開ける瞬間、それはまるで新しい物語が始まるかのよう。344㎡を超える広大な天地が、気持ちを高揚させてくれることでしょう。
南東向きの窓からは、朝日が優しい光を差し込み、空気を潤し、心を温めます。LD…南青山ハウス 302へようこそ。ここは、ただの住まいではありません。南青山という美しい街角に、静かに身を寄せるこの物件は、まるで都会の喧騒を優雅にスルリとかわす、特別な存在なのです。あなたがこのドアを開ける瞬間、それはまるで新しい物語が始まるかのよう。344㎡を超える広大な天地が、気持ちを高揚させてくれることでしょう。
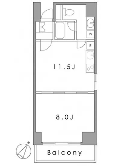
南東向きの窓からは、朝日が優しい光を差し込み、空気を潤し、心を温めます。LDK11.5帖のスペースには、友人や家族との楽しい会話が響き、笑い声が日常の音楽となります。キッチンから漂う料理の香ばしい匂いが、食欲をそそり、会話の合間に楽しむカフェのようなひとときを演出します。すべてがこの場所に集まる時、まるで理想的な映画のワンシーンのように、あなたの生活が彩られていくのです。
洋室8帖は、夜の星空を背にした安らぎの場となります。柔らかな布団の中に身を沈めると、静けさが心を包み込み、夢の世界へ誘ってくれることでしょう。ここでの毎晩が特別な時間。穏やかな音楽が流れ、あなたの心を癒し、深い睡眠へと導くのです。
南青山の美しい街並みの中で、文化と歴史が共鳴する瞬間に身を委ねることも、この物件の最大の魅力です。表参道駅からの静かな徒歩10分は、まるで高級ブランドのショーウィンドウを楽しみながら歩く、洗練された気分を与えてくれます。アートやデザインが息づく場所で、まるで街全体があなたのインスピレーションの源となるかのよう。
また、南青山ハウス 302には、最新の設備も充実しています。オートロックやTVモニターホン、宅配ボックスなど、あなたの生活を支えるための技術が考え抜かれています。すべては、あなたがこの空間に心からの安らぎを見出し、普段の生活がより豊かで特別なものになるために。
南青山ハウス 302での生活は、あなたを中心に回り、世界があなたのためにあるかのような錯覚をもたらします。触れるもの、聞こえる音、見える光景、すべてがあなたの人生に色を添え、多様な感覚を刺激することでしょう。この特別な場所で、あなた自身のストーリーを紡いでみてください。それはきっと、美しい詩のように、あなたの心に残ることでしょう。南青山ハウス 302で、あなたの日常が特別な映画の一幕となることを、心より願っております。
南東向きの窓からは、朝日が優しい光を差し込み、空気を潤し、心を温めます。LD…南青山ハウス 302へようこそ。ここは、ただの住まいではありません。南青山という美しい街角に、静かに身を寄せるこの物件は、まるで都会の喧騒を優雅にスルリとかわす、特別な存在なのです。あなたがこのドアを開ける瞬間、それはまるで新しい物語が始まるかのよう。344㎡を超える広大な天地が、気持ちを高揚させてくれることでしょう。
南東向きの窓からは、朝日が優しい光を差し込み、空気を潤し、心を温めます。LDK11.5帖のスペースには、友人や家族との楽しい会話が響き、笑い声が日常の音楽となります。キッチンから漂う料理の香ばしい匂いが、食欲をそそり、会話の合間に楽しむカフェのようなひとときを演出します。すべてがこの場所に集まる時、まるで理想的な映画のワンシーンのように、あなたの生活が彩られていくのです。
洋室8帖は、夜の星空を背にした安らぎの場となります。柔らかな布団の中に身を沈めると、静けさが心を包み込み、夢の世界へ誘ってくれることでしょう。ここでの毎晩が特別な時間。穏やかな音楽が流れ、あなたの心を癒し、深い睡眠へと導くのです。
南青山の美しい街並みの中で、文化と歴史が共鳴する瞬間に身を委ねることも、この物件の最大の魅力です。表参道駅からの静かな徒歩10分は、まるで高級ブランドのショーウィンドウを楽しみながら歩く、洗練された気分を与えてくれます。アートやデザインが息づく場所で、まるで街全体があなたのインスピレーションの源となるかのよう。
また、南青山ハウス 302には、最新の設備も充実しています。オートロックやTVモニターホン、宅配ボックスなど、あなたの生活を支えるための技術が考え抜かれています。すべては、あなたがこの空間に心からの安らぎを見出し、普段の生活がより豊かで特別なものになるために。
南青山ハウス 302での生活は、あなたを中心に回り、世界があなたのためにあるかのような錯覚をもたらします。触れるもの、聞こえる音、見える光景、すべてがあなたの人生に色を添え、多様な感覚を刺激することでしょう。この特別な場所で、あなた自身のストーリーを紡いでみてください。それはきっと、美しい詩のように、あなたの心に残ることでしょう。南青山ハウス 302で、あなたの日常が特別な映画の一幕となることを、心より願っております。
バイブルスコア
バイブルスコア: 19.5
高級な物件でない場合は割高な物件です。。
※バイブルスコア詳細はこちら
バイブルスコアとは独自のAI機械学習技術を利用した物件評価システムで、物件のおすすめ度を示します。最高得点は100点で、スコアが高いほど、よりおすすめの物件と評価されています。
写真
現在写真が登録されていません契約条件
| 賃料 | 予想金額:206,000〜226,000円程度 | 管理費 | 予想金額:30,400〜34,400円程度 |
| 礼金 | 非公開(アーカイブ) | 敷金 | 非公開(アーカイブ) |
| フリーレント | なし | 平米数 | 44.4㎡ |
| 間取り | 1LDK | 大型収納 | |
| 契約期間 |
| 方角 | 南東 |
| 更新料 | 契約形態 | 普通賃貸借契約 | |
| 取引態様 | 媒介 | 内見状況 | 入居中 |
| 入居時期 | 入居中 | SOHO・事務所 | 事務所(SOHO)可 |
| ペット | 間取り内訳 | LDK11.5/ 洋8 | |
| キャンペーン情報・備考 | 本情報は賃料改定交渉の資料作成、収益物件の利回り試算、周辺エリアや最寄り駅の坪単価分析、次回募集開始時期の予測などにご活用いただけます。 | ||
※「どの不動産に頼めばいいのか分からない」「信頼できる営業マンの話を聞きたい」「一番親切な会社と契約したい」とお悩みの方におすすめなのが「高級賃貸バイブル」です。
高級賃貸バイブルは業界10年以上の熟練スタッフ群がお客様ファーストで対応します。
下記ボタンから、まずは無料でご相談下さい。
※内覧をご希望の際には、どうぞ物件のエントランス前にてお待ち合わせくださいませ。ご内覧後は、同じ場所でお別れとさせていただきます。お客様のご都合に合わせたスムーズなご案内を心がけておりますので、ご質問等がございましたら何なりとお申し付けください。 物件概要
| 物件名 |
| 築年月 |
|
|---|---|---|---|
| 所在地 | |||
| 交通 | |||
| 総戸数 | 総階数 |
| |
| 構造 |
| ||
地図
物件までの道のりは、「拡大地図を表示」をクリックしてナビ機能をご利用ください。
部屋設備













建物設備

TVモニターホン

エレベーター

オートロック

宅配ボックス

敷地内ゴミ置場

駐輪場
南青山ハウスの現在募集中のお部屋
- No rooms found for this property.
