
| 賃料 | 予想金額:104,000〜124,000円程度 | 管理費 | 予想金額:8,000〜12,000円程度 |
| 礼金/敷金 | 非公開(アーカイブ) | 平米数 | 25.05㎡ |
| 初期費用概算(参考) | 目安:228,250〜328,250 円 | みなし賃料(月額・参考) | 120,297〜140,297 円 |
| 備考 | 本ページは過去募集のアーカイブです。表示の金額は周辺相場・過去募集を踏まえた参考レンジであり、実際の契約金額・条件ではありません。 | ||
※上記みなし賃料(月額)は仲介手数料割引・無料&キャッシュバックを加味した高級賃貸バイブル限定の金額です。一般的なみなし賃料とは異なります。
【建物ページ】エスレジデンス八丁堀ウーナの詳細・最新空室はこちら▶▶選ばれる理由
仲介手数料無料・キャンペーン情報(毎月15名様限定)
〇フリーレント1か月キャンペーン
エスレジデンス八丁堀ウーナ 301の口コミ・レビュー
エスレジデンス八丁堀ウーナ 301。この名は、ただの物件名にとどまらず、あなたの日常に魔法のような魅力を加える場所の名前です。東京都中央区入船に佇むこの高級賃貸は、あなたの心の拠り所となる、まるで美術品のような空間を提供します。
南西向きの301号室は、穏やかな光が溢れ出し、まるで朝焼けの太陽が優しくあなたを包み込むかのようです。この部屋に一歩足を踏み入れると、まるで何もかもが整然としている魔法…エスレジデンス八丁堀ウーナ 301。この名は、ただの物件名にとどまらず、あなたの日常に魔法のような魅力を加える場所の名前です。東京都中央区入船に佇むこの高級賃貸は、あなたの心の拠り所となる、まるで美術品のような空間を提供します。
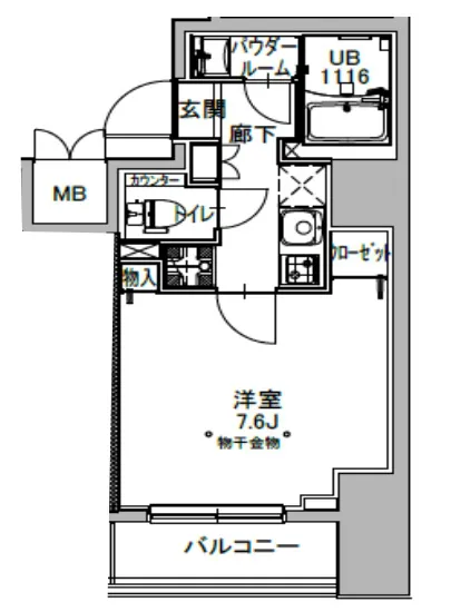
南西向きの301号室は、穏やかな光が溢れ出し、まるで朝焼けの太陽が優しくあなたを包み込むかのようです。この部屋に一歩足を踏み入れると、まるで何もかもが整然としている魔法の世界に引き込まれていくことでしょう。25.05㎡の中に詰まったこの空間は、自由と安らぎが融合した楽園であり、7.6帖の洋室は、あなたの感性を満たすキャンバスとなり、思い描いた夢が色とりどりに描かれていきます。
エスレジデンス八丁堀ウーナ 301が住むあなたに語りかけます。「私の中では、都会の喧騒と静寂が調和している。あなたが目を閉じれば、周囲のざわめきが遠くなり、心に響くのは、穏やかな風の音と、静かに流れる時間だけ。それが、ここでの生活の魅力なの」と。心地よい風に乗って、時折漂ってくるのは、近くの繁華街から香る美味しい料理の匂い。夕暮れ時、疲れた身体を癒すために、近所で見つけた小さなカフェで、自家製のケーキを味わう。暖かい飲み物が口元に運ばれ、優しい甘さが心を溶かしていく瞬間。まるで映画のワンシーンのような、特別なひとときを感じることでしょう。
この物件には、エレベーターやオートロック、宅配ボックスなど生活を便利にする設備が整っており、まるであなたのために設計されたかのような心遣いがございます。管理人の存在がさらなる安心感をもたらし、暮らしを彩る小さなサポートがあります。駐輪場も完備され、あなたの冒険心を満たすお手伝いをします。気ままに街を探索したり、駅までのお散歩を楽しんだり、八丁堀駅までわずか3分の距離が、あなたの毎日の暮らしを豊かにします。
エスレジデンス八丁堀ウーナ 301は、ただの住まいではなく、心の故郷ともいえる場所です。歴史と文化が息づく中央区で、この空間は時を超えたアートの一部となり、あなたの感性を刺激し続けることでしょう。心の奥に秘めた夢や願いを、ここで実現することができる地に、あなたも足を踏み入れませんか。お待ちしております。
南西向きの301号室は、穏やかな光が溢れ出し、まるで朝焼けの太陽が優しくあなたを包み込むかのようです。この部屋に一歩足を踏み入れると、まるで何もかもが整然としている魔法…エスレジデンス八丁堀ウーナ 301。この名は、ただの物件名にとどまらず、あなたの日常に魔法のような魅力を加える場所の名前です。東京都中央区入船に佇むこの高級賃貸は、あなたの心の拠り所となる、まるで美術品のような空間を提供します。
南西向きの301号室は、穏やかな光が溢れ出し、まるで朝焼けの太陽が優しくあなたを包み込むかのようです。この部屋に一歩足を踏み入れると、まるで何もかもが整然としている魔法の世界に引き込まれていくことでしょう。25.05㎡の中に詰まったこの空間は、自由と安らぎが融合した楽園であり、7.6帖の洋室は、あなたの感性を満たすキャンバスとなり、思い描いた夢が色とりどりに描かれていきます。
エスレジデンス八丁堀ウーナ 301が住むあなたに語りかけます。「私の中では、都会の喧騒と静寂が調和している。あなたが目を閉じれば、周囲のざわめきが遠くなり、心に響くのは、穏やかな風の音と、静かに流れる時間だけ。それが、ここでの生活の魅力なの」と。心地よい風に乗って、時折漂ってくるのは、近くの繁華街から香る美味しい料理の匂い。夕暮れ時、疲れた身体を癒すために、近所で見つけた小さなカフェで、自家製のケーキを味わう。暖かい飲み物が口元に運ばれ、優しい甘さが心を溶かしていく瞬間。まるで映画のワンシーンのような、特別なひとときを感じることでしょう。
この物件には、エレベーターやオートロック、宅配ボックスなど生活を便利にする設備が整っており、まるであなたのために設計されたかのような心遣いがございます。管理人の存在がさらなる安心感をもたらし、暮らしを彩る小さなサポートがあります。駐輪場も完備され、あなたの冒険心を満たすお手伝いをします。気ままに街を探索したり、駅までのお散歩を楽しんだり、八丁堀駅までわずか3分の距離が、あなたの毎日の暮らしを豊かにします。
エスレジデンス八丁堀ウーナ 301は、ただの住まいではなく、心の故郷ともいえる場所です。歴史と文化が息づく中央区で、この空間は時を超えたアートの一部となり、あなたの感性を刺激し続けることでしょう。心の奥に秘めた夢や願いを、ここで実現することができる地に、あなたも足を踏み入れませんか。お待ちしております。
バイブルスコア
バイブルスコア: 29.7
平均的なスコアです。
※バイブルスコア詳細はこちら
バイブルスコアとは独自のAI機械学習技術を利用した物件評価システムで、物件のおすすめ度を示します。最高得点は100点で、スコアが高いほど、よりおすすめの物件と評価されています。
写真
契約条件
| 賃料 | 予想金額:104,000〜124,000円程度 | 管理費 | 予想金額:8,000〜12,000円程度 |
| 礼金 | 非公開(アーカイブ) | 敷金 | 非公開(アーカイブ) |
| フリーレント | 1.0ヶ月 | 平米数 | 25.05㎡ |
| 間取り | 1K | 大型収納 | |
| 契約期間 |
| 方角 | 南西 |
| 更新料 | 契約形態 | 普通賃貸借契約 | |
| 取引態様 | 媒介 | 内見状況 | 入居中 |
| 入居時期 | 入居中 | SOHO・事務所 | |
| ペット | ペット可 | 間取り内訳 | 洋:7.6 |
| キャンペーン情報・備考 | 本情報は賃料改定交渉の資料作成、収益物件の利回り試算、周辺エリアや最寄り駅の坪単価分析、次回募集開始時期の予測などにご活用いただけます。 | ||
※「どの不動産に頼めばいいのか分からない」「信頼できる営業マンの話を聞きたい」「一番親切な会社と契約したい」とお悩みの方におすすめなのが「高級賃貸バイブル」です。
高級賃貸バイブルは業界10年以上の熟練スタッフ群がお客様ファーストで対応します。
下記ボタンから、まずは無料でご相談下さい。
※内覧をご希望の際には、どうぞ物件のエントランス前にてお待ち合わせくださいませ。ご内覧後は、同じ場所でお別れとさせていただきます。お客様のご都合に合わせたスムーズなご案内を心がけておりますので、ご質問等がございましたら何なりとお申し付けください。 物件概要
| 物件名 |
| 築年月 |
|
|---|---|---|---|
| 所在地 | |||
| 交通 | |||
| 総戸数 |
| 総階数 |
|
| 構造 |
| ||
地図
物件までの道のりは、「拡大地図を表示」をクリックしてナビ機能をご利用ください。
部屋設備















建物設備

TVモニターホン

エレベーター

オートロック

宅配ボックス

敷地内ゴミ置場

管理人

駐輪場
エスレジデンス八丁堀ウーナの現在募集中のお部屋
- No rooms found for this property.









