
| 賃料 | 予想金額:105,000〜125,000円程度 | 管理費 | 予想金額:8,000〜12,000円程度 |
| 礼金/敷金 | 非公開(アーカイブ) | 平米数 | 25.05㎡ |
| 初期費用概算(参考) | 目安:229,750〜329,750 円 | みなし賃料(月額・参考) | 121,328〜141,328 円 |
| 備考 | 本ページは過去募集のアーカイブです。表示の金額は周辺相場・過去募集を踏まえた参考レンジであり、実際の契約金額・条件ではありません。 | ||
※上記みなし賃料(月額)は仲介手数料割引・無料&キャッシュバックを加味した高級賃貸バイブル限定の金額です。一般的なみなし賃料とは異なります。
【建物ページ】エスレジデンス八丁堀ウーナの詳細・最新空室はこちら▶▶選ばれる理由
仲介手数料無料・キャンペーン情報(毎月15名様限定)
〇フリーレント1か月キャンペーン
エスレジデンス八丁堀ウーナ 501の口コミ・レビュー
エスレジデンス八丁堀ウーナ 501。ここはただの住まいではなく、あなたの人生を彩る舞台が待ち受けています。この501という特別な空間は、南西の光が優しく差し込む場所、25.05㎡の広がりをもつ1Kの間取りで、あなたの新しい物語の幕を開けるのです。まるで街角のカフェで味わう香ばしいコーヒーのように、エスレジデンス八丁堀ウーナはあなたの心を惹きつけてやみません。
エスレジデンス八丁堀ウーナ 501の…エスレジデンス八丁堀ウーナ 501。ここはただの住まいではなく、あなたの人生を彩る舞台が待ち受けています。この501という特別な空間は、南西の光が優しく差し込む場所、25.05㎡の広がりをもつ1Kの間取りで、あなたの新しい物語の幕を開けるのです。まるで街角のカフェで味わう香ばしいコーヒーのように、エスレジデンス八丁堀ウーナはあなたの心を惹きつけてやみません。
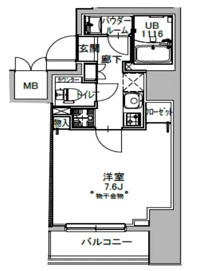
エスレジデンス八丁堀ウーナ 501の中に足を踏み入れると、まず出迎えてくれるのは、上質な空間を演出する洋室7.6帖の広々としたお部屋。やわらかな日差しが、あなたを包み込むように入っていき、穏やかでリラックスした雰囲気を醸し出します。どこか懐かしさを感じさせる木の温もりと、洗練されたデザインが絶妙に調和し、ここが自分の居場所であることを実感させてくれるでしょう。
夜になると、窓から見える夜景がまるで絵画のように広がり、あなたの心を揺さぶるシンフォニーとなります。静まり返った街の中で、どこか遠くから聞こえてくる風の音が、まるであなたの生活に寄り添うかのように、心地よいBGMを奏でます。エスレジデンス八丁堀ウーナ 501の居心地の良さは、まるで一杯のスープが体を温めてくれるような、そんな安らぎをもたらします。
この住まいは単なる場所ではなく、あなたが新たな生活のページをめくるためのキャンバスです。宅配ボックスや駐輪場、そしてセキュリティがしっかりと整ったオートロックなど、現代の暮らしに必要な利便性を全て備えています。一歩外に出れば、東京メトロ日比谷線八丁堀駅が徒歩3分の距離に。都市の喧騒から少し離れたこの場所は、心を穏やかにしてくれるオアシスです。
周辺の文化や歴史に触れながら、東京の中心でありながら人の温もりを感じられるエリアです。近くには悠久の歴史をたたえる建物やアートが溢れ、毎日の生活が映画のワンシーンのように。「エスレジデンス八丁堀ウーナ 501」は、まるで美術館の中にいるような錯覚を覚えさせるほどの魅力にあふれています。
あなたがここに住むことは、ただの生活ではありません。自分自身を再発見する旅路であり、気づかぬうちに心を豊かにしてくれる場所への招待状。朝の目覚めと共に日差しが差し込み、夜には星空を眺めることができるこの家こそが、あなたの求めていた理想の空間なのです。さあ、エスレジデンス八丁堀ウーナ 501で新しい物語を始めてみませんか?あなたを待っているのは、未知の体験と心温まる日常です。
エスレジデンス八丁堀ウーナ 501の…エスレジデンス八丁堀ウーナ 501。ここはただの住まいではなく、あなたの人生を彩る舞台が待ち受けています。この501という特別な空間は、南西の光が優しく差し込む場所、25.05㎡の広がりをもつ1Kの間取りで、あなたの新しい物語の幕を開けるのです。まるで街角のカフェで味わう香ばしいコーヒーのように、エスレジデンス八丁堀ウーナはあなたの心を惹きつけてやみません。
エスレジデンス八丁堀ウーナ 501の中に足を踏み入れると、まず出迎えてくれるのは、上質な空間を演出する洋室7.6帖の広々としたお部屋。やわらかな日差しが、あなたを包み込むように入っていき、穏やかでリラックスした雰囲気を醸し出します。どこか懐かしさを感じさせる木の温もりと、洗練されたデザインが絶妙に調和し、ここが自分の居場所であることを実感させてくれるでしょう。
夜になると、窓から見える夜景がまるで絵画のように広がり、あなたの心を揺さぶるシンフォニーとなります。静まり返った街の中で、どこか遠くから聞こえてくる風の音が、まるであなたの生活に寄り添うかのように、心地よいBGMを奏でます。エスレジデンス八丁堀ウーナ 501の居心地の良さは、まるで一杯のスープが体を温めてくれるような、そんな安らぎをもたらします。
この住まいは単なる場所ではなく、あなたが新たな生活のページをめくるためのキャンバスです。宅配ボックスや駐輪場、そしてセキュリティがしっかりと整ったオートロックなど、現代の暮らしに必要な利便性を全て備えています。一歩外に出れば、東京メトロ日比谷線八丁堀駅が徒歩3分の距離に。都市の喧騒から少し離れたこの場所は、心を穏やかにしてくれるオアシスです。
周辺の文化や歴史に触れながら、東京の中心でありながら人の温もりを感じられるエリアです。近くには悠久の歴史をたたえる建物やアートが溢れ、毎日の生活が映画のワンシーンのように。「エスレジデンス八丁堀ウーナ 501」は、まるで美術館の中にいるような錯覚を覚えさせるほどの魅力にあふれています。
あなたがここに住むことは、ただの生活ではありません。自分自身を再発見する旅路であり、気づかぬうちに心を豊かにしてくれる場所への招待状。朝の目覚めと共に日差しが差し込み、夜には星空を眺めることができるこの家こそが、あなたの求めていた理想の空間なのです。さあ、エスレジデンス八丁堀ウーナ 501で新しい物語を始めてみませんか?あなたを待っているのは、未知の体験と心温まる日常です。
バイブルスコア
バイブルスコア: 28.1
平均的なスコアです。
※バイブルスコア詳細はこちら
バイブルスコアとは独自のAI機械学習技術を利用した物件評価システムで、物件のおすすめ度を示します。最高得点は100点で、スコアが高いほど、よりおすすめの物件と評価されています。
写真
契約条件
| 賃料 | 予想金額:105,000〜125,000円程度 | 管理費 | 予想金額:8,000〜12,000円程度 |
| 礼金 | 非公開(アーカイブ) | 敷金 | 非公開(アーカイブ) |
| フリーレント | 1.0ヶ月 | 平米数 | 25.05㎡ |
| 間取り | 1K | 大型収納 | |
| 契約期間 |
| 方角 | 南西 |
| 更新料 | 契約形態 | 普通賃貸借契約 | |
| 取引態様 | 媒介 | 内見状況 | 入居中 |
| 入居時期 | 入居中 | SOHO・事務所 | |
| ペット | ペット可 | 間取り内訳 | 洋:7.6 |
| キャンペーン情報・備考 | 本情報は賃料改定交渉の資料作成、収益物件の利回り試算、周辺エリアや最寄り駅の坪単価分析、次回募集開始時期の予測などにご活用いただけます。 | ||
※「どの不動産に頼めばいいのか分からない」「信頼できる営業マンの話を聞きたい」「一番親切な会社と契約したい」とお悩みの方におすすめなのが「高級賃貸バイブル」です。
高級賃貸バイブルは業界10年以上の熟練スタッフ群がお客様ファーストで対応します。
下記ボタンから、まずは無料でご相談下さい。
※内覧をご希望の際には、どうぞ物件のエントランス前にてお待ち合わせくださいませ。ご内覧後は、同じ場所でお別れとさせていただきます。お客様のご都合に合わせたスムーズなご案内を心がけておりますので、ご質問等がございましたら何なりとお申し付けください。 物件概要
| 物件名 |
| 築年月 |
|
|---|---|---|---|
| 所在地 | |||
| 交通 | |||
| 総戸数 |
| 総階数 |
|
| 構造 |
| ||
地図
物件までの道のりは、「拡大地図を表示」をクリックしてナビ機能をご利用ください。
部屋設備















建物設備

TVモニターホン

エレベーター

オートロック

宅配ボックス

敷地内ゴミ置場

管理人

駐輪場
エスレジデンス八丁堀ウーナの現在募集中のお部屋
- No rooms found for this property.









