
| 賃料 | 予想金額:141,000〜161,000円程度 | 管理費 | 予想金額:6,000〜10,000円程度 |
| 礼金/敷金 | 非公開(アーカイブ) | 平米数 | 25.84㎡ |
| 初期費用概算(参考) | 目安:582,000〜682,000 円 | みなし賃料(月額・参考) | 159,021〜179,021 円 |
| 備考 | 本ページは過去募集のアーカイブです。表示の金額は周辺相場・過去募集を踏まえた参考レンジであり、実際の契約金額・条件ではありません。 | ||
※上記みなし賃料(月額)は仲介手数料割引・無料&キャッシュバックを加味した高級賃貸バイブル限定の金額です。一般的なみなし賃料とは異なります。
【建物ページ】シグマ西麻布IIの詳細・最新空室はこちら▶▶選ばれる理由
仲介手数料無料・キャンペーン情報(毎月15名様限定)
〇仲介手数料割引キャンペーン
シグマ西麻布II 601の口コミ・レビュー
シグマ西麻布II 601は、まるであなたのために特別にデザインされた隠れ家です。東京都港区西麻布の1-4-11に位置し、高級感と洗練が息づくこの場所は、都会の喧騒を忘れさせる安らぎの空間へとあなたを誘い入れます。北を向いた窓からは、静かな街並みが広がり、朝の光が優しく差し込む様子はまるで絵画の一部のようです。
エレベーターで天井が高く、洗練されたデザインのロビーを通り抜けて辿り着くシグマ西麻布I…シグマ西麻布II 601は、まるであなたのために特別にデザインされた隠れ家です。東京都港区西麻布の1-4-11に位置し、高級感と洗練が息づくこの場所は、都会の喧騒を忘れさせる安らぎの空間へとあなたを誘い入れます。北を向いた窓からは、静かな街並みが広がり、朝の光が優しく差し込む様子はまるで絵画の一部のようです。
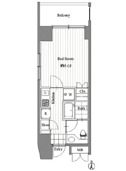
エレベーターで天井が高く、洗練されたデザインのロビーを通り抜けて辿り着くシグマ西麻布II 601の扉を開けると、そこにはあなたの新しい生活が待っています。8.0帖の洋室は、シンプルでありながらもどこか非日常を感じさせる空間に仕上げられており、あなたの個性を存分に反映できるキャンバスのようです。
この部屋の風は、まるで心地よい微風のように流れ込み、洗練されたインテリアの中に包み込まれる感覚に浸れます。ふと窓の外に目をやると、東京メトロ日比谷線の六本木駅が徒歩わずか6分という近さに、都会の中心であることを実感します。夜になると煌めく街の明かりがまるで星空のように見え、まるで映画のワンシーンの主人公になったような幸せな気持ちを味わえるでしょう。
シグマ西麻布II 601の魅力は、設備の充実にもあります。オートロックやTVモニターホンがあなたの安全を守り、宅配ボックスは忙しい日々の中でも荷物を受け取る手間を軽減してくれます。駐車場は機械式で、愛車を安全に保管することができるので、ここでの生活は心地よい贅沢そのものです。
このエレガントな空間に身を置くことで、あなたは毎日が特別な瞬間になるでしょう。朝の光を浴びながらコーヒーを淹れ、窓際に座って街の景色を眺める。そうした日常の一つ一つが、まるで詩のように心に残ります。夜は友人を招いてワインを楽しみ、アートを語り合うひととき。シグマ西麻布II 601が、あなたの生活に美と感動を添えてくれるのです。
ぜひ、この特別な空間で新たな生活を始めてみてください。シグマ西麻布II 601が、心に残る記憶と共に彩り豊かな日々を提供してくれることをお約束いたします。あなたの新しい物語が、ここから始まるのです。
エレベーターで天井が高く、洗練されたデザインのロビーを通り抜けて辿り着くシグマ西麻布I…シグマ西麻布II 601は、まるであなたのために特別にデザインされた隠れ家です。東京都港区西麻布の1-4-11に位置し、高級感と洗練が息づくこの場所は、都会の喧騒を忘れさせる安らぎの空間へとあなたを誘い入れます。北を向いた窓からは、静かな街並みが広がり、朝の光が優しく差し込む様子はまるで絵画の一部のようです。
エレベーターで天井が高く、洗練されたデザインのロビーを通り抜けて辿り着くシグマ西麻布II 601の扉を開けると、そこにはあなたの新しい生活が待っています。8.0帖の洋室は、シンプルでありながらもどこか非日常を感じさせる空間に仕上げられており、あなたの個性を存分に反映できるキャンバスのようです。
この部屋の風は、まるで心地よい微風のように流れ込み、洗練されたインテリアの中に包み込まれる感覚に浸れます。ふと窓の外に目をやると、東京メトロ日比谷線の六本木駅が徒歩わずか6分という近さに、都会の中心であることを実感します。夜になると煌めく街の明かりがまるで星空のように見え、まるで映画のワンシーンの主人公になったような幸せな気持ちを味わえるでしょう。
シグマ西麻布II 601の魅力は、設備の充実にもあります。オートロックやTVモニターホンがあなたの安全を守り、宅配ボックスは忙しい日々の中でも荷物を受け取る手間を軽減してくれます。駐車場は機械式で、愛車を安全に保管することができるので、ここでの生活は心地よい贅沢そのものです。
このエレガントな空間に身を置くことで、あなたは毎日が特別な瞬間になるでしょう。朝の光を浴びながらコーヒーを淹れ、窓際に座って街の景色を眺める。そうした日常の一つ一つが、まるで詩のように心に残ります。夜は友人を招いてワインを楽しみ、アートを語り合うひととき。シグマ西麻布II 601が、あなたの生活に美と感動を添えてくれるのです。
ぜひ、この特別な空間で新たな生活を始めてみてください。シグマ西麻布II 601が、心に残る記憶と共に彩り豊かな日々を提供してくれることをお約束いたします。あなたの新しい物語が、ここから始まるのです。
バイブルスコア
バイブルスコア: 9.3
高級な物件でない場合は割高な物件です。。
※バイブルスコア詳細はこちら
バイブルスコアとは独自のAI機械学習技術を利用した物件評価システムで、物件のおすすめ度を示します。最高得点は100点で、スコアが高いほど、よりおすすめの物件と評価されています。
写真
契約条件
| 賃料 | 予想金額:141,000〜161,000円程度 | 管理費 | 予想金額:6,000〜10,000円程度 |
| 礼金 | 非公開(アーカイブ) | 敷金 | 非公開(アーカイブ) |
| フリーレント | なし | 平米数 | 25.84㎡ |
| 間取り | 1K | 大型収納 | |
| 契約期間 |
| 方角 | 北 |
| 更新料 | 契約形態 | 普通賃貸借契約 | |
| 取引態様 | 媒介 | 内見状況 | 入居中 |
| 入居時期 | 入居中 | SOHO・事務所 | |
| ペット | 間取り内訳 | 洋室:8.0 | |
| キャンペーン情報・備考 | 本情報は賃料改定交渉の資料作成、収益物件の利回り試算、周辺エリアや最寄り駅の坪単価分析、次回募集開始時期の予測などにご活用いただけます。 | ||
※「どの不動産に頼めばいいのか分からない」「信頼できる営業マンの話を聞きたい」「一番親切な会社と契約したい」とお悩みの方におすすめなのが「高級賃貸バイブル」です。
高級賃貸バイブルは業界10年以上の熟練スタッフ群がお客様ファーストで対応します。
下記ボタンから、まずは無料でご相談下さい。
※内覧をご希望の際には、どうぞ物件のエントランス前にてお待ち合わせくださいませ。ご内覧後は、同じ場所でお別れとさせていただきます。お客様のご都合に合わせたスムーズなご案内を心がけておりますので、ご質問等がございましたら何なりとお申し付けください。 物件概要
| 物件名 |
| 築年月 |
|
|---|---|---|---|
| 所在地 | |||
| 交通 | |||
| 総戸数 |
| 総階数 |
|
| 構造 |
| ||
地図
物件までの道のりは、「拡大地図を表示」をクリックしてナビ機能をご利用ください。
部屋設備














建物設備

TVモニターホン

エレベーター

オートロック

宅配ボックス

敷地内ゴミ置場

駐車場機械式
シグマ西麻布IIの現在募集中のお部屋
- シグマ西麻布Ⅱ 503 - 間取り: 1K - 賃料: 14.2万円






















