
| 賃料 | 予想金額:81,000〜101,000円程度 | 管理費 | 予想金額:10,000〜14,000円程度 |
| 礼金/敷金 | 非公開(アーカイブ) | 平米数 | 27.52㎡ |
| 初期費用概算(参考) | 目安:229,000〜329,000 円 | みなし賃料(月額・参考) | 96,917〜116,917 円 |
| 備考 | 本ページは過去募集のアーカイブです。表示の金額は周辺相場・過去募集を踏まえた参考レンジであり、実際の契約金額・条件ではありません。 | ||
※上記みなし賃料(月額)は仲介手数料割引・無料&キャッシュバックを加味した高級賃貸バイブル限定の金額です。一般的なみなし賃料とは異なります。
【建物ページ】KDXレジデンス上野毛の詳細・最新空室はこちら▶▶選ばれる理由
仲介手数料無料・キャンペーン情報(毎月15名様限定)
〇引っ越しお祝い金3000円プレゼント(キャッシュバック)
〇仲介手数料無料キャンペーン
KDXレジデンス上野毛 308の口コミ・レビュー
KDXレジデンス上野毛 308。ここはただの住まいではなく、あなたの新たな物語が始まる舞台です。東京都世田谷区野毛3-2-11に位置し、北東の方角からやわらかな朝日が優しく差し込むこの空間では、毎日が特別な瞬間に彩られます。専有面積27.52㎡の中に詰め込まれた夢の数々は、まるで洗練された絵画のように、あなたを魅了してやみません。
KDXレジデンス上野毛 308に足を踏み入れると、まず感じるのは…KDXレジデンス上野毛 308。ここはただの住まいではなく、あなたの新たな物語が始まる舞台です。東京都世田谷区野毛3-2-11に位置し、北東の方角からやわらかな朝日が優しく差し込むこの空間では、毎日が特別な瞬間に彩られます。専有面積27.52㎡の中に詰め込まれた夢の数々は、まるで洗練された絵画のように、あなたを魅了してやみません。
KDXレジデンス上野毛 308に足を踏み入れると、まず感じるのはその静けさです。都会の喧騒から少し離れたこの場所は、まるで心のオアシスのよう。耳を澄ますと、遠くにかすかに聞こえる鳥のさえずりや、葉っぱのざわめきが、心地よい自然の交響曲を奏でています。デザイナーズとしての格調の高い佇まいは、まるで時代を超えたクラシックカーのような威厳を放ち、あなたを優雅な気分にさせてくれることでしょう。
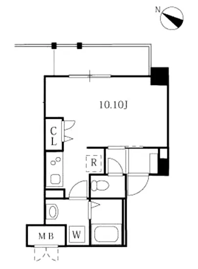
リビングは10.1帖の広さを持ち、あなたを迎え入れる準備が整っています。大きな窓からは、四季折々の美しい景色が広がり、日々の生活に新たな息吹を吹き込んでくれます。朝には新鮮な空気を吸い込みながら、淹れ立てのコーヒーの香りが漂うキッチンで、ゆっくりとした朝食のひとときをお楽しみいただけます。夜には、落ち着いた照明の中で、豊かな時間を演出する映画を眺めながら、心の底から充実感を感じることでしょう。
さらに、オートロックやTVモニターホンなどの現代的な設備も整っていますが、これらはただの機能以上の役割を果たします。それは、あなたの生活を守り、支えるための力強い味方なのです。宅配ボックスを通じて、あなたのもとに届く書籍や食材、生活必需品がもたらす安心感は、まるで大切な友人と再会するかのような嬉しさを感じさせてくれます。
この物件は、周辺の歴史や文化とも深くつながっています。世田谷区は、数々のアートギャラリーや小巧なカフェが点在し、まるで宝石のような街並みが広がっています。散策をすることで、あなたは思いがけない発見をし、心豊かな時間を過ごすことができるでしょう。高級ブランドが並ぶショッピング街では、あなた自身のスタイルを見つけることができ、まるで映画の主人公になったかのような気持ちを味わうことができます。
KDXレジデンス上野毛 308は、あなたに新たな生活の舞台を用意してくれる、そんな特別な場所です。この空間での生活は、心の充足感と共に、五感を刺激する様々な体験をもたらしてくれるでしょう。さあ、あなたの新たな物語を始めてみませんか。ここから、あなたの人生がより豊かになることを心より願っております。
KDXレジデンス上野毛 308に足を踏み入れると、まず感じるのは…KDXレジデンス上野毛 308。ここはただの住まいではなく、あなたの新たな物語が始まる舞台です。東京都世田谷区野毛3-2-11に位置し、北東の方角からやわらかな朝日が優しく差し込むこの空間では、毎日が特別な瞬間に彩られます。専有面積27.52㎡の中に詰め込まれた夢の数々は、まるで洗練された絵画のように、あなたを魅了してやみません。
KDXレジデンス上野毛 308に足を踏み入れると、まず感じるのはその静けさです。都会の喧騒から少し離れたこの場所は、まるで心のオアシスのよう。耳を澄ますと、遠くにかすかに聞こえる鳥のさえずりや、葉っぱのざわめきが、心地よい自然の交響曲を奏でています。デザイナーズとしての格調の高い佇まいは、まるで時代を超えたクラシックカーのような威厳を放ち、あなたを優雅な気分にさせてくれることでしょう。
リビングは10.1帖の広さを持ち、あなたを迎え入れる準備が整っています。大きな窓からは、四季折々の美しい景色が広がり、日々の生活に新たな息吹を吹き込んでくれます。朝には新鮮な空気を吸い込みながら、淹れ立てのコーヒーの香りが漂うキッチンで、ゆっくりとした朝食のひとときをお楽しみいただけます。夜には、落ち着いた照明の中で、豊かな時間を演出する映画を眺めながら、心の底から充実感を感じることでしょう。
さらに、オートロックやTVモニターホンなどの現代的な設備も整っていますが、これらはただの機能以上の役割を果たします。それは、あなたの生活を守り、支えるための力強い味方なのです。宅配ボックスを通じて、あなたのもとに届く書籍や食材、生活必需品がもたらす安心感は、まるで大切な友人と再会するかのような嬉しさを感じさせてくれます。
この物件は、周辺の歴史や文化とも深くつながっています。世田谷区は、数々のアートギャラリーや小巧なカフェが点在し、まるで宝石のような街並みが広がっています。散策をすることで、あなたは思いがけない発見をし、心豊かな時間を過ごすことができるでしょう。高級ブランドが並ぶショッピング街では、あなた自身のスタイルを見つけることができ、まるで映画の主人公になったかのような気持ちを味わうことができます。
KDXレジデンス上野毛 308は、あなたに新たな生活の舞台を用意してくれる、そんな特別な場所です。この空間での生活は、心の充足感と共に、五感を刺激する様々な体験をもたらしてくれるでしょう。さあ、あなたの新たな物語を始めてみませんか。ここから、あなたの人生がより豊かになることを心より願っております。
バイブルスコア
バイブルスコア: 60.2
かなり条件の良い物件です、即仮押さえをおすすめする物件です!
このお部屋は、現在ご入居中のため空室情報はございません。ただし、将来的に募集が開始される際、バイブルスコアにおいて非常に高い評価が期待されます。特にご興味をお持ちの方は、今のうちにブックマークやお気に入りに登録していただくと、募集開始のお知らせをすぐに受け取ることができます。是非ともご検討くださいませ。
※バイブルスコア詳細はこちら
バイブルスコアとは独自のAI機械学習技術を利用した物件評価システムで、物件のおすすめ度を示します。最高得点は100点で、スコアが高いほど、よりおすすめの物件と評価されています。
写真
現在写真が登録されていません契約条件
| 賃料 | 予想金額:81,000〜101,000円程度 | 管理費 | 予想金額:10,000〜14,000円程度 |
| 礼金 | 非公開(アーカイブ) | 敷金 | 非公開(アーカイブ) |
| フリーレント | なし | 平米数 | 27.52㎡ |
| 間取り | 1K | 大型収納 | なし |
| 契約期間 | 2年 | 方角 | 北東 |
| 更新料 | 1ヶ月 | 契約形態 | 普通賃貸借契約 |
| 取引態様 | 媒介 | 内見状況 | 入居中 |
| 入居時期 | 入居中 | SOHO・事務所 | 不可 |
| ペット | 不可 | 間取り内訳 | 洋:10.1 |
| キャンペーン情報・備考 | 本情報は賃料改定交渉の資料作成、収益物件の利回り試算、周辺エリアや最寄り駅の坪単価分析、次回募集開始時期の予測などにご活用いただけます。 | ||
※「どの不動産に頼めばいいのか分からない」「信頼できる営業マンの話を聞きたい」「一番親切な会社と契約したい」とお悩みの方におすすめなのが「高級賃貸バイブル」です。
高級賃貸バイブルは業界10年以上の熟練スタッフ群がお客様ファーストで対応します。
下記ボタンから、まずは無料でご相談下さい。
※内覧をご希望の際には、どうぞ物件のエントランス前にてお待ち合わせくださいませ。ご内覧後は、同じ場所でお別れとさせていただきます。お客様のご都合に合わせたスムーズなご案内を心がけておりますので、ご質問等がございましたら何なりとお申し付けください。 物件概要
| 物件名 |
| 築年月 |
|
|---|---|---|---|
| 所在地 | |||
| 交通 | |||
| 総戸数 |
| 総階数 |
|
| 構造 |
| ||
地図
物件までの道のりは、「拡大地図を表示」をクリックしてナビ機能をご利用ください。
部屋設備









建物設備

TVモニターホン

エレベーター

オートロック

宅配ボックス

敷地内ゴミ置場

管理人

駐輪場
KDXレジデンス上野毛の現在募集中のお部屋
- No rooms found for this property.
