
| 賃料 | 予想金額:149,000〜169,000円程度 | 管理費 | 予想金額:7,000〜11,000円程度 |
| 礼金/敷金 | 非公開(アーカイブ) | 平米数 | 38.01㎡ |
| 初期費用概算(参考) | 目安:452,500〜552,500 円 | みなし賃料(月額・参考) | 165,156〜185,156 円 |
| 備考 | 本ページは過去募集のアーカイブです。表示の金額は周辺相場・過去募集を踏まえた参考レンジであり、実際の契約金額・条件ではありません。 | ||
※上記みなし賃料(月額)は仲介手数料割引・無料&キャッシュバックを加味した高級賃貸バイブル限定の金額です。一般的なみなし賃料とは異なります。
【建物ページ】エスペランサ南麻布の詳細・最新空室はこちら▶▶選ばれる理由
仲介手数料無料・キャンペーン情報(毎月15名様限定)
〇仲介手数料割引キャンペーン
エスペランサ南麻布 702の口コミ・レビュー
エスペランサ南麻布 702。この響きは、まるで都会のオアシスのように心地よく、あなたを魅了することでしょう。東京都港区南麻布の静謐な一角に佇むこの物件は、北向きの窓から差し込む柔らかな光が、日々の疲れを癒してくれることでしょう。
702号室は、まるであなたのセカンドハウスがここに存在するかのような、洗練された空間を提供し、広さ38.01㎡には洗練されたデザインが息づいています。洋室は8.3帖とい…エスペランサ南麻布 702。この響きは、まるで都会のオアシスのように心地よく、あなたを魅了することでしょう。東京都港区南麻布の静謐な一角に佇むこの物件は、北向きの窓から差し込む柔らかな光が、日々の疲れを癒してくれることでしょう。
702号室は、まるであなたのセカンドハウスがここに存在するかのような、洗練された空間を提供し、広さ38.01㎡には洗練されたデザインが息づいています。洋室は8.3帖という贅沢な広さを誇り、落ち着いたトーンの壁がまるで心の奥深くに安らぎを与えてくれます。そこには、自然光が降り注ぎ、微かに風が吹き抜けていくような心地よい空気が漂います。あなたが一日の終わりにこの空間でリラックスする姿を想像してみてください。ふわりとしたカーテンが風に揺れ、穏やかな音色を奏でる様子を、見ているだけで心が和むことでしょう。
DK8.3帖は、料理をすることが好きな方にとってまさにパラダイス。この開放的な空間で、家族や友人と共に過ごす時間が、まるで映画のワンシーンのように思い出に刻まれていきます。温かい食材の香ばしい匂いが漂い、焚き火のように心を温める料理を作る楽しみを感じられることでしょう。料理の音が心地よく響き渡る中、笑い声や会話が飛び交う空間は、まさに生活の芸術と言えるものです。
エスペランサ南麻布 702は、ただの住まいではなく、あなた自身を表現するキャンバスでもあります。24時間体制の管理、TVモニターホン、オートロックなど、安心感と快適さを兼ね備えた設備は、まさに現代のニーズを満たすものであり、あなたの生活に優雅なリズムを与えてくれます。デザイナーズ物件としての誇りを持つこの空間は、洗練された美しさが各所に散りばめられ、訪れる人々に感嘆の声をもたらすことでしょう。
そして、この物件は周囲の文化や歴史とも深く結びついています。南麻布は、昔から洗練された生活とアートの息吹が感じられる場所。近隣には美術館やギャラリーが点在し、散歩するだけで心が豊かになります。まるで時間が止まったかのように、周囲の景色を楽しみながら、アートに触れ合える幸せを感じられるでしょう。
エスペランサ南麻布 702での生活は、絵画の中のシーンのように色彩豊かに広がります。あなたがここに住まうことで、日々のタスクや挑戦が、まるで美しいメロディに乗せられて流れていくことでしょう。さぁ、この特別な空間であなたの新しい生活をスタートさせてみませんか。心の中の夢が、ここエスペランサ南麻布 702で現実のものとなります。
702号室は、まるであなたのセカンドハウスがここに存在するかのような、洗練された空間を提供し、広さ38.01㎡には洗練されたデザインが息づいています。洋室は8.3帖とい…エスペランサ南麻布 702。この響きは、まるで都会のオアシスのように心地よく、あなたを魅了することでしょう。東京都港区南麻布の静謐な一角に佇むこの物件は、北向きの窓から差し込む柔らかな光が、日々の疲れを癒してくれることでしょう。
702号室は、まるであなたのセカンドハウスがここに存在するかのような、洗練された空間を提供し、広さ38.01㎡には洗練されたデザインが息づいています。洋室は8.3帖という贅沢な広さを誇り、落ち着いたトーンの壁がまるで心の奥深くに安らぎを与えてくれます。そこには、自然光が降り注ぎ、微かに風が吹き抜けていくような心地よい空気が漂います。あなたが一日の終わりにこの空間でリラックスする姿を想像してみてください。ふわりとしたカーテンが風に揺れ、穏やかな音色を奏でる様子を、見ているだけで心が和むことでしょう。
DK8.3帖は、料理をすることが好きな方にとってまさにパラダイス。この開放的な空間で、家族や友人と共に過ごす時間が、まるで映画のワンシーンのように思い出に刻まれていきます。温かい食材の香ばしい匂いが漂い、焚き火のように心を温める料理を作る楽しみを感じられることでしょう。料理の音が心地よく響き渡る中、笑い声や会話が飛び交う空間は、まさに生活の芸術と言えるものです。
エスペランサ南麻布 702は、ただの住まいではなく、あなた自身を表現するキャンバスでもあります。24時間体制の管理、TVモニターホン、オートロックなど、安心感と快適さを兼ね備えた設備は、まさに現代のニーズを満たすものであり、あなたの生活に優雅なリズムを与えてくれます。デザイナーズ物件としての誇りを持つこの空間は、洗練された美しさが各所に散りばめられ、訪れる人々に感嘆の声をもたらすことでしょう。
そして、この物件は周囲の文化や歴史とも深く結びついています。南麻布は、昔から洗練された生活とアートの息吹が感じられる場所。近隣には美術館やギャラリーが点在し、散歩するだけで心が豊かになります。まるで時間が止まったかのように、周囲の景色を楽しみながら、アートに触れ合える幸せを感じられるでしょう。
エスペランサ南麻布 702での生活は、絵画の中のシーンのように色彩豊かに広がります。あなたがここに住まうことで、日々のタスクや挑戦が、まるで美しいメロディに乗せられて流れていくことでしょう。さぁ、この特別な空間であなたの新しい生活をスタートさせてみませんか。心の中の夢が、ここエスペランサ南麻布 702で現実のものとなります。
バイブルスコア
バイブルスコア: 30.2
平均的なスコアです。
※バイブルスコア詳細はこちら
バイブルスコアとは独自のAI機械学習技術を利用した物件評価システムで、物件のおすすめ度を示します。最高得点は100点で、スコアが高いほど、よりおすすめの物件と評価されています。
写真
契約条件
| 賃料 | 予想金額:149,000〜169,000円程度 | 管理費 | 予想金額:7,000〜11,000円程度 |
| 礼金 | 非公開(アーカイブ) | 敷金 | 非公開(アーカイブ) |
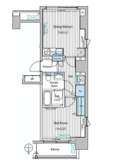
| フリーレント | なし | 平米数 | 38.01㎡ |
| 間取り | 1DK | 大型収納 | |
| 契約期間 |
| 方角 | 北 |
| 更新料 | 契約形態 | 普通賃貸借契約 | |
| 取引態様 | 媒介 | 内見状況 | 入居中 |
| 入居時期 | 入居中 | SOHO・事務所 | |
| ペット | 間取り内訳 | 洋:8.3 DK:8.3 | |
| キャンペーン情報・備考 | 本情報は賃料改定交渉の資料作成、収益物件の利回り試算、周辺エリアや最寄り駅の坪単価分析、次回募集開始時期の予測などにご活用いただけます。 | ||
※「どの不動産に頼めばいいのか分からない」「信頼できる営業マンの話を聞きたい」「一番親切な会社と契約したい」とお悩みの方におすすめなのが「高級賃貸バイブル」です。
高級賃貸バイブルは業界10年以上の熟練スタッフ群がお客様ファーストで対応します。
下記ボタンから、まずは無料でご相談下さい。
※内覧をご希望の際には、どうぞ物件のエントランス前にてお待ち合わせくださいませ。ご内覧後は、同じ場所でお別れとさせていただきます。お客様のご都合に合わせたスムーズなご案内を心がけておりますので、ご質問等がございましたら何なりとお申し付けください。 物件概要
| 物件名 |
| 築年月 |
|
|---|---|---|---|
| 所在地 | |||
| 交通 | |||
| 総戸数 |
| 総階数 |
|
| 構造 |
| ||
地図
物件までの道のりは、「拡大地図を表示」をクリックしてナビ機能をご利用ください。
部屋設備















建物設備

24時間管理

TVモニターホン

エレベーター

オートロック

宅配ボックス

敷地内ゴミ置場

駐車場平置き

駐輪場
エスペランサ南麻布の現在募集中のお部屋
- No rooms found for this property.





















