
| 賃料 | 予想金額:151,000〜171,000円程度 | 管理費 | 予想金額:13,000〜17,000円程度 |
| 礼金/敷金 | 非公開(アーカイブ) | 平米数 | 40.8㎡ |
| 初期費用概算(参考) | 目安:466,500〜566,500 円 | みなし賃料(月額・参考) | 173,406〜193,406 円 |
| 備考 | 本ページは過去募集のアーカイブです。表示の金額は周辺相場・過去募集を踏まえた参考レンジであり、実際の契約金額・条件ではありません。 | ||
※上記みなし賃料(月額)は仲介手数料割引・無料&キャッシュバックを加味した高級賃貸バイブル限定の金額です。一般的なみなし賃料とは異なります。
【建物ページ】ライオンズフォーシア押上の詳細・最新空室はこちら▶▶選ばれる理由
仲介手数料無料・キャンペーン情報(毎月15名様限定)
〇仲介手数料割引キャンペーン
Healing Gate 押上 203の口コミ・レビュー
Healing Gate 押上 203。この名前は、あなたの新たな住処としての魅力をただ呼び覚ますだけではありません。それは、快適さと安らぎが共存する場所、まるで心を温める一杯のハーブティーのように、あなたの日常を優しく包み込んでくれる存在です。
この美しい物件は、東京都墨田区業平4-5-11に位置し、日が昇る東の空から受ける優しい光を取り込むように設計されています。203号室は、40.8㎡とい…Healing Gate 押上 203。この名前は、あなたの新たな住処としての魅力をただ呼び覚ますだけではありません。それは、快適さと安らぎが共存する場所、まるで心を温める一杯のハーブティーのように、あなたの日常を優しく包み込んでくれる存在です。
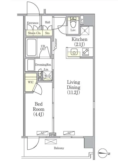
この美しい物件は、東京都墨田区業平4-5-11に位置し、日が昇る東の空から受ける優しい光を取り込むように設計されています。203号室は、40.8㎡という心地よい広さを持ち、1LDKの間取りは、洋室4.4帖、LD11.2帖、K2.1帖と、それぞれのスペースが見事に調和を成しています。まるで天才音楽家が奏でる協奏曲のように、あなたのライフスタイルに合わせて、いくつものシーンを描くことができるのです。
エレベーターで静かに上がると、優雅な空間が広がり、オートロックの扉を開けた瞬間、まるで秘密の庭園に足を踏み入れたかのような感覚を覚えます。TVモニターホンを通して、訪れる人との会話は、まさに古典作品の一幕のよう。そして、敷地内には管理人が常駐し、安心感を与えてくれます。バイク置場や駐車場も完備されており、あなたの移動を一層自由にするでしょう。この場所は、まさに生活の舞台裏を支える重要な役割を果たすのです。
朝はキッチンで新鮮な野菜を切り、香ばしい香りが広がる瞬間、あなたの心は自然と穏やかに満たされます。LD11.2帖の広さは、友人を招いて楽しいひと時を過ごすのにも十分です。明るい日差しが差し込み、カーテンが軽やかに揺れる姿は、まるで美しい映画の一シーンのよう。夕方には、窓から見える街並みが夕陽に染まり、あなたの心を静かに和ませてくれます。
また、周辺には歴史や文化が息づき、アートギャラリーやカフェが点在しています。そうした場所に足を運ぶことで、あなたの生活はより豊かになり、心の栄養となるのです。日本の伝統と現代が融合したこの地域は、あなた自身を深めてくれる舞台であり、生きる喜びを再確認させてくれます。
Healing Gate 押上での生活は、ただの居住空間を超え、心身共に癒しをもたらす特別な体験となります。あなた自身の物語を、ここで描いてみませんか。感じること、味わうこと、そして生きることの全てが、この場所で待っています。さあ、新たな冒険の扉を開いて、あなたの夢を現実に変えてみてください。
この美しい物件は、東京都墨田区業平4-5-11に位置し、日が昇る東の空から受ける優しい光を取り込むように設計されています。203号室は、40.8㎡とい…Healing Gate 押上 203。この名前は、あなたの新たな住処としての魅力をただ呼び覚ますだけではありません。それは、快適さと安らぎが共存する場所、まるで心を温める一杯のハーブティーのように、あなたの日常を優しく包み込んでくれる存在です。
この美しい物件は、東京都墨田区業平4-5-11に位置し、日が昇る東の空から受ける優しい光を取り込むように設計されています。203号室は、40.8㎡という心地よい広さを持ち、1LDKの間取りは、洋室4.4帖、LD11.2帖、K2.1帖と、それぞれのスペースが見事に調和を成しています。まるで天才音楽家が奏でる協奏曲のように、あなたのライフスタイルに合わせて、いくつものシーンを描くことができるのです。
エレベーターで静かに上がると、優雅な空間が広がり、オートロックの扉を開けた瞬間、まるで秘密の庭園に足を踏み入れたかのような感覚を覚えます。TVモニターホンを通して、訪れる人との会話は、まさに古典作品の一幕のよう。そして、敷地内には管理人が常駐し、安心感を与えてくれます。バイク置場や駐車場も完備されており、あなたの移動を一層自由にするでしょう。この場所は、まさに生活の舞台裏を支える重要な役割を果たすのです。
朝はキッチンで新鮮な野菜を切り、香ばしい香りが広がる瞬間、あなたの心は自然と穏やかに満たされます。LD11.2帖の広さは、友人を招いて楽しいひと時を過ごすのにも十分です。明るい日差しが差し込み、カーテンが軽やかに揺れる姿は、まるで美しい映画の一シーンのよう。夕方には、窓から見える街並みが夕陽に染まり、あなたの心を静かに和ませてくれます。
また、周辺には歴史や文化が息づき、アートギャラリーやカフェが点在しています。そうした場所に足を運ぶことで、あなたの生活はより豊かになり、心の栄養となるのです。日本の伝統と現代が融合したこの地域は、あなた自身を深めてくれる舞台であり、生きる喜びを再確認させてくれます。
Healing Gate 押上での生活は、ただの居住空間を超え、心身共に癒しをもたらす特別な体験となります。あなた自身の物語を、ここで描いてみませんか。感じること、味わうこと、そして生きることの全てが、この場所で待っています。さあ、新たな冒険の扉を開いて、あなたの夢を現実に変えてみてください。
バイブルスコア
バイブルスコア: 38.2
平均的なスコアです。
※バイブルスコア詳細はこちら
バイブルスコアとは独自のAI機械学習技術を利用した物件評価システムで、物件のおすすめ度を示します。最高得点は100点で、スコアが高いほど、よりおすすめの物件と評価されています。
写真
現在写真が登録されていません契約条件
| 賃料 | 予想金額:151,000〜171,000円程度 | 管理費 | 予想金額:13,000〜17,000円程度 |
| 礼金 | 非公開(アーカイブ) | 敷金 | 非公開(アーカイブ) |
| フリーレント | なし | 平米数 | 40.8㎡ |
| 間取り | 1LDK | 大型収納 | WIC |
| 契約期間 |
| 方角 | 東 |
| 更新料 | 契約形態 | 普通賃貸借契約 | |
| 取引態様 | 媒介 | 内見状況 | 入居中 |
| 入居時期 | 入居中 | SOHO・事務所 | |
| ペット | ペット可 | 間取り内訳 | 洋:4.4 LD:11.2 K:2.1 |
| キャンペーン情報・備考 | 本情報は賃料改定交渉の資料作成、収益物件の利回り試算、周辺エリアや最寄り駅の坪単価分析、次回募集開始時期の予測などにご活用いただけます。 | ||
※「どの不動産に頼めばいいのか分からない」「信頼できる営業マンの話を聞きたい」「一番親切な会社と契約したい」とお悩みの方におすすめなのが「高級賃貸バイブル」です。
高級賃貸バイブルは業界10年以上の熟練スタッフ群がお客様ファーストで対応します。
下記ボタンから、まずは無料でご相談下さい。
※内覧をご希望の際には、どうぞ物件のエントランス前にてお待ち合わせくださいませ。ご内覧後は、同じ場所でお別れとさせていただきます。お客様のご都合に合わせたスムーズなご案内を心がけておりますので、ご質問等がございましたら何なりとお申し付けください。 物件概要
| 物件名 |
| 築年月 |
|
|---|---|---|---|
| 所在地 | |||
| 交通 |
| ||
| 総戸数 |
| 総階数 |
|
| 構造 |
| ||
地図
物件までの道のりは、「拡大地図を表示」をクリックしてナビ機能をご利用ください。
部屋設備















建物設備

TVモニターホン

エレベーター

オートロック

バイク置場

宅配ボックス

敷地内ゴミ置場

管理人

駐車場平置き

駐車場機械式

駐輪場
Healing Gate 押上の現在募集中のお部屋
- No rooms found for this property.
