
| 賃料 | 予想金額:114,000〜134,000円程度 | 管理費 | 予想金額:10,000〜14,000円程度 |
| 礼金/敷金 | 非公開(アーカイブ) | 平米数 | 25.44㎡ |
| 初期費用概算(参考) | 目安:397,200〜497,200 円 | みなし賃料(月額・参考) | 132,733〜152,733 円 |
| 備考 | 本ページは過去募集のアーカイブです。表示の金額は周辺相場・過去募集を踏まえた参考レンジであり、実際の契約金額・条件ではありません。 | ||
※上記みなし賃料(月額)は仲介手数料割引・無料&キャッシュバックを加味した高級賃貸バイブル限定の金額です。一般的なみなし賃料とは異なります。
【建物ページ】ガリシア新宿御苑の詳細・最新空室はこちら▶▶選ばれる理由
仲介手数料無料・キャンペーン情報(毎月15名様限定)
〇引っ越しお祝い金24800円プレゼント(キャッシュバック)
〇仲介手数料無料キャンペーン
ガリシア新宿御苑 902の口コミ・レビュー
ガリシア新宿御苑 902。ここは、洗練された生活を求める方に贈る、まるで時の流れを忘れさせる聖域です。902という一つの番号は、あなたの新たな物語の始まりを象徴します。この空間は、単なる住居の枠を超え、あなたに寄り添うパートナーとして、日常を特別な瞬間に変えてくれるでしょう。
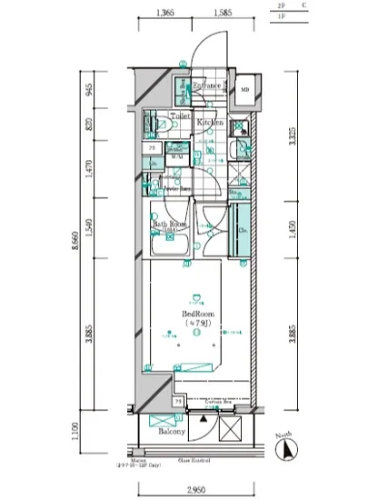
この家の心臓部、広さ25.44㎡の洋室7.9帖は、まるで柔らかな絹のように包み込む空間です。決して大きな面積ではありませ…ガリシア新宿御苑 902。ここは、洗練された生活を求める方に贈る、まるで時の流れを忘れさせる聖域です。902という一つの番号は、あなたの新たな物語の始まりを象徴します。この空間は、単なる住居の枠を超え、あなたに寄り添うパートナーとして、日常を特別な瞬間に変えてくれるでしょう。
この家の心臓部、広さ25.44㎡の洋室7.9帖は、まるで柔らかな絹のように包み込む空間です。決して大きな面積ではありませんが、この部屋は無限の可能性を秘めています。南向きの窓からは、柔らかな陽光が差し込み、まるで朝の光に包まれた小さなカフェにいるような心地よさをもたらします。暖かな日差しが床を撫でると、あたかもあなたのストーリーがここで始まるかのよう。朝のコーヒーを淹れる音、ほんのり漂う香ばしい香りと共に、穏やかな一日の始まりを感じます。
そしてこのガリシア新宿御苑 902は、単なる居住空間を超えて、あなたの感性を刺激する場所でもあります。エレベーターに乗ると、その瞬間からまるで特別な旅が始まるかのよう。オートロックの扉を開けると、広がるのは、あなたのプライバシーが守られた静寂の世界。ここで、心を解放し、夢を描く自由を感じることができるのです。
近隣には新宿御苑があり、その大自然と四季折々の景観は、あなたに癒しとインスピレーションを与えてくれます。特に春には、桜の花が風に舞い、生命の息吹を感じさせてくれることでしょう。夏の新宿の喧騒を忘れることができるこの場所は、まさに喧騒からのオアシスです。そして、秋には色鮮やかな紅葉が、冬には静寂な雪景色が、あなたの感性を豊かに育んでくれます。
ガリシア新宿御苑 902は、ただの家ではありません。あなたの生活を映画のワンシーンのように演出してくれる舞台なのです。宅配ボックスの存在は、忙しい日常をサポートし、管理人が見守るこの場所は、心地よい安心感を与えてくれます。バイク置場や駐輪場も完備されており、あなたのライフスタイルを無理なく支える仕掛けが整っています。
朝は窓を開けて新鮮な風を感じ、昼は新宿の賑わいに身を委ね、夜は静かに星空を見上げる。それが、ガリシア新宿御苑 902での贅沢な生活です。この特別な場所で、あなたの物語を新たに紡いでみませんか?生活の一瞬一瞬が、魅力に満ちた芸術のように、あなたを待っています。大切なあなたのために、ガリシア新宿御苑 902は、いつでも準備が整っています。あなたの新しい章が、ここから始まるのです。
この家の心臓部、広さ25.44㎡の洋室7.9帖は、まるで柔らかな絹のように包み込む空間です。決して大きな面積ではありませ…ガリシア新宿御苑 902。ここは、洗練された生活を求める方に贈る、まるで時の流れを忘れさせる聖域です。902という一つの番号は、あなたの新たな物語の始まりを象徴します。この空間は、単なる住居の枠を超え、あなたに寄り添うパートナーとして、日常を特別な瞬間に変えてくれるでしょう。
この家の心臓部、広さ25.44㎡の洋室7.9帖は、まるで柔らかな絹のように包み込む空間です。決して大きな面積ではありませんが、この部屋は無限の可能性を秘めています。南向きの窓からは、柔らかな陽光が差し込み、まるで朝の光に包まれた小さなカフェにいるような心地よさをもたらします。暖かな日差しが床を撫でると、あたかもあなたのストーリーがここで始まるかのよう。朝のコーヒーを淹れる音、ほんのり漂う香ばしい香りと共に、穏やかな一日の始まりを感じます。
そしてこのガリシア新宿御苑 902は、単なる居住空間を超えて、あなたの感性を刺激する場所でもあります。エレベーターに乗ると、その瞬間からまるで特別な旅が始まるかのよう。オートロックの扉を開けると、広がるのは、あなたのプライバシーが守られた静寂の世界。ここで、心を解放し、夢を描く自由を感じることができるのです。
近隣には新宿御苑があり、その大自然と四季折々の景観は、あなたに癒しとインスピレーションを与えてくれます。特に春には、桜の花が風に舞い、生命の息吹を感じさせてくれることでしょう。夏の新宿の喧騒を忘れることができるこの場所は、まさに喧騒からのオアシスです。そして、秋には色鮮やかな紅葉が、冬には静寂な雪景色が、あなたの感性を豊かに育んでくれます。
ガリシア新宿御苑 902は、ただの家ではありません。あなたの生活を映画のワンシーンのように演出してくれる舞台なのです。宅配ボックスの存在は、忙しい日常をサポートし、管理人が見守るこの場所は、心地よい安心感を与えてくれます。バイク置場や駐輪場も完備されており、あなたのライフスタイルを無理なく支える仕掛けが整っています。
朝は窓を開けて新鮮な風を感じ、昼は新宿の賑わいに身を委ね、夜は静かに星空を見上げる。それが、ガリシア新宿御苑 902での贅沢な生活です。この特別な場所で、あなたの物語を新たに紡いでみませんか?生活の一瞬一瞬が、魅力に満ちた芸術のように、あなたを待っています。大切なあなたのために、ガリシア新宿御苑 902は、いつでも準備が整っています。あなたの新しい章が、ここから始まるのです。
バイブルスコア
バイブルスコア: 49
条件のいい物件です、引っ越しが2か月以内の場合は仮申し込みを検討すべき物件です。
※バイブルスコア詳細はこちら
バイブルスコアとは独自のAI機械学習技術を利用した物件評価システムで、物件のおすすめ度を示します。最高得点は100点で、スコアが高いほど、よりおすすめの物件と評価されています。
写真
現在写真が登録されていません契約条件
| 賃料 | 予想金額:114,000〜134,000円程度 | 管理費 | 予想金額:10,000〜14,000円程度 |
| 礼金 | 非公開(アーカイブ) | 敷金 | 非公開(アーカイブ) |
| フリーレント | なし | 平米数 | 25.44㎡ |
| 間取り | 1K | 大型収納 | なし |
| 契約期間 | 2年 | 方角 | 南 |
| 更新料 | 1ヶ月 | 契約形態 | 普通賃貸借契約 |
| 取引態様 | 媒介 | 内見状況 | 入居中 |
| 入居時期 | 入居中 | SOHO・事務所 | 事務所(SOHO)可 |
| ペット | 不可 | 間取り内訳 | 洋:7.9 |
| キャンペーン情報・備考 | 本情報は賃料改定交渉の資料作成、収益物件の利回り試算、周辺エリアや最寄り駅の坪単価分析、次回募集開始時期の予測などにご活用いただけます。 | ||
※「どの不動産に頼めばいいのか分からない」「信頼できる営業マンの話を聞きたい」「一番親切な会社と契約したい」とお悩みの方におすすめなのが「高級賃貸バイブル」です。
高級賃貸バイブルは業界10年以上の熟練スタッフ群がお客様ファーストで対応します。
下記ボタンから、まずは無料でご相談下さい。
※内覧をご希望の際には、どうぞ物件のエントランス前にてお待ち合わせくださいませ。ご内覧後は、同じ場所でお別れとさせていただきます。お客様のご都合に合わせたスムーズなご案内を心がけておりますので、ご質問等がございましたら何なりとお申し付けください。 物件概要
| 物件名 |
| 築年月 |
|
|---|---|---|---|
| 所在地 | |||
| 交通 | |||
| 総戸数 |
| 総階数 |
|
| 構造 |
| ||
地図
物件までの道のりは、「拡大地図を表示」をクリックしてナビ機能をご利用ください。
部屋設備













建物設備

TVモニターホン

エレベーター

オートロック

バイク置場

宅配ボックス

敷地内ゴミ置場

管理人

駐輪場
ガリシア新宿御苑の現在募集中のお部屋
- No rooms found for this property.
