
| 賃料 | 予想金額:355,000〜375,000円程度 | 管理費 | 予想金額:18,000〜22,000円程度 |
| 礼金/敷金 | 非公開(アーカイブ) | 平米数 | 75.66㎡ |
| 初期費用概算(参考) | 目安:1,365,500〜1,465,500 円 | みなし賃料(月額・参考) | 396,885〜416,885 円 |
| 備考 | 本ページは過去募集のアーカイブです。表示の金額は周辺相場・過去募集を踏まえた参考レンジであり、実際の契約金額・条件ではありません。 | ||
※上記みなし賃料(月額)は仲介手数料割引・無料&キャッシュバックを加味した高級賃貸バイブル限定の金額です。一般的なみなし賃料とは異なります。
【建物ページ】ザ・パークハウス新宿御苑の詳細・最新空室はこちら▶▶選ばれる理由
仲介手数料無料・キャンペーン情報(毎月15名様限定)
〇仲介手数料割引キャンペーン
ザ・パークハウス新宿御苑 203の口コミ・レビュー
ザ・パークハウス新宿御苑 203。この魅惑的な名前が、あなたの新しい物語の始まりを告げます。エレガントな外観を誇るこの住まいは、まるでかけがえのない宝石のように、新宿の喧騒から一歩離れた穏やかな空間へと誘います。東京都新宿区新宿2-1-1という特別な場所に位置し、日々の生活を特別なものにするための舞台が整っています。
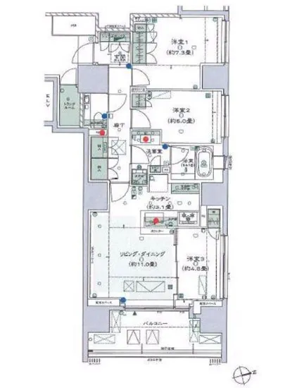
あなたがこの家のドアを開ける瞬間、11帖のリビングダイニングが広がります。光が…ザ・パークハウス新宿御苑 203。この魅惑的な名前が、あなたの新しい物語の始まりを告げます。エレガントな外観を誇るこの住まいは、まるでかけがえのない宝石のように、新宿の喧騒から一歩離れた穏やかな空間へと誘います。東京都新宿区新宿2-1-1という特別な場所に位置し、日々の生活を特別なものにするための舞台が整っています。
あなたがこの家のドアを開ける瞬間、11帖のリビングダイニングが広がります。光がふんだんに注ぎ込み、心地よい風とともに新鮮な香りが流れ込んでくるかのようです。朝のコーヒーを楽しむひととき、窓の外から聞こえる鳥のさえずりが、まるでシンフォニーのようにあなたを包み込みます。この空間での生活は、日々のストレスを洗い流し、心を豊かにしてくれるでしょう。
キッチンは3.1帖のコンパクトながら、機能美が調和した場所です。手に馴染むような質感の調理器具に触れ、食材の香ばしい香りが漂う中で、愛する人々のために料理をすることができる。家族の笑い声が響く中、心温まる料理の数々がテーブルに並ぶ光景が目に浮かびます。
そして、7.3帖、5帖、4.8帖の3つの素敵な寝室。どの部屋も必要とされるプライバシーを保ちながらも、家族が共にいる喜びを感じることができる空間となっています。寝室の大きな窓からは、朝日がゆっくりと昇り、優しい光があなたを包む様子に心が躍ることでしょう。ゆったりとした時間が流れ、心地よい眠りから目覚める至福の瞬間に、あなたはこの家の一員であることを実感するはずです。
さらに、ザ・パークハウス新宿御苑 203には、利便性を追求した数々の設備も整っています。オートロックのセキュリティシステムが安心をもたらし、宅配ボックスが忙しい現代人のライフスタイルを支えます。また、周辺には新宿御苑という静寂のオアシスが広がり、四季折々の美しさを楽しむことができるのも魅力のひとつです。特に春には桜が咲き誇り、まるで心が洗われるような気分になります。
この場所は、歴史と文化の交差点でもあります。新宿の街には、アートと美食が溢れ、あなたの感性を刺激する様々な体験が待っています。小さなカフェでのひとときや、ギャラリーでの新しい発見が、あなたの日常に彩りを加えるでしょう。
ザ・パークハウス新宿御苑 203は、単なる居住空間ではなく、あなたの人生そのものを豊かにするための舞台です。この場所で、あなた自身の物語を紡ぎ、心躍る日々を体験してみませんか。ここには、あなたの未来を輝かせるすべての要素が揃っています。心地よい風を感じながら、この特別な空間で新しい日々を迎えることができるのです。
あなたがこの家のドアを開ける瞬間、11帖のリビングダイニングが広がります。光が…ザ・パークハウス新宿御苑 203。この魅惑的な名前が、あなたの新しい物語の始まりを告げます。エレガントな外観を誇るこの住まいは、まるでかけがえのない宝石のように、新宿の喧騒から一歩離れた穏やかな空間へと誘います。東京都新宿区新宿2-1-1という特別な場所に位置し、日々の生活を特別なものにするための舞台が整っています。
あなたがこの家のドアを開ける瞬間、11帖のリビングダイニングが広がります。光がふんだんに注ぎ込み、心地よい風とともに新鮮な香りが流れ込んでくるかのようです。朝のコーヒーを楽しむひととき、窓の外から聞こえる鳥のさえずりが、まるでシンフォニーのようにあなたを包み込みます。この空間での生活は、日々のストレスを洗い流し、心を豊かにしてくれるでしょう。
キッチンは3.1帖のコンパクトながら、機能美が調和した場所です。手に馴染むような質感の調理器具に触れ、食材の香ばしい香りが漂う中で、愛する人々のために料理をすることができる。家族の笑い声が響く中、心温まる料理の数々がテーブルに並ぶ光景が目に浮かびます。
そして、7.3帖、5帖、4.8帖の3つの素敵な寝室。どの部屋も必要とされるプライバシーを保ちながらも、家族が共にいる喜びを感じることができる空間となっています。寝室の大きな窓からは、朝日がゆっくりと昇り、優しい光があなたを包む様子に心が躍ることでしょう。ゆったりとした時間が流れ、心地よい眠りから目覚める至福の瞬間に、あなたはこの家の一員であることを実感するはずです。
さらに、ザ・パークハウス新宿御苑 203には、利便性を追求した数々の設備も整っています。オートロックのセキュリティシステムが安心をもたらし、宅配ボックスが忙しい現代人のライフスタイルを支えます。また、周辺には新宿御苑という静寂のオアシスが広がり、四季折々の美しさを楽しむことができるのも魅力のひとつです。特に春には桜が咲き誇り、まるで心が洗われるような気分になります。
この場所は、歴史と文化の交差点でもあります。新宿の街には、アートと美食が溢れ、あなたの感性を刺激する様々な体験が待っています。小さなカフェでのひとときや、ギャラリーでの新しい発見が、あなたの日常に彩りを加えるでしょう。
ザ・パークハウス新宿御苑 203は、単なる居住空間ではなく、あなたの人生そのものを豊かにするための舞台です。この場所で、あなた自身の物語を紡ぎ、心躍る日々を体験してみませんか。ここには、あなたの未来を輝かせるすべての要素が揃っています。心地よい風を感じながら、この特別な空間で新しい日々を迎えることができるのです。
バイブルスコア
バイブルスコア: 94.8
レア物件です、すぐ仮押さえしましょう!
このお部屋は、現在ご入居中のため空室情報はございません。ただし、将来的に募集が開始される際、バイブルスコアにおいて非常に高い評価が期待されます。特にご興味をお持ちの方は、今のうちにブックマークやお気に入りに登録していただくと、募集開始のお知らせをすぐに受け取ることができます。是非ともご検討くださいませ。
※バイブルスコア詳細はこちら
バイブルスコアとは独自のAI機械学習技術を利用した物件評価システムで、物件のおすすめ度を示します。最高得点は100点で、スコアが高いほど、よりおすすめの物件と評価されています。
写真
契約条件
| 賃料 | 予想金額:355,000〜375,000円程度 | 管理費 | 予想金額:18,000〜22,000円程度 |
| 礼金 | 非公開(アーカイブ) | 敷金 | 非公開(アーカイブ) |
| フリーレント | なし | 平米数 | 75.66㎡ |
| 間取り | 3LDK | 大型収納 | TR |
| 契約期間 | 2年 | 方角 | 東 |
| 更新料 | 1ヶ月 | 契約形態 | 普通賃貸借契約 |
| 取引態様 | 媒介 | 内見状況 | 入居中 |
| 入居時期 | 入居中 | SOHO・事務所 | |
| ペット | ペット可 | 間取り内訳 | LD=11J / K=3.1J / BR=7.3J / BR=5J / BR=4.8J |
| キャンペーン情報・備考 | 本情報は賃料改定交渉の資料作成、収益物件の利回り試算、周辺エリアや最寄り駅の坪単価分析、次回募集開始時期の予測などにご活用いただけます。 | ||
※「どの不動産に頼めばいいのか分からない」「信頼できる営業マンの話を聞きたい」「一番親切な会社と契約したい」とお悩みの方におすすめなのが「高級賃貸バイブル」です。
高級賃貸バイブルは業界10年以上の熟練スタッフ群がお客様ファーストで対応します。
下記ボタンから、まずは無料でご相談下さい。
※内覧をご希望の際には、どうぞ物件のエントランス前にてお待ち合わせくださいませ。ご内覧後は、同じ場所でお別れとさせていただきます。お客様のご都合に合わせたスムーズなご案内を心がけておりますので、ご質問等がございましたら何なりとお申し付けください。 物件概要
| 物件名 |
| 築年月 |
|
|---|---|---|---|
| 所在地 | |||
| 交通 | |||
| 総戸数 |
| 総階数 |
|
| 構造 |
| ||
地図
物件までの道のりは、「拡大地図を表示」をクリックしてナビ機能をご利用ください。
部屋設備



















建物設備

TVモニターホン

エレベーター

オートロック

宅配ボックス

敷地内ゴミ置場

管理人

駐車場平置き

駐車場機械式

駐輪場
ザ・パークハウス新宿御苑の現在募集中のお部屋
- No rooms found for this property.

























