
| 賃料 | 予想金額:96,000〜116,000円程度 | 管理費 | 予想金額:8,000〜12,000円程度 |
| 礼金/敷金 | 非公開(アーカイブ) | 平米数 | 26.36㎡ |
| 初期費用概算(参考) | 目安:109,750〜209,750 円 | みなし賃料(月額・参考) | 109,828〜129,828 円 |
| 備考 | 本ページは過去募集のアーカイブです。表示の金額は周辺相場・過去募集を踏まえた参考レンジであり、実際の契約金額・条件ではありません。 | ||
※上記みなし賃料(月額)は仲介手数料割引・無料&キャッシュバックを加味した高級賃貸バイブル限定の金額です。一般的なみなし賃料とは異なります。
【建物ページ】リヴシティ飯田橋の詳細・最新空室はこちら▶▶選ばれる理由
仲介手数料無料・キャンペーン情報(毎月15名様限定)
〇フリーレント1か月キャンペーン
リヴシティ飯田橋 503の口コミ・レビュー
リヴシティ飯田橋 503。その名は、都市の喧騒から一歩離れた静かなオアシスのような存在です。あなたの生活の舞台、ここに新たな物語が紡がれるのです。この特別な1Kの部屋は、実に26.36㎡という素敵な空間の中で、心地よい安らぎを提供します。静けさと洗練、そしてモダンなデザインが織り交ぜられたこの空間は、まるで一流の映画のセットのように、あなたの人生を美しく彩ります。
この部屋は、北向きの窓から差し…リヴシティ飯田橋 503。その名は、都市の喧騒から一歩離れた静かなオアシスのような存在です。あなたの生活の舞台、ここに新たな物語が紡がれるのです。この特別な1Kの部屋は、実に26.36㎡という素敵な空間の中で、心地よい安らぎを提供します。静けさと洗練、そしてモダンなデザインが織り交ぜられたこの空間は、まるで一流の映画のセットのように、あなたの人生を美しく彩ります。
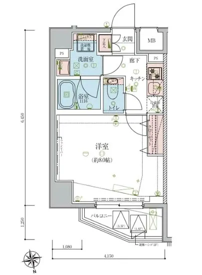
この部屋は、北向きの窓から差し込む柔らかな自然光によって、朝の静寂さを極めて優雅に演出します。目を閉じると、温かい日差しが肌に触れ、まるでそよ風が頬を撫でるかのような感覚を味わうことができます。そして、リヴシティ飯田橋 503の8帖の洋室に足を踏み入れると、足元のフローリングが心地よく響き、まるで上質な絨毯の上を歩いているかのような感覚に包まれます。ここは、思わず深呼吸をしたくなるような、穏やかな空気が流れる特別な場所です。
リヴシティ飯田橋 503のキッチンは、わずか2帖のスペースとは思えないほど、機能性と美しさを兼ね備えています。そこでは、あなたの料理の腕前を活かすことができ、グルメなひとときを演出します。香ばしい調理の香りが漂う中、友人たちと囲む食卓での笑い声や、特別な人とのロマンティックな夕食が、まるで小さな映画のワンシーンのように心に焼き付くことでしょう。
周辺には歴史と文化が息づいています。江戸川橋駅までの12分は、散歩するには少し心地よい距離。歩きながら、古き良き東京の面影を感じられる街並みを探索することができます。コーヒーショップの香りが漂う通りを抜ければ、文京区の歴史的な建物やアートスポットが現れ、あなたの感性を刺激する瞬間に出会えるはずです。まるでアートの中に生きているかのように、充実した日常を送ることができる場所です。
リヴシティ飯田橋 503は、オートロックや宅配ボックス、管理人の心強いサポートなど、現代の生活に必要なセキュリティと利便性を備えています。自分だけのプライベート空間が守られていることを感じながら、あなたの大切な時間を過ごすことができます。この特別な場所では、ただ暮らすのではなく、豊かな人生を育んでいくのです。
リヴシティ飯田橋 503での新しい生活は、単なる日常の連続ではなく、感動の連鎖を生み出す舞台です。自分だけの物語をここに描き、毎日を映画の一シーンにしてみませんか。心を豊かにする場所が、あなたを待っています。
この部屋は、北向きの窓から差し…リヴシティ飯田橋 503。その名は、都市の喧騒から一歩離れた静かなオアシスのような存在です。あなたの生活の舞台、ここに新たな物語が紡がれるのです。この特別な1Kの部屋は、実に26.36㎡という素敵な空間の中で、心地よい安らぎを提供します。静けさと洗練、そしてモダンなデザインが織り交ぜられたこの空間は、まるで一流の映画のセットのように、あなたの人生を美しく彩ります。
この部屋は、北向きの窓から差し込む柔らかな自然光によって、朝の静寂さを極めて優雅に演出します。目を閉じると、温かい日差しが肌に触れ、まるでそよ風が頬を撫でるかのような感覚を味わうことができます。そして、リヴシティ飯田橋 503の8帖の洋室に足を踏み入れると、足元のフローリングが心地よく響き、まるで上質な絨毯の上を歩いているかのような感覚に包まれます。ここは、思わず深呼吸をしたくなるような、穏やかな空気が流れる特別な場所です。
リヴシティ飯田橋 503のキッチンは、わずか2帖のスペースとは思えないほど、機能性と美しさを兼ね備えています。そこでは、あなたの料理の腕前を活かすことができ、グルメなひとときを演出します。香ばしい調理の香りが漂う中、友人たちと囲む食卓での笑い声や、特別な人とのロマンティックな夕食が、まるで小さな映画のワンシーンのように心に焼き付くことでしょう。
周辺には歴史と文化が息づいています。江戸川橋駅までの12分は、散歩するには少し心地よい距離。歩きながら、古き良き東京の面影を感じられる街並みを探索することができます。コーヒーショップの香りが漂う通りを抜ければ、文京区の歴史的な建物やアートスポットが現れ、あなたの感性を刺激する瞬間に出会えるはずです。まるでアートの中に生きているかのように、充実した日常を送ることができる場所です。
リヴシティ飯田橋 503は、オートロックや宅配ボックス、管理人の心強いサポートなど、現代の生活に必要なセキュリティと利便性を備えています。自分だけのプライベート空間が守られていることを感じながら、あなたの大切な時間を過ごすことができます。この特別な場所では、ただ暮らすのではなく、豊かな人生を育んでいくのです。
リヴシティ飯田橋 503での新しい生活は、単なる日常の連続ではなく、感動の連鎖を生み出す舞台です。自分だけの物語をここに描き、毎日を映画の一シーンにしてみませんか。心を豊かにする場所が、あなたを待っています。
バイブルスコア
バイブルスコア: 28.5
平均的なスコアです。
※バイブルスコア詳細はこちら
バイブルスコアとは独自のAI機械学習技術を利用した物件評価システムで、物件のおすすめ度を示します。最高得点は100点で、スコアが高いほど、よりおすすめの物件と評価されています。
写真
現在写真が登録されていません契約条件
| 賃料 | 予想金額:96,000〜116,000円程度 | 管理費 | 予想金額:8,000〜12,000円程度 |
| 礼金 | 非公開(アーカイブ) | 敷金 | 非公開(アーカイブ) |
| フリーレント | 1.0ヶ月 | 平米数 | 26.36㎡ |
| 間取り | 1K | 大型収納 | |
| 契約期間 |
| 方角 | 北 |
| 更新料 | 契約形態 | 普通賃貸借契約 | |
| 取引態様 | 媒介 | 内見状況 | 入居中 |
| 入居時期 | 入居中 | SOHO・事務所 | |
| ペット | ペット可 | 間取り内訳 | 洋:8 K:2 |
| キャンペーン情報・備考 | 本情報は賃料改定交渉の資料作成、収益物件の利回り試算、周辺エリアや最寄り駅の坪単価分析、次回募集開始時期の予測などにご活用いただけます。 | ||
※「どの不動産に頼めばいいのか分からない」「信頼できる営業マンの話を聞きたい」「一番親切な会社と契約したい」とお悩みの方におすすめなのが「高級賃貸バイブル」です。
高級賃貸バイブルは業界10年以上の熟練スタッフ群がお客様ファーストで対応します。
下記ボタンから、まずは無料でご相談下さい。
※内覧をご希望の際には、どうぞ物件のエントランス前にてお待ち合わせくださいませ。ご内覧後は、同じ場所でお別れとさせていただきます。お客様のご都合に合わせたスムーズなご案内を心がけておりますので、ご質問等がございましたら何なりとお申し付けください。 物件概要
| 物件名 |
| 築年月 |
|
|---|---|---|---|
| 所在地 | |||
| 交通 | |||
| 総戸数 |
| 総階数 |
|
| 構造 |
| ||
地図
物件までの道のりは、「拡大地図を表示」をクリックしてナビ機能をご利用ください。
部屋設備













建物設備

TVモニターホン

エレベーター

オートロック

宅配ボックス

敷地内ゴミ置場

管理人
リヴシティ飯田橋の現在募集中のお部屋
- No rooms found for this property.
