
| 賃料 | 予想金額:98,000〜118,000円程度 | 管理費 | 予想金額:4,000〜8,000円程度 |
| 礼金/敷金 | 非公開(アーカイブ) | 平米数 | 25.02㎡ |
| 初期費用概算(参考) | 目安:241,740〜341,740 円 | みなし賃料(月額・参考) | 107,828〜127,828 円 |
| 備考 | 本ページは過去募集のアーカイブです。表示の金額は周辺相場・過去募集を踏まえた参考レンジであり、実際の契約金額・条件ではありません。 | ||
※上記みなし賃料(月額)は仲介手数料割引・無料&キャッシュバックを加味した高級賃貸バイブル限定の金額です。一般的なみなし賃料とは異なります。
【建物ページ】サンライズ大森の詳細・最新空室はこちら▶▶選ばれる理由
仲介手数料無料・キャンペーン情報(毎月15名様限定)
〇引っ越しお祝い金23760円プレゼント(キャッシュバック)
〇仲介手数料無料キャンペーン
サンライズ大森 506の口コミ・レビュー
サンライズ大森 506。この洗練された名前を持つ物件は、まるで都会の真ん中に咲く一輪の美しい花のように、静謐な優雅さを提供します。東京都大田区大森北に佇むこの住まいは、南向きの窓から陽の光が優しく差し込み、朝の覚醒を感じさせるリズムを生み出しています。あなたがまだ誰も知らない特別な空間で、新たな日々を始める準備は整っています。
この物件の魅力は、単なる数字の羅列ではありません。サンライズ大森 5…サンライズ大森 506。この洗練された名前を持つ物件は、まるで都会の真ん中に咲く一輪の美しい花のように、静謐な優雅さを提供します。東京都大田区大森北に佇むこの住まいは、南向きの窓から陽の光が優しく差し込み、朝の覚醒を感じさせるリズムを生み出しています。あなたがまだ誰も知らない特別な空間で、新たな日々を始める準備は整っています。
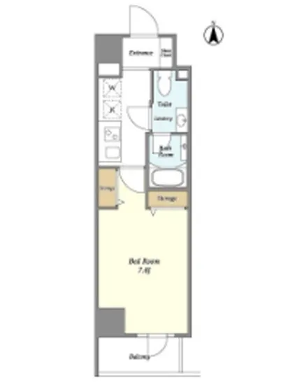
この物件の魅力は、単なる数字の羅列ではありません。サンライズ大森 506は、物語を持つ家です。専有面積25.02㎡の中には、無限の可能性を秘めた夢の舞台が広がっています。例えば、約7.4帖の洋室は、あなたの想像を膨らませるキャンバス。心地良いカーペットの感触を感じながら、日々の疲れを癒す空間として、あるいは、クリエイティブな作業に没頭するオアシスとして、人生を豊かに彩ります。
サンライズ大森 506の特徴は、その洗練された設備にあります。24時間管理のもと、安心の生活が約束される中で、TVモニターホンがあなたと外界を繋ぎ、エレベーターでの上昇感がまるで特別な冒険の始まりのように感じられます。オートロックによって守られた空間は、あなたにとっての聖域。そこに一歩足を踏み入れた瞬間、まるで世界の喧騒から解き放たれる旅人のような心地よさが広がります。
周辺の風景もまた、サンライズ大森 506に住むことで得られる特権です。JR京浜東北線の大森駅から徒歩7分の距離には、歴史ある街並みや文化施設が点在しています。早朝の散歩では、朝露に濡れた草花の香りが漂い、カフェからは freshly brewed coffee の香ばしい香りが漂ってきます。ゆったりとした時間の中で、心の底からリラックスできる贅沢なひとときを味わうことができるでしょう。
この物件は、あなたの日常を映画のワンシーンへと変貌させます。夕暮れ時、陽が沈むにつれて、窓の外には幻想的な色彩が広がり、まるで絵画のように美しい光景が目の前に現れます。贅沢な時間を過ごすための舞台は整いました。サンライズ大森 506での生活は、ひとつひとつの瞬間が特別な体験に変わり、あなたの人生に新たな意味を与えるでしょう。
さあ、この高級な住まいで、あなたの物語を始めてみませんか。サンライズ大森 506は、ただの住まいではなく、人生の美しいシーンを紡ぐための場所です。あなたの日常が、特別な映画のように、色彩豊かに描かれることを心から楽しみにしています。
この物件の魅力は、単なる数字の羅列ではありません。サンライズ大森 5…サンライズ大森 506。この洗練された名前を持つ物件は、まるで都会の真ん中に咲く一輪の美しい花のように、静謐な優雅さを提供します。東京都大田区大森北に佇むこの住まいは、南向きの窓から陽の光が優しく差し込み、朝の覚醒を感じさせるリズムを生み出しています。あなたがまだ誰も知らない特別な空間で、新たな日々を始める準備は整っています。
この物件の魅力は、単なる数字の羅列ではありません。サンライズ大森 506は、物語を持つ家です。専有面積25.02㎡の中には、無限の可能性を秘めた夢の舞台が広がっています。例えば、約7.4帖の洋室は、あなたの想像を膨らませるキャンバス。心地良いカーペットの感触を感じながら、日々の疲れを癒す空間として、あるいは、クリエイティブな作業に没頭するオアシスとして、人生を豊かに彩ります。
サンライズ大森 506の特徴は、その洗練された設備にあります。24時間管理のもと、安心の生活が約束される中で、TVモニターホンがあなたと外界を繋ぎ、エレベーターでの上昇感がまるで特別な冒険の始まりのように感じられます。オートロックによって守られた空間は、あなたにとっての聖域。そこに一歩足を踏み入れた瞬間、まるで世界の喧騒から解き放たれる旅人のような心地よさが広がります。
周辺の風景もまた、サンライズ大森 506に住むことで得られる特権です。JR京浜東北線の大森駅から徒歩7分の距離には、歴史ある街並みや文化施設が点在しています。早朝の散歩では、朝露に濡れた草花の香りが漂い、カフェからは freshly brewed coffee の香ばしい香りが漂ってきます。ゆったりとした時間の中で、心の底からリラックスできる贅沢なひとときを味わうことができるでしょう。
この物件は、あなたの日常を映画のワンシーンへと変貌させます。夕暮れ時、陽が沈むにつれて、窓の外には幻想的な色彩が広がり、まるで絵画のように美しい光景が目の前に現れます。贅沢な時間を過ごすための舞台は整いました。サンライズ大森 506での生活は、ひとつひとつの瞬間が特別な体験に変わり、あなたの人生に新たな意味を与えるでしょう。
さあ、この高級な住まいで、あなたの物語を始めてみませんか。サンライズ大森 506は、ただの住まいではなく、人生の美しいシーンを紡ぐための場所です。あなたの日常が、特別な映画のように、色彩豊かに描かれることを心から楽しみにしています。
バイブルスコア
バイブルスコア: 28.9
平均的なスコアです。
※バイブルスコア詳細はこちら
バイブルスコアとは独自のAI機械学習技術を利用した物件評価システムで、物件のおすすめ度を示します。最高得点は100点で、スコアが高いほど、よりおすすめの物件と評価されています。
写真
現在写真が登録されていません契約条件
| 賃料 | 予想金額:98,000〜118,000円程度 | 管理費 | 予想金額:4,000〜8,000円程度 |
| 礼金 | 非公開(アーカイブ) | 敷金 | 非公開(アーカイブ) |
| フリーレント | なし | 平米数 | 25.02㎡ |
| 間取り | 1K | 大型収納 | |
| 契約期間 |
| 方角 | 南 |
| 更新料 | 契約形態 | 普通賃貸借契約 | |
| 取引態様 | 媒介 | 内見状況 | 入居中 |
| 入居時期 | 入居中 | SOHO・事務所 | |
| ペット | 間取り内訳 | 洋:7.4 | |
| キャンペーン情報・備考 | 本情報は賃料改定交渉の資料作成、収益物件の利回り試算、周辺エリアや最寄り駅の坪単価分析、次回募集開始時期の予測などにご活用いただけます。 | ||
※「どの不動産に頼めばいいのか分からない」「信頼できる営業マンの話を聞きたい」「一番親切な会社と契約したい」とお悩みの方におすすめなのが「高級賃貸バイブル」です。
高級賃貸バイブルは業界10年以上の熟練スタッフ群がお客様ファーストで対応します。
下記ボタンから、まずは無料でご相談下さい。
※内覧をご希望の際には、どうぞ物件のエントランス前にてお待ち合わせくださいませ。ご内覧後は、同じ場所でお別れとさせていただきます。お客様のご都合に合わせたスムーズなご案内を心がけておりますので、ご質問等がございましたら何なりとお申し付けください。 物件概要
| 物件名 |
| 築年月 |
|
|---|---|---|---|
| 所在地 | |||
| 交通 | |||
| 総戸数 |
| 総階数 |
|
| 構造 |
| ||
地図
物件までの道のりは、「拡大地図を表示」をクリックしてナビ機能をご利用ください。
部屋設備














建物設備

24時間管理

TVモニターホン

エレベーター

オートロック

バイク置場

宅配ボックス

敷地内ゴミ置場

管理人

駐車場平置き

駐車場機械式

駐輪場
サンライズ大森の現在募集中のお部屋
- No rooms found for this property.
